Vrijstaande, fraai verbouwde en luxe splitlevelwoning in Ubachsberg. In het hart van het mooie Ubachsberg, achter de kerk en schuin tegenover het medisch centrum, staat deze fraaie woning met 3 slaapkamers, 2 badkamers en een zeer ruime garage. Voor de garage is een oprit voor meerdere auto’s en de rondom gelegen tuin, met een overdekt terras en een zonneterras, is van ongekende schoonheid. Dit is een huis met sfeer, veel lichtinval en de juiste look-and-feel!
Vrijstaande, fraai verbouwde en luxe splitlevelwoning in Ubachsberg. In het hart van het mooie Ubachsberg, achter de kerk en schuin tegenover het medisch centrum, staat deze fraaie woning met 3 slaapkamers, 2 badkamers en een zeer ruime garage. Voor de garage is een oprit voor meerdere auto’s en de rondom gelegen tuin, met een overdekt terras en een zonneterras, is van ongekende schoonheid. Dit is een huis met sfeer, veel lichtinval en de juiste look-and-feel!
Typering:
Er komt zelden een woning te koop in dit deel van het dorp, waar merendeels vrijstaande woningen staan. Ubachsberg, ook wel Gen Berg genoemd, maakt deel uit van de gemeente Voerendaal. In het dorp vindt een basisschool, enkele horecagelegenheden en sportverenigingen. Zo is het dorp onder andere bekend door het Michelinrestaurant De Leuf en de Herberg de Bernardushoeve. Overige voorzieningen vindt u in het nabijgelegen Voerendaal, Simpelveld en Heerlen. Het dorp wordt omringd door prachtige natuur en de ligging ten opzichte van de snelwegen A76/A79 en diverse uitvalswegen is zeer goed.
Indeling:
Souterrain:
Een korte trap in de hal geeft toegang tot een lichte overloop, die onder andere toegang biedt tot een kruipruimte/berging. De toegang tot deze ruimte is naast de trap. Verder zijn er een slaapkamer, badkamer, toiletruimte, de bijkeuken/wasruimte en de garage in het souterrain.
Slaapkamer I (circa 15 m2) is een royale tweepersoonskamer, met lichtinval vanaf twee zijden en twee maatwerk garderobekasten. Tussen deze kasten is een deur naar de moderne badkamer (circa 1,91 x 1,81/1,40) met een royale inloopdouche en een maatwerk wastafelmeubel. Fraaie elementen zijn het houten blad, de ronde spiegel met verlichting en het betonstuc in de douche. Naast de badkamer is de toiletruimte, met een wandcloset en een maatwerk wastafelmeubel.
In de bijkeuken/wasruimte (circa 4,16 x 3,31) staat een grote, L-vormige kastenwand met schuifdeuren. Achter deze deuren zijn de aansluitingen voor de wasapparatuur. De laatste, tevens grootste ruimte in het souterrain is de garage van circa 40 m2, met 2 lichtkoepels in het bijna 3 meter hoge plafond. Openslaande deuren geven toegang tot de oprit en aan de andere zijde is een deur naar de tuin.
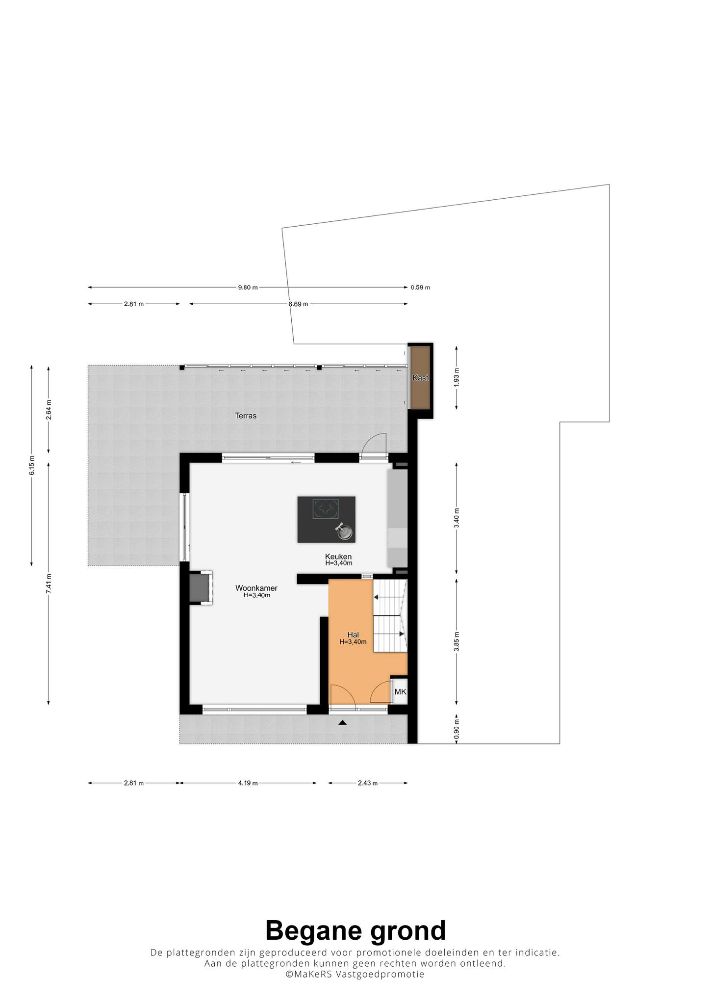
Begane grond:
In de hal (circa 3,85 x 2,43) ziet u niet alleen de trap naar het souterrain, maar ook de trap naar de eerste verdieping. Wat opvalt zijn de lichtinval en het hoge, schuine dak.
De woonkamer (circa 7,41 x 4,00) staat in open verbinding met de keuken (circa 2,43 x 3,40). De totale oppervlakte is circa 37 m2, met lichtinval vanaf drie zijden en een dubbele schuifpui naar het deels overdekte terras. Blikvanger is de grote elektrische haard bij het zitgedeelte, met een moderne schouw en in het schuine dak is inbouwverlichting geplaatst.
Het eetgedeelte grenst aan de fraaie keuken, waar een groot kook-/spoeleiland en een hoge kastenwand staan. Brede lades en grote kasten bieden volop bergruimte en de inductie kookplaat met afzuiging, combi-oven, vaatwasser en koel-/vriescombinatie zijn ingebouwd. De keuken is groot genoeg om een servieskast en uw favoriete woonaccessoires een plekje te geven.
Aan de achterzijde, op het westen, is het overdekte terras (circa 6,69 x 2,64) met een houten vloer, een glazen schuifwand en zonwering aan de binnenzijde van het glazen dak. Er is een open verbinding met het zonneterras, aan de linkerzijde van deze stijlvolle woning. In de lagergelegen tuin aan drie zijden ziet een grote variatie aan groen, die voor veel privacy en sfeer zorgt. De oprit, met dubbele deuren aan de straatzijde, biedt ruimte aan twee auto’s. Hier ziet u twee donkergrijze deuren, die toegang geven tot een berging van circa 6,20 x 2,67 meter. Deze ruimte, onder het terras, heeft een hoogte van circa 1,05 meter.
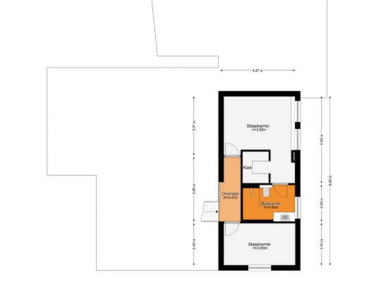
Eerste verdieping:
Op de bovenste verdieping zijn twee slaapkamers en de tweede badkamer. Hiermee is deze woning perfect voor een gezin, om vanuit huis te werken en om gasten in stijl te ontvangen.
Slaapkamer II (circa 4,09 x 2,40) is aan de voorzijde, met uitzicht naar het Bernardusplein. Aan de achterzijde is slaapkamer III (circa 4,07 x 3,05) met een en-suite kleedruimte (circa 0,00 x 1,88) met een maatwerk interieur. Badkamer II (circa 3,00 x 1,99) is fraai ingedeeld met een royale inloopdouche, wandcloset en een wastafelmeubel.
Algemeen:
Bouwjaar: 1963, gerenoveerd in 2020
Perceeloppervlakte: 400 m2
Gebruiksoppervlakte wonen: circa 134 m2, inhoud circa 673 m3
Warm water via een elektrische boiler (eigendom)
Verwarming via 2 airco’s, elektrische haard (woonkamer) en elektrische radiatoren
Kunststof kozijnen met HR++ glas
Drie slaapkamers en twee badkamers
Grote garage (circa 40 m2) met een oprit voor meerdere auto’s
27 zonnepanelen (16 panelen 390 Wp, 2020, eigendom) (11 panelen 410 Wp, 2022, eigendom)
Prachtige tuin met een overdekt terras, zonneterras en een grote variatie aan beplanting
Gunstige ligging ten opzichte van Heerlen, Maastricht en Aken
Asbest: niet bekend
Energielabel: A+
Aanvaarding: in onderling overleg
Ter bescherming van de belangen van zowel koper als verkoper, wordt uitdrukkelijk gesteld dat een koopovereenkomst met betrekking tot deze onroerende zaak eerst dan tot stand komt nadat koper en verkoper de koopovereenkomst hebben getekend (“schriftelijkheidsvereiste”).
Indien er in de woning huurtoestellen aanwezig zijn zoals CV-ketel, boiler, zonnepanelen, mechanische ventilatie etc. dan dienen deze door de koper te worden overgenomen.
De termijn die wordt opgenomen voor eventuele (overeengekomen) ontbindende voorwaarden (bv. Financiering) is in de regel 4 tot 6 weken na het sluiten van de mondelinge wilsovereenkomst.
De waarborgsom/bankgarantie is 10% van de koopsom. De koper dient deze 3 dagen ná het vervallen van de ontbindende voorwaarden bij de desbetreffende notaris te deponeren.
Koper is te allen tijde gerechtigd voor eigen rekening een bouwkundige keuring te (laten) verrichten dan wel andere adviseurs te raadplegen teneinde een goed inzicht te verkrijgen over de staat van onderhoud.
Deze informatie is door ons, Tijs & Cyril Makelaardij met de nodige zorgvuldigheid samengesteld. Onzerzijds wordt echter geen enkele aansprakelijkheid aanvaard voor enige onvolledigheid, onjuist of anderszins, dan wel de gevolgen daarvan. Alle opgegeven maten en oppervlakten zijn indicatief. Van toepassing zijn de NVM voorwaarden.