Vraagprijs € 529.000,- k.k.
Uitgebouwde, instapklare woning met een fraaie tuin in Sint-Gerlach. Op een prachtige plek in Sint-Gerlach, schuin tegenover de 16e eeuwse Wijnantshof, staat deze fors uitgebouwde 2-onder-1 kapwoning met een grote woon-/eetkamer, een souterrain met garage en 3 slaapkamers. Er is parkeergelegenheid op eigen terrein en de tuin aan 3 zijden, met een eigen achterom, is het toppunt van sfeer. Blikvanger in de achtertuin is het overdekte terras, perfect om te loungen en borrelen. Vanaf de 1e verdieping heeft u aan de achterzijde mooi uitzicht op akkers, weilanden en het Kloosterbosch.
Uitgebouwde, instapklare woning met een fraaie tuin in Sint-Gerlach. Op een prachtige plek in Sint-Gerlach, schuin tegenover de 16e eeuwse Wijnantshof, staat deze fors uitgebouwde 2-onder-1 kapwoning met een grote woon-/eetkamer, een souterrain met garage en 3 slaapkamers. Er is parkeergelegenheid op eigen terrein en de tuin aan 3 zijden, met een eigen achterom, is het toppunt van sfeer. Blikvanger in de achtertuin is het overdekte terras, perfect om te loungen en borrelen. Vanaf de 1e verdieping heeft u aan de achterzijde mooi uitzicht op akkers, weilanden en het Kloosterbosch.
Typering:
De ligging tussen Valkenburg, Meerssen en Berg en Terblijt is zonder meer goed te noemen. Het centrum van Valkenburg en Meerssen, als ook Maastricht en Heerlen met al hun (winkel)voorzieningen zijn per auto, bus en fiets goed bereikbaar. De op- en afritten van de autosnelweg A79 van Maastricht en Heerlen-Aken zijn in de directe nabijheid.
Souterrain:
De grootste ruimte in het souterrain is de verwarmde garage (circa 5,99 x 3,63). Deze ruimte is voorzien van elektra, water en vaste kasten over de hele lengte van deze ruimte. Met een druk op de knop opent u de sectionaalpoort, waardoor u zo met de auto of een ander voertuig naar binnen of buiten kunt rijden.
Verder zijn er nog drie ruimtes in het souterrain: een hal met de trap naar de begane grond, een berging en de wasruimte. In de berging (circa 2,28 x 1,18) hangt de HR-ketel (bouwjaar 2011, huur) en de wasruimte (circa 2,78 x 2,28) is onder andere geschikt voor de wasmachine, droger, strijkplank en andere spullen.
Begane grond:
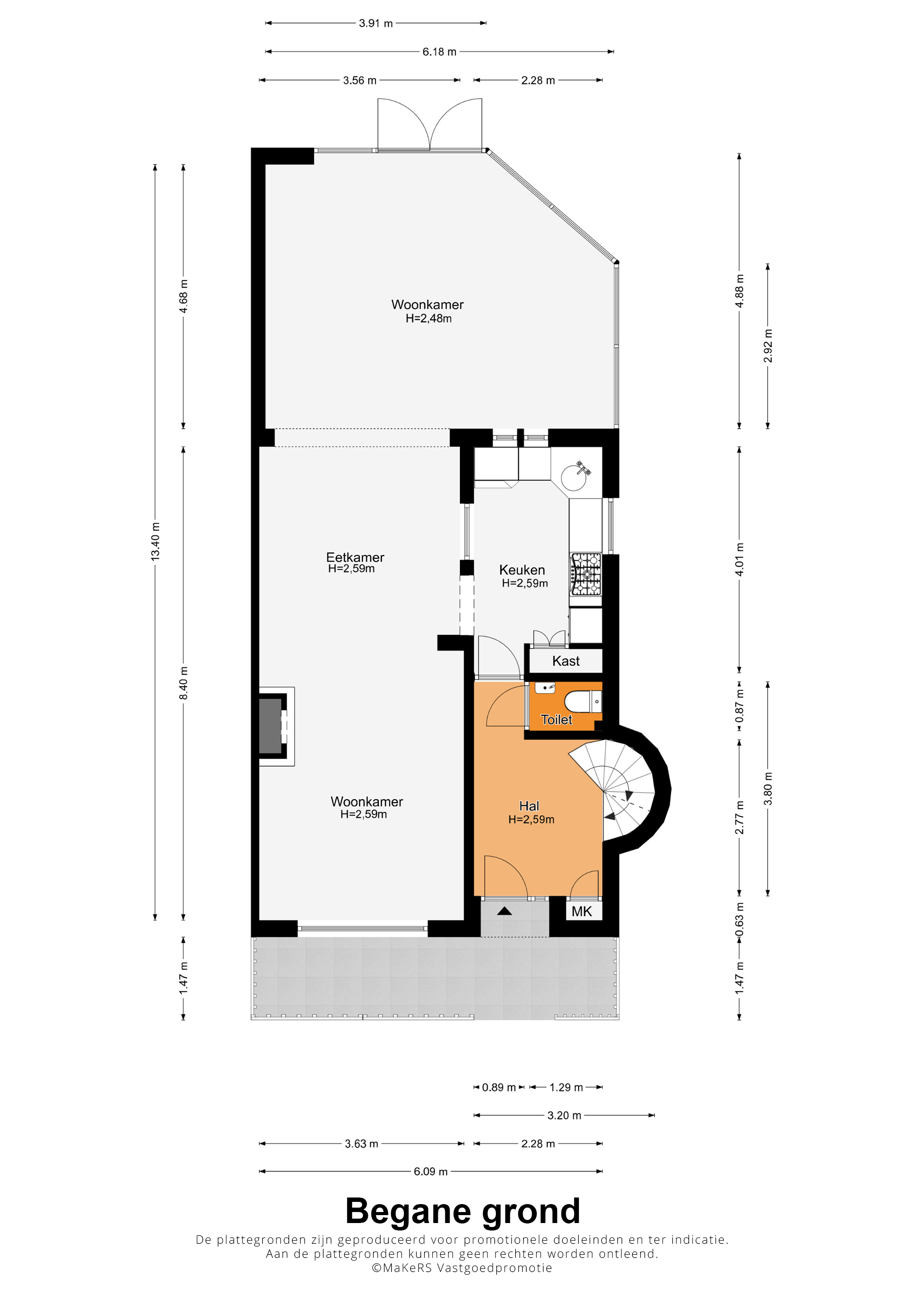
Via het pad in de tuin loopt u, twee korte buitentrappen, naar de entree van deze fraaie woning. In de hal (circa 2,77 x 2,28) ligt, net als op bijna de hele begane grond, een marmeren vloer en lichte kleuren maken de hal heel ruimtelijk. Blikvanger zijn de sierlijke trappen, naar het souterrain en de eerste verdieping, en vanuit de hal is er toegang tot de toiletruimte met fonteintje.
De woon-/eetkamer is aan de achterzijde fors uitgebouwd, waardoor er een leefruimte van circa 55 m2 is ontstaan. Het zitgedeelte is aan de voorzijde, bij de open haard, en het eetgedeelte grenst aan de halfopen keuken. De fraaie aanbouw, met ramen tot vloerhoogte en openslaande tuindeuren, is ingericht als tv-ruimte. In de hoek van deze ruimte hangt een airco-unit, die kan koelen en verwarmen.
Vanuit de hal en woonkamer is de keuken (circa 4,01 x 2,28) te bereiken, waar een hoekopstelling met een granieten aanrechtblad staat. De gaskookplaat, afzuigkap, combi-oven, koelkast en vaatwasser zijn ingebouwd waardoor u direct aan de slag kunt met koken en bakken.
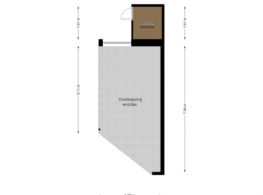
Een van de ramen in de keuken biedt uitzicht op de zijtuin, die de voor- en achtertuin met elkaar verbindt. Groene hagen en borders met beplanting zorgen voor een fraai geheel. Blikvanger in de achtertuin is het overdekte terras, dat een geheel vormt met het grote terras. Het achterste deel van de tuin is ingericht met een gazon en beplanting, perfect voor spelende kinderen en om zelf van te genieten.
Eerste verdieping:
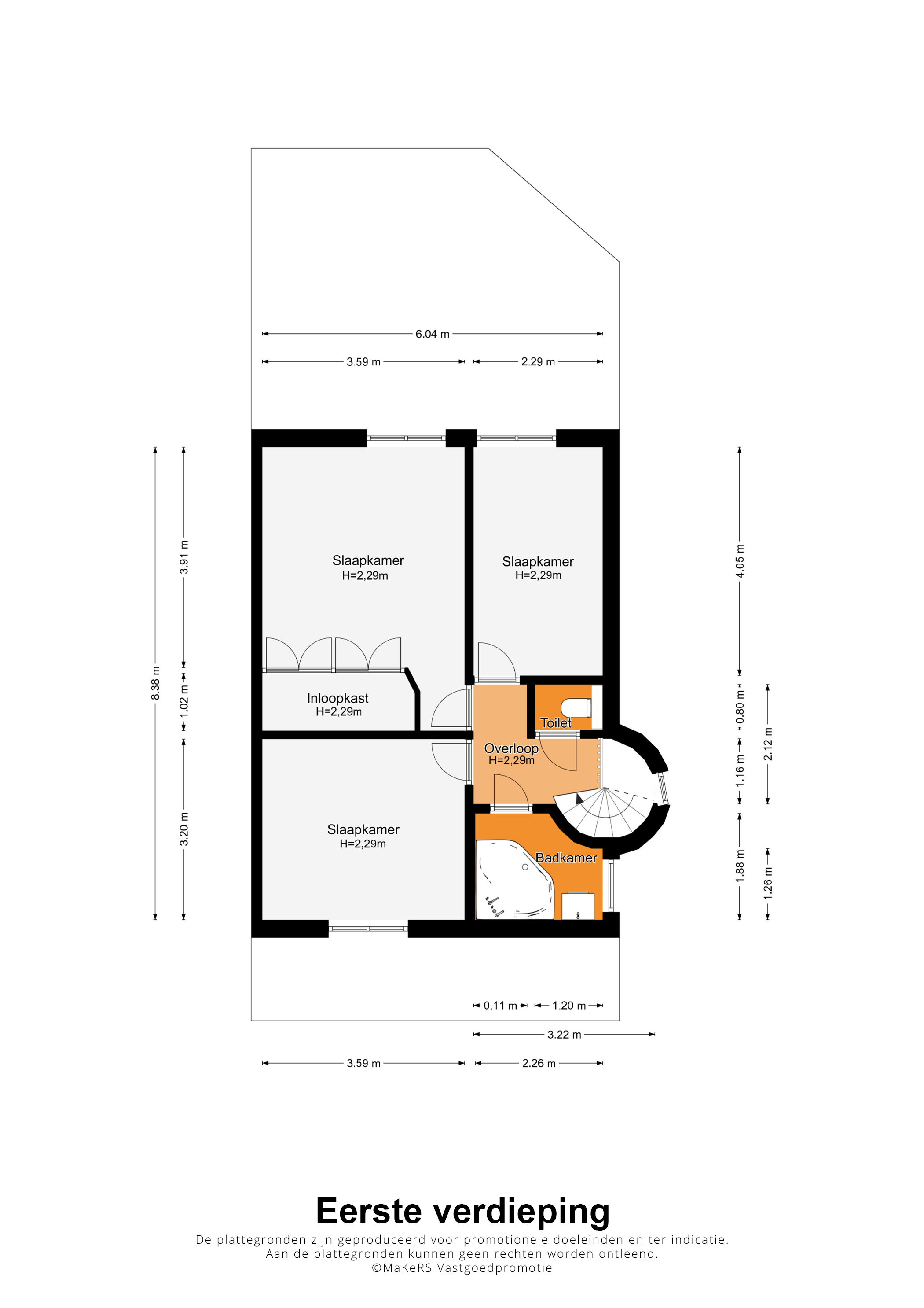
Niet alleen op de begane grond, maar ook op de eerste verdieping is dit huis heel sfeervol en smaakvol verbouwd. Vanaf de overloop is er toegang tot drie slaapkamers, de badkamer en een separate toiletruimte.
Aan de voorzijde is slaapkamer I (circa 3,59 x 3,20) en aan de achterzijde zijn slaapkamer II (circa 4,93 x 3,59) met vaste kastenwand en slaapkamer III (circa 4,05 x 2,29), in gebruik als werkkamer. In alle kamers ligt een mooie laminaatvloer met pvc-laag en in slaapkamer II, in gebruik als master bedroom, hangt een airco-unit (koelen en verwarmen).
De toiletruimte met wandcloset is uitgevoerd in wit met houtlook accenten, wat voor een fraai geheel zorgt. Aan de andere zijde van de overloop is de badkamer (circa 2,26 x 1,88/1,26) met een hoekbad en een wastafelmeubel.
Algemeen:
Bouwjaar: 1973
Perceeloppervlakte: 452 m2
Gebruiksoppervlakte wonen: circa 149 m2, inhoud circa 589 m3
Aanbouw met vloerverwarming en airco (koelen en verwarmen)
Dakisolatie,
Kunststof kozijnen met isolerende beglazing
12 zonnepanelen van 400 Wp met optimizer
Parkeergelegenheid op eigen terrein (oprit en garage)
Prachtige tuin met een overdekt terras, veel groen en privacy
Energielabel: C
Aanvaarding: in onderling overleg
Ter bescherming van de belangen van zowel koper als verkoper, wordt uitdrukkelijk gesteld dat een koopovereenkomst met betrekking tot deze onroerende zaak eerst dan tot stand komt nadat koper en verkoper de koopovereenkomst hebben getekend (“schriftelijkheidsvereiste”).
Indien er in de woning huurtoestellen aanwezig zijn zoals CV-ketel, boiler, zonnepanelen, mechanische ventilatie etc. dan dienen deze door de koper te worden overgenomen.
De termijn die wordt opgenomen voor eventuele (overeengekomen) ontbindende voorwaarden (bv. Financiering) is in de regel 4 tot 6 weken na het sluiten van de mondelinge wilsovereenkomst.
De waarborgsom/bankgarantie is 10% van de koopsom. De koper dient deze 3 dagen ná het vervallen van de ontbindende voorwaarden bij de desbetreffende notaris te deponeren.
Koper is te allen tijde gerechtigd voor eigen rekening een bouwkundige keuring te (laten) verrichten dan wel andere adviseurs te raadplegen teneinde een goed inzicht te verkrijgen over de staat van onderhoud.
Deze informatie is door ons, Tijs & Cyril Makelaardij met de nodige zorgvuldigheid samengesteld. Onzerzijds wordt echter geen enkele aansprakelijkheid aanvaard voor enige onvolledigheid, onjuist of anderszins, dan wel de gevolgen daarvan. Alle opgegeven maten en oppervlakten zijn indicatief. Van toepassing zijn de NVM voorwaarden.