Op een prachtige en rustige plek in het Heuvelland staat deze 2-onder-1 kapwoning met een garage in het souterrain, 3 slaapkamers op de 1e verdieping en een zolder waar een extra slaapkamer gerealiseerd kan worden. Het merendeel van de kozijnen is van kunststof, met HR+ glas, wat een goede basis is om dit huis naar eigen smaak te moderniseren. De achtertuin en het balkon zijn gesitueerd op het zonnige zuiden.
Op een prachtige en rustige plek in het Heuvelland staat deze 2-onder-1 kapwoning met een garage in het souterrain, 3 slaapkamers op de 1e verdieping en een zolder waar een extra slaapkamer gerealiseerd kan worden. Het merendeel van de kozijnen is van kunststof, met HR+ glas, wat een goede basis is om dit huis naar eigen smaak te moderniseren. De achtertuin en het balkon zijn gesitueerd op het zonnige zuiden.
Typering:
De ligging tussen Valkenburg, Meerssen en Berg en Terblijt is zonder meer goed te noemen. Zo zijn de op- en afritten van de autosnelweg A79 van Maastricht en Heerlen-Aken in de directe nabijheid. Het centrum van Valkenburg en Meerssen, als ook Maastricht en Heerlen met al hun (winkel)voorzieningen zijn per auto, bus en fiets goed bereikbaar.
Indeling:
Souterrain:
Vanaf de straat is het nauwelijks zichtbaar, maar deze woning heeft een ruim souterrain met een hoogte van circa 2,16 meter. De garage (circa 7,24 x 3,95/3,28) is de grootste ruimte, met dubbele deuren aan de achterzijde. Naast de garage is kelder I (circa 2,99 x 3,02), met een buitendeur de opstelling van de HR-ketel (Remeha, 2007, eigendom). In kelder II (circa 4,12 x 2,32) is de trap naar de begane grond.
Vanuit het souterrain is er toegang tot de achtertuin, met gras en groene hagen in het achterste deel. Het verharde buitenterrein biedt de mogelijkheid om, met een auto of een ander voertuig, de garage te bereiken.
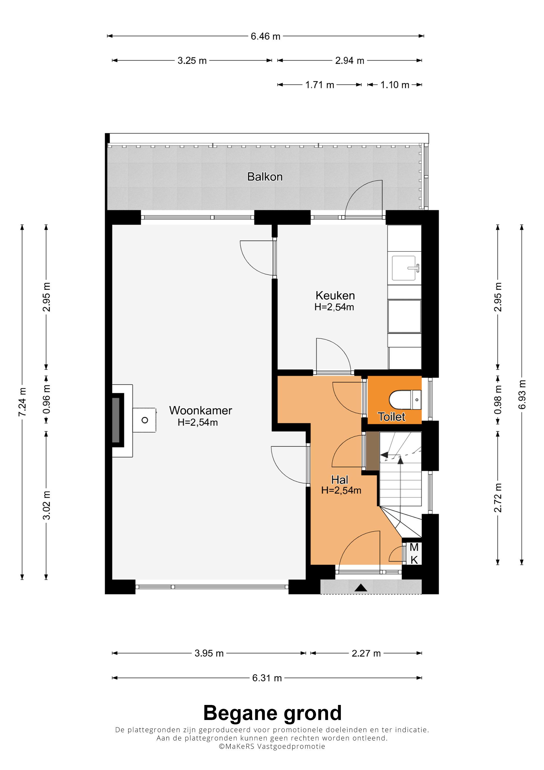
Begane grond:
In de mooie hal ligt de originele vloer, die goed past bij de sierlijke trapopgang en het kleurrijke glas-in loodraam in de zijgevel. Rechts in de hal is de toiletruimte met de originele wandtegels en ook hier ziet u een glas-in loodraam, geplaatst in een kunststof kozijn.
De woonkamer (circa 25,5 m2) heeft lichtinval vanaf twee kanten, waaronder de zonnige zuidkant. Sfeermakers zijn de klassieke parketvloer, de schouw met decoratieve houten balk en de subtiele plafondelementen. Het zitgedeelte is aan de voorzijde, met uitzicht op de rustige straat, en het eetgedeelte grenst aan het balkon en de keuken.
In de dichte keuken (circa 2,95 x 2,94) is genoeg plek voor een ontbijttafel. De wandopstelling, uitgevoerd in een lichte kleur, heeft een keramische kookplaat, afzuigkap, oven en een koelkast. Via de buitendeur loopt u zo, met een hapje en een drankje in de hand, naar het balkon op het zonnige zuiden.
Eerste verdieping:
Deze woning heeft drie slaapkamers, allen op de eerste verdieping. Aan de voorzijde is slaapkamer I (circa 3,93 x 3,00) en aan de achterzijde zijn slaapkamer II (circa 4,12 x 3,25) en slaapkamer III (circa 2,99 x 2,99). Er ligt, net als op de begane grond, een klassieke parketvloer en in een van de kamers hangt een wastafel.
Verder zijn er een inbouwkast en een badkamer (circa 2,29 x 1,13) op deze verdieping, te bereiken vanaf de overloop. Qua ruimte is het mogelijk om de inbouwkast te verbouwen tot toiletruimte, waardoor de badkamer de huidige indeling met een lavet en wastafelmeubel kan behouden. In plaats van het lavet kan er ook worden gekozen voor een inloopdouche.
Zolder:
Dit is een interessante etage, met een nokhoogte van circa 2,19 meter. Hier zijn twee zolderruimtes met een royale vloeroppervlakte, met de mogelijkheid om een extra (slaap)kamer te realiseren.
Algemeen:
Bouwjaar: 1966
Perceeloppervlakte: 158 m2
Gebruiksoppervlakte wonen: circa 91 m2, inhoud circa 512 m3
Verwarming en warm water via een HR-ketel (Remeha, 2007, eigendom)
Merendeels kunststof kozijnen met HR+ glas
Multifunctioneel souterrain met een garage en twee kelderruimtes
Drie (mogelijk vier) slaapkamers
Balkon en achtertuin op het zuiden
Energielabel: E
Aanvaarding: in onderling overleg
Ter bescherming van de belangen van zowel koper als verkoper, wordt uitdrukkelijk gesteld dat een koopovereenkomst met betrekking tot deze onroerende zaak eerst dan tot stand komt nadat koper en verkoper de koopovereenkomst hebben getekend (“schriftelijkheidsvereiste”).
Indien er in de woning huurtoestellen aanwezig zijn zoals CV-ketel, boiler, zonnepanelen, mechanische ventilatie etc. dan dienen deze door de koper te worden overgenomen.
De termijn die wordt opgenomen voor eventuele (overeengekomen) ontbindende voorwaarden (bv. Financiering) is in de regel 4 tot 6 weken na het sluiten van de mondelinge wilsovereenkomst.
De waarborgsom/bankgarantie is 10% van de koopsom. De koper dient deze 3 dagen ná het vervallen van de ontbindende voorwaarden bij de desbetreffende notaris te deponeren.
Koper is te allen tijde gerechtigd voor eigen rekening een bouwkundige keuring te (laten) verrichten dan wel andere adviseurs te raadplegen teneinde een goed inzicht te verkrijgen over de staat van onderhoud.
Deze informatie is door ons, Tijs & Cyril Makelaardij met de nodige zorgvuldigheid samengesteld. Onzerzijds wordt echter geen enkele aansprakelijkheid aanvaard voor enige onvolledigheid, onjuist of anderszins, dan wel de gevolgen daarvan. Alle opgegeven maten en oppervlakten zijn indicatief. Van toepassing zijn de NVM voorwaarden.