Mooi wonen in het hart van historisch Valkenburg!
Aan de Henry Morganstraat, nabij de Reinaldstraat en Hekerbeekstraat, ontvouwt zich dit nieuwbouwproject. De ruime Villa Via Nova woningen verrassen met veel bijzondere kenmerken.
Eigentijdse woonruimtes middenin de unieke charme van het Limburgse landschap. Vrijstaande woningen, ruime kavels en toch alle verbindingen met uitvalswegen en openbaar vervoer. Het
sfeervolle oudste treinstation van ons land, een rijksmonument uit 1853, ligt op een steenworp afstand. De idyllische locatie combineert het beste van twee werelden: het comfort van modern
wonen vlakbij historisch erfgoed en omliggend heuvelland.
Op loopafstand van uw nieuwe woning ligt de supermarkt, de bakker, de slager en vele leuke winkels, restaurants en terrasjes. Je kunt heerlijk ontspannen in Thermae 2000 en in het casino.
Het uitgestrekte groengebied met zijn vele recreatiemogelijkheden maakt het plaatje compleet. U kunt hier uitgebreid wandelen, fietsen en mountainbiken.
Verkaveling
Het plan Villa Via Nova bestaat uit acht stadsvilla’s (type J1 en J2) en zes semibungalows (type H1 en H2), waarbij elke kant van de straat exclusief is toegewezen aan één van de woningtypes. Dit om een rustig straatbeeld te creëren.
Stadsvilla's
Woningtypes J1 en J2
De nieuwbouwwoningen type J1 en J2 zijn de ideale keuze voor mensen die op zoek zijn naar comfort, ruimte en moderne voorzieningen. Deze prachtige woningen spreiden zich uit over drie woonlagen en bieden een uitstekende balans tussen functionaliteit en gemak.
Kenmerken:
- 3 woonlagen
- Begane grond: woonkamer met open keuken, toilet, buitenberging
- 1e verdieping: 3 slaapkamers, badkamer en separaat toilet
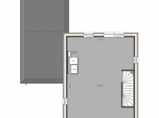
- 2e verdieping: ruime zolder die als extra ruimte kan worden gebruik
De begane grond is voorzien van een ruime en lichte woonkamer die overgaat in de open (SieMatic) keuken, waardoor een gezellige en gastvrije leefruimte ontstaat. Deze woningen zijn standaard voorzien van een handige buitenberging, wat betekent dat er ruimte is voor het opbergen van fietsen, gereedschap en andere benodigdheden.
Op de eerste verdieping zijn drie ruime slaapkamers. De moderne badkamer op deze verdieping biedt alle comfort die u nodig heeft om te ontspannen na een drukke dag. Tevens is er een separaat toilet aanwezig. De verrassing vormt de tweede verdieping, waar u een ruime zolder aantreft met vele mogelijkheden. Deze flexibele ruimte kan worden aangepast aan de behoeften van de bewoners.
Aanpassingsopties:
- Uitbouwen achterzijde met 1,20 of 2,40 meter
- Verlengen buitenberging met 1,20 of 2,40 meter
- Plaatsen dubbele tuindeuren
- Plaatsen schuifpui
- Verplaatsen keuken naar voorzijde
- Samenvoegen slaapkamer 2 en 3 tot één grote slaapkamer
- Indelen zolder met zolderkamer, berging en techniekruimte
Semibungalows
Woningtype H1 en H2
De nieuwbouwwoningen van het type H1 en H2 zijn ontworpen met het oog op comfort, toegankelijkheid en flexibiliteit. Deze prachtige woningen strekken zich uit over twee woonlagen. De verdieping kan flexibel worden ingezet.
Kenmerken:
- 2 woonlagen
- Begane grond: woonkamer met open keuken, 1 ruime slaapkamer, badkamer, toilet, trapkast en berging
- 1e verdieping: ruime zolder die als extra ruimte kan worden gebruikt
De begane grond is voorzien van een lichte woonkamer met open (SieMatic) keuken. Daarnaast biedt de begane grond een ruime slaapkamer, waardoor bewoners op één niveau kunnen wonen als dat gewenst is. Een handige badkamer en toilet zijn ook op deze verdieping te vinden, evenals voldoende kastruimte en een berging.
De eerste verdieping biedt een ruime zolder die als extra ruimte kan worden gebruikt, afhankelijk van uw specifieke behoeften. Het is een ruimte die aanpasbaar is aan levensstijl, leeftijd en behoeften.
Aanpassingsopties:
- Uitbouwen achterzijde met 1,20 meter
- Plaatsen dubbele tuindeuren
- Plaatsen schuifpui
- Indelen eerste verdieping (type H1): badkamer, slaapkamer, berging en techniekruimte
- Indelen eerste verdieping (type H2): slaapkamer, berging en techniekruimte
Energiezuinig en duurzaam:
De nieuwbouwwoningen zijn ontworpen en uitgevoerd met energie-efficiënte in gedachten.
Moderne isolatie, efficiënte verwarming en koeling zorgen hier op slimme, elegante wijze voor.
Uw nieuwe huis in Villa Via Nova is zeer energiezuinig, minimaal energielabel A+++. Dit label wordt als volgt behaald:
- Warmtepomp
- Zonnepanelen
- Ventilatiesysteem
- Gasloos
| H2 |
| Bouwnummer: |
Woonoppervlakte: |
Prijs: |
Status: |
| 10 |
124 m² |
€ 540.000,- |
Verkocht |
| 12 |
124 m² |
€ 540.000,- |
Verkocht |
| 14 |
124 m² |
€ 555.000,- |
Verkocht |
| J2 |
| Bouwnummer: |
Woonoppervlakte: |
Prijs: |
Status: |
| 2 |
166 m² |
€ 699.000,- |
Verkocht |
| 4 |
166 m² |
€ 685.000,- |
Verkocht |
| 6 |
166 m² |
€ 685.000,- |
Verkocht |
| 8 |
166 m² |
€ 699.000,- |
Verkocht |
| J1 |
| Bouwnummer: |
Woonoppervlakte: |
Prijs: |
Status: |
| 1 |
166 m² |
€ 715.000,- |
Verkocht |
| 3 |
166 m² |
€ 690.000,- |
Verkocht |
| 5 |
166 m² |
€ 685.000,- |
Verkocht |
| 7 |
166 m² |
€ 687.500,- |
Verkocht |
| H1 |
| Bouwnummer: |
Woonoppervlakte: |
Prijs: |
Status: |
| 9 |
124 m² |
€ 560.000,- |
Verkocht |
| 11 |
124 m² |
€ 540.000,- |
Verkocht |
| 13 |
124 m² |
€ 540.000,- |
Verkocht |