Stijlvol wonen in een mergelhuis, net buiten het centrum. Op een verrassende plek in Valkenburg, aan de Neerhem, staat deze verrassend ruime mergelwoning uit 1867. In 2009 is het achterste, tevens grootste deel gebouwd waarmee het een huis van formaat is geworden. Boven zijn de zeer ruime master bedroom, een luxe badkamer, tweede slaapkamer en een royale zolder. De begane grond biedt ruimte aan een sfeervolle woonkamer met open keuken, de hal met toiletruimte en een verrassende tuinkamer. Verder zijn er een tuin, een deels overdekt terras en in de parkeergarage van het naastgelegen appartementengebouw heeft u de beschikking over een privé parkeerplek en een berging (eigendom).
Stijlvol wonen in een mergelhuis, net buiten het centrum. Op een verrassende plek in Valkenburg, aan de Neerhem, staat deze verrassend ruime mergelwoning uit 1867. In 2009 is het achterste, tevens grootste deel gebouwd waarmee het een huis van formaat is geworden. Boven zijn de zeer ruime master bedroom, een luxe badkamer, tweede slaapkamer en een royale zolder. De begane grond biedt ruimte aan een sfeervolle woonkamer met open keuken, de hal met toiletruimte en een verrassende tuinkamer. Verder zijn er een tuin, een deels overdekt terras en in de parkeergarage van het naastgelegen appartementengebouw heeft u de beschikking over een privé parkeerplek en een berging (eigendom).
Typering:
Voor natuurliefhebbers is dit een geweldige plek om te wonen met het Geulpark, de Sibbergrubbe, de Daalhemmerberg en het Biebosch in de nabijheid. Verder woont u op loopafstand van het centrum met winkels, restaurants, terrassen en andere voorzieningen. In de straat stopt de bus, die u onder andere naar het treinstation en naar Gulpen brengt.
Indeling:
Begane grond:
Vanaf de Neerhem loopt u het autovrije pad in, richting Geulpark Residentie. U gaat niet bij het gebouw naar binnen, maar rechtsaf richting de voordeur van nummer 111a. Deze bevindt zich in de mooi aangelegde tuin, met een ruim terras waar u heerlijk kunt zitten.
Achter de voordeur is de ruime hal (circa 4,44 x 4,06), met de trap naar de eerste verdieping. Onder de trap zijn een kast voor de wasapparatuur, en een kast met de HR-ketel (Remeha, 2010, eigendom). Aan de linkerzijde zijn de zeer royale toiletruimte met fonteintje en een lichte tuinkamer (circa 3,72 x 2,06), met een schuifpui naar het deels overdekte terras. Dit is een plek waar rust en privacy volop aanwezig zijn. De overkapping van circa 3,00 x 3,00 meter verlengt de seizoenen om buiten te zitten.
Aan de andere zijde van de hal loopt u de woonkamer met open keuken in, van totaal circa 53 m2. Het brede zitgedeelte, met maatwerkkasten en een sierhaard op ooghoogte, is aan de kant van de Neerhem. Het eetgedeelte, met ruimte voor een tafel, grenst aan de keuken met een groot spoeleiland. De afzuigkap, inductiekookplaat, vaatwasser, oven, magnetron en koel-vriescombinatie zijn ingebouwd. De aanrechtbladen, en een deel van de achterwand, zijn van graniet en de afwerking is niet alleen fraai, maar ook heel sfeervol.
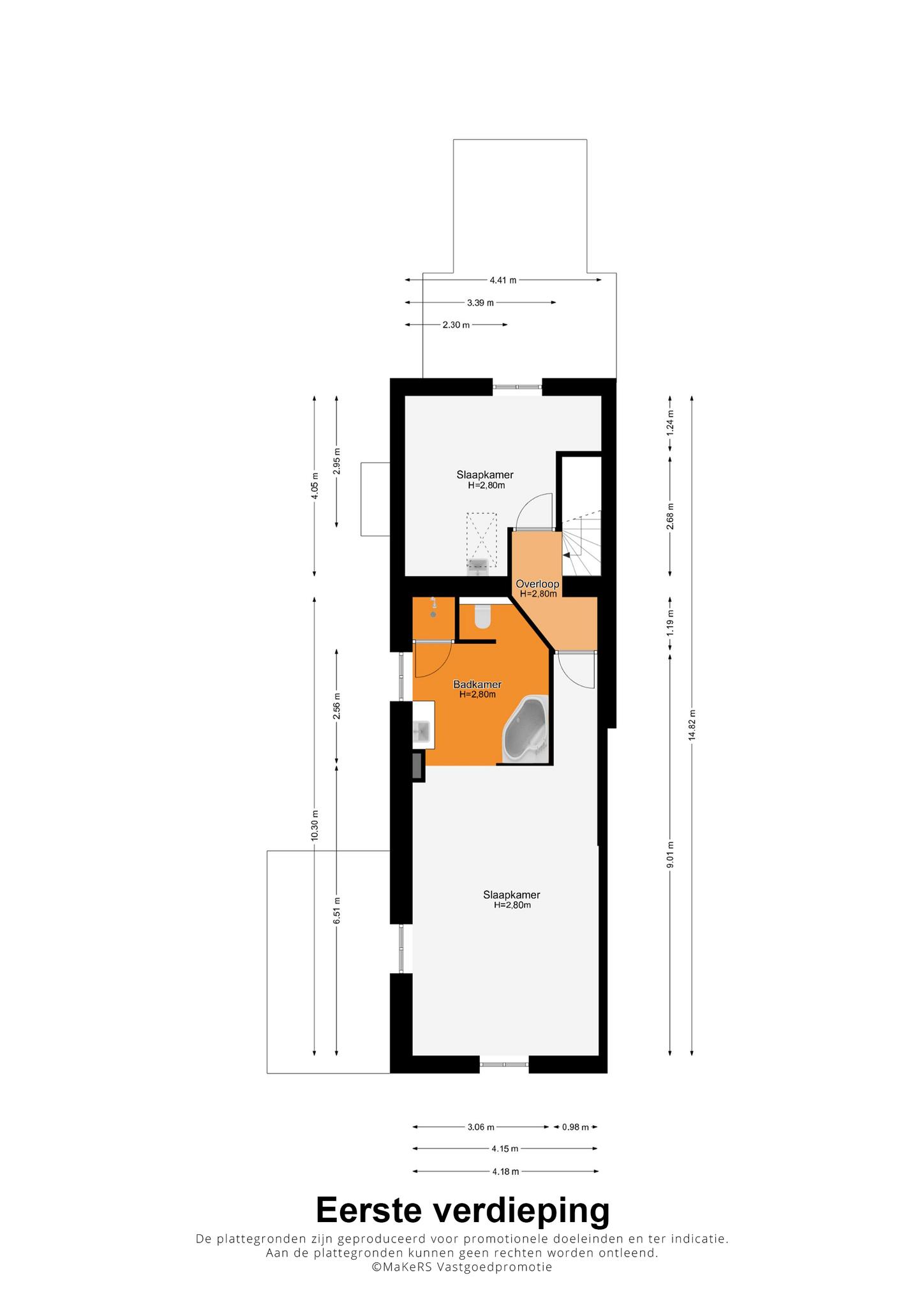
Eerste verdieping:
Vanaf de overloop loopt u eerst naar slaapkamer I (circa 13,7 m2), aan de achterzijde van deze fraaie woning. In deze kamer hangt een wastafel en er is een vlizotrap naar de bergzolder.
Aan de andere zijde van de overloop bereikt u, via een gang, slaapkamer II van circa 27 m2. Dit is een master bedroom van groot formaat, met genoeg ruimte voor een slaap- en een kleedgedeelte. De en-suite badkamer (circa 11 m2) is ingedeeld met een groot wastafelmeubel, een dubbele spiegelkast, inloop-regendouche, toilet en een hoekbad (whirlpool).
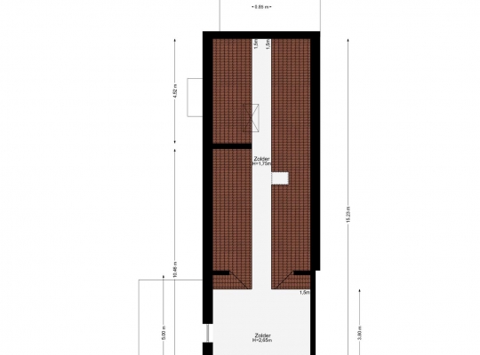
Zolder:
In de nok van de woning is een ruime bergzolder van circa 21 m2, met een nokhoogte van 1,75 meter (achterzijde) en 2,65 meter (straatzijde).
Algemeen:
Bouwjaar: 1867, gerenoveerd in 2009
Perceeloppervlakte: n.v.t.
Gebruiksoppervlakte wonen: circa 147 m2, inhoud circa 705 m3
Hardhouten kozijnen met HR++ glas
12 zonnepanelen op het dak (2020)
Airco-unit in de woonkamer (verwarmen/koelen)
Verwarming en warm water via een HR-ketel (Remeha, 2010, eigendom)
VvE bijdrage € 40,- per maand t.b.v. de parkeergarage en berging
Energielabel: C
Aanvaarding: in onderling overleg
Ter bescherming van de belangen van zowel koper als verkoper, wordt uitdrukkelijk gesteld dat een koopovereenkomst met betrekking tot deze onroerende zaak eerst dan tot stand komt nadat koper en verkoper de koopovereenkomst hebben getekend (“schriftelijkheidsvereiste”).
Indien er in de woning huurtoestellen aanwezig zijn zoals CV-ketel, boiler, zonnepanelen, mechanische ventilatie etc. dan dienen deze door de koper te worden overgenomen.
De termijn die wordt opgenomen voor eventuele (overeengekomen) ontbindende voorwaarden (bv. Financiering) is in de regel 4 tot 6 weken na het sluiten van de mondelinge wilsovereenkomst.
De waarborgsom/bankgarantie is 10% van de koopsom. De koper dient deze 3 dagen ná het vervallen van de ontbindende voorwaarden bij de desbetreffende notaris te deponeren.
Koper is te allen tijde gerechtigd voor eigen rekening een bouwkundige keuring te (laten) verrichten dan wel andere adviseurs te raadplegen teneinde een goed inzicht te verkrijgen over de staat van onderhoud.
Deze informatie is door ons, Tijs & Cyril Makelaardij met de nodige zorgvuldigheid samengesteld. Onzerzijds wordt echter geen enkele aansprakelijkheid aanvaard voor enige onvolledigheid, onjuist of anderszins, dan wel de gevolgen daarvan. Alle opgegeven maten en oppervlakten zijn indicatief. Van toepassing zijn de NVM voorwaarden.