Vraagprijs € 349.000,- k.k.
Lichte tweekapper met een ruime garage, oprit en 12 zonnepanelen.
Wat een fijne plek om te wonen! In Urmond, nabij Stein, Geleen en Sittard, staat deze 2-onder-1 kapwoning met 3 (mogelijk 4 slaapkamers, een badkamer met ligbad, een lichte keuken en een ruime woonkamer. Parkeren kan op de oprit en in de meer dan 10 meter lange garage, die ook vanuit de fraai aangelegde tuin te bereiken is. De kunststof kozijnen zijn voorzien van HR-glas en op het dak liggen 12 zonnepanelen, wat het instapklare huis een duurzaam karakter geeft.
Lichte tweekapper met een ruime garage, oprit en 12 zonnepanelen.
Wat een fijne plek om te wonen! In Urmond, nabij Stein, Geleen en Sittard, staat deze 2-onder-1 kapwoning met 3 (mogelijk 4 slaapkamers, een badkamer met ligbad, een lichte keuken en een ruime woonkamer. Parkeren kan op de oprit en in de meer dan 10 meter lange garage, die ook vanuit de fraai aangelegde tuin te bereiken is. De kunststof kozijnen zijn voorzien van HR-glas en op het dak liggen 12 zonnepanelen, wat het instapklare huis een duurzaam karakter geeft.
Typering:
U woont in de nabijheid van een supermarkt, basisschool en kinderopvang. Vlak om de hoek stopt de bus richting Stein, Geleen en Sittard. Stein is onder andere bekend vanwege het winkelcentrum, op nog geen drie kilometer fietsen. Aan de westkant van Urmond vindt u het Julianakanaal en prachtige natuur waar u kunt wandelen, hardlopen, fietsen en vissen. Verder heeft Urmond een uitstekende ligging ten opzichte van de A2, A76 en diverse uitvalswegen.
Indeling:
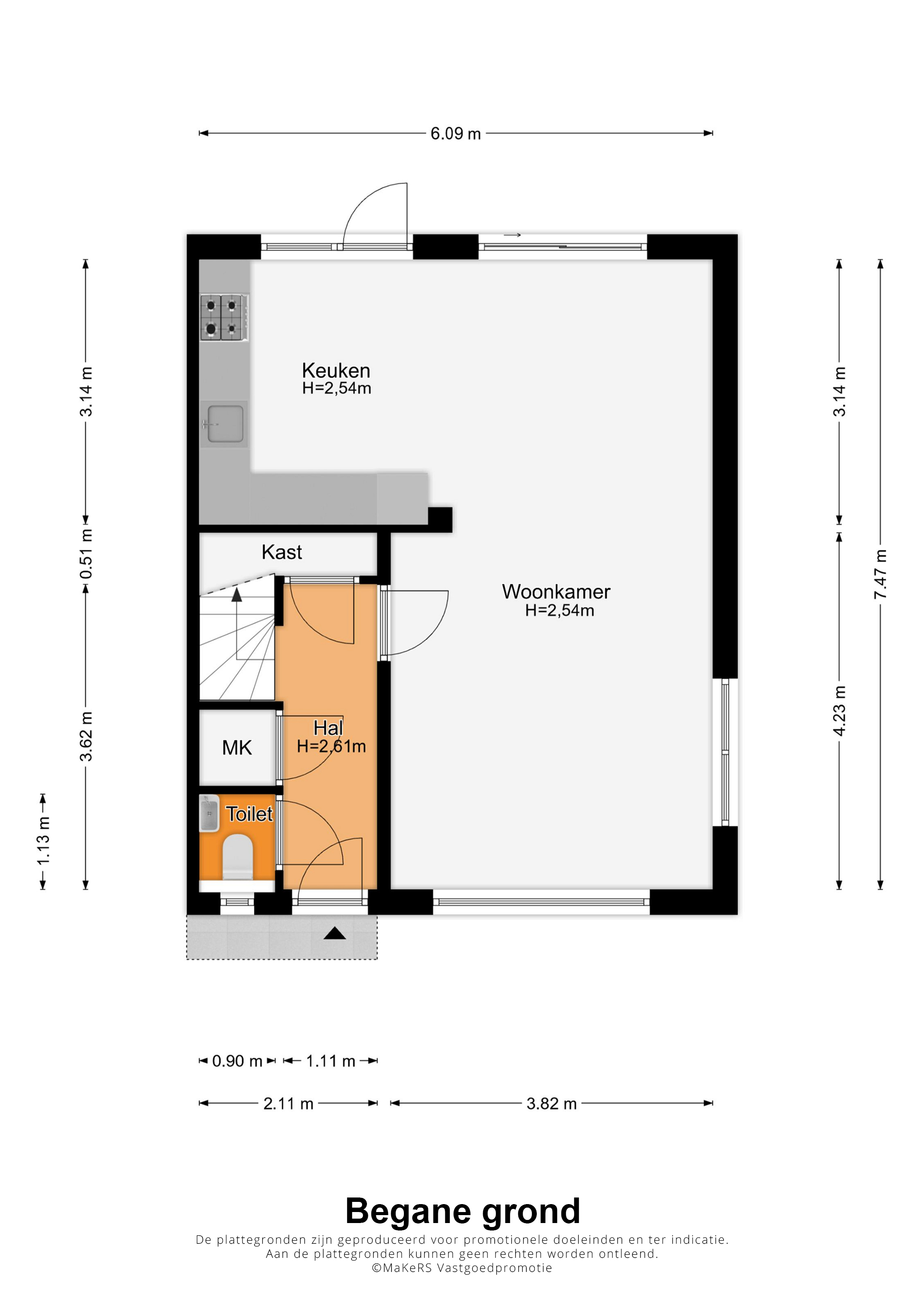
Begane grond:
Achter de donkergroene voordeur is de ruime hal die, net als de rest van de woning, smaakvol is verbouwd. U ziet de trapopgang met een bergkast, de meterkast en de toiletruimte met fonteintje. Aan het einde van de hal loopt u rechtsaf de woonkamer (circa 7,47 x 3,82) in. Het zitgedeelte is aan de voorzijde en het eetgedeelte aan de achterzijde, bij de schuifpui naar het terras in de achtertuin.
De open keuken (circa 3,14 x 2,11) is ingedeeld met een royale, lichte hoekopstelling. Vele lades en kasten bieden volop bergruimte en alle apparatuur is ingebouwd: een gaskookplaat, afzuigkap, heteluchtoven, koelkast met vriesvak en een vaatwasser.
Schuin achter de woning, aan het einde van de oprit, staat een zeer ruime garage (circa 10,68 x 2,99), waarvan het voorste deel is aangebouwd in 1981. Deze ruimte, met genoeg plaats voor de auto en fietsen, heeft een elektrische garagedeur/sectionaaldeur naar de oprit en een deur naar de tuin.
De achtertuin is ingedeeld met groen en twee terrassen, waardoor u de hele dag in de zon kunt zitten. Leibomen en een houten schutting zorgen voor privacy, en aan de kant van het woonhuis is een poort naar de oprit. Hier is ruimte voor minimaal twee auto’s. De lage boom in de voortuin zorgt ervoor dat er weinig inkijk in huis is.
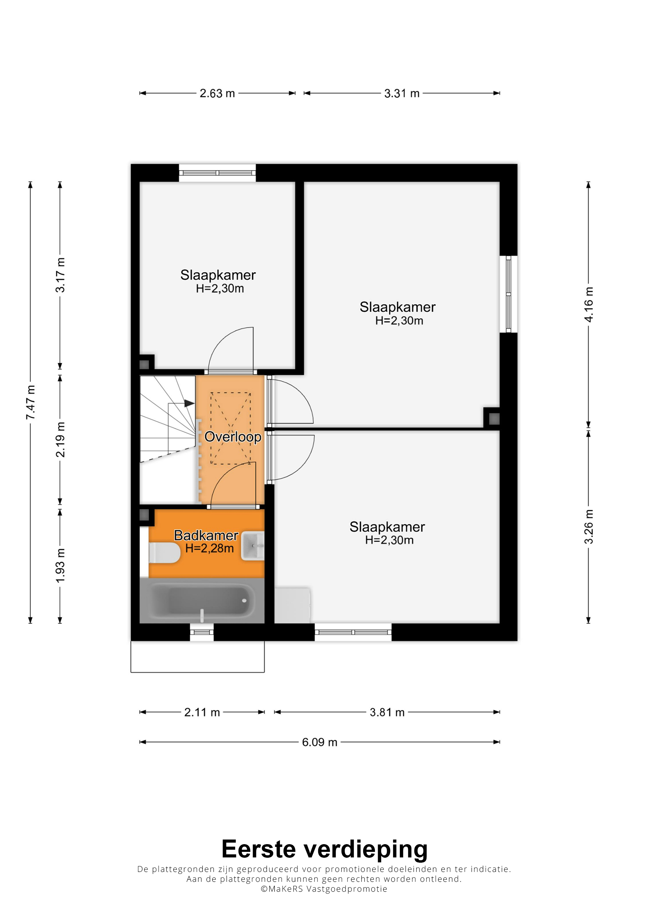
Eerste verdieping:
Slaapkamer I (circa 3,17 x 2,63) en slaapkamer II (circa 3,31 x 4,16) zijn aan de achterzijde. Een van deze kamers is ingericht als tweepersoonskamer, net als slaapkamer III (circa 3,26 x 3,81) die aan de voorzijde van de woning is. In alle kamers ziet u een mooie vloer, wand- en plafondafwerking.
De badkamer (circa 2,11 x 1,93) is ingedeeld met een ligbad/douche, een houten meubel met wastafel en een wandcloset. Het raam boven het bad zorgt voor veel lichtinval en de vloer is geheel betegeld, net als de muren bij het bad- en douchegedeelte en de wc. De overige muren zijn gestuct.
Zolder:
Vanaf de overloop heeft u toegang via de vlizotrap tot de ruime zolder met een nokhoogte van circa 3 meter, waar, vanwege de hoogte, het mogelijk is een extra slaapkamer te realiseren. Hier bevindt zich ook de opstelling van de HR-ketel (Remeha, 2022, eigendom) en de mechanische afzuiging van de badkamer/toiletruimte.
Algemeen:
Bouwjaar: 1977
Perceeloppervlakte: 229 m2
Gebruiksoppervlakte wonen: circa 91 m2, inhoud circa 410 m3
Verwarming en warm water via een HR-ketel (Remeha, 2022, eigendom)
Kunststof kozijnen met HR-glas en merendeels rolluiken
Drie (mogelijk vier) slaapkamers
Ruime garage en een oprit voor meerdere auto’s
12 zonnepanelen, geplaatst in 2021
Energielabel: A
Aanvaarding: in onderling overleg
Ter bescherming van de belangen van zowel koper als verkoper, wordt uitdrukkelijk gesteld dat een koopovereenkomst met betrekking tot deze onroerende zaak eerst dan tot stand komt nadat koper en verkoper de koopovereenkomst hebben getekend (“schriftelijkheidsvereiste”).
Indien er in de woning huurtoestellen aanwezig zijn zoals CV-ketel, boiler, zonnepanelen, mechanische ventilatie etc. dan dienen deze door de koper te worden overgenomen.
De termijn die wordt opgenomen voor eventuele (overeengekomen) ontbindende voorwaarden (bv. Financiering) is in de regel 4 tot 6 weken na het sluiten van de mondelinge wilsovereenkomst.
De waarborgsom/bankgarantie is 10% van de koopsom. De koper dient deze 3 dagen ná het vervallen van de ontbindende voorwaarden bij de desbetreffende notaris te deponeren.
Koper is te allen tijde gerechtigd voor eigen rekening een bouwkundige keuring te (laten) verrichten dan wel andere adviseurs te raadplegen teneinde een goed inzicht te verkrijgen over de staat van onderhoud.
Deze informatie is door ons, Tijs & Cyril Makelaardij met de nodige zorgvuldigheid samengesteld. Onzerzijds wordt echter geen enkele aansprakelijkheid aanvaard voor enige onvolledigheid, onjuist of anderszins, dan wel de gevolgen daarvan. Alle opgegeven maten en oppervlakten zijn indicatief. Van toepassing zijn de NVM voorwaarden.