Ruime, sfeervolle woning met een diepe garage en 3 slaapkamers. In het mooiste stuk van de straat, met groen voor de deur, staat deze 2-onder-1 kapwoning met een oprit voor 2 auto’s, een zeer ruime garage en een lichte aanbouw met sfeervolle eetkeuken. Boven zijn 3 slaapkamers met rolluiken, de badkamer met 2e toilet en een zolder waardoor dit huis aan veel wensen voldoet.
Ruime, sfeervolle woning met een diepe garage en 3 slaapkamers. In het mooiste stuk van de straat, met groen voor de deur, staat deze 2-onder-1 kapwoning met een oprit voor 2 auto’s, een zeer ruime garage en een lichte aanbouw met sfeervolle eetkeuken. Boven zijn 3 slaapkamers met rolluiken, de badkamer met 2e toilet en een zolder waardoor dit huis aan veel wensen voldoet.
Typering:
Ulestraten heeft diverse voorzieningen zoals een buurtsuper, basisschool, medisch centrum, bibliotheek en een goede busverbinding met het treinstation in Meerssen. Aan de noordkant van het dorp liggen de voetbalvelden, tennisbanen en het gebouw van de plaatselijke scouting. Ulestraten is centraal gelegen ten opzichte van de autosnelwegen naar bijvoorbeeld Eindhoven, Heerlen, Luik en Aken. Aan de zuidkant ligt het Vliekerbos, dat grenst aan het prachtige kasteel Vliek.
Begane grond:
Vanaf de rustige straat ziet u de mooie voortuin, de oprit met garage en de buitentrap naar de voordeur. In de hal zijn de meterkast, de toiletruimte met fonteintje en de trap naar de eerste verdieping. De donkere tegelvloer in de hal en toiletruimte, met tegels in groot formaat, is uitgevoerd in een fraaie kleurstelling.
De hal staat in verbinding met een portaal, met de woonkamer een de rechterzijde. Aan de linkerzijde zijn een bergkast en een berging/wasruimte, waar ook de HR-ketel (Intergas, 2020, eigendom) hangt. De laminaatvloer in een mooie houtvloer ligt ook in de woonkamer en eetkeuken.
Blikvanger in de woonkamer (circa 6,49 x 3,91) is de kwartronde schouw, waar nu een gelhaard is geplaatst. Omdat de eettafel in de aanbouw staat, kan de woonkamer geheel als zitkamer worden ingericht.
Een brede doorgang verbindt de woonkamer met de eetkeuken (circa 6,07 x 3,00), met mooi uitzicht naar de tuin. In de keuken kan een grote eettafel staat en de moderne keukenopstelling is in 2012 geplaatst. Aan bergruimte is geen gebrek en de keuken is ingedeeld met een 5-pits gaskookplaat, afzuigkap, vaatwasser, combi-oven en een koelkast.
Links van de keuken is de diepe garage van circa 8,66 meter x 2,95/2,55 meter. Met een oppervlakte van circa 23 m2 is dit een perfecte ruimte voor de fietsen, auto en een werkbank met gereedschap. Aan de voorzijde, naar de oprit voor twee auto’s, is een elektrisch bedienbare sectionaalpoort geplaatst.
Vanuit de eetkeuken heeft u toegang tot de diepe achtertuin op het noordoosten. Op het niveau van de keuken is een groot terras gemaakt, die via een brede trap in verbinding met het tweede deel van de tuin staat. Zo is er gedurende een groot deel van de dag een plekje in de zon en kunnen kinderen in eigen tuin spelen.
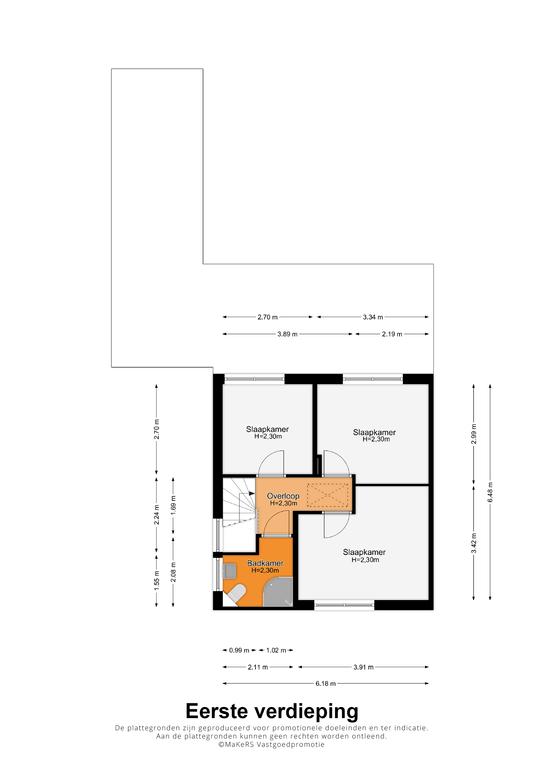
1e verdieping:
Deze verdieping wordt gekenmerkt door een optimale indeling, veel lichtinval en een goede afwerking. Op de overloop en in de slaapkamers ligt laminaat en de slaapkamers zijn voorzien van draai-/kiepramen met dubbel glas en rolluiken. Op de overloop hangt een airco-unit, die kan koelen en verwarmen.
Aan de voorzijde is slaapkamer I (circa 12 m2) en aan de achterzijde zijn slaapkamer II (circa 9 m2) en slaapkamer III (circa 7,3 m2). In de kamers aan de achterzijde, in gebruik als kinderkamer, is een radiatorombouw met brede vensterbank gemaakt.
De badkamer (circa 3,8 m2) is ingedeeld met een wastafelmeubel, wandcloset, zwarte wandradiator en een ruime douche met zitje en wandstralen. Het raam zorgt voor lichtinval en een goede mogelijkheid tot ventilatie.
Zolder:
Op de overloop is een luik met vlizotrap naar de bergzolder met een vloeroppervlakte van circa 6,48 x 6,16 meter. De zolder bestaat, die uit twee delen bestaat, is voorzien van dakisolatie.
Algemeen:
Bouwjaar: 1967
Woonoppervlakte: circa 101 m2, inhoud: circa 476 m3
Dak-, vloer- en gevel-/spouwmuurisolatie
Grotendeels kunststof kozijnen met dubbel glas
Rolluiken op de begane grond en eerste verdieping
Airco-unit (koelen en verwarmen) op de eerste verdieping
Verwarming en warm water via een HR-ketel (Intergas, 2020, eigendom)
Garage en een oprit voor twee auto’s
Grote uitbouw aan de achterzijde
Energielabel: C
Asbest: dakbeschot garage
Olietank: nee
Aanvaarding: in onderling overleg
Ter bescherming van de belangen van zowel koper als verkoper, wordt uitdrukkelijk gesteld dat een koopovereenkomst met betrekking tot deze onroerende zaak eerst dan tot stand komt nadat koper en verkoper de koopovereenkomst hebben getekend (“schriftelijkheidsvereiste”).
Indien er in de woning huurtoestellen aanwezig zijn zoals CV-ketel, boiler, zonnepanelen, mechanische ventilatie etc. dan dienen deze door de koper te worden overgenomen.
De termijn die wordt opgenomen voor eventuele (overeengekomen) ontbindende voorwaarden (bv. Financiering) is in de regel 4 tot 6 weken na het sluiten van de mondelinge wilsovereenkomst.
De waarborgsom/bankgarantie is 10% van de koopsom. De koper dient deze 3 dagen ná het vervallen van de ontbindende voorwaarden bij de desbetreffende notaris te deponeren.
Koper is te allen tijde gerechtigd voor eigen rekening een bouwkundige keuring te (laten) verrichten dan wel andere adviseurs te raadplegen teneinde een goed inzicht te verkrijgen over de staat van onderhoud.
Deze informatie is door ons, Tijs & Cyril Makelaardij met de nodige zorgvuldigheid samengesteld. Onzerzijds wordt echter geen enkele aansprakelijkheid aanvaard voor enige onvolledigheid, onjuist of anderszins, dan wel de gevolgen daarvan. Alle opgegeven maten en oppervlakten zijn indicatief. Van toepassing zijn de NVM voorwaarden.