Vrijstaand wonen net buiten Maastricht en Meerssen, met alle denkbare luxe en ruimte. Aan de rand van Ulestraten staat deze uitgebouwde vrijstaande woning, die veel ruimte biedt. Zo heeft het woonhuis 4 slaapkamers, een extra slaap-/werkkamer op de 2e verdieping en een heerlijk ruime woonkamer. Ruimte en luxe zijn volop aanwezig, net als een zeer hoog afwerkingsniveau. Achter de dubbele poort is de zeer diepe achtertuin met een mancave, grote schuur, een jacuzzi en genoeg plek voor een eigen voetbalveld. Verbouwen hoeft niet, dus u kunt als snel verhuizen en inrichten!
Vrijstaand wonen net buiten Maastricht en Meerssen, met alle denkbare luxe en ruimte. Aan de rand van Ulestraten staat deze uitgebouwde vrijstaande woning, die veel ruimte biedt. Zo heeft het woonhuis 4 slaapkamers, een extra slaap-/werkkamer op de 2e verdieping en een heerlijk ruime woonkamer. Ruimte en luxe zijn volop aanwezig, net als een zeer hoog afwerkingsniveau. Achter de dubbele poort is de zeer diepe achtertuin met een mancave, grote schuur, een jacuzzi en genoeg plek voor een eigen voetbalveld. Verbouwen hoeft niet, dus u kunt als snel verhuizen en inrichten!
Typering:
Dit fantastische huis staat aan de rand van het dorp, met vrij uitzicht. Ulestraten heeft diverse voorzieningen zoals een buurtsuper, basisschool, medisch centrum, bibliotheek en een goede busverbinding met het treinstation in Meerssen. Ook voor sport (o.a. voetbal en tennis) en scouting kunt u terecht in het dorp. Ulestraten is centraal gelegen ten opzichte van de autosnelwegen naar bijvoorbeeld Eindhoven, Heerlen, Luik en Aken.
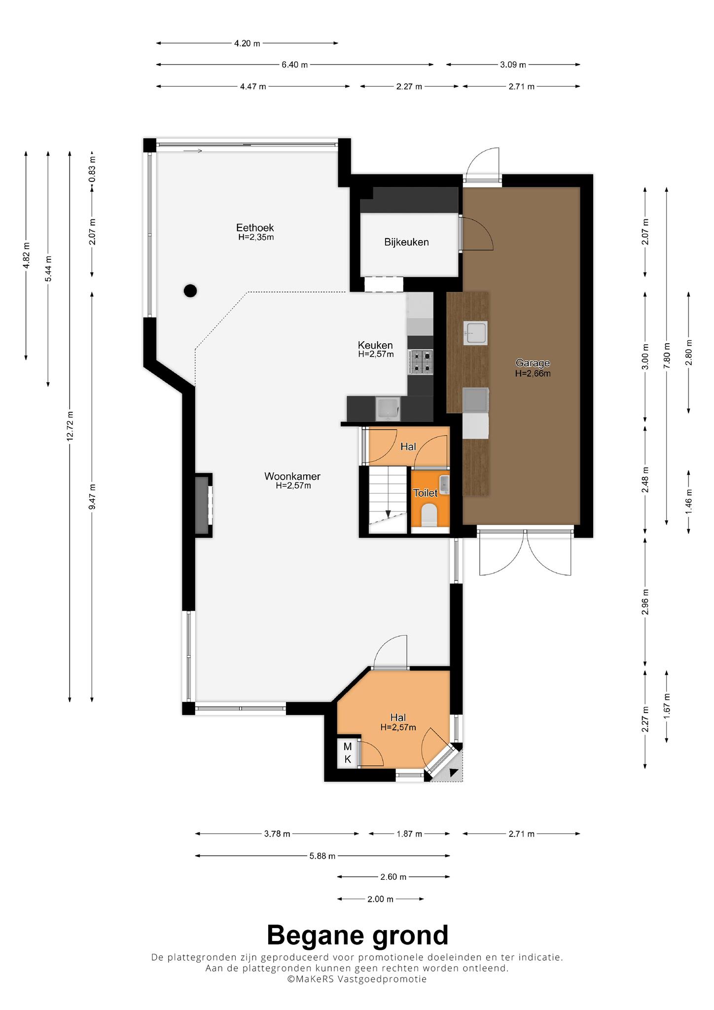
Begane grond:
De brede voortuin is voor een groot deel bestraat, waardoor er ruime parkeergelegenheid op eigen terrein is. Niet alleen voor de auto, maar ook voor een grote bedrijfsbus, caravan, camper of een aanhanger.
Aan de voorzijde, in de aanbouw, is de entree van deze uitstekend onderhouden woning. Links in de hal (circa 2,60 x 2,27) is de meterkast en op de vloer ligt, net als op een groot deel van de begane grond, een fraaie pvc visgraatvloer (2024).
Vanuit de hal is de speels ingedeelde, lichte woon-/eetkamer (circa 60 m2) te bereiken. Het zitgedeelte is aan de voorzijde en aan de tuinzijde, bij de schuifpui, is plek voor een grote eettafel. Fraaie elementen zijn de vloer, het stucwerk, de inbouwverlichting en de gashaard.
Rechts in de woonkamer is een portaal, met de luxe toiletruimte en de trap naar de eerste verdieping.
De woonkamer staat in open verbinding met de keuken (circa 3,00 x 2,60). Hier staat een moderne, lichte hoekopstelling met een aanrechtblad en achterwand van zwart graniet. De gaskookplaat, afzuigkap, oven, vaatwasser en koelkast zijn ingebouwd. In het verlengde van de keuken is de bijkeuken (circa 2,27 x 2,07), met een deur naar de garage (circa 7,80 x 2,71). Deze ruimte heeft, net als het woonhuis, een uitstekende afwerking. Onder het werkblad met spoelbak is ruimte voor de wasapparatuur en de kasten bieden, net als de planken, veel bergruimte.
Twee houten garagedeuren geven toegang tot het rechterdeel van de oprit. Aan de andere zijde van de woning is de tweede oprit, met parkeergelegenheid voor en achter de poort. Als u verder loopt, dan bereikt u de zeer royale tuin met een groot terras, met berging en een heerlijke jacuzzi. Naast het gazon is een mancave met overdekt terras (totaal circa 5,11 x 3,81) gebouwd en de ronde vuurplaats met zitgelegenheid is een fijne plek voor jong en oud.
De grote houten schuur(circa 8,74 x 4,74) is perfect voor de hobbyist, ondernemer en de auto-/motorliefhebber. Aan de achterzijde van de schuur is een overkapping gebouwd. Hier ziet u ook het tweede deel van de tuin met een speeltoestel en genoeg plek voor een eigen voetbalveld.
Eerste verdieping:
Volg de fraaie trap naar de eerste verdieping, waar maar liefst vier slaapkamers en de badkamer zijn. Aan de voorzijde zijn slaapkamer I (circa 4,89 x 2,90) en slaapkamer II (circa 3,77 x 2,88) die, net als slaapkamer III (circa 4,50 x 3,70/2,90) aan de achterzijde, als kinderkamer in gebruik is. Boven de garage is slaapkamer IV (circa 6,70 x 2,68) met een dakkapel en een berging met schuifdeuren.
De badkamer (circa 5,38 x 2,03) met dakkapel is ingedeeld met een ligbad, ruime douche, een toilet en twee wastafelmeubels. Deze zijn in 2025 geplaatst, goed passend bij de rest van de badkamer.
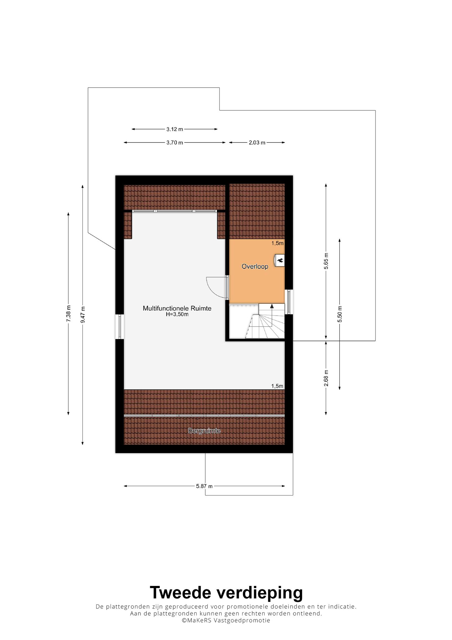
Tweede verdieping:
Een vaste trap geeft toegang tot een grote, multifunctionele ruimte van circa 30 m2 met een brede dakkapel, een zijraam en een hoge nok. In de schuinte van het dak, over de hele breedte, is een berging gemaakt en op de overloop is de opstelling van de HR-ketel (Vaillant Eco Tec, 2015, huur).
Algemeen:
Bouwjaar: 1997
Woonoppervlakte: circa 197 m2, inhoud: circa 770 m3
Dak- en spouwmuurisolatie
Parkeergelegenheid op eigen terrein
Verwarming en warm water via een HR-ketel (Vaillant Eco Tec, 2015, huur)
Vloerverwarming (gedeeltelijk) op begane grond
Hardhouten en kunststof kozijnen met dubbele beglazing
Schilderwerk van kozijnen (aan de buitenzijde) is in 2024 uitgevoerd
18 zonnepanelen van 320 Wp
Energielabel: A
Aanvaarding: 1 september 2025
Ter bescherming van de belangen van zowel koper als verkoper, wordt uitdrukkelijk gesteld dat een koopovereenkomst met betrekking tot deze onroerende zaak eerst dan tot stand komt nadat koper en verkoper de koopovereenkomst hebben getekend (“schriftelijkheidsvereiste”).
Indien er in de woning huurtoestellen aanwezig zijn zoals CV-ketel, boiler, zonnepanelen, mechanische ventilatie etc. dan dienen deze door de koper te worden overgenomen.
De termijn die wordt opgenomen voor eventuele (overeengekomen) ontbindende voorwaarden (bv. Financiering) is in de regel 4 tot 6 weken na het sluiten van de mondelinge wilsovereenkomst.
De waarborgsom/bankgarantie is 10% van de koopsom. De koper dient deze 3 dagen ná het vervallen van de ontbindende voorwaarden bij de desbetreffende notaris te deponeren.
Koper is te allen tijde gerechtigd voor eigen rekening een bouwkundige keuring te (laten) verrichten dan wel andere adviseurs te raadplegen teneinde een goed inzicht te verkrijgen over de staat van onderhoud.
Deze informatie is door ons, Tijs & Cyril Makelaardij met de nodige zorgvuldigheid samengesteld. Onzerzijds wordt echter geen enkele aansprakelijkheid aanvaard voor enige onvolledigheid, onjuist of anderszins, dan wel de gevolgen daarvan. Alle opgegeven maten en oppervlakten zijn indicatief. Van toepassing zijn de NVM voorwaarden.