Gelijkvloers wonen in Susteren in deze bungalow met 3 slaapkamers. De tuin met twee terrassen heeft een goede zonligging en biedt veel privacy. Aan het einde van de oprit staat een garage met berging van totaal ca. 35 m2.
Gelijkvloers wonen in Susteren in deze bungalow met 3 slaapkamers. De tuin met twee terrassen heeft een goede zonligging en biedt veel privacy. Aan het einde van de oprit staat een garage met berging van totaal ca. 35 m2.
Typering:
De bungalow is gesitueerd op een rustige plek in Susteren (Limburgs: Zöstere), op loopafstand van het centrum met diverse restaurants, winkels en een supermarkt. Het stadje heeft twee basisscholen, een treinstation en ook voor diverse sporten kunt u terecht in Susteren. De N276 en N298 zorgt voor goede verbindingen met Echt, Sittard en de snelweg A2. Het stadje van bijna 8.000 inwoners wordt omringd door prachtige natuur zoals het IJzerenbos, ’t Hout, het Taterbos en het Keurbos.
INDELING:
Begane grond:
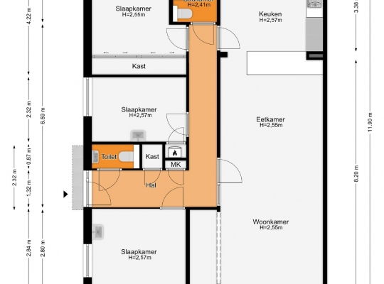
Aan de linkerzijde, bij de oprit, is de entree van deze gelijkvloerse bungalow. Aan de L-vormige hal grenzen onder andere de meterkast, een garderobekast en de toiletruimte met fonteintje. Een van de klassieke paneeldeuren is voorzien van glas in lood, uitgevoerd in zachte kleuren.
De woon-/eetkamer (ca. 8,20 x 4,80/3,70) met parketvloer staat in halfopen verbinding met de keuken (ca. 3,38 x 3,70). Het resultaat is een lichte, sfeervolle leefruimte van ca. 47 m2 met uitzicht naar de voor- en achtertuin. In de keuken staat een lichte hoekopstelling (1995) met een gaskookplaat, afzuigkap, vaatwasser, koelkast en een combimagnetron.
Het linkerdeel van de bungalow is ingedeeld met drie slaapkamers en de badkamer. Slaapkamer I (ca. 3,38 x 2,84) met wastafel bevindt zicht aan de voorzijde en slaapkamer II (ca. 3,40 x 2,32) grenst aan de oprit. Slaapkamer III (ca. 3,40/2,78 x 4,22) met vaste kastenwand aan de achterzijde is ingericht als hoofdslaapkamer. De badkamer (ca. 2,32 x 1,58) is ingedeeld met een bad/douchecombinatie, wastafelmeubel, spiegelkast, handdoekenradiator en een wandcloset.
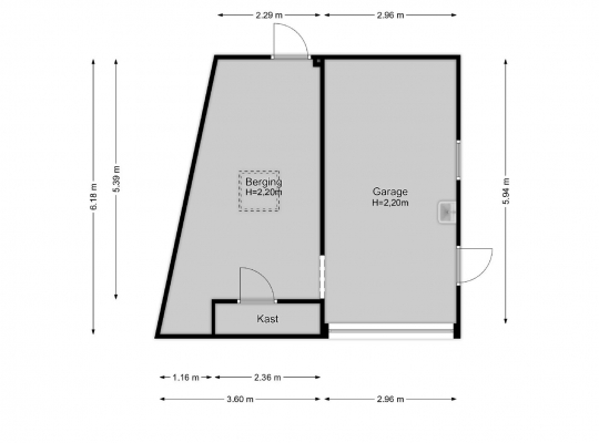
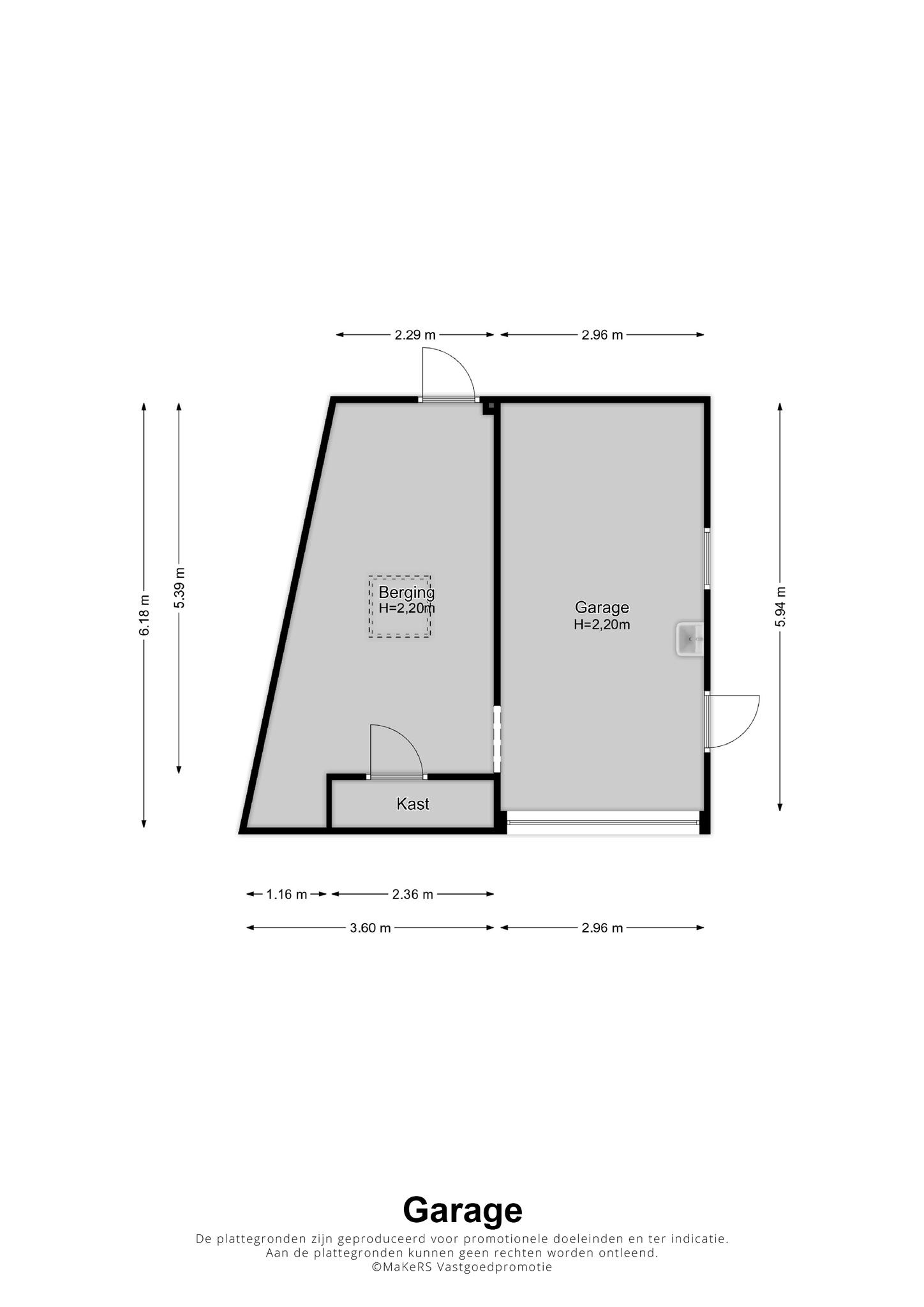
Rondom de bungalow ligt een mooi aangelegde tuin, waarbij de achtertuin op het westen gesitueerd is. Op de diepe oprit is parkeergelegenheid voor meerdere auto’s en in de achtertuin ervaart u veel privacy. Het terras aan de linkerzijde, bij de oprit, is gesitueerd op het zuiden en het grote terras aan de achterzijde op het westen. De garage (ca. 17,5 m2) en berging/hobbyruimte (ca. 18,2 m2) bieden ruimte aan de auto, motor, fietsen en het tuin-/klusgereedschap.
Algemeen:
Bouwjaar: 1971, gerenoveerd in 1995
Gebruiksoppervlakte wonen: circa 99 m2, inhoud circa 357 m3
Verwarming en warm water via een HR-ketel (Nefit, 2015, huur)
Hardhouten kozijnen, deels voorzien van isolatieglas
Gelijkvloerse bungalow met een ruime garage/berging
Ruime parkeergelegenheid op eigen terrein
Energielabel: D
Ter bescherming van de belangen van zowel koper als verkoper, wordt uitdrukkelijk gesteld dat een koopovereenkomst met betrekking tot deze onroerende zaak eerst dan tot stand komt nadat koper en verkoper de koopovereenkomst hebben getekend (“schriftelijkheidsvereiste”).
Indien er in de woning huurtoestellen aanwezig zijn zoals CV-ketel, boiler, zonnepanelen, mechanische ventilatie etc. dan dienen deze door de koper te worden overgenomen.
De termijn die wordt opgenomen voor eventuele (overeengekomen) ontbindende voorwaarden (bv. Financiering) is in de regel 4 tot 6 weken na het sluiten van de mondelinge wilsovereenkomst.
De waarborgsom/bankgarantie is 10% van de koopsom. De koper dient deze 3 dagen ná het vervallen van de ontbindende voorwaarden bij de desbetreffende notaris te deponeren.
Koper is te allen tijde gerechtigd voor eigen rekening een bouwkundige keuring te (laten) verrichten dan wel andere adviseurs te raadplegen teneinde een goed inzicht te verkrijgen over de staat van onderhoud.
Deze informatie is door ons, Tijs & Cyril Makelaardij met de nodige zorgvuldigheid samengesteld. Onzerzijds wordt echter geen enkele aansprakelijkheid aanvaard voor enige onvolledigheid, onjuist of anderszins, dan wel de gevolgen daarvan. Alle opgegeven maten en oppervlakten zijn indicatief. Van toepassing zijn de NVM voorwaarden.