Vraagprijs € 395.000,- k.k.
Ruime tweekapper met garage, 4 slaapkamers in het populaire Europapark
Ruime tweekapper met garage, 4 slaapkamers in het populaire Europapark
Aan de oostkant van Sittard, op minder dan 2 kilometer fietsen van hartje Sittard, staat deze 2-onder-1 kapwoning met een garage, ruime oprit en een brede tuin op het zuiden. De woning heeft energielabel B, een lichte woonkamer met parketvloer, 2 toiletruimtes en een nette badkamer met bad én douche. Een groot pluspunt is de ligging: in een straat zonder doorgaand verkeer en met groen aan de achterzijde.
Typering:
Er is veel openbaar groen met wandelpaden in de buurt en aan het Cornwallplein is een speeltuin voor de buurtkinderen. Aan de overzijde van de Wehrerweg, ter hoogte van de bushalte, zijn een supermarkt, bakker, drogist, basisschool en bso. Het nabijgelegen buitengebied, onder andere richting Tüddern en de Kollenberg, nodigt uit om te gaan wandelen en hardlopen.
Begane grond:
Vlak naast de garage is de entree van deze goed ingedeelde woning. In de hal, die uit twee delen bestaat, zijn de toiletruimte met fonteintje en de hardhouten trap naar de eerste verdieping. De parketvloer met klassiek blokmotief ligt niet alleen in de hal, maar ook in de woonkamer.
Dankzij de L-vorm is de woonkamer (circa 36 m2) goed in te delen met een ruime zithoek, de eettafel en de rest van uw interieur. Openslaande deuren geven toegang tot de tuin en het eetgedeelte staat in open verbinding met de keuken. De grijze hoekopstelling heeft een ingebouwde inductie kookplaat, afzuigkap en een koelkast.
Vanuit de keuken is er toegang tot de verwarmde bijkeuken (circa 2,09 x 2,41). Hier is plek voor de wasmachine, droger en vaatwasser. De inpandig te bereiken garage (circa 6,65 x 2,68) heeft een elektrisch bedienbare kantelpoort naar de oprit en een deur naar de achtertuin. De garage is niet alleen voorzien van elektra, er is ook water.
De voortuin met extra brede oprit is, net als de achtertuin, heel onderhoudsvriendelijk aangelegd. In de brede achtertuin ziet u bodembedekkers, een groenblijvende klimop, een zonneterras en een overdekt terras. De vrije ligging aan de achterzijde, met veel groen in het zicht, maakt de tuin tot een aantrekkelijke buitenruimte.
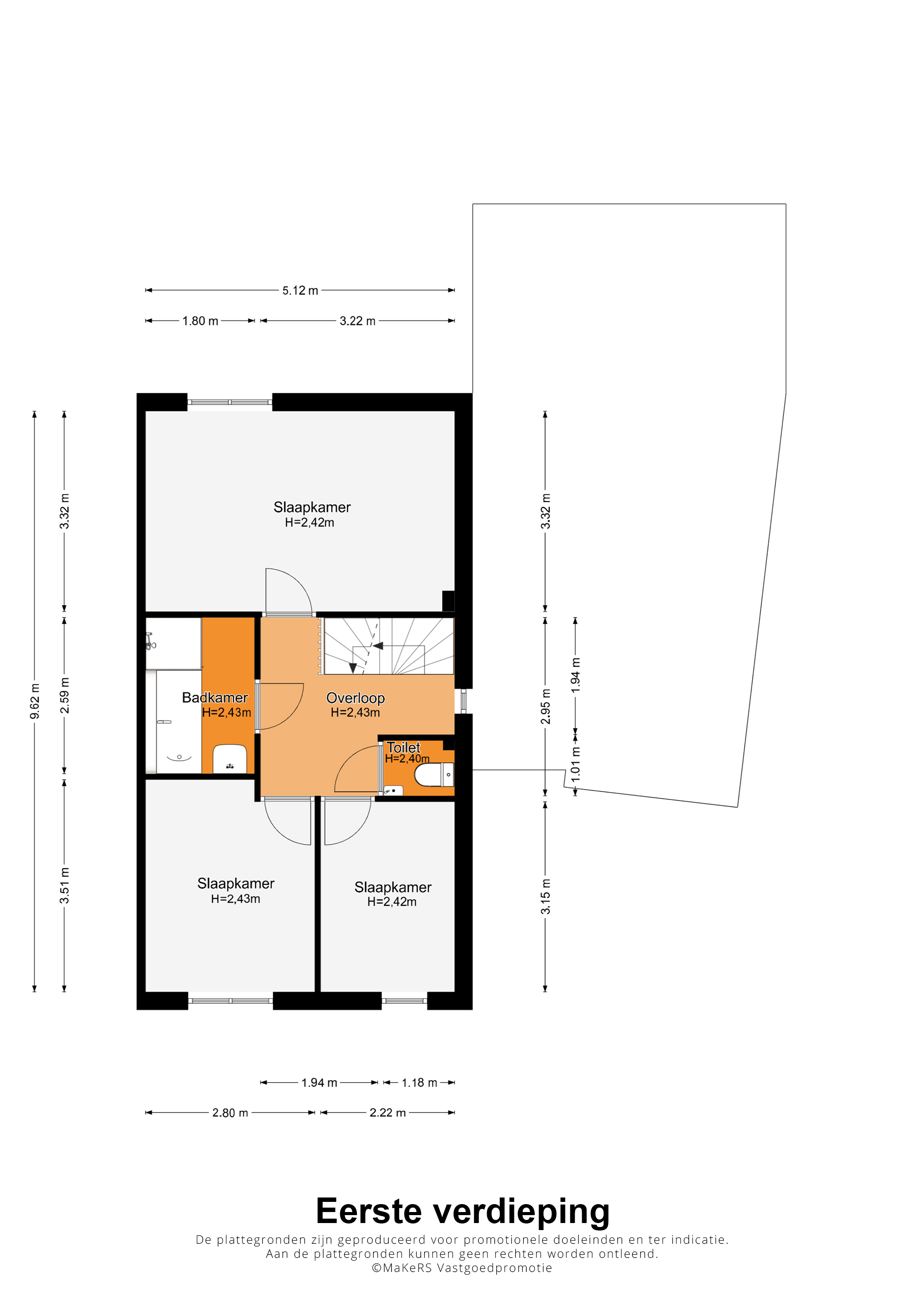
Eerste verdieping:
Het raam in de zijgevel zorgt voor veel lichtinval op de overloop. Vanaf hier is er toegang tot drie slaapkamers, de badkamer en een aparte toiletruimte. Aan de achterzijde is slaapkamer I (circa 5,12 x 3,32), in gebruik als master bedroom. In deze kamer hangt een airco-unit met koelfunctie. Slaapkamer II (circa 3,51/3,15 x 2,80) en slaapkamer III (circa 3,15 x 2,22) zijn aan de voorzijde. De laminaatvloer in een mooie houtkleur ligt op bijna de hele verdieping.
De badkamer (circa 2,59 x 1,80) is, net als de toiletruimte, uitgevoerd in een lichte kleur. Naast een bad is er ook een douche in de badkamer, net als een wastafel met planchet en spiegelkast.
Tweede verdieping:
Onder het schuine, geïsoleerde dak zijn een overloop/berging, een ruimte met de HR-ketel (Intergas, 2013, eigendom) en slaapkamer IV. Deze kamer (circa 5,55 x 2,84) heeft veel lichtinval vanaf de zuidkant. Het dakterras (circa 5,12 x 1,86) is eveneens op het zonnige zuiden.
Algemeen:
Bouwjaar: 1996
Perceeloppervlakte: 235 m2
Gebruiksoppervlakte wonen: circa 132 m2, inhoud: circa 519 m3
Verwarming en warm water via een HR-ketel (Intergas, 2013, eigendom)
Airco (alleen koelen) in de master bedroom
Hardhouten kozijnen met isolatieglas
Vier slaapkamers, waarvan een op de tweede verdieping
Garage met ruime oprit
Energielabel: B
Aanvaarding: in onderling overleg
Ter bescherming van de belangen van zowel koper als verkoper, wordt uitdrukkelijk gesteld dat een koopovereenkomst met betrekking tot deze onroerende zaak eerst dan tot stand komt nadat koper en verkoper de koopovereenkomst hebben getekend (“schriftelijkheidsvereiste”).
De termijn die wordt opgenomen voor eventuele (overeengekomen) ontbindende voorwaarden (bv. Financiering) is in de regel 4 tot 6 weken na het sluiten van de mondelinge wilsovereenkomst.
De waarborgsom/bankgarantie is 10% van de koopsom. De koper dient deze 3 dagen ná het vervallen van de ontbindende voorwaarden bij de desbetreffende notaris te deponeren. Koper is te allen tijde gerechtigd voor eigen rekening een bouwkundige keuring te (laten) verrichten dan wel andere adviseurs te raadplegen teneinde een goed inzicht te verkrijgen over de staat van onderhoud.
Deze informatie is door ons Tijs & Cyril Makelaardij met de nodige zorgvuldigheid samengesteld.
Onzerzijds wordt echter geen enkele aansprakelijkheid aanvaard voor enige onvolledigheid, onjuist of anderszins, dan wel de gevolgen daarvan. Alle opgegeven maten en oppervlakten zijn indicatief. Van toepassing zijn de NVM voorwaarden.