Vraagprijs € 399.800,- k.k.
Gelijkvloers 3-kamerappartement in Hoogveld met een balkon en energielabel A+.
Gelijkvloers 3-kamerappartement in Hoogveld met een balkon en energielabel A+.
Tevens kunt u hier wonen met zorg op maat.
In de duurzame wijk Hoogveld, op circa 2 kilometer fietsen van het centrum en het treinstation, met alle dagelijkse voorzieningen en een winkelcentrum op slechts 600 meter afstand, staan aan de Smithlaan twee stijlvolle appartementengebouwen genaamd Springfield en Greenpark. Hier krijgt u de kans om de eigenaar te worden van dit fraaie appartement met 2 slaapkamers en een ruim balkon. Bij het appartement hoort een berging op de begane grond en voor uw auto is er plek op het naastgelegen parkeerterrein.
Typering:
U woont op slechts 600 meter van een winkelcentrum, een huisartsenpraktijk, diverse sportverenigingen en een park waar u kunt wandelen. Aan de Limbrichterweg stopt de bus, richting het treinstation en het centrum. Met de fiets kan ook; het is een afstand van nog geen 2 kilometer. Via de N276 bent u in no-time bij het ziekenhuis en verschillende uitvalswegen, richting de A2 en A76.
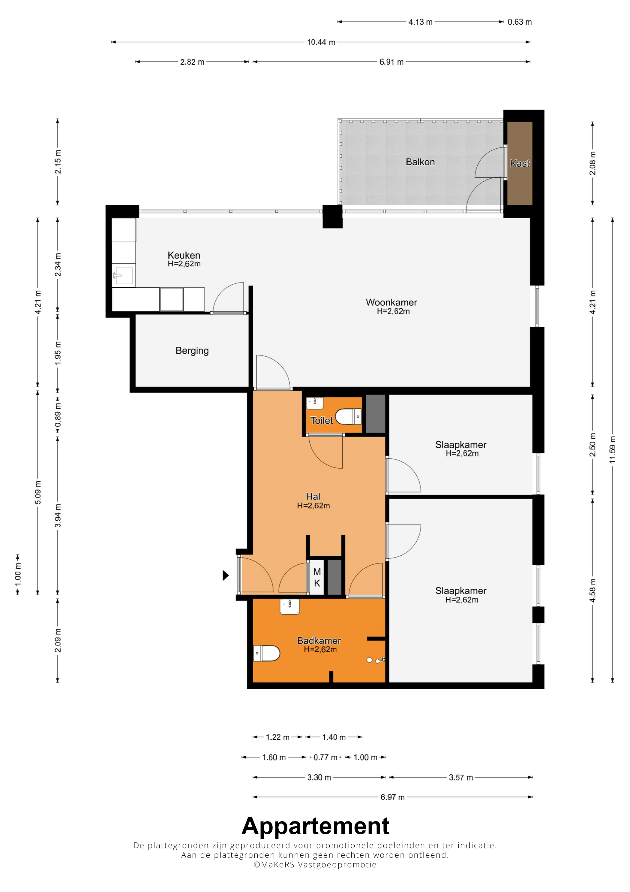
Begane grond:
Bij de centrale entree zijn de brievenbussen, het bellentableau en de video-intercom. Eenmaal binnen kunt u met de trap of lift naar het appartement, gesitueerd op de tweede verdieping. Bij het appartement hoort een privéberging van circa 1,95 x 1,75 meter. Vlak naast het gebouw is een parkeerterrein, aan de straatzijde afgesloten met een slagboom.
2e verdieping:
Of u nu met de trap of lift naar boven bent gegaan, de voordeur van dit gelijkvloerse appartement is binnen handbereik. In de ruime hal zijn de meterkast, een nis voor een kapstok en de toiletruimte met fonteintje. De mooie laminaatvloer ligt niet alleen in de hal, maar in bijna het hele appartement.
De woonkamer (circa 6,91 x 4,21) is een goed in te delen leefruimte met lichtinval vanaf twee kanten. Voor een royale zithoek, een tv-meubel en de eettafel is genoeg plek. In de keuken (circa 2,82 x 2,34) staat een hoekopstelling met een kookplaat, afzuigkap, combimagnetron, vaatwasser en een koelkast. Naast de keuken is een berging/provisieruimte (circa 2,82 x 1,95) met de verwarmings- en ventilatie unit.
Vanuit de hal heeft u toegang tot twee slaapkamers. Slaapkamer I (circa 4,58 x 3,57) is de ruime master bedroom en slaapkamer II (circa 3,57 x 2,50) is goed in te delen met een bed, bureau en een (garderobe)kast. De badkamer (circa 3,30 x 2,09) is ingedeeld met een inloopdouche, een wastafel met spiegel en planchet, een handdoekenradiator en een tweede toilet.
Het balkon (circa 4,13 x 2,08) met bergkast is een fijne plek om buiten te zitten. Het uitzicht is fraai, onder andere naar de rustige straat met veel groen.
Wonen in Greenpark en Springfield – comfortabel, zelfstandig én met zorg dichtbij
Ontdek het gemak van wonen in Greenpark en Springfield: moderne appartementen met alle vrijheid van zelfstandig wonen, én de rust van zorg en ondersteuning binnen handbereik. De complexen liggen direct naast zorgcentrum Hoogstaete en staan via een interne gang in verbinding met het zorgcentrum, zodat zorg en faciliteiten altijd dichtbij zijn.
In Hoogstaete vindt u onder meer het Huis van de Wijk, waar regelmatig activiteiten worden georganiseerd en waar bewoners elkaar ontmoeten. Ook kunt u genieten van een warme maaltijd of iets van de kleine kaart in het gezellige restaurant van het zorgcentrum.
Beschikt u over een indicatie vanuit de Wmo of de Wet langdurige zorg (Wlz), dan kunt u bovendien één of meerdere dagen per week deelnemen aan de dagbesteding van Hoogstaete. Hier wordt invulling gegeven aan een zinvolle dag met aandacht voor welzijn, ontmoeting en plezier.
Voor wie extra ondersteuning aan huis wenst, is er het extramuraal zorgteam van Zuyderland. Dit team levert thuiszorg in de woningen van Greenpark en Springfield en biedt desgewenst ook zorgalarmering aan, zodat hulp altijd dichtbij is wanneer dat nodig is.
Kortom: wonen in Greenpark of Springfield betekent comfortabel en toekomstbestendig wonen, met alle voorzieningen binnen handbereik. Een plek waar u zelfstandig blijft wonen, maar waar de zorg nooit ver weg is – alles wat u nodig heeft om met een gerust hart te blijven genieten van het leven.
Algemeen:
Appartementencomplex: Springfield
Bouwjaar: 2007
Gebruiksoppervlakte wonen: circa 93m2, inhoud circa 315 m3
VvE bijdrage: Circa 200,- euro per maand (incl. parkeerplaats en berging)
Gelijkvloers wonen dankzij de lift in het gebouw
Houten kozijnen met isolatieglas
Stadsverwarming via Ennatuurlijk
Eigen (fiets) berging
Twee slaapkamers
Ruim balkon, te bereiken vanuit de woonkamer
Energielabel: A+
Projectnotaris: Van Hecke Houben - Roermond
Aanvaarding: in onderling overleg
De NVM-vragenlijst Deel B en de Lijst van Zaken zijn niet van toepassing, aangezien de woning wordt verkocht met een niet-zelfbewoningsclausule. Verkoper heeft de woning zelf niet bewoond en kan derhalve koper niet informeren over eigenschappen en/of gebreken waarvan hij niet op de hoogte is.
Ter bescherming van de belangen van zowel koper als verkoper, wordt uitdrukkelijk gesteld dat een koopovereenkomst met betrekking tot deze onroerende zaak eerst dan tot stand komt nadat koper en verkoper de koopovereenkomst hebben getekend (“schriftelijkheidsvereiste”).
Indien er in de woning huurtoestellen aanwezig zijn zoals CV-ketel, boiler, zonnepanelen, mechanische ventilatie etc. dan dienen deze door de koper te worden overgenomen.
De termijn die wordt opgenomen voor eventuele (overeengekomen) ontbindende voorwaarden (bv. Financiering) is in de regel 4 tot 6 weken na het sluiten van de mondelinge wilsovereenkomst.
De waarborgsom/bankgarantie is 10% van de koopsom. De koper dient deze 3 dagen ná het vervallen van de ontbindende voorwaarden bij de desbetreffende notaris te deponeren.
Koper is te allen tijde gerechtigd voor eigen rekening een bouwkundige keuring te (laten) verrichten dan wel andere adviseurs te raadplegen teneinde een goed inzicht te verkrijgen over de staat van onderhoud.
Deze informatie is door ons, Tijs & Cyril Makelaardij met de nodige zorgvuldigheid samengesteld. Onzerzijds wordt echter geen enkele aansprakelijkheid aanvaard voor enige onvolledigheid, onjuist of anderszins, dan wel de gevolgen daarvan. Alle opgegeven maten en oppervlakten zijn indicatief. Van toepassing zijn de NVM voorwaarden.