Stijlvolle stadswoning in hartje centrum met een garage en 3 slaapkamers. Op een rustige plek in het historische centrum staat deze smaakvol verbouwde woning met verrassend veel ruimte en lichtinval. De woonkamer staat in open verbinding met de keuken, in totaal zijn er 3 slaapkamers en de badkamer heeft niet alleen een inloopdouche, maar ook een bad, wastafelmeubel en een toilet. Wat u aan de voorzijde niet ziet, zijn de fraaie stadstuin met achterom en de garage/berging.
Stijlvolle stadswoning in hartje centrum met een garage en 3 slaapkamers. Op een rustige plek in het historische centrum staat deze smaakvol verbouwde woning met verrassend veel ruimte en lichtinval. De woonkamer staat in open verbinding met de keuken, in totaal zijn er 3 slaapkamers en de badkamer heeft niet alleen een inloopdouche, maar ook een bad, wastafelmeubel en een toilet. Wat u aan de voorzijde niet ziet, zijn de fraaie stadstuin met achterom en de garage/berging.
Typering:
De Markt, de bekende winkelstraten en uw favoriete restaurant(s) zijn binnen handbereik. Is het uw droom om te wonen in het centrum van Sittard, dan is dit een niet te missen kans! Aan de Leyenbroekerweg is de bushalte en na een wandeling door het centrum bereikt u het treinstation. Voor een wandeling in de natuur loopt u zo naar het Memoriebos en de Kollenberg.
Begane grond:
Aan de voorzijde is de fraaie entree, met een opvallende voordeur en een kleurrijk glas-in lood bovenraam. In de royale hal ziet u de trapopgang met bergkast, de meterkast en de toiletruimte met wandcloset. Het plafond in de hal heeft, net als de rest van de begane grond, een hoogte van circa 2,90 meter.
De woonkamer met open keuken oogt ruimtelijk. Het zitgedeelte is aan de voorzijde en het eetgedeelte is, net als de keuken, aan de achterzijde. Grote ramen zorgen voor veel lichtinval en de wanden zijn, net als het plafond, gestuct. Dit is een woonkamer met sfeer, klaar om in te richten naar eigen smaak.
In de keuken staat een lichte hoekopstelling, die in 2021 deels is vernieuwd. Het zwarte aanrecht is van stijlvol composiet en de lichte wandtegels passen perfect in het geheel. De 5-pits gaskookplaat, afzuigkap, koel-/vriescombinatie, vaatwasser en combi-oven zijn ingebouwd.
Vanuit de keuken is de sfeervolle stadstuin te bereiken, met fraaie bestrating en tuinmuren die in dezelfde kleuren als de gevel van de garage zijn geschilderd. De poort geeft toegang tot een achterom en de garage (circa 14 m2) is de perfecte plek voor de fietsen en andere spullen.
1e verdieping:
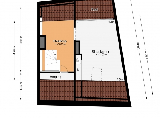
Niet alleen de begane grond, maar ook de eerste verdieping heeft veel sfeer. Vanaf de overloop heeft u toegang tot twee slaapkamers, de badkamer en een wasruimte/berging.
Slaapkamer I met vaste kastenwand is aan de voorzijde en slaapkamer II met airco bevindt zich aan de achterzijde. In beide kamers ligt laminaat en de algehele afwerking is fraai.
Aan de achterzijde is de badkamer, met een dubbel raam waardoor veel licht naar binnen valt. Het bad staat in de breedte en verder zijn er een inloopdouche, toilet en een wastafelmeubel met spiegelkast in de badkamer.
2e verdieping:
Met een hoogte van iets meer dan 3 meter is de tweede verdieping heel ruim. Als eerste is er de overloop, met een berging in de schuinte van het dak. Slaapkamer III is een fraaie kamer met een dakraam, diepe kasten in de schuinte van het dak en een vaste kastenwand achter het bed. Achter een van de deuren hangt de HR-ketel (Remeha, 2015, eigendom).
Algemeen:
Bouwjaar: 1980
Gebruiksoppervlakte wonen: circa 103 m2, inhoud circa 407 m3
Perceeloppervlakte: 94 m2
Verwarming en warm water via een HR-ketel (Remeha, 2015, eigendom)
Daikin airco (koelen en verwarmen) in de master bedroom
Hardhouten kozijnen met isolatieglas (begane grond) en enkel glas (eerste verdieping)
Schilderwerk in 2021 (kozijnen) en 2025 (tuinmuren, deuren en voordeur)
Energielabel: C
Aanvaarding: in onderling overleg
Ter bescherming van de belangen van zowel koper als verkoper, wordt uitdrukkelijk gesteld dat een koopovereenkomst met betrekking tot deze onroerende zaak eerst dan tot stand komt nadat koper en verkoper de koopovereenkomst hebben getekend (“schriftelijkheidsvereiste”).
Indien er in de woning huurtoestellen aanwezig zijn zoals CV-ketel, boiler, zonnepanelen, mechanische ventilatie etc. dan dienen deze door de koper te worden overgenomen.
De termijn die wordt opgenomen voor eventuele (overeengekomen) ontbindende voorwaarden (bv. Financiering) is in de regel 4 tot 6 weken na het sluiten van de mondelinge wilsovereenkomst.
De waarborgsom/bankgarantie is 10% van de koopsom. De koper dient deze 3 dagen ná het vervallen van de ontbindende voorwaarden bij de desbetreffende notaris te deponeren.
Koper is te allen tijde gerechtigd voor eigen rekening een bouwkundige keuring te (laten) verrichten dan wel andere adviseurs te raadplegen teneinde een goed inzicht te verkrijgen over de staat van onderhoud.
Deze informatie is door ons, Tijs & Cyril Makelaardij met de nodige zorgvuldigheid samengesteld. Onzerzijds wordt echter geen enkele aansprakelijkheid aanvaard voor enige onvolledigheid, onjuist of anderszins, dan wel de gevolgen daarvan. Alle opgegeven maten en oppervlakten zijn indicatief. Van toepassing zijn de NVM voorwaarden.