Gelijkvloers en ruim wonen aan de rand van het centrum, op de 5e verdieping van het prachtige appartementencomplex ‘De Sittadel’.
Gelijkvloers en ruim wonen aan de rand van het centrum, op de 5e verdieping van het prachtige appartementencomplex ‘De Sittadel’.
Typering:
Als u op zoek bent naar een ruim en comfortabel appartement in Sittard, dan is dit een juiste keuze. De supermarkt, het treinstation en het centrum met winkels en diverse horecagelegenheden bevinden zich op een paar minuten lopen. Ook de Stadssporthal, uitvalswegen en het ziekenhuis bevinden zich in de nabijheid.
INDELING:
Souterrain:
In de parkeergarage heeft u de beschikking over een eigen parkeerplaats. De parkeergarage is alleen toegankelijk voor bewoners en hiermee een veilige plek voor uw auto. Daarnaast heeft het appartement een eigen (fietsen)berging van 2,70 x 2,32 meter in het souterrain.
Begane grond:
Het appartement is gesitueerd in het derde blok, het gebouw op de hoek van de Brugstraat en het Stadswegske. Via een onderdoorgang loopt u naar de centrale entree, gesitueerd aan de achterzijde. Bij de entree ziet u de brievenbussen, het bellentableau en de intercom. Met de trap en lift zijn het souterrain en het appartement op de vijfde verdieping te bereiken.
Het complex is, vanwege het druppelsysteem, sleutelloos en alle tussen- en buitendeuren openen zich automatisch. Hierdoor is het gebouw goed toegankelijk voor bijvoorbeeld mindervaliden.
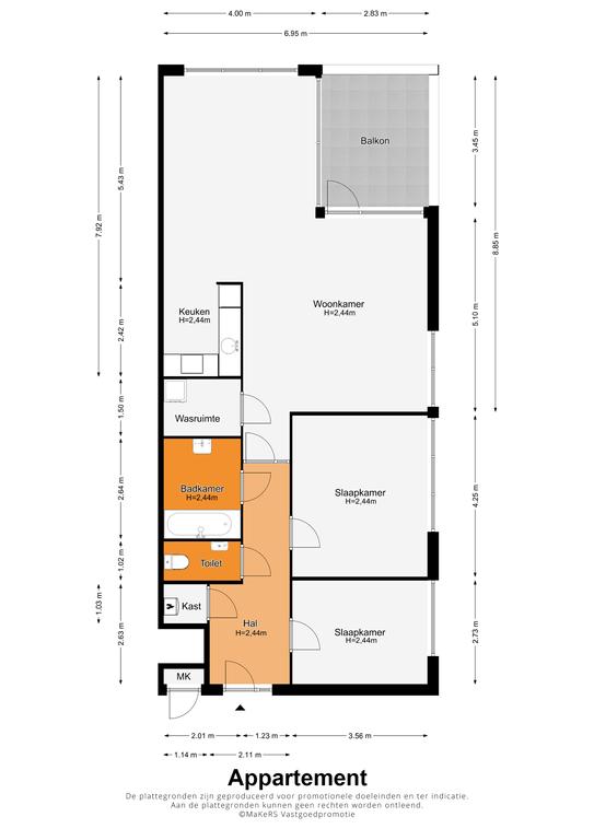
Appartement:
Open de voordeur naar de ruime hal, waar een nette laminaatvloer ligt. Aan de linkerzijde bevindt zich de cv-ruimte (1,14 x 1,03m) met de opstelling van de HR-ketel (Intergas, 2019).
Aan het einde van de hal is de woonkamer met open keuken met een royale vloeroppervlakte van circa 47,5 m2. Grote ramen zorgen voor veel lichtinval en mooi uitzicht over de boomtoppen. De woonkamer biedt genoeg ruimte aan een dubbele zithoek en een grote eettafel. Er ligt, net als in de hal en keuken, laminaat op de vloer.
In de keuken staat een nette hoekopstelling met onder- en bovenkasten, lades en een houtlook blad met achterwand. De keramische kookplaat, afzuigkap, vaatwasser, koelkast en magnetron zijn ingebouwd. Naast de keuken is een inpandige berging/bijkeuken (2,03 x 1,50m) met de opstelling van de wasapparatuur en ruimte voor een kast, vriezer en andere spullen.
Het appartement heeft twee ruime slaapkamers aan de koele noordzijde. Slaapkamer I (4,25 x 3,53m) is een ruime hoofdslaapkamer en slaapkamer II (3,56 x 2,73m) is geschikt als slaapkamer, werkkamer of hobbyruimte. Aan de overzijde van de hal bevinden zich de toiletruimte en badkamer. De badkamer (2,64 x 2,03m) is ingedeeld met een ligbad/douchecombinatie en een wastafelmeubel.
Vanuit de woonkamer is het hoekbalkon (3,49 x 2,83m) op het westen te bereiken, voorzien van glazen schuifwanden om beschut uit de wind te kunnen zitten. Op het balkon staat de unit van de airconditioning, die in de woonkamer voor een aangename temperatuur zorgt.
Algemeen:
Bouwjaar: 2001
Gebruiksoppervlakte wonen: circa 98 m2 (exclusief circa 10 m2 balkon), inhoud circa 300 m3
Verwarming en warm water via een HR-ketel (Intergas, 2019)
VvE bijdrage € 154,- per maand
Hardhouten kozijnen, voorzien van HR++ glas
Mooie ligging op de vijfde verdieping met uitzicht over de boomtoppen
Vaste, gemakkelijk bereikbare en ruime parkeerplek in de alleen voor bewoners toegankelijke parkeergarage (afgesloten)
Eigen berging in het souterrain
Gelijkvloers wonen in een modern, goed geïsoleerd appartementencomplex aan de rand van het centrum
Energielabel: A
Aanvaarding: In overleg