Gelijkvloers driekamerappartement op de 2e verdieping in het populaire complex De Sittadel aan de rand van het centrum, met een eigen berging en een overdekte parkeerplek in de afgesloten garage. Het betreft het middelste blok.
Typering:
Als u op zoek bent naar een ruim en comfortabel appartement aan de rand van het centrum, dan is dit een juiste keuze. De supermarkt, het treinstation en het centrum met winkels en diverse horecagelegenheden bevinden zich op een paar minuten lopen. Ook de Stadssporthal, uitvalswegen en het ziekenhuis bevinden zich in de nabijheid.
Indeling:
Souterrain:
In de afgesloten parkeergarage heeft u de beschikking over een eigen, overdekte parkeerplaats. De parkeergarage is alleen toegankelijk voor bewoners en hiermee een veilige plek voor uw auto. Daarnaast heeft het appartement een eigen (fietsen)berging van 4,02 x 1,67 meter.
Begane grond:
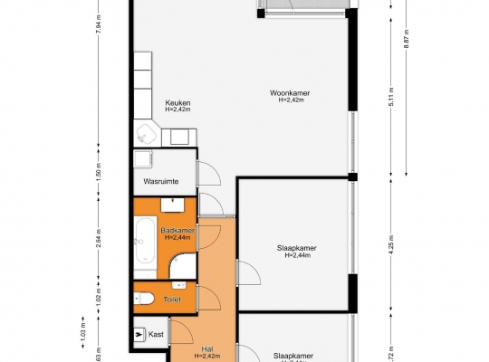
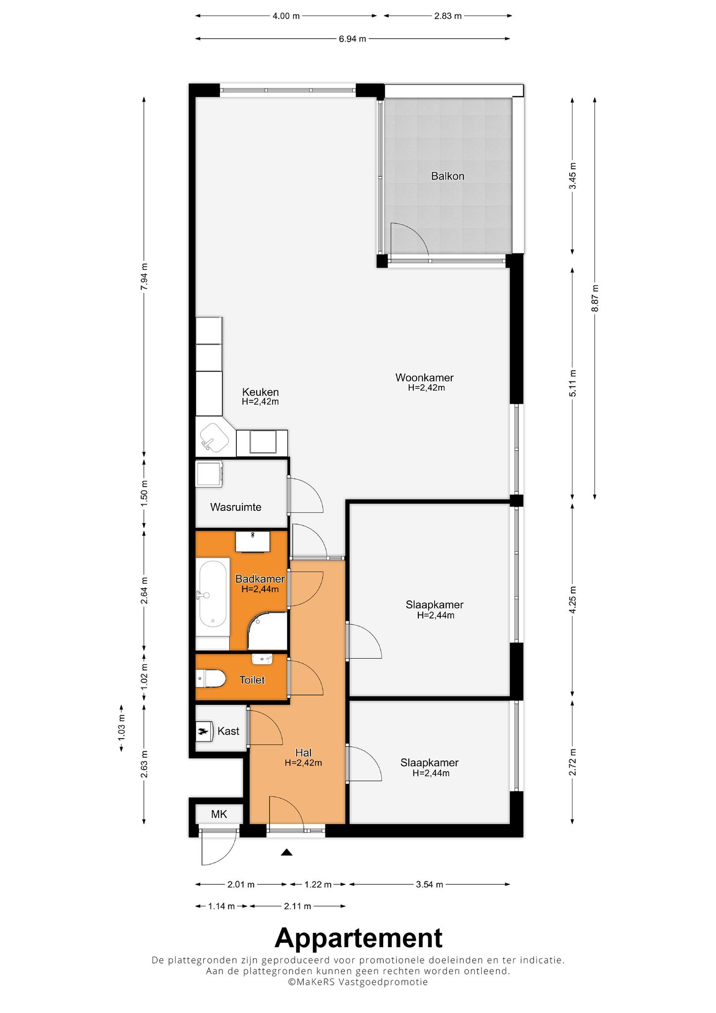
Het appartement is gesitueerd op de 2
e verdieping in blok B, het middelste gebouw aan de Brugstraat. Via een onderdoorgang loopt u naar de centrale entree, gesitueerd aan de achterzijde. Bij de entree ziet u de brievenbussen, het bellentableau en de intercom. Met de trap en lift zijn de parkeergarage, eigen berging en het appartement te bereiken.
Het complex is, vanwege het druppelsysteem, sleutelloos en alle tussen- en buitendeuren openen zich automatisch. Hierdoor is het gebouw goed toegankelijk voor bijvoorbeeld mindervaliden.
Appartement:
In de ruime hal ligt, net als in de woonkamer en keuken, een houten vloer. Deze vloer past goed bij de paneeldeuren, wat het appartement een huiselijke sfeer geeft. Links van de hal zijn een kast met de HR-ketel (Intergas, 2019, eigendom) en de ruime toiletruimte met fonteintje.
De lichte woonkamer met open keuken (ca. 48,5 m2) heeft grote ramen aan de westkant, met mooi uitzicht naar de bomen die aan weerszijden van het spoor staan. Bij het zitgedeelte hangt een airco-unit en het eetgedeelte biedt ruimte aan een grote tafel om met vrienden en familie te dineren.
In de open keuken staat een lichte Alno hoekopstelling met een keramische kookplaat, afzuigkap, heteluchtoven, vaatwasser en een koelkast. Zoals u op de foto ziet, is er ruimte om een ontbijttafel neer te zetten. Naast de keuken bevindt zich de wasruimte/berging (2,01 x 1,50), die ook als provisieruimte gebruikt kan worden.
Het appartement heeft twee ruime slaapkamers aan de rustige kant van het gebouw. Slaapkamer I (4,25 x 3,54) is ingericht als ruime tweepersoonskamer en slaapkamer II (2,72 x 3,54) is te gebruiken als eenpersoons slaapkamer, werkkamer of hobbyruimte. Aan de andere zijde van de hal bevindt zich de badkamer (2,64 x 2,01) met een ligbad, aparte douche en een dubbele wastafel. De badkamer is uitgevoerd in dezelfde stijl als de toiletruimte.
De woonkamer staat in verbinding met het overdekte balkon (3,45 x 2,83) met een donkere tegelvloer en glazen schuifwanden aan twee kanten. Dit is een fijne plek waar u een groot deel van het jaar kunt zitten en genieten van het uitzicht.
Algemeen:
Bouwjaar: 2001
Gebruiksoppervlakte wonen: circa 89 m2 (exclusief circa 10 m2 balkon), inhoud circa 300 m3
Verwarming en warm water via een HR-ketel (Intergas, 2019)
VvE bijdrage € 215,- per maand
Houten kozijnen, voorzien van HR++ glas
Schilderwerk aan de binnenzijde is in 2023 uitgevoerd
Vaste parkeerplek in de alleen voor bewoners toegankelijke parkeergarage
Eigen berging in het souterrain
Gelijkvloers wonen in een modern, goed geïsoleerd appartementencomplex aan de rand van het centrum
Energielabel: B
Aanvaarding: In overleg
Ter bescherming van de belangen van zowel koper als verkoper, wordt uitdrukkelijk gesteld dat een koopovereenkomst met betrekking tot deze onroerende zaak eerst dan tot stand komt nadat koper en verkoper de koopovereenkomst hebben getekend (“schriftelijkheidsvereiste”).
Indien er in de woning huurtoestellen aanwezig zijn zoals CV-ketel, boiler, zonnepanelen, mechanische ventilatie etc. dan dienen deze door de koper te worden overgenomen.
De termijn die wordt opgenomen voor eventuele (overeengekomen) ontbindende voorwaarden (bv. Financiering) is in de regel 4 tot 6 weken na het sluiten van de mondelinge wilsovereenkomst.
De waarborgsom/bankgarantie is 10% van de koopsom. De koper dient deze 3 dagen ná het vervallen van de ontbindende voorwaarden bij de desbetreffende notaris te deponeren.
Koper is te allen tijde gerechtigd voor eigen rekening een bouwkundige keuring te (laten) verrichten dan wel andere adviseurs te raadplegen teneinde een goed inzicht te verkrijgen over de staat van onderhoud.