Instapklaar appartement met 3 slaapkamers in Vrangendael. Het appartement heeft een mooie ligging op de eerste woonlaag en wordt omringd door groen, wat zorgt voor mooi uitzicht aan de voor- en achterzijde. In bijna het hele appartement ligt laminaat en de keuken, badkamer en toiletruimte zorgen ervoor dat je niet hoeft te starten met verbouwen. Er zijn twee balkons, op het oosten en westen, en bij het appartement hoort een zeer ruime privéberging in de onderbouw.
Instapklaar appartement met 3 slaapkamers in Vrangendael. Het appartement heeft een mooie ligging op de eerste woonlaag en wordt omringd door groen, wat zorgt voor mooi uitzicht aan de voor- en achterzijde. In bijna het hele appartement ligt laminaat en de keuken, badkamer en toiletruimte zorgen ervoor dat je niet hoeft te starten met verbouwen. Er zijn twee balkons, op het oosten en westen, en bij het appartement hoort een zeer ruime privéberging in de onderbouw.
Typering:
De ligging is uitstekend, net buiten het centrum en in een wijk met veel openbaar groen. Gratis parkeren kan voor de deur en in de omgeving vind je diverse voorzieningen, waaronder een basisschool en een plantsoen met basketbalveld. Op loopafstand is de bushalte, die u onder andere naar het treinstation brengt. Na een wandeling door de wijk steekt u de Keulsebaan over richting de Kollenberg, het Memoriebos en het prachtige buitengebied.
Begane grond:
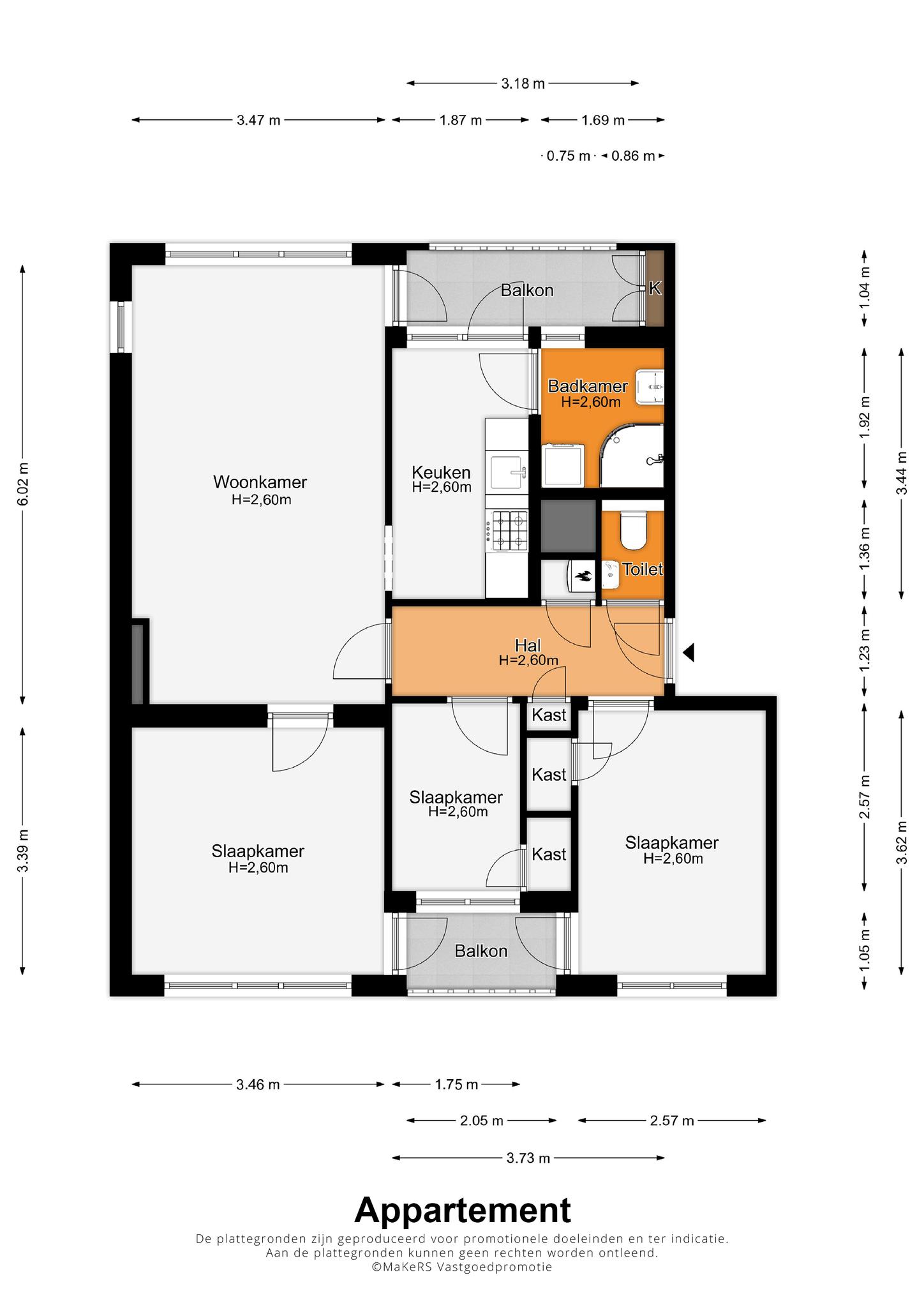
Bij de gezamenlijke entree van Amelbergastraat 6-8, aan de buitenzijde, zijn de brievenbussen en het bellentableau met intercom. Eenmaal binnen kun je met de trap naar de privéberging (circa 5,00 x 3,65) en het appartement, gesitueerd op de eerste woonlaag. Voordeel van de ligging op de eerste woonlaag is dat je vanuit de hal slechts een trap op hoeft te lopen.
Eerste verdieping:
Open de voordeur naar de lange hal (circa 3,73 x 1,23), waar een mooie laminaatvloer ligt. Deze vloer, die bij verschillende interieurstijlen past, ligt in bijna het hele appartement. De woonkamer (circa 6,02 x 3,47) heeft niet alleen een groot raam aan de westkant, maar ook een zijraam aan de zuidkant. Hierdoor valt al vanaf het begin van de middag de zon naar binnen. De muren zijn gestuct en de woonkamer is goed in te delen met een ruime zithoek, tv-meubel en een eettafel.
Aan de voorzijde, naast de woonkamer, is de dichte keuken (circa 3,44 x 1,87). De lichte wandopstelling heeft een fraai, donker aanrechtblad met achterwand en een ronde spoelbak. De gaskookplaat, afzuigkap, vaatwasser en koelkast zijn ingebouwd. Vanuit de keuken is het eerste balkon (circa 3,18 x 1,04) op het westen te bereiken, met fijne middag- en avondzon.
Naast de keuken is de badkamer (circa 1,92 x 1,61) met een kwartronde douche, wastafel, grote spiegel, wastafelkast en de opstelling van de wasapparatuur. De stijlvolle toiletruimte, met een wandcloset en fonteintje, is vanuit de hal te bereiken. Naast de toiletruimte is een kast met de opstelling van de HR-ketel (Nefit, 2021, eigendom).
Dit appartement heeft naar liefst drie slaapkamers, die allemaal aan de achterzijde gesitueerd zijn. Slaapkamer I (circa 3,39 x 3,46) grenst aan de woonkamer en heeft, net als slaapkamer II (circa 3,62 x 2,57) een deur naar het balkon (circa 2,05 x 1,04) op het oosten. Slaapkamer III (circa 2,57 x 1,75) heeft geen deur, maar een groot raam aan de balkonzijde. Erg handig is dat twee slaapkamers zijn voorzien van een ruime inbouwkast voor kleding en andere spullen.
Algemeen:
Bouwjaar: 1963
Gebruiksoppervlakte wonen: circa 68m2, inhoud circa 232 m3
Verwarming en warm water via een HR-ketel (Nefit, 2021, eigendom)
Kunststof kozijnen met isolatieglas
Drie slaapkamers, waarvan twee met een inbouwkast
Twee balkons (oost en west) met uitzicht naar het groen
Moderne keuken, badkamer en toiletruimte
Ruime privéberging in de onderbouw
VvE bijdrage € 166,00 per maand
Energielabel: E
Aanvaarding: In onderling overleg
Ter bescherming van de belangen van zowel koper als verkoper, wordt uitdrukkelijk gesteld dat een koopovereenkomst met betrekking tot deze onroerende zaak eerst dan tot stand komt nadat koper en verkoper de koopovereenkomst hebben getekend (“schriftelijkheidsvereiste”).
Indien er in de woning huurtoestellen aanwezig zijn zoals CV-ketel, boiler, zonnepanelen, mechanische ventilatie etc. dan dienen deze door de koper te worden overgenomen.
De termijn die wordt opgenomen voor eventuele (overeengekomen) ontbindende voorwaarden (bv. Financiering) is in de regel 4 tot 6 weken na het sluiten van de mondelinge wilsovereenkomst.
De waarborgsom/bankgarantie is 10% van de koopsom. De koper dient deze 3 dagen ná het vervallen van de ontbindende voorwaarden bij de desbetreffende notaris te deponeren.
Koper is te allen tijde gerechtigd voor eigen rekening een bouwkundige keuring te (laten) verrichten dan wel andere adviseurs te raadplegen teneinde een goed inzicht te verkrijgen over de staat van onderhoud.
Deze informatie is door ons, Tijs & Cyril Makelaardij met de nodige zorgvuldigheid samengesteld. Onzerzijds wordt echter geen enkele aansprakelijkheid aanvaard voor enige onvolledigheid, onjuist of anderszins, dan wel de gevolgen daarvan. Alle opgegeven maten en oppervlakten zijn indicatief. Van toepassing zijn de NVM voorwaarden.