Geheel verbouwde en uitgebouwde woning met een garage en diepe tuin. Van de jaren ’50 naar nu… Deze vrijstaande jaren ’50 woning aan de Mariabergstraat in Schinveld is in 2019 geheel verbouwd, verduurzaamd en aan de achterzijde fors uitgebouwd. De woonkamer en keuken zijn samen ruim 60 m2 groot, er zijn drie slaapkamers en de ruime badkamer op de eerste verdieping is een plaatje. Aan de kant van de oprit ziet u de 9.50 meter lange garage, perfect voor de auto- en motorliefhebber, en de diepe tuin met groot terras is een geweldige plek om van de zon te genieten.
Geheel verbouwde en uitgebouwde woning met een garage en diepe tuin. Van de jaren ’50 naar nu… Deze vrijstaande jaren ’50 woning aan de Mariabergstraat in Schinveld is in 2019 geheel verbouwd, verduurzaamd en aan de achterzijde fors uitgebouwd. De woonkamer en keuken zijn samen ruim 60 m2 groot, er zijn drie slaapkamers en de ruime badkamer op de eerste verdieping is een plaatje. Aan de kant van de oprit ziet u de 9.50 meter lange garage, perfect voor de auto- en motorliefhebber, en de diepe tuin met groot terras is een geweldige plek om van de zon te genieten.
Typering:
Niet alleen de woning, maar ook de ligging is geweldig. De Mariabergstraat bevindt zich aan de zuidkant van het dorp, om de hoek van speeltuin Breukberg, Tennis- / Padelbanen van TPC Schinveld en de voetbalvelden van RKSV Olympia. Na een paar minuten staat u in een bosgebied, waar u kunt wandelen, en er is een snelle verbinding met de Buitenring Parkstad. Schinveld heeft diverse voorzieningen, van een supermarkt tot basisschool, en is op fietsafstand van Brunssum. De Schinveldse Bossen en Brunssummerheide zijn prachtige gebieden om te wandelen en u woont nabij Wildpark Gangelt, net over de grens ten noorden van Schinveld.
Begane grond:
Aan de rechterzijde, bij de oprit voor meerdere auto’s, ziet u de garagepoort, een deur naar de bijkeuken en de fraaie entree. De bewoners, vrienden en familie komen gaan via de bijkeuken naar binnen, maar we gaan via de officiële entree.
In de ruime ontvangsthal zijn de meterkast, toiletruimte, de prachtige trap naar de eerste verdieping en hier is een trap naar de (wijn)kelder van circa 2,89 x 1,98 meter. De hal is, net als de rest van de woning, in 2019 smaakvol verbouwd. Onder de tegelvloer ligt vloerverwarming en de glazen schuifdeur naar de woonkamer maakt de hal heel ruimtelijk.
De L-vormige woonkamer, met een erker bij het zitgedeelte, heeft een oppervlakte van circa 37 m2. Er is niet alleen plek voor een grote hoekbank en een tv-meubel, maar ook voor een 6-persoons eettafel en een servieskast in deze fantastische leefruimte.
Een brede doorgang verbindt de woonkamer met de leefkeuken van circa 25 m2, met een grote schuifpui naar het terras en de tuin. De moderne, lichte keuken met een hoekopstelling en een kastenwand heeft een fraaie uitstraling, mede dankzij het composiet aanrechtblad en de plint in dezelfde kleur. Alle apparatuur voor de kook- en bakliefhebber is ingebouwd: een inductie kookplaat, afzuigkap, koelkast, vriezer, stoomoven, combimagnetron en een vaatwasser.
Vanuit de keuken heeft u toegang tot de bijkeuken, met de opstelling van de wasapparatuur. Aansluitend is de circa 9.50 meter lange garage, met een sectionaalpoort aan de voorzijde en dubbele deuren naar de achtertuin.
Deze fantastische woning heeft niet zomaar een achtertuin, maar een hele diepe tuin met een groot terras waar genoeg plek is voor een loungeset en een tafel met stoelen. Het achterste deel van de tuin is ingericht met een gazon, en de erfafscheiding aan drie zijden zorgt voor veel privacy. Ook de voortuin is opnieuw aangelegd, met onderhoudsvriendelijke beplanting en grind.
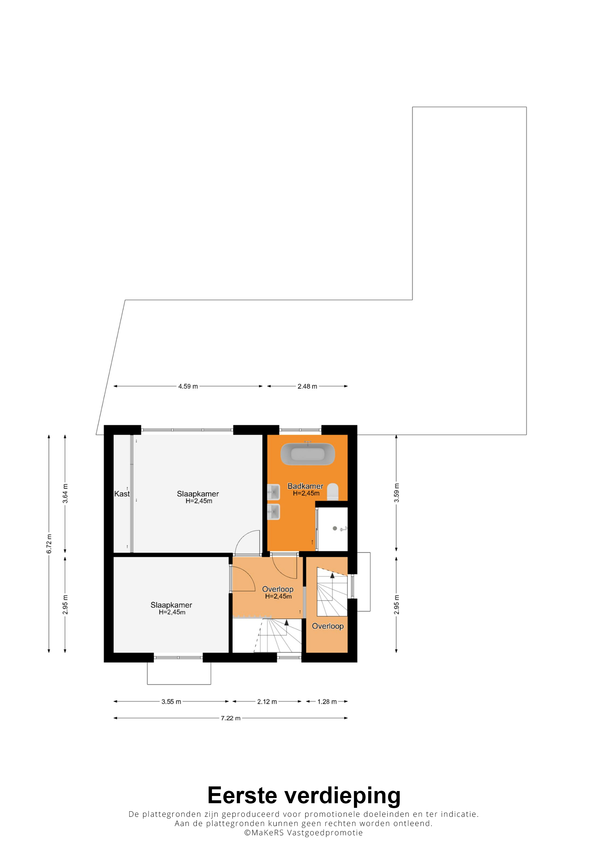
Eerste verdieping:
Vanaf de overloop heeft u toegang tot twee slaapkamers, de badkamer een tweede overloop met de vaste trap naar de tweede verdieping. De vloeren, wanden en plafonds zijn fraai afgewerkt en ook hier zijn de kunststof kozijnen voorzien van HR++ glas.
Slaapkamer I (circa 3,55 x 2,95), ingericht als kinderkamer, is aan de voorzijde. Aan de achterzijde is slaapkamer II (circa 4,59 x 3,64). De badkamer (circa 3,59 x 2,48) is het toppunt van luxe, met een vrijstaand bad en een inloopdouche. Verder zijn er een tweede toilet en een houten badmeubel, waarop twee waskommen staan. Aan alles is gedacht: van een kastje voor de toiletrollen tot een handdoekenradiator.
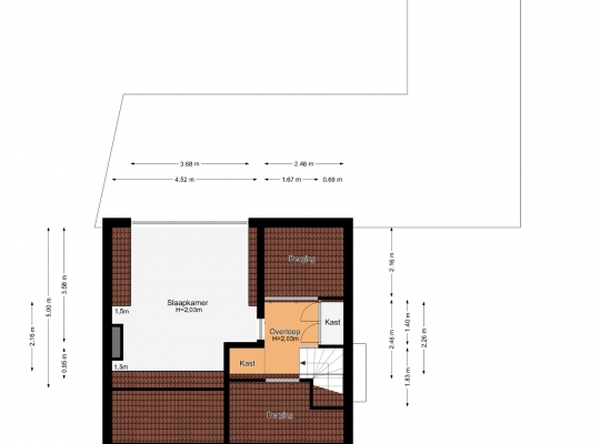
Tweede verdieping:
Aan de achterzijde is een grote dakkapel geplaatst, waardoor de zolder is getransformeerd in een volwaardige verdieping. Op de overloop ziet u kasten en bergingen, in de schuinten van het dak. Ook is hier slaapkamer III (circa 5,00 x 3,68), met inbouwverlichting en een mooie laminaatvloer.
Algemeen:
Bouwjaar: 1952, gerenoveerd in 2019
Perceeloppervlakte: 528 m2
Gebruiksoppervlakte wonen: circa 151 m2, inhoud circa 655 m3
Grote uitbouw aan de achterzijde
Drie slaapkamers, waarvan een met een dakkapel
Diepe garage en een oprit voor meerdere auto’s
Verwarming en warm water via een HR-ketel (Bosch, 2011, eigendom)
Kunststof kozijnen met HR++ glas
Airco op iedere verdieping (split airco's)
14 zonnepanelen van 365 Wp, geplaatst in 2022
Beschikt over een warmtepomp
Energielabel: C
Aanvaarding: in overleg
Ter bescherming van de belangen van zowel koper als verkoper, wordt uitdrukkelijk gesteld dat een koopovereenkomst met betrekking tot deze onroerende zaak eerst dan tot stand komt nadat koper en verkoper de koopovereenkomst hebben getekend (“schriftelijkheidsvereiste”).
Indien er in de woning huurtoestellen aanwezig zijn zoals CV-ketel, boiler, zonnepanelen, mechanische ventilatie etc. dan dienen deze door de koper te worden overgenomen.
De termijn die wordt opgenomen voor eventuele (overeengekomen) ontbindende voorwaarden (bv. Financiering) is in de regel 4 tot 6 weken na het sluiten van de mondelinge wilsovereenkomst.
De waarborgsom/bankgarantie is 10% van de koopsom. De koper dient deze 3 dagen ná het vervallen van de ontbindende voorwaarden bij de desbetreffende notaris te deponeren.
Koper is te allen tijde gerechtigd voor eigen rekening een bouwkundige keuring te (laten) verrichten dan wel andere adviseurs te raadplegen teneinde een goed inzicht te verkrijgen over de staat van onderhoud.
Deze informatie is door ons, Tijs & Cyril Makelaardij met de nodige zorgvuldigheid samengesteld. Onzerzijds wordt echter geen enkele aansprakelijkheid aanvaard voor enige onvolledigheid, onjuist of anderszins, dan wel de gevolgen daarvan. Alle opgegeven maten en oppervlakten zijn indicatief. Van toepassing zijn de NVM voorwaarden.