Vraagprijs € 549.000,- k.k.
Stijlvol, luxe en royaal wonen op een toplocatie in Schinveld. Wat u aan de buitenzijde niet ziet, is de hoeveelheid ruimte die deze vrijstaande woning biedt. In totaal zijn er 6 slaapkamers, waarvan 1 in gebruik is als kleedruimte, en 2 badkamers. De werkkamer op de begane grond, met een eigen entree, kan als 7e slaapkamer worden gebruikt en biedt, in combinatie met de badkamer beneden, de mogelijkheid om gelijkvloers te wonen. Met energielabel A+, zonnepanelen, airco en HR++ glas is dit een duurzaam huis om verliefd op te worden!
Stijlvol, luxe en royaal wonen op een toplocatie in Schinveld. Wat u aan de buitenzijde niet ziet, is de hoeveelheid ruimte die deze vrijstaande woning biedt. In totaal zijn er 6 slaapkamers, waarvan 1 in gebruik is als kleedruimte, en 2 badkamers. De werkkamer op de begane grond, met een eigen entree, kan als 7e slaapkamer worden gebruikt en biedt, in combinatie met de badkamer beneden, de mogelijkheid om gelijkvloers te wonen. Met energielabel A+, zonnepanelen, airco en HR++ glas is dit een duurzaam huis om verliefd op te worden!
Typering:
De Mariabergstraat bevindt zich aan de zuidkant van het dorp, om de hoek van een speeltuin en de voetbalvelden van RKSV Olympia. Na een paar minuten staat u in een bosgebied en er is een snelle verbinding met de Buitenring Parkstad. Schinveld heeft diverse voorzieningen, van een supermarkt tot basisschool, en heeft een gunstige ligging op fietsafstand van Brunssum. De Schinveldse Bossen en Brunssummerheide zijn geliefde gebieden om te wandelen en hardlopen, omringd door prachtige natuur.
Souterrain:
Vanuit de hal heeft u toegang tot het souterrain, dat uit twee ruimtes bestaat. In ruimte I (circa 2,69 x 2,08) is de trap naar de begane grond en aan de achterzijde is ruimte II (circa 2,99 x 3,10) met de opstelling van de boiler.
Begane grond:
Niet alleen aan de voorzijde, maar ook aan het einde van de oprit is een entree. Via de voordeur is de ontvangsthal (circa 4,31 x 2,71) te bereiken, met een marmeren vloer en de meterkast. Verder zijn hier de trap naar het souterrain en een trap naar de eerste verdieping.
De woon-/eetkamer (circa 7,92 x 3,86/3,57) is een sfeervolle leefruimte met lichtinval vanaf drie zijden. Bij het zitgedeelte ligt laminaat op de vloer en het eetgedeelte heeft, net als de keuken, een donkere tegelvloer. Sfeermakers zijn het behang bij het eetgedeelte, het plafond met inbouwverlichting en de kleur op de muren.
Naast het eetgedeelte is de halfopen keuken (circa 3,06 x 3,00), waar een royale keukenopstelling uit 2011 staat. Het houtlook aanrechtblad past goed bij de rest van de keuken en de 5-pits gaskookplaat, afzuigkap, oven, vaatwasser en koelkast zijn ingebouwd.
In het verlengde van de keuken is een tweede hal (circa 3,40 x 1,85) die onder andere toegang biedt tot de oprit, de achtertuin en het stijlvolle gastentoilet (2023). Naast het toilet is een badkamer (2023) met een douche, toilet en een wastafelmeubel.
De badkamer biedt, in combinatie met de multifunctionele kamer (6,50 x 3,32), de mogelijkheid om gelijkvloers te wonen. Deze kamer, met een eigen entree en een airco-unit, is thans ingericht als werkkamer met een fraaie afwerking. Aan de achterzijde is een L-vormige berging/wasruimte van circa 18 m2, die tevens toegang tot de achtertuin biedt.
Niet alleen het woonhuis, maar ook de tuin is geheel vernieuwd. Groene vingers zijn niet nodig, want u ziet voornamelijk grind, grote tegels en onderhoudsvriendelijke beplanting. In deze tuin vindt u zowel zon als schaduw, al naar gelang het tijdstip. Erg handig is de eigen achterom, afgesloten met een fraaie poort.
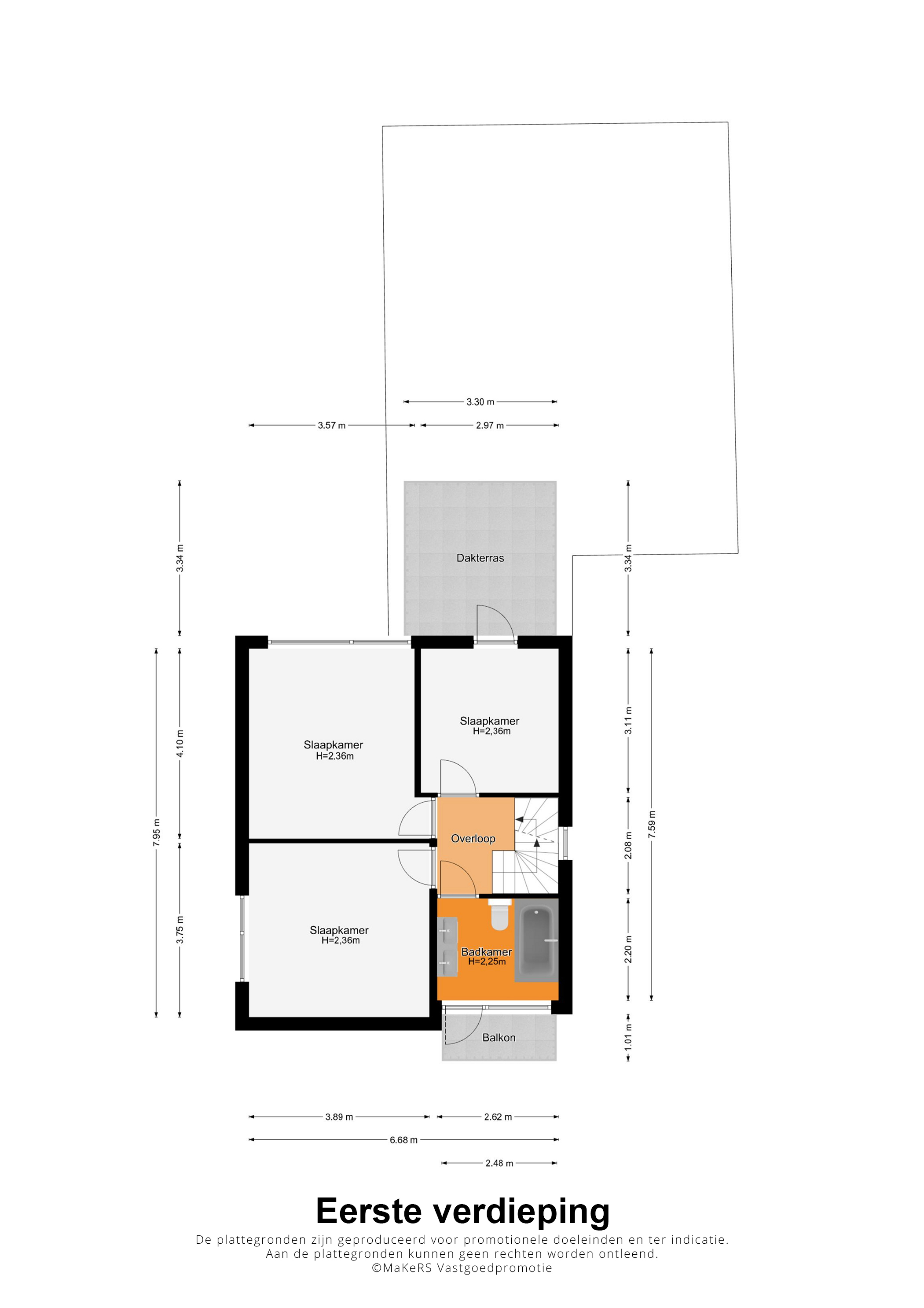
Eerste verdieping:
Niet alleen de begane grond, maar ook de eerste verdieping is fraai verbouwd. Stucwerk, een bruine laminaatvloer en houten kozijnen met HR++ glas zorgen voor een fraai geheel.
Aan de voorzijde is slaapkamer I (circa 3,89 x 3,75), ingericht als tweepersoonskamer. Slaapkamer II (circa 3,11 x 2,97) geeft toegang tot het balkon en slaapkamer III (circa 4,10 x 3,57) is de master bedroom met airco (wandmodel).
De badkamer (circa 2,62 x 2,20) is, net als beneden, in 2023 vernieuwd. Hier ervaart u de luxe en sfeer van een vijfsterrenhotel. Het bad is fraai vormgegeven en verder ziet u een toilet en een breed wastafelmeubel met zijkast en spiegel. Vanuit deze badkamer heeft u toegang tot een tweede balkon.
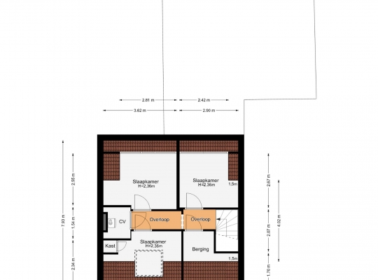
Tweede verdieping:
Verrassend is de ruimte op de tweede verdieping, waar nog drie slaapkamers zijn. Slaapkamer IV (circa 3,86 x 2,34) met dakraam en vaste kast is aan de voorzijde. Naast deze kamer is een berging, te bereiken vanaf de overloop.
Aan de achterzijde zijn slaapkamer V (circa 3,61/2,81 x 2,55) en slaapkamer VI (circa 2,90/2,42 x 2,67), met een gezamenlijke dakkapel. In deze kamers ziet u, net als in de master bedroom, een wandmodel airco-unit.
Algemeen:
Bouwjaar: 1973, gerenoveerd in 2022-2025
Perceeloppervlakte: 372 m2
Gebruiksoppervlakte wonen: circa 194 m2, inhoud circa 745 m3
Airco in de keuken, kantoorruimte en 3 slaapkamers
Infraroodverwarming in de woonkamer en 2 badkamers
80 liter boiler (keuken en badkamer begane grond)
27 zonnepanelen van 395 Wp, geplaatst in 2023
Vloerisolatie (2024) en dakisolatie aanbouw (2023)
Houten kozijnen met HR++ glas
Parkeergelegenheid met laadpaal
Energielabel: A+
Twee badkamers (2023), toiletruimte (2023)
Schilderwerk kozijnen (binnen en buiten) in 2023, buitengevels in 2025
Aanvaarding: in overleg
Ter bescherming van de belangen van zowel koper als verkoper, wordt uitdrukkelijk gesteld dat een koopovereenkomst met betrekking tot deze onroerende zaak eerst dan tot stand komt nadat koper en verkoper de koopovereenkomst hebben getekend (“schriftelijkheidsvereiste”).
De termijn die wordt opgenomen voor eventuele (overeengekomen) ontbindende voorwaarden (bv. Financiering) is in de regel 4 tot 6 weken na het sluiten van de mondelinge wilsovereenkomst.
De waarborgsom/bankgarantie is 10% van de koopsom. De koper dient deze 3 dagen ná het vervallen van de ontbindende voorwaarden bij de desbetreffende notaris te deponeren.
Koper is te allen tijde gerechtigd voor eigen rekening een bouwkundige keuring te (laten) verrichten dan wel andere adviseurs te raadplegen teneinde een goed inzicht te verkrijgen over de staat van onderhoud.
Deze informatie is door ons, Tijs & Cyril Makelaardij met de nodige zorgvuldigheid samengesteld. Onzerzijds wordt echter geen enkele aansprakelijkheid aanvaard voor enige onvolledigheid, onjuist of anderszins, dan wel de gevolgen daarvan. Alle opgegeven maten en oppervlakten zijn indicatief. Van toepassing zijn de NVM voorwaarden.