Fraaie villa in Schinnen met jaren ’30 invloeden, nabij het Geleenbeekdal. Aan de Stationsstraat in Schinnen is in 2003-2004 deze villa gebouwd, met gebruik van hoogwaardige materialen en een hoogwaardig afwerkingsniveau. Deze villa biedt niet alleen ruimte om te wonen, maar de werk-/studeerkamer op de begane grond is perfect om vanuit huis te werken. Aan beide zijden is een oprit, waarvan een met een elektrisch oplaadpunt voor uw auto en de ander met een aansluitpunt hiervoor. De achtertuin is gesitueerd op het zuiden. Dit is geen huis, maar een thuis waar sfeer, karakter en comfort volop aanwezig zijn.
Fraaie villa in Schinnen met jaren ’30 invloeden, nabij het Geleenbeekdal. Aan de Stationsstraat in Schinnen is in 2003-2004 deze villa gebouwd, met gebruik van hoogwaardige materialen en een hoogwaardig afwerkingsniveau. Deze villa biedt niet alleen ruimte om te wonen, maar de werk-/studeerkamer op de begane grond is perfect om vanuit huis te werken. Aan beide zijden is een oprit, waarvan een met een elektrisch oplaadpunt voor uw auto en de ander met een aansluitpunt hiervoor. De achtertuin is gesitueerd op het zuiden. Dit is geen huis, maar een thuis waar sfeer, karakter en comfort volop aanwezig zijn.
Typering:
Welkom in het mooie Schinnen, omringd door prachtige natuur en met een gunstige ligging ten opzichte van de snelweg A76. Schinnen heeft goede voorzieningen als een supermarkt, basisschool, tandarts, huisarts en sportfaciliteiten en openbaar vervoer per bus en trein. Steden als Geleen, Sittard en Heerlen zijn goed bereikbaar, net als omringende dorpen als Oirsbeek, Puth en Spaubeek. Hier woont u op een zeer strategische plek in Zuid-Limburg, met Maastricht op circa 20 kilometer afstand en Eindhoven binnen 1 uur rijden.
Indeling:
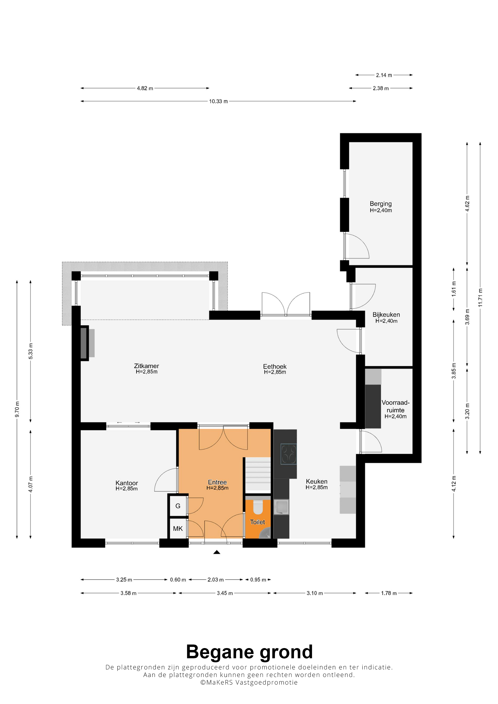
Begane grond:
Symmetrische lijnen en invloeden van de geliefde jaren 30 architectuur bepalen de uitstraling van deze fantastische villa, die de perfecte thuisbasis vormt voor een gezin en om vanuit huis te werken. In het midden van de statige voorgevel is de entree, die toegang geeft tot de fraaie ontvangsthal. Hier ziet u de bordestrap, een hoge vide en een klassieke marmeren vloer. Aan de rechterzijde is het gastentoilet en aan de linkerzijde, naast de garderobe, heeft u toegang tot een werk-/studeerkamer (circa 3,25 x 4,07). Deze kamer heeft, net als de rest van de begane grond, een circa 2.85 meter hoog plafond.
Dubbele deuren met facet glas in de hal geven toegang tot de tuingerichte woon-/eetkamer, met een royale oppervlakte van circa 47 m2. Het uitzicht naar de tuin is fraai, en de ligging op het zuiden zorgt gedurende de hele dag voor een aangename lichtinval. Sfeermakers zijn de gashaard bij het zitgedeelte en de massief houten parketvloer (afrormosia), die stijlvol is afgewerkt met hoge plinten.
Het eetgedeelte staat in open verbinding met de keuken van circa 13 m2, eveneens met een parketvloer. De luxe keukenopstelling van Siematic, met een aanrechtblad van natuursteen, is voorzien van inbouwapparatuur van A-merken: een inductie kookplaat, afzuigkap, heteluchtoven, vaatwasser, hogedruk stoomoven en een koelkast.
Vanuit de keuken heeft u toegang tot een provisieruimte (circa 3,20 x 2,14) en de aangrenzende bijkeuken (circa 3,69 x 1,78; met water/- afvoer aansluit optie) verbindt de woonkamer met de achtertuin. De ligging op het zuiden nodigt uit om in de zon te zitten, en hoge beplanting aan de achterzijde zorgt voor beschutting en privacy. Sfeermakers zijn de waterpartij en de buitenverlichting, terwijl de geïsoleerde, betegelde en verwarmde berging (circa 4,62 x 2,38 meter; met water/-afvoer aansluit optie) niet alleen ruimte biedt aan het tuingereedschap, maar ook ideaal is als kantoor aan huis.
De villa heeft een achtertuin toegang aan de linkerzijde, een fraai aangelegde voortuin en een dubbele oprit. Bij de oprit aan de linkerzijde is een elektrisch oplaadpunt voor de auto en aan de rechterzijde een oplaadpunt aansluit-optie (met eigen kWh meter) gerealiseerd.
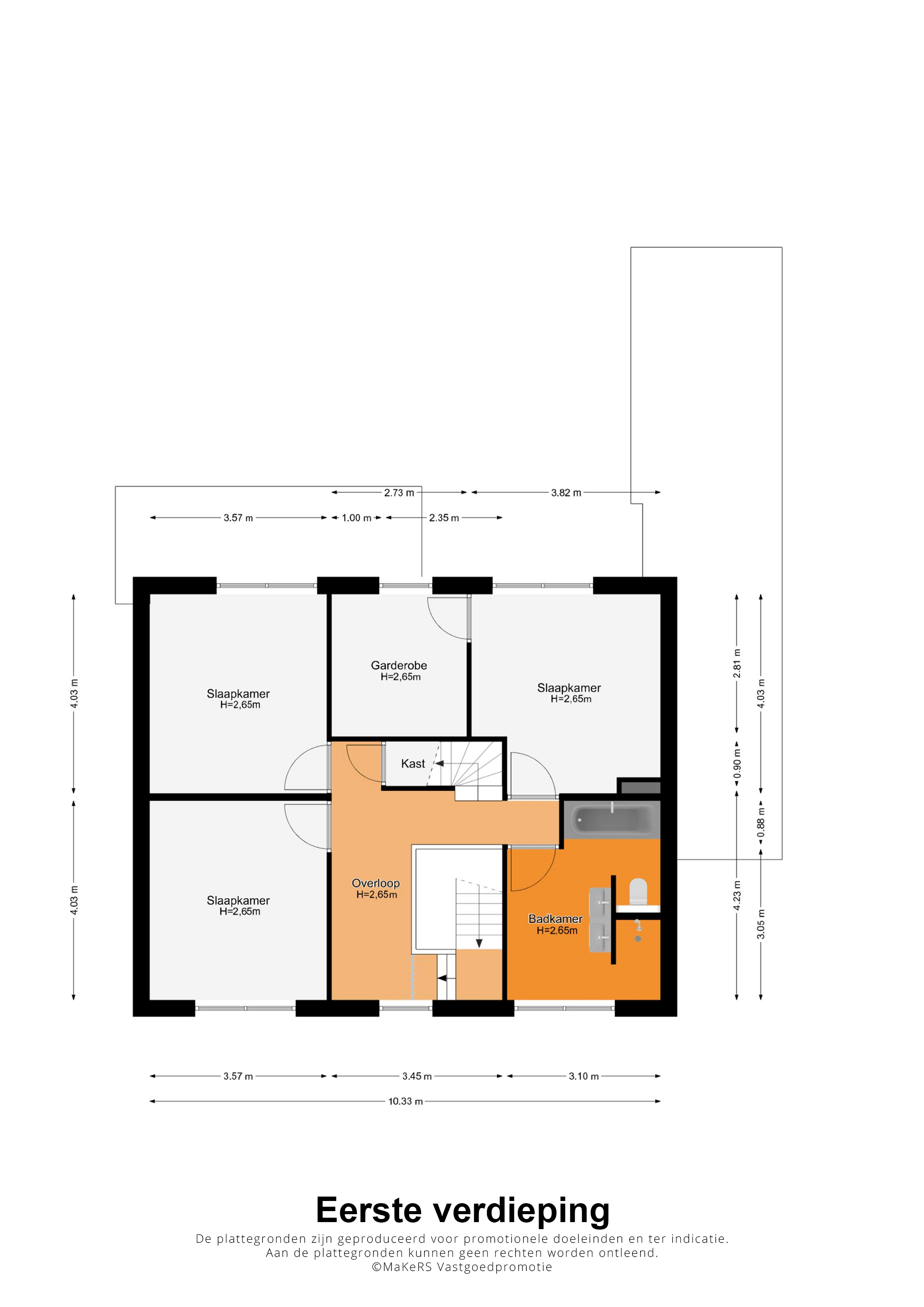
Eerste verdieping:
Volg de statige bordestrap vanuit hal naar de royale en lichte overloop, waaraan drie slaapkamers en de badkamer grenzen. Op deze verdieping hebben de plafonds een hoogte van circa 2.65 meter, en de algehele afwerking is zeer goed.
Aan de achterzijde is slaapkamer I (circa 4,03 x 3,82), in gebruik als master bedroom. Deze kamer biedt toegang tot een royale inloopkast. Ook slaapkamer II (circa 4,03 x 3,57) bevindt zich aan de achterzijde. Aan de voorzijde is slaapkamer III (circa 4,03 x 3,57) die, net als slaapkamer II, groot genoeg is voor een tweepersoonsbed.
De badkamer (circa 4,03 x 3,10) is een goed ingedeelde en royale ruimte, met Bisazza-mozaiek dat samen met het moderne sanitair voor een badkamer met een exclusieve uitstraling zorgt. U heeft de beschikking over een ligbad, inloopdouche, toilet, een halfrond wastafelmeubel met brede spiegel, bijbehorende kolomkasten (2) en elektrische vloerverwarming met tijdschakeling.
Onder de trap naar de tweede verdieping bevindt zich een ruime bergkast.
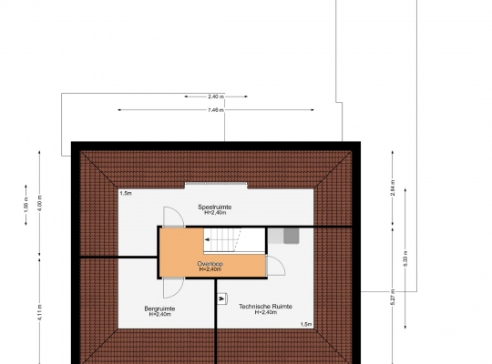
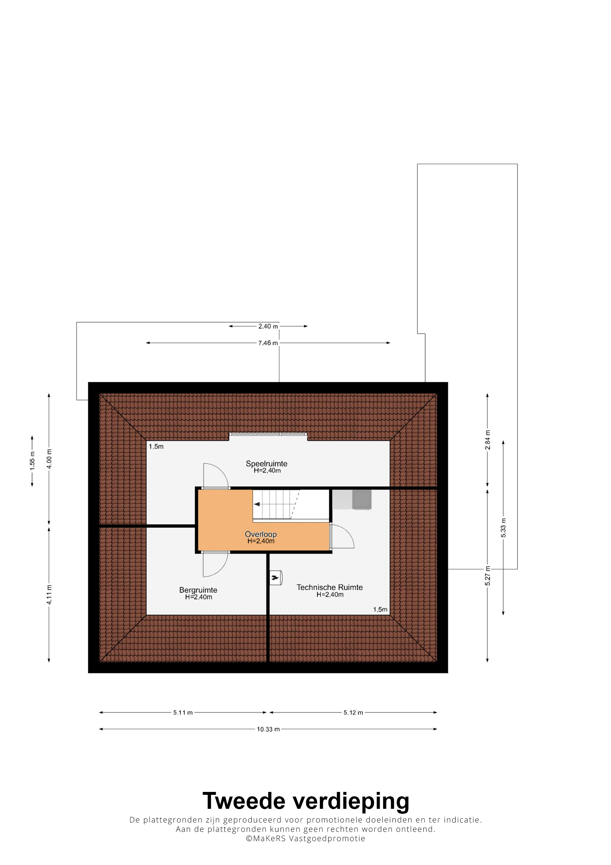
Tweede verdieping:
Een vaste trap geeft toegang tot de tweede verdieping, waar drie ruimtes gesitueerd zijn. Aan de voorzijde zijn een royale berging met toegang tot een vliering via een vlizotrap én de betegelde technische ruimte met voorzieningen voor was- en droog automaten, waar de opstelling van de HR-ketel (Remeha Quinta 35C, 2004, eigendom) en de WTW-installatie (Itho Daalderop HRU Eco LFT LE, 2015) zich bevindt.
Aan de achterzijde is een multifunctionele ruimte van circa 14 m2, met een dakkapel in een van de schuine dakvlakken. Deze ruimte, oorspronkelijk bedoeld als speelruimte, is ook geschikt als slaapkamer of werkkamer. De infraroodsauna wordt ter overname aangeboden.
Algemeen:
Bouwjaar: 2003-2004
Perceeloppervlakte: 375 m2
Gebruiksoppervlakte wonen: circa 238 m2, inhoud circa 917 m3
Prachtige jaren 30 architectuur, met de isolatie en het wooncomfort van nu
Dak met goede isolatie (Rc 5,25), keramische dakpannen en piron pannen ter verfraaiing
Verwarming en warm water via een HR-ketel (Remeha Quinta 35C, 2004, eigendom)
WTW-installatie (Itho Daalderop HRU Eco LFT LE, 2015)
Hardhouten (merbau) kozijnen en buitendeuren met HR++ glas
Buitenschilderwerk uitgevoerd in 2016
6 zonnepanelen van 430 Wp (2023) met een eigen kWh meter
Dubbele oprit, waarvan een met een elektrisch oplaadpunt voor de auto (eigen kWh meter)
Merendeels inbouwverlichting (tijdens de bouw ingestort) met led GU-lampen
Energielabel: A
Aanvaarding: in overleg
Ter bescherming van de belangen van zowel koper als verkoper, wordt uitdrukkelijk gesteld dat een koopovereenkomst met betrekking tot deze onroerende zaak eerst dan tot stand komt nadat koper en verkoper de koopovereenkomst hebben getekend (“schriftelijkheidsvereiste”).
De termijn die wordt opgenomen voor eventuele (overeengekomen) ontbindende voorwaarden (bv. Financiering) is in de regel 4 tot 6 weken na het sluiten van de mondelinge wilsovereenkomst.
De waarborgsom/bankgarantie is 10% van de koopsom. De koper dient deze 3 dagen ná het vervallen van de ontbindende voorwaarden bij de desbetreffende notaris te deponeren.
Koper is te allen tijde gerechtigd voor eigen rekening een bouwkundige keuring te (laten) verrichten dan wel andere adviseurs te raadplegen teneinde een goed inzicht te verkrijgen over de staat van onderhoud.
Deze informatie is door ons, Tijs & Cyril Makelaardij met de nodige zorgvuldigheid samengesteld. Onzerzijds wordt echter geen enkele aansprakelijkheid aanvaard voor enige onvolledigheid, onjuist of anderszins, dan wel de gevolgen daarvan. Alle opgegeven maten en oppervlakten zijn indicatief. Van toepassing zijn de NVM voorwaarden.