Vraagprijs € 745.000,- k.k.
Vrijstaand en luxe wonen op een prachtige en centrale plek in Zuid-Limburg, met vrij uitzicht aan de achterzijde.
Vrijstaand en luxe wonen op een prachtige en centrale plek in Zuid-Limburg, met vrij uitzicht aan de achterzijde.
Als u deze woning heeft gezien, bent u op slag verliefd! Aan de rand van Schimmert staat deze van top tot teen verbouwde en fors uitgebouwde woning, met een prachtige tuin en vrij uitzicht aan de achterzijde. Er zijn 4 slaapkamers, waarvan een op de 2e verdieping, en op de begane grond zijn een speelkamer, sportruimte en een meer dan 10 meter lange garage. De badkamer, woonkeuken, toiletruimte en woonkamer mogen zeker niet onvermeld blijven.
Typering:
De buurtschappen Klein-Haasdal en Groot-Haasdal maken deel uit van het charmante dorp Schimmert, omringd door een prachtig landschap. Hier kunt u wandelen, fietsen, hardlopen en genieten van veelzijdige natuur. Steden als Maastricht, Valkenburg en Heerlen zijn in de nabijheid, net als de snelwegen A2 en A76. In Schimmert vindt u een supermarkt, basisschool, enkele sportverenigingen en een huisartsenpraktijk. Ook in omliggende dorpen, waaronder Hulsberg en Meerssen, zijn diverse voorzieningen. De eerdergenoemde steden Maastricht, Valkenburg en Heerlen zorgen ervoor dat het u aan niets ontbreekt, van sport tot vele restaurants en cultuur.
Begane grond:
Niet alleen de buitenzijde maakt indruk, dit geldt ook voor de binnenzijde. Aan de voorzijde is de overdekte entree, die toegang geeft tot de royale ontvangsthal. De trap toont karakter, net als de glas-in loodramen in de zijgevel, en onder de tegelvloer ligt vloerverwarming. Aan het einde van de hal, tegenover de garderobe, is de fraaie toiletruimte met modern sanitair.
De woonkamer (circa 7,66 x 3,49) met houten vloer is het toppunt van stijl. Warme, lichte kleuren bepalen de sfeer en de afwerking is van hoog niveau. Aan de achterzijde is de woonkeuken (circa 8,19 x 5,90/4,87) met ramen tot vloerhoogte en een schuifpui naar de tuin. U ziet inbouwverlichting in het plafond, een maatwerk wandmeubel en een gashaard bij het eetgedeelte.
Uw oog valt op de keuken, ingedeeld met een groot eiland en een hoge kastenwand. Dit is de perfecte keuken voor een kook- en bakliefhebber, die graag contact houdt met het gezin, vrienden of familie die aan tafel zitten. Alle benodigde apparatuur, merendeels van Siemens, is ingebouwd: een Bora inductie kookplaat met afzuiging, een Quooker, koelkast, vaatwasser, koffiemachine, stoomoven en een warmhoudlade.
Vlak naast de keuken is de bijkeuken (circa 4,96 x 2,38) met maatwerkkasten, een spoelbak en de aansluitingen voor de wasapparatuur. Vanuit de keuken is er ook toegang tot een speelkamer (circa 4,58 x 3,08), tevens geschikt als thuiswerkplek of tv-kamer.
Aan de andere zijde van de woning zijn de garage en een multifunctionele ruimte, die thans in gebruik is als sportruimte. De garage (circa 10,01 x 3,47) heeft een sectionaalpoort naar de oprit en een aansluiting voor verwarming. In het verlengde van de sportruimte (circa 4,85 x 3,61) is een sfeervol overdekt terras met buitenhaard.
Om van het buitenleven te genieten zijn er meerdere terrassen. Kiest u voor het overdekte terras met de buitenhaard, voor het zonneterras of het overdekte terras in het verlengde van de keuken? Het uitzicht op de tuin en het achterliggende landschap, met een paardenwei als achterbuur, is van ongekende schoonheid.
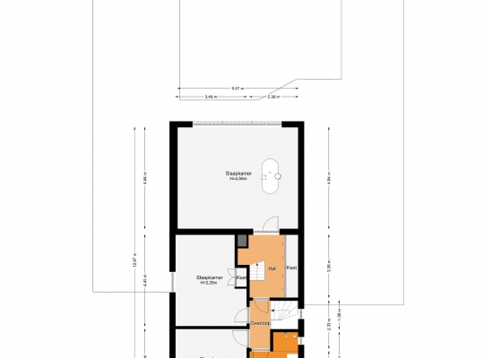
Eerste verdieping:
Niet alleen de begane grond, maar ook de eerste verdieping is fors uitgebouwd. Aan de voorzijde is slaapkamer I (circa 3,46 x 3,12) die, net als slaapkamer II (circa 4,45 x 3,46), in gebruik is als kinderkamer. Aan de achterzijde is slaapkamer III (circa 5,87 x 4,94), een master bedroom van 5-sterrenniveau. Het vrijstaande bad is het toppunt van design en het uitzicht …om in te lijsten.
De overloop bestaat uit twee delen, met een kastenwand in het achterste deel. Hiermee vervult deze ruimte tevens de functie van kleedruimte. Op bijna de hele etage ligt een houten vloer met een fraaie whitewash-afwerking.
De badkamer (circa 2,97/2,03 x 2,36) heeft, net als de rest van het huis, de wow-factor. Het badmeubel met twee wastafels is fraai, net als de kranen en het tegelwerk. Verder is de badkamer uitgevoerd met een wandcloset en een grote inloopdouche.
Tweede verdieping:
Een vaste trap geeft toegang tot een multifunctionele ruimte (totaal circa 7,72 x 3,85), met een nokhoogte van circa 2,06 meter. Het achterste deel is in gebruik als slaapkamer en het voorste deel als thuiswerkplek.
Algemeen:
Bouwjaar: 1970, gerenoveerd in 2018
Perceeloppervlakte: 600 m2
Gebruiksoppervlakte wonen: circa 197 m2, inhoud: circa 1004 m3
Verwarming en warm water via een HR-ketel (Nefit, 2006, eigendom)
Vloerverwarming op de begane grond (onder tegelvloer) en in de badkamer
Hardhouten kozijnen met isolatieglas (m.u.v. glas-in lood), aluminium pui met HR++ glas
16 zonnepanelen van 325 Wp en 4 zonnepanelen van 375 Wp
4 Daikin airco-units (verwarmen en koelen), geplaatst in 2023
Garage en een oprit met laadpaal
Energielabel: D
Aanvaarding: in onderling overleg
Ter bescherming van de belangen van zowel koper als verkoper, wordt uitdrukkelijk gesteld dat een koopovereenkomst met betrekking tot deze onroerende zaak eerst dan tot stand komt nadat koper en verkoper de koopovereenkomst hebben getekend (“schriftelijkheidsvereiste”).
De termijn die wordt opgenomen voor eventuele (overeengekomen) ontbindende voorwaarden (bv. Financiering) is in de regel 4 tot 6 weken na het sluiten van de mondelinge wilsovereenkomst.
De waarborgsom/bankgarantie is 10% van de koopsom. De koper dient deze 3 dagen ná het vervallen van de ontbindende voorwaarden bij de desbetreffende notaris te deponeren. Koper is te allen tijde gerechtigd voor eigen rekening een bouwkundige keuring te (laten) verrichten dan wel andere adviseurs te raadplegen teneinde een goed inzicht te verkrijgen over de staat van onderhoud.
Deze informatie is door ons Tijs & Cyril Makelaardij met de nodige zorgvuldigheid samengesteld. Onzerzijds wordt echter geen enkele aansprakelijkheid aanvaard voor enige onvolledigheid, onjuist of anderszins, dan wel de gevolgen daarvan. Alle opgegeven maten en oppervlakten zijn indicatief. Van toepassing zijn de NVM voorwaarden.