Een droomhuis boordevol karakter, sfeer en luxe met een prachtig aangelegde tuin in het vijfsterren Heuvellandschap. Het geheel is met oog voor detail verbouwd en verduurzaamd tot een uniek (t)huis.
Een droomhuis boordevol karakter, sfeer en luxe met een prachtig aangelegde tuin in het vijfsterren Heuvellandschap. Het geheel is met oog voor detail verbouwd en verduurzaamd tot een uniek (t)huis.
Typering:
Reijmerstok, bekend vanwege het sterrenrestaurant Brut172, is een fantastische plek om te wonen. Het omringende Heuvellandschap nodigt uit om te wandelen, hardlopen en fietsen in een omgeving met heuvels, dalen, bossen en schilderachtige dorpjes. Het dorp heeft een gemeenschapshuis, enkele (boerderij)winkels en een gunstige ligging ten opzichte van Gulpen, Margraten en Banholt. In deze plaatsen vindt u supermarkten, sportfaciliteiten en onderwijsvoorzieningen. Maastricht is ongeveer 15 minuten rijden, net als de A2 richting Eindhoven/Luik.
Souterrain:
Onder het achterste deel van de begane grond bevindt zich een wijn-/provisiekelder (circa 6,23 x 2,34) met een hoogte van 1,88 meter.
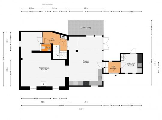
Begane grond:
In de prachtige aanbouw, met scheepsplanken als gevelbekleding, is de entree van dit fantastische huis. De hal (circa 3,6 m2) heeft, net als de rest van de woning, veel karakter en sfeer. Aan de rechterzijde is de bijkeuken (2,94 x 2,63) met een eigen entree, keukenblok, gootsteen en de opstelling van de wasapparatuur.
Aan de andere zijde van de hal is de woonkeuken (6,92 x 4,69) met een hoge vide en fraai gebruik van eikenhout, onder andere in de gebinten en balken. Er is ruimte voor een grote eettafel, waar u volop geniet van de lichtinval en het uitzicht naar de tuin. De fraaie hoekopstelling (2018) past qua stijl perfect in dit huis, onder andere vanwege de kleurstelling en het betonnen blad. Bij de spoelbak ziet u een Quooker en de inbouwapparatuur is van Siemens: een inductie kookplaat, afzuigkap, heteluchtoven, vaatwasser, koelkast en een vriezer.
De keuken staat in verbinding met de woonkamer (circa 40,0 m2) met een fraaie houtkachel en een apart speelgedeelte. Er ligt, net als op bijna de hele begane grond, een houten vloer met massief eiken toplaag die geschikt is voor de aanwezige vloerverwarming.
Vanuit de woonkamer en woonkeuken is een tweede hal te bereiken. Hier zijn de trap naar de eerste verdieping, de trap naar het souterrain, de meterkast en de toiletruimte met fonteintje. Klassieke elementen en huidige woontrends zijn smaakvol gecombineerd en de afwerking is van hoog niveau.
Het perceel heeft de vorm van een driehoek met een zeer zonnige zij- en achtertuin. Aan de voorzijde ziet u een oprit met houten poort, die leidt naar de zijtuin. Hoge beplanting, bomen, prachtige bestrating en een gazon zorgen voor een tuin met een fantastische sfeer. Er zijn zon- en schaduwplekken, kinderen hebben ruimte om buiten te zitten en er staan twee bijgebouwen, in stijl van de woning. De berging (8,10 x 4,70) heeft een vaste trap naar een bergzolder (nokhoogte 2,05 meter) en zonnepanelen op het dak. Bijgebouw II is een sfeervol overdekt terras waar u heerlijk beschut van deze fantastische plek kunt genieten.
Eerste verdieping:
Volg de mooie trap naar de overloop met vide, waaraan drie slaapkamers en de badkamer grenzen. Slaapkamer I (3,47 x 2,76) bevindt zich aan de voorzijde en slaapkamer II (3,37 x 3,65) is aan de linker achterzijde. Slaapkamer III (4,42 x 4,09) is een fraaie master bedroom met ramen aan drie zijden, onder andere richting de vide. Mooie elementen zijn de vloerafwerking, het vele eikenhout, het stucwerk en de zwarte louvres in de master bedroom.
In de zeer ruime badkamer (3,99 x 2,83) ziet u een inloopdouche (2023), toilet (2020), whirlpoolbad en een dubbel wastafelmeubel. De inloopdouche is voorzien van een regendouche en handdouche. Dit is een badkamer met een fantastische sfeer en mooi lichtinval.
Tweede verdieping:
Op de overloop is een vaste trap naar de tweede verdieping, die bestaat uit twee ruimtes. Op de overloop (3,65 x 2,78), in gebruik als werk-/studeerkamer, ziet u een vide en een berging met de opstelling van de HR-ketel (Intergas, 2020, eigendom). Aansluitend is slaapkamer IV (3,86 x 2,60) met een dakraam en bergruimte in de schuinten van het dak.
Algemeen:
Bouwjaar: 1920, gerenoveerd in de periode 2018-2021
Perceeloppervlakte: 1.340 m²
Gebruiksoppervlakte wonen: circa 177 m2, inhoud circa 708 m3
Verwarming via een HR-ketel (Intergas, 2020, eigendom), houtkachel en een airco-inverter (lucht-lucht warmtepomp)
Houten kozijnen, voorzien van HR++ glas
Voegwerk in 2020 en schilderwerk in 2021
14 zonnepanelen van 450 kW (Solarpanel)
De woning heeft dak-, gevel- en vloerisolatie
Gevelbekleding van robuust hout (scheepsplanken)
Eiken snippers, gemengd met leem, als duurzame afwerking van het dak in de slaapkamer en keuken
Asbest: n.v.t.
Energielabel: B
Aanvaarding: in onderling overleg
Ter bescherming van de belangen van zowel koper als verkoper, wordt uitdrukkelijk gesteld dat een koopovereenkomst met betrekking tot deze onroerende zaak eerst dan tot stand komt nadat koper en verkoper de koopovereenkomst hebben getekend (“schriftelijkheidsvereiste”).
Indien er in de woning huurtoestellen aanwezig zijn zoals CV-ketel, boiler, zonnepanelen, mechanische ventilatie etc. dan dienen deze door de koper te worden overgenomen.
De termijn die wordt opgenomen voor eventuele (overeengekomen) ontbindende voorwaarden (bv. Financiering) is in de regel 4 tot 6 weken na het sluiten van de mondelinge wilsovereenkomst.
De waarborgsom/bankgarantie is 10% van de koopsom. De koper dient deze 3 dagen ná het vervallen van de ontbindende voorwaarden bij de desbetreffende notaris te deponeren.
Koper is te allen tijde gerechtigd voor eigen rekening een bouwkundige keuring te (laten) verrichten dan wel andere adviseurs te raadplegen teneinde een goed inzicht te verkrijgen over de staat van onderhoud.
Deze informatie is door ons, Tijs & Cyril Makelaardij met de nodige zorgvuldigheid samengesteld. Onzerzijds wordt echter geen enkele aansprakelijkheid aanvaard voor enige onvolledigheid, onjuist of anderszins, dan wel de gevolgen daarvan. Alle opgegeven maten en oppervlakten zijn indicatief. Van toepassing zijn de NVM voorwaarden.