Ruime woning met 4 slaapkamers en een garage nabij prachtige natuur. Aan de rand van het mooie Munstergeleen, nabij natuurgebied ‘Windraak-Hondskerk’, staat deze geschakelde woning aan de brede, groene Watersleyerweg. Deze woning, gebouwd in 1988, biedt veel ruimte voor een gezin en om vanuit huis te werken. In de voor- en achtertuin ziet u veel groen en er zijn maar liefst drie terrassen, waarvan twee met een overkapping. De inpandig te bereiken garage/berging (circa 18 m2) met bergzolder is een prima plek voor de hobbyist en als (fietsen)berging.
Ruime woning met 4 slaapkamers en een garage nabij prachtige natuur. Aan de rand van het mooie Munstergeleen, nabij natuurgebied ‘Windraak-Hondskerk’, staat deze geschakelde woning aan de brede, groene Watersleyerweg. Deze woning, gebouwd in 1988, biedt veel ruimte voor een gezin en om vanuit huis te werken. In de voor- en achtertuin ziet u veel groen en er zijn maar liefst drie terrassen, waarvan twee met een overkapping. De inpandig te bereiken garage/berging (circa 18 m2) met bergzolder is een prima plek voor de hobbyist en als (fietsen)berging.
Typering:
Hier woont u aan de rand van het dorp, op loopafstand van prachtige natuur waar u kunt wandelen. Scholen, winkels, supermarkten, medische voorzieningen zijn op fietsafstand, net als Sittard en Geleen. De N276 staat in verbinding met de Ring Parkstad (Heerlen/Kerkrade/Landgraaf) en, via de N294 en de N297, met de snelweg A2.
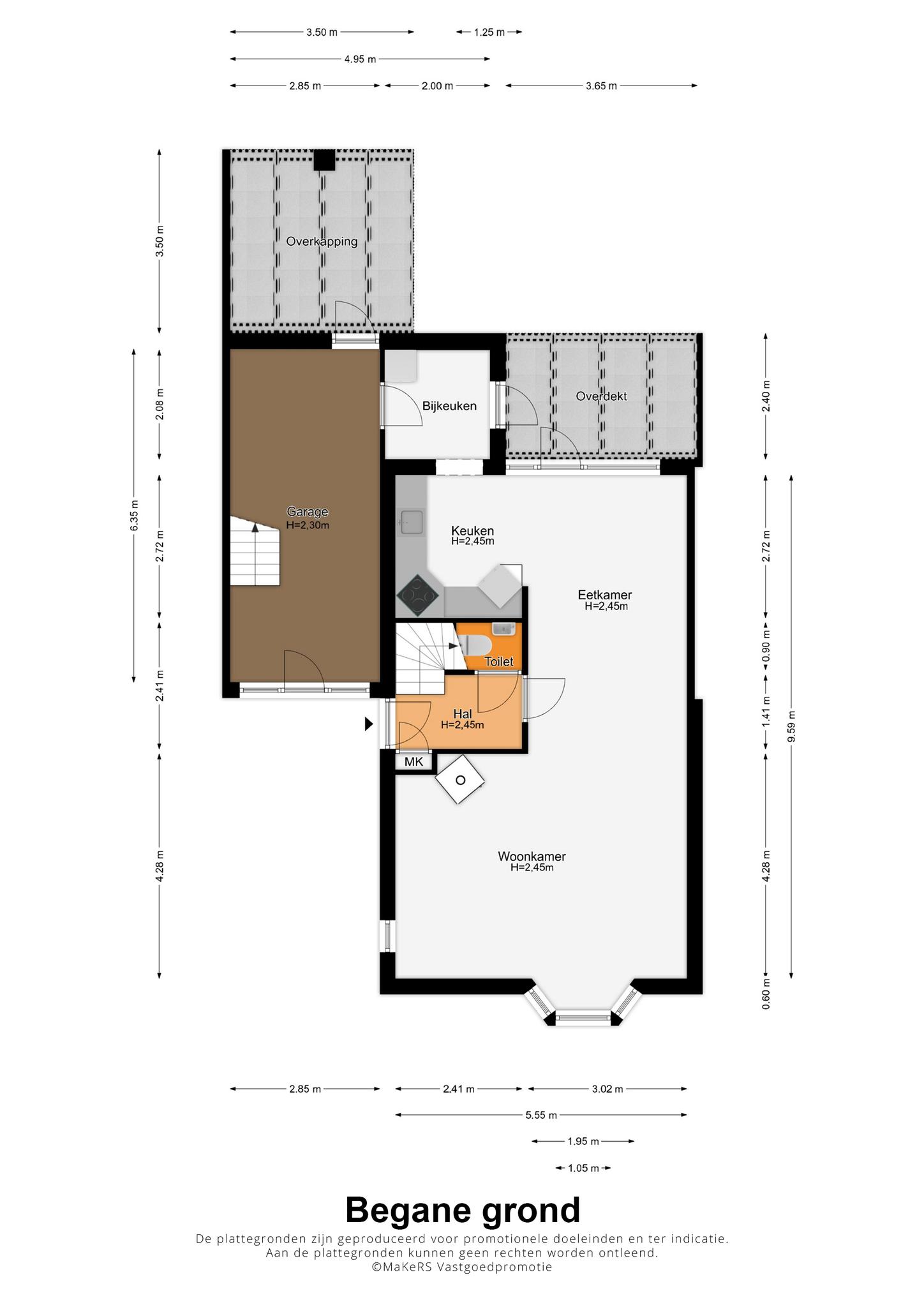
Begane grond:
Aan het einde van de oprit is de overdekte entree, die toegang geeft tot de garage (circa 6,35 x 2,85) en de lichte hal. In de hal zijn de trapopgang, meterkast en de toiletruimte met fonteintje. De leisteen vloer ligt niet alleen in de hal, maar ook in een deel van de woonkamer en de keuken.
De L-vormige woonkamer (circa 40 m2) heeft een erker, houtkachel en een houten vloer bij het royale zitgedeelte. Het eetgedeelte is aan de achterzijde, bij de deur naar het overdekte terras en de tuin. In de open keuken (circa 6,5 m2) staat een lichte hoekopstelling met hoge bovenkasten en het aanrechtblad is, net als de achterwand, van natuursteen. De inductie kookplaat, afzuigkap, oven en koelkast zijn ingebouwd.
In het verlengde van de keuken is de bijkeuken (circa 2,40 x 2,00) met de wasmachineaansluiting. Vanuit hier heeft u toegang tot de achtertuin en de eerdergenoemde garage. Met het plaatsen van een garagepoort is het mogelijk om een auto binnen te zetten. Boven de garage is een bergzolder (circa 6,35 x 2,85), te bereiken via een vaste trap.
De achtertuin op het zuidoosten is, net als de voortuin, van royaal formaat. U ziet veel groen, met beplanting die voor een deel groenblijvend is, en op de oprit is ruimte voor twee auto’s. De achtertuin is ingedeeld met twee overdekte terrassen en een groot zonneterras, omringd door groen.
Eerste verdieping:
Op de eerste verdieping zijn drie slaapkamers, waarvan twee aan de voorzijde. In slaapkamer I (circa 4,61 x 2,06) zorgt een zijraam voor lichtinval en vanuit slaapkamer II (circa 5,19 x 3,41) met dakkapel kijkt u naar de rustige straat. Aan de achterzijde is slaapkamer III (circa 3,70 x 2,64). In alle slaapkamers biedt een royale inbouwkast ruimte aan kleding en andere spullen.
De badkamer (circa 2,74 x 2,85) is ingedeeld met een ligbad, aparte douche, een hoge kast, toilet en een wastafelmeubel. Dankzij het grote raam in de achtergevel is de badkamer heel licht.
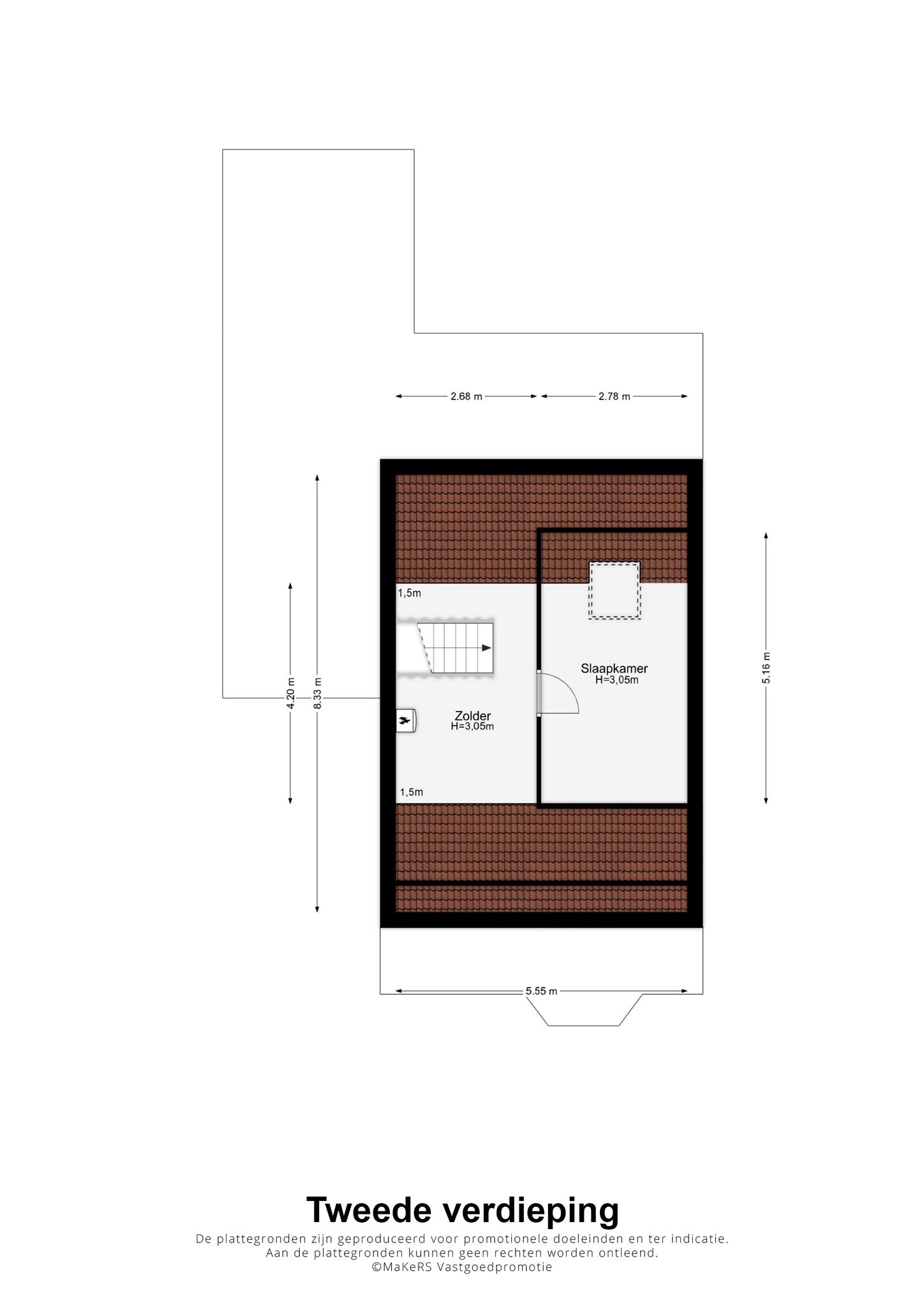
Tweede verdieping:
Een vaste trap geeft toegang tot de tweede verdieping. Als eerste is er een royale zolder, met de opstelling van de HR-ketel (Therme Master 3HR, 2012, eigendom). Aansluitend is slaapkamer IV (circa 5,16 x 2,78) met een dakraam aan de achterzijde en een meer dan 3 meter hoge nok.
Algemeen:
Bouwjaar: 1988
Perceeloppervlakte: 250 m2
Gebruiksoppervlakte wonen: circa 137 m2, inhoud circa 578 m3
Verwarming en warm water via een HR-ketel (Therme Master 3HR, 2012, eigendom)
Hardhouten kozijnen met isolatieglas
Dak-, spouwmuur- en vloerisolatie
Vier slaapkamers, waarvan een op de tweede verdieping
Oprit en een ruime garage met bergzolder
Ruime voor- en achtertuin met veel groen
Energielabel: C
Aanvaarding: in onderling overleg
Ter bescherming van de belangen van zowel koper als verkoper, wordt uitdrukkelijk gesteld dat een koopovereenkomst met betrekking tot deze onroerende zaak eerst dan tot stand komt nadat koper en verkoper de koopovereenkomst hebben getekend (“schriftelijkheidsvereiste”).
Indien er in de woning huurtoestellen aanwezig zijn zoals CV-ketel, boiler, zonnepanelen, mechanische ventilatie etc. dan dienen deze door de koper te worden overgenomen.
De termijn die wordt opgenomen voor eventuele (overeengekomen) ontbindende voorwaarden (bv. Financiering) is in de regel 4 tot 6 weken na het sluiten van de mondelinge wilsovereenkomst.
De waarborgsom/bankgarantie is 10% van de koopsom. De koper dient deze 3 dagen ná het vervallen van de ontbindende voorwaarden bij de desbetreffende notaris te deponeren.