Vrijstaand wonen op een centrale plek in Munstergeleen in dit uitgebouwde woonhuis met twee garages, een carport, berging/hobbyruimte en een ruime tuin.
Vrijstaand wonen op een centrale plek in Munstergeleen in dit uitgebouwde woonhuis met twee garages, een carport, berging/hobbyruimte en een ruime tuin.
Typering:
De Beekstraat in Munstergeleen wordt gekenmerkt door een zeer centrale ligging. De huisarts, fysiotherapeut, supermarkt, diverse horeca en winkels bevinden zich letterlijk om de hoek. Ook zijn er in het dorp een basisschool, diverse (sport)verenigingen en goede busverbindingen met Geleen en Sittard (station). De omgeving leent zich uitstekend om te wandelen richting Windraak, Sweikhuizen, de Danikerberg, het Absbroekbos en rondom de Geleenbeek. De Middenweg en Westelijke Randweg Sittard zorgen voor goede verbindingen met de stad en de snelweg A2.
Souterrain:
In de hal is een trap naar de kelder (4,10 x 3,87) met de opstelling van de Vaillant cv-ketel ( eigendom). De kelder heeft een hoogte van 1,80 meter.
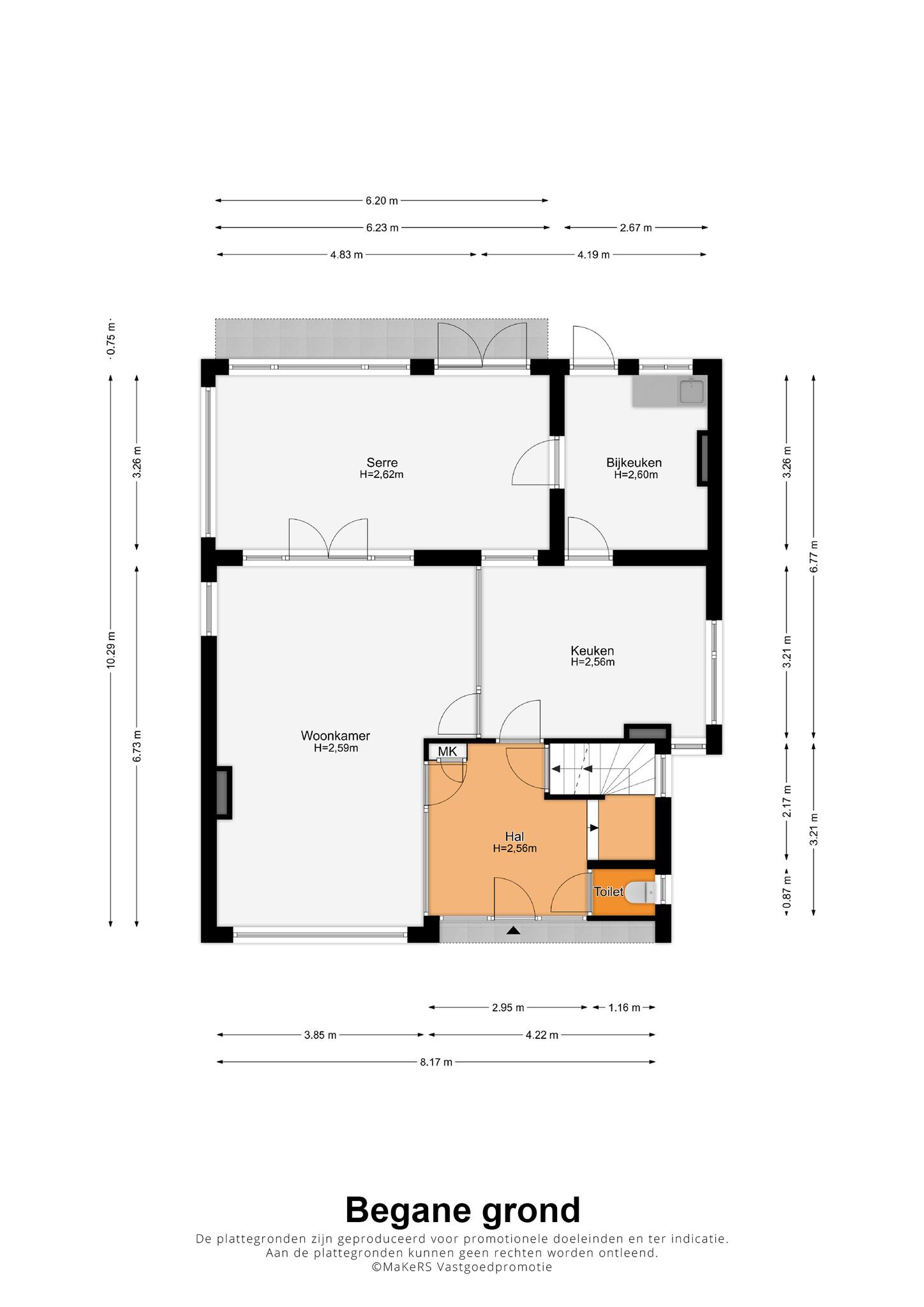
Begane grond:
De lichte hal met bordestrap is een grote ruimte, waar een flagstone vloer met natuursteen ligt. Rechts in de hal is de toiletruimte en aan de linkerzijde, naast de woonkamerdeur, bevindt zich de meterkast.
Aan de achterzijde is de woonkamer uitgebouwd met een serre, waardoor de gehele leefruimte een stuk groter is geworden. De L-vormige woonkamer met ramen aan vier zijden heeft een oppervlakte van circa 29,0 m2 en de serre met openslaande tuindeuren is circa 20,3 m2.
Vanuit de hal en woonkamer is de oorspronkelijke keuken (4.19 x 3,21) te bereiken, ingedeeld met een zit- en een eethoek. In de bijkeuken (3,22 x 2,67) staat een eenvoudige keukenopstelling met een spoelbak en geiser (eigendom).
De tuin met hoog hekwerk en schuifpoort is ingedeeld met gras, bestrating en beplanting. Aan de achterzijde bevindt zich een groot, eenvoudig zwembad en er is genoeg ruimte om in de zon te zitten.
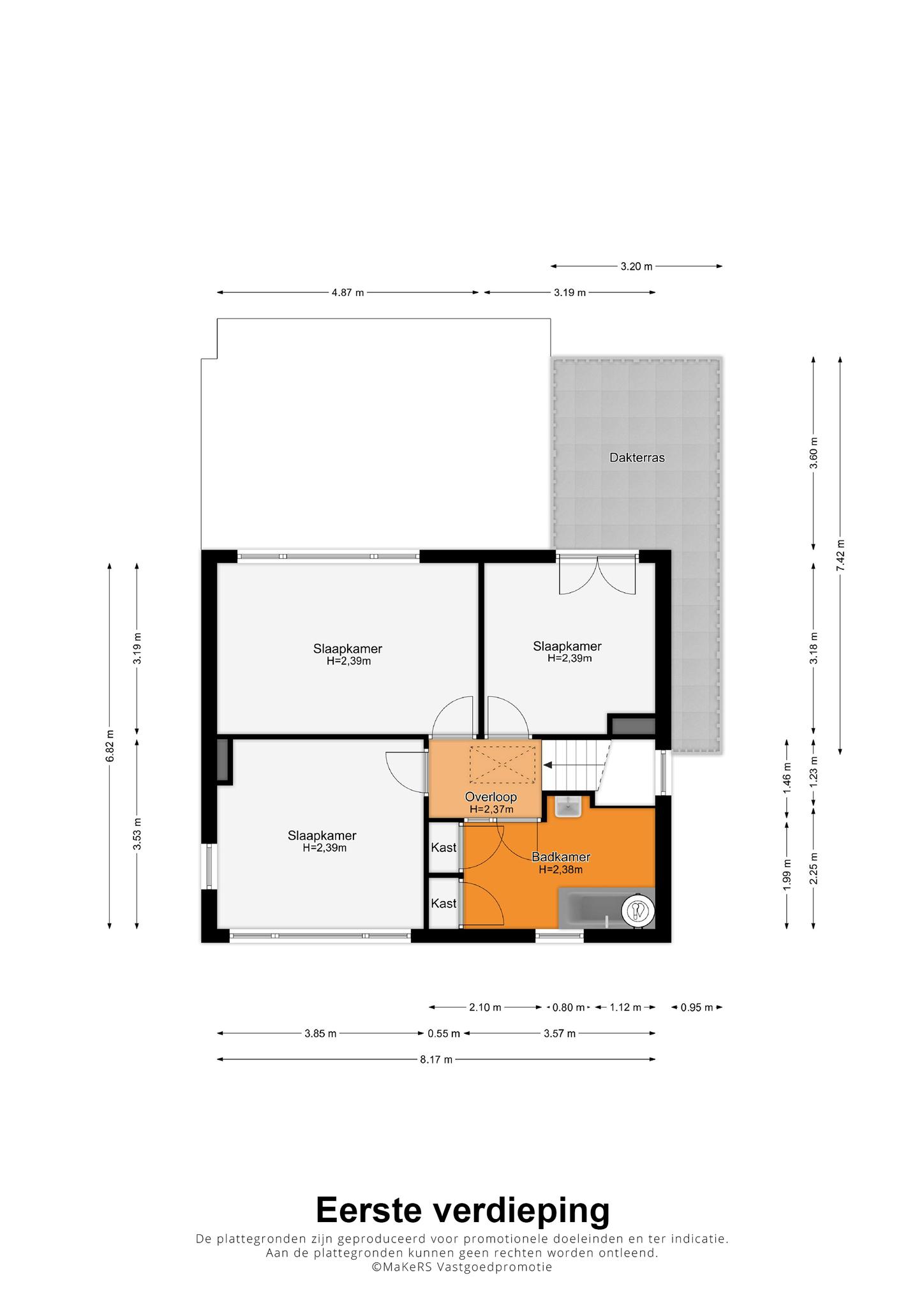
1e verdieping:
Vanaf de overloop zijn drie slaapkamers en de ruime badkamer te bereiken. Slaapkamer I (3,85 x 3,53) bevindt zich aan de voorzijde en in slaapkamer II (4,87 x 3,19) hangt een airco-unit. Deze slaapkamer bevindt zich, net als slaapkamer III (3,19 x 3,18), aan de achterzijde.
De ruime, lichte badkamer (circa 7,5 m2) is ingedeeld met een ligbad, wastafelmeubel en twee inbouwkasten. Boven het ligbad hangt een boiler (huur, Volta).
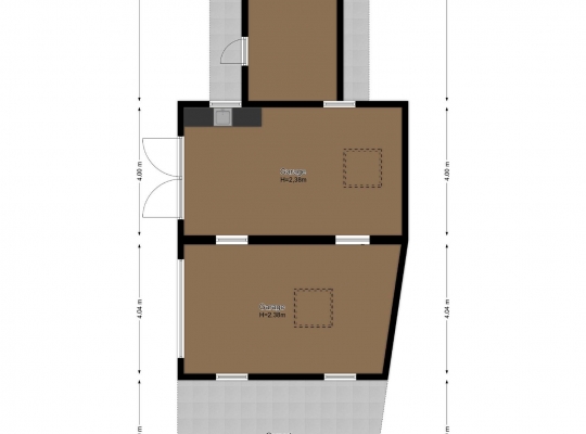
Zolder:
Een luik met vlizotrap geeft toegang tot de bergzolder met een vloeroppervlakte van circa 8,17 x 6,88 meter. De nokhoogte van 2,25 meter maakt het mogelijk om extra (slaap)kamers te realiseren.
Bijgebouwen:
Op het perceel staan maar liefst vier bijgebouwen; een berging/hobbyruimte, twee garages en een carport. De carport (6,19 x 3,50) is, net als de garages (resp. 6,81 x 4,00 en 6,19 x 4,04), goed bereikbaar vanaf de oprit. De rechter garage heeft een kantelpoort en de linker garage openslaande deuren. De berging/hobbyruimte (7,40 x 2,78) met staldeuren aan de voorzijde is voor diverse doeleinden geschikt.
Algemeen:
Bouwjaar: 1965
Perceeloppervlakte: 753m2
Gebruiksoppervlakte wonen: circa 146 m2, inhoud circa 624 m3
Verwarming via een Vaillant cv-ketel, warm water via een geiser en boiler
Houten kozijnen, voorzien van enkel glas
Airco-units in de keuken en slaapkamer
Mogelijkheid voor een vaste trap naar de tweede verdieping
Meerdere bijgebouwen voor opslag en hobby
Energielabel: F
Aanvaarding: In overleg