Fraai verbouwde, verrassend ruime woning met een fantastische woonkamer, zonnige tuin en een dubbele garage op een mooie plek in Munstergeleen. Deze woning biedt veel meer ruimte dan de buitenzijde doet vermoeden. De begane grond is recentelijk verbouwd en opnieuw ingedeeld, geheel passend in de huidige woontrends.
DEZE WONING WORDT U AANGEBODEN DOOR TIJS & CYRIL MAKELAARDIJ SITTARD:
Fraai verbouwde, verrassend ruime woning met een fantastische woonkamer, zonnige tuin en een dubbele garage op een mooie plek in Munstergeleen. Deze woning biedt veel meer ruimte dan de buitenzijde doet vermoeden. De begane grond is recentelijk verbouwd en opnieuw ingedeeld, geheel passend in de huidige woontrends.
Typering:
Deze bijzondere en smaakvol verbouwde woning staat aan het begin van de straat, net om de hoek van de Kerkstraat. De basisschool met BSO, voetbalclub, scouting en het centrum met supermarkt bevinden zich in de directe nabijheid. Munstergeleen heeft een fraaie ligging ten opzichte van de Geleenbeek en het Danikerbos, waar u kunt wandelen en hardlopen. Geleen en Sittard, zijn op fietsafstand en de N275 staat in verbinding met de Ring Parkstad (Heerlen/Kerkrade/Landgraaf).
INDELING:
Souterrain:
Onder de hal bevindt zich een kelderruimte (ca. 3,80 x 1,87) met een hoogte van 1,78 meter. In deze ruimte is de opstelling van de wasmachine en droger.
Begane grond:
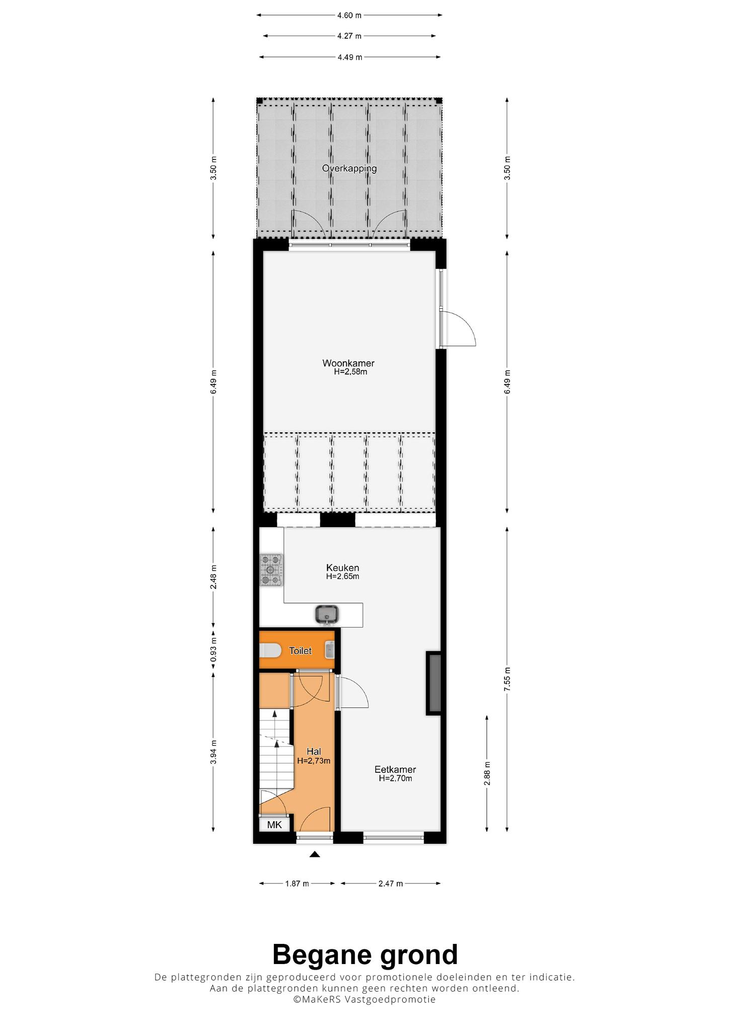
De hal met originele granitovloer is een mooie ruimte met de trapopgang, meterkast en een ca. 3 meter hoog plafond. Aan het einde van de hal is de vergrote toiletruimte, ingedeeld met een wandcloset en een fonteintje.
Dankzij een 6.50 meter lange uitbouw is de leefruimte op de begane grond fors vergroot. Met een totale oppervlakte van ca. 51 m2 heeft deze woonkamer en keuken van groot formaat. Hierbij is ook gekozen voor een andere indeling; het eetgedeelte bevindt zich aan de voorzijde en aan de achterzijde, bij de pui met dubbele tuindeuren, is de ruimte ingedeeld met een grote zithoek en een thuiswerkplek. Tevens is deze ruimte voorzien van een airco. De donkere vloer, lichte wanden, witte houten shutters en de grote lichtstraat vormen een fraai geheel.
In de open keuken staat een moderne, lichte hoekopstelling (2022) met een zwart (granieten) aanrechtblad, grote spoelbak, een 5-pits gaskookplaat, afzuigkap, heteluchtoven en een vaatwasser.
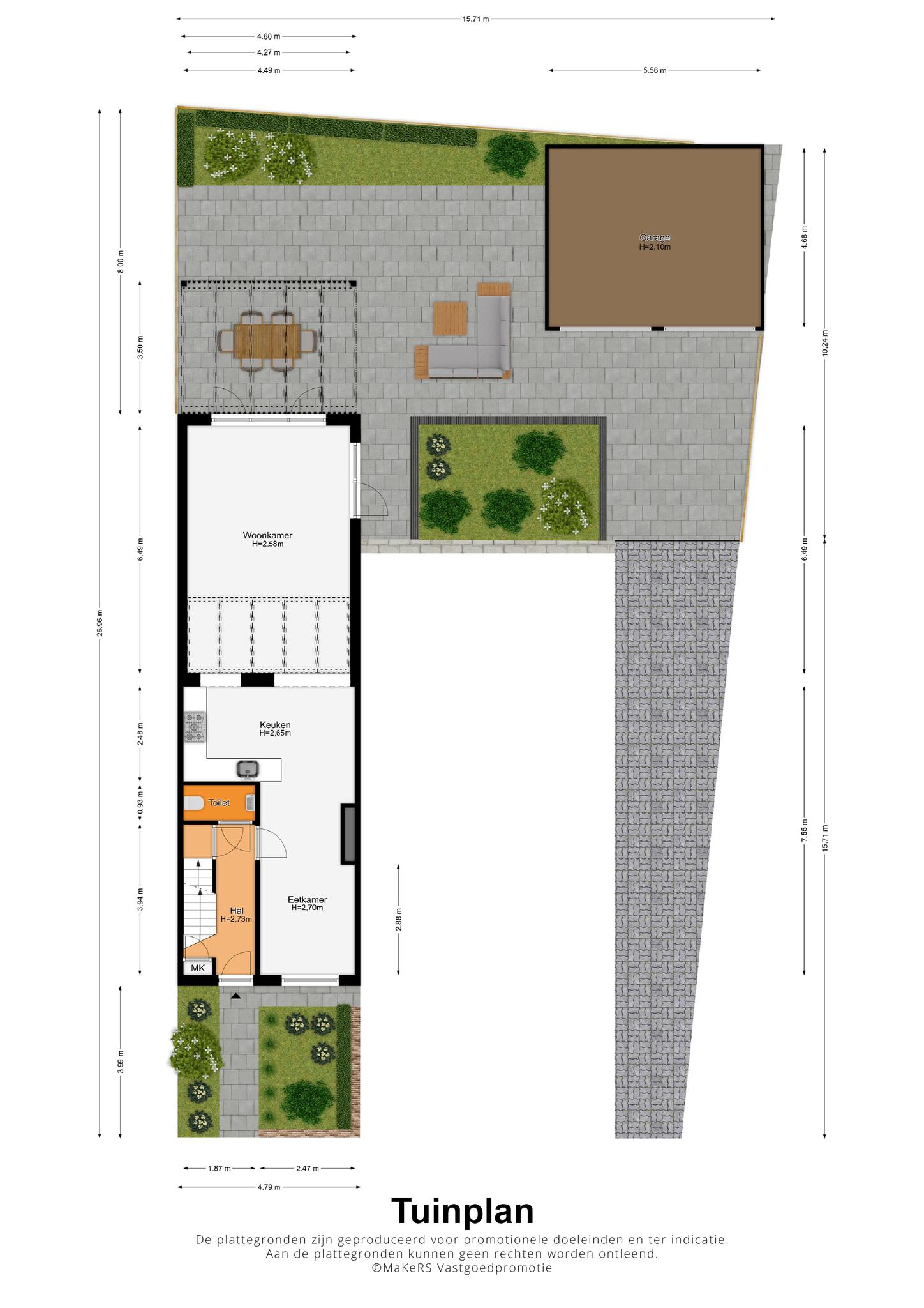
De voor- en achtertuin zijn fraai aangelegd met een grote variatie aan beplanting, die voor een groot deel groenblijvend is. In de achtertuin staat een groot, overdekt terras en er is volop ruimte om in de zon te zitten. In het rechterdeel van de tuin staat een dubbele garage (ca. 5,56 x 4,68) met twee kantelpoorten en elektra. Via de oprit met grote poort is, ook met een auto, de openbare weg te bereiken.
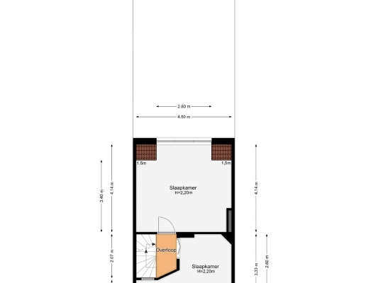
Eerste verdieping:
Verrassend is de indeling op de eerste verdieping, waar een overloop en twee ruime slaapkamers zijn. Slaapkamer I (ca. 4,50 x 4,14) met dakkapel, witte houten shutters en airco, gesitueerd aan de achterzijde, is in gebruik als fraaie master bedroom. Aan de voorzijde is slaapkamer II (ca. 4,50 x 3,33/1,29) met een dakkapel, ingericht als logeerkamer.
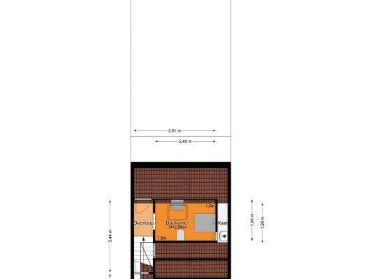
Tweede verdieping:
Onder het steile, schuine dak is de badkamer (ca. 1,90 x 2,89) met een douchecabine, toilet, wastafel en een wandcloset. Het dakraam zorgt voor veel lichtinval en er zijn meerdere bergingen gecreëerd. In een van de bergingen is de opstelling van de HR-ketel (Remeha, 2023, eigendom).
Algemeen:
Bouwjaar: 1927
Gebruiksoppervlakte wonen: circa 104 m2, inhoud circa 401 m3
Verwarming en warm water via een HR-ketel (Remeha, 2023, eigendom)
Twee airco's in de woonkamer en master bedroom van het merk; Daikin (koelen, verwarmen en luchktwaliteit verbeteren)
Houten kozijnen met isolatieglas
Kunststof lichtstraat en dakkapel met kunststof kozijn, deels voorzien van HR++ glas
Zeer ruime woonkamer met open keuken en eetkamer (totaal ca. 51 m2)
Dubbele garage, te bereiken met de auto
Energielabel: D
Ter bescherming van de belangen van zowel koper als verkoper, wordt uitdrukkelijk gesteld dat een koopovereenkomst met betrekking tot deze onroerende zaak eerst dan tot stand komt nadat koper en verkoper de koopovereenkomst hebben getekend (“schriftelijkheidsvereiste”).
Indien er in de woning huurtoestellen aanwezig zijn zoals CV-ketel, boiler, zonnepanelen, mechanische ventilatie etc. dan dienen deze door de koper te worden overgenomen.
De termijn die wordt opgenomen voor eventuele (overeengekomen) ontbindende voorwaarden (bv. Financiering) is in de regel 4 tot 6 weken na het sluiten van de mondelinge wilsovereenkomst.
De waarborgsom/bankgarantie is 10% van de koopsom. De koper dient deze 3 dagen ná het vervallen van de ontbindende voorwaarden bij de desbetreffende notaris te deponeren.