Een buitenkans! Deze lichte hoekwoning met oprit, garage en 4 slaapkamers staat op een rustige plek aan de rand van het centrum van Meerssen.
Een buitenkans! Deze lichte hoekwoning met oprit, garage en 4 slaapkamers staat op een rustige plek aan de rand van het centrum van Meerssen.
Typering:
U woont op een rustige en kindvriendelijke plek aan de rand van het centrum. De basisschool, het kinderdagverblijf en gemeenschapshuis De Stip zijn maar een paar minuten lopen. Ook de winkels, speciaalzaken, restaurants, het treinstation en de bushalte bevinden zich in de nabijheid. Loop naar het mooie, groene Proosdijpark en wordt lid van een van de sportverenigingen in Meerssen, want er is keuze genoeg. De uitvalswegen richting Maastricht, Heerlen en Sittard zijn goed bereikbaar en vanaf het treinstation vertrekt ieder kwartier een trein naar Maastricht. Het centrum van Maastricht is iets meer dan 7 kilometer fietsen, net als Valkenburg,
Indeling:
Begane grond:
Aan het einde van de oprit is de entree van deze lichte hoekwoning. De hal met laminaatvloer staat in verbinding met de woonkamer en de toiletruimte. Hier zie je lichte wandtegels, donkere vloertegels, een net toilet en een fonteintje.
De L-vormige woonkamer van circa 30,9 m2 is goed indeelbaar met het zitgedeelte aan de voorzijde en het eetgedeelte aan de achterzijde, naast de keuken. Het uitzicht naar de voortuin, brede straat en de achtertuin is fraai.
In de keuken (2,30 x 1,99) ligt dezelfde laminaatvloer als in de woonkamer. De witte hoekopstelling heeft hoge bovenkasten, een donker aanrechtblad, lades en onderkasten en een ingebouwde afzuigkap. Via de keuken en de tuin is het maar een paar stappen naar de aangebouwde, stenen garage (6,00 x 2,86) voorzien van elektra en een kantelpoort naar de oprit.
De brede achtertuin is ingedeeld met meerdere terrassen en onderhoudsvriendelijke beplanting. Er is voldoende speelruimte voor de kinderen en gedurende de dag kun je kiezen voor een plekje in de zon of schaduw.
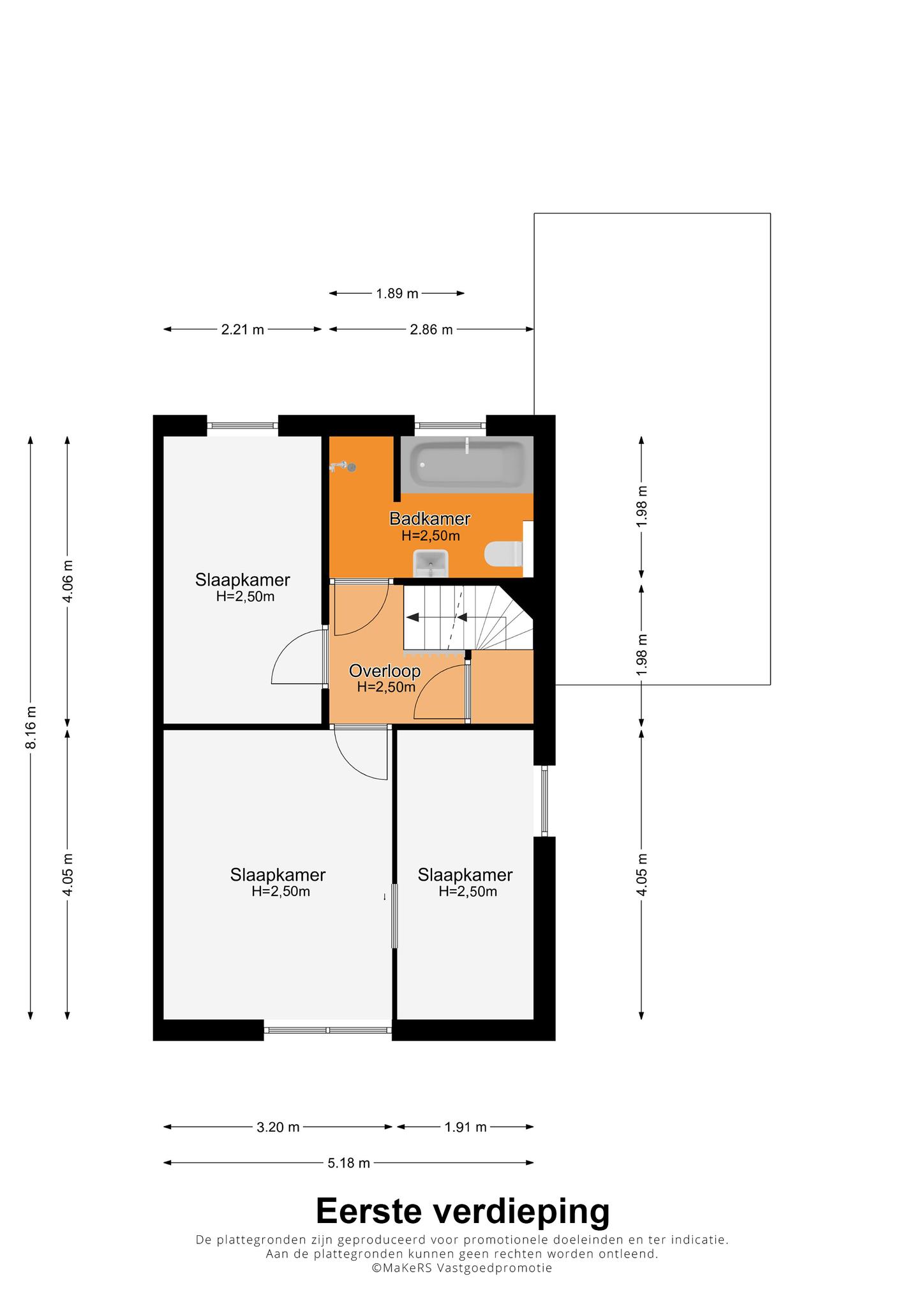
Eerste verdieping:
Op de eerste verdieping zijn de overloop, drie slaapkamers en de badkamer. Slaapkamer I (4,05 x 3,20) en slaapkamer II (4,05 x 1,91) aan de voorzijde staan onderling met elkaar in verbinding. Aan de achterzijde ziet u slaapkamer III (4,06 x 2,21) en de badkamer (2,86 x 1,98).
In de badkamer ziet u dezelfde stijl als in de toiletruimte. De ruimte is ingedeeld met een ligbad, aparte douche, een wandcloset en een wastafel.
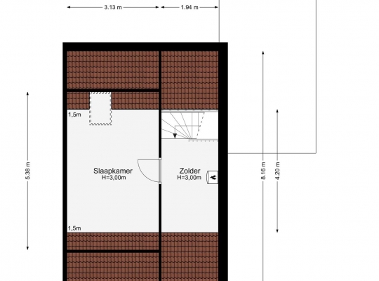
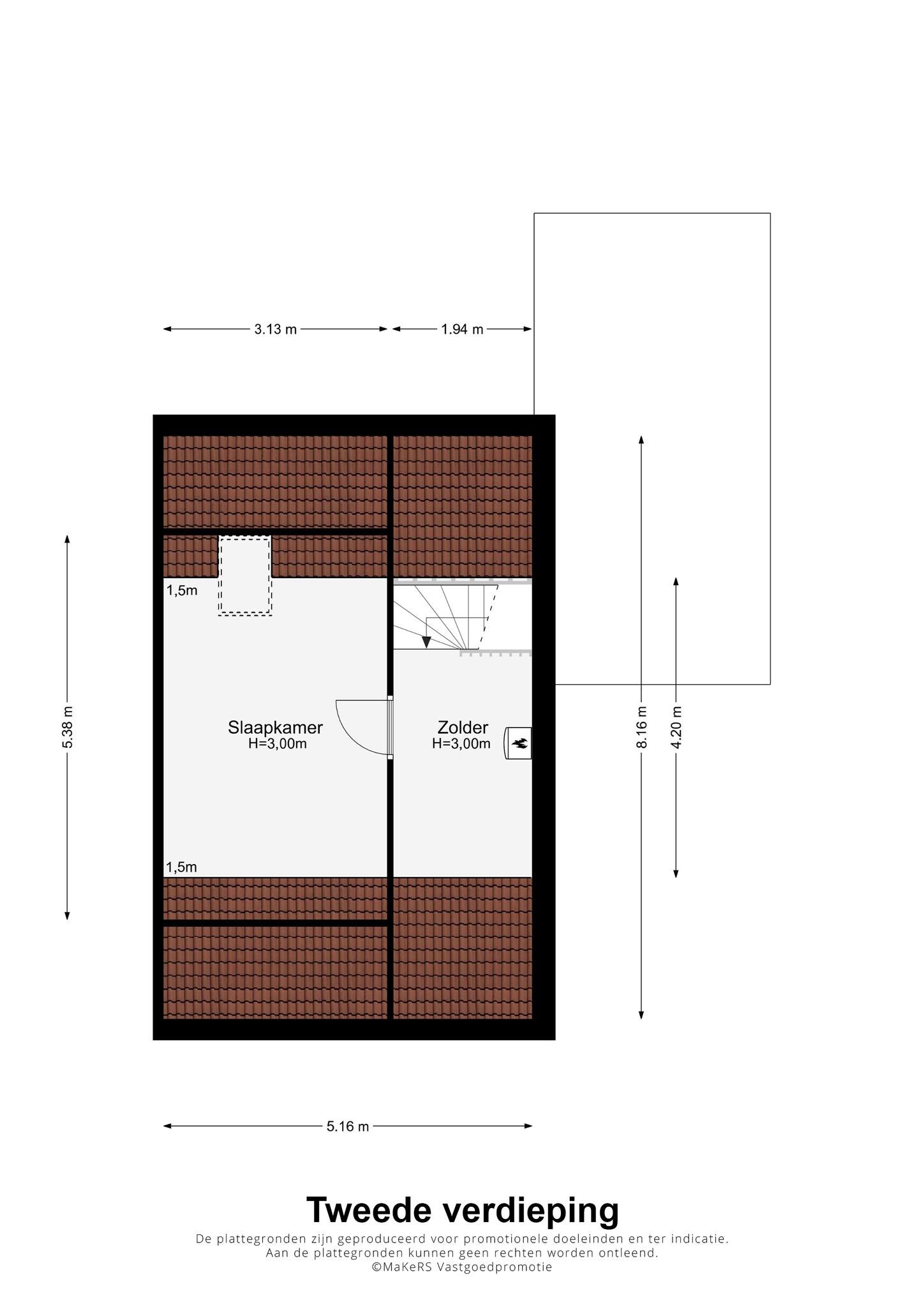
Tweede verdieping:
Er is een vaste trap naar de tweede verdieping, verdeeld in een overloop (4,20 x 1,94) en een ruime slaapkamer (4,20 x 3,13) met groot dakraam. De genoemde afmetingen zijn tot een hoogte van 1,50 meter, wat betekent dat de vloeroppervlakte van beide ruimtes groter is. Op de overloop is de opstelling van de HR-ketel (Remeha, eigendom).
Algemeen:
Bouwjaar: 1985
Perceeloppervlakte: 213 m2
Gebruiksoppervlakte wonen: circa 107 m2, inhoud circa 435 m3
De woning heeft dak-, spouwmuur- en vloerisolatie
Energielabel: C
Bij deze woning zijn geen lijst van zaken en vragenlijst aanwezig.
Projectnotaris: Wyck Notarissen te Maastricht
Aanvaarding: op korte termijn mogelijk
Ter bescherming van de belangen van zowel koper als verkoper, wordt uitdrukkelijk gesteld dat een koopovereenkomst met betrekking tot deze onroerende zaak eerst dan tot stand komt nadat koper en verkoper de koopovereenkomst hebben getekend (“schriftelijkheidsvereiste”).
Indien er in de woning huurtoestellen aanwezig zijn zoals CV-ketel, boiler, zonnepanelen, mechanische ventilatie etc. dan dienen deze door de koper te worden overgenomen.
De termijn die wordt opgenomen voor eventuele (overeengekomen) ontbindende voorwaarden (bv. Financiering) is in de regel 4 tot 6 weken na het sluiten van de mondelinge wilsovereenkomst.
De waarborgsom/bankgarantie is 10% van de koopsom. De koper dient deze 3 dagen ná het vervallen van de ontbindende voorwaarden bij de desbetreffende notaris te deponeren.
Koper is te allen tijde gerechtigd voor eigen rekening een bouwkundige keuring te (laten) verrichten dan wel andere adviseurs te raadplegen teneinde een goed inzicht te verkrijgen over de staat van onderhoud.
Deze informatie is door ons, Tijs & Cyril Makelaardij met de nodige zorgvuldigheid samengesteld. Onzerzijds wordt echter geen enkele aansprakelijkheid aanvaard voor enige onvolledigheid, onjuist of anderszins, dan wel de gevolgen daarvan. Alle opgegeven maten en oppervlakten zijn indicatief. Van toepassing zijn de NVM voorwaarden.