Vraagprijs € 339.000,- k.k.
Rustig gelegen maisonnette appartement in het centrum van Meerssen. Het Hof van Oranje is een oase van rust in het prachtige, oude centrum van Meerssen. Hier staat deze lichte maisonnette met 3 slaapkamers, een ruime badkamer, lichte woonkamer en een keuken met inbouwapparatuur. Het balkon is te bereiken vanuit de woonkamer, met mooi uitzicht naar een autovrij pleintje. Bij het appartement hoort een eigen berging voor de fiets(en).
Rustig gelegen maisonnette appartement in het centrum van Meerssen. Het Hof van Oranje is een oase van rust in het prachtige, oude centrum van Meerssen. Hier staat deze lichte maisonnette met 3 slaapkamers, een ruime badkamer, lichte woonkamer en een keuken met inbouwapparatuur. Het balkon is te bereiken vanuit de woonkamer, met mooi uitzicht naar een autovrij pleintje. Bij het appartement hoort een eigen berging voor de fiets(en).
Typering:
Het is fantastisch wonen in het historische en gezellige centrum van Meerssen met winkels, restaurants en andere voorzieningen in de directe nabijheid. Verder woont u op loopafstand van diverse medische voorzieningen, een basisschool, voortgezet onderwijs en de bibliotheek. Maastricht en Valkenburg zijn gelegen op circa 4,5 km afstand en zijn met de fiets, bus, auto en trein goed bereikbaar en u woont op een paar autominuten van de op- en afrit van de A2 en A79. Tevens bevindt zich het vliegveld Maastricht- Aachen Airport in de directe nabijheid. Voeg hierbij de beschikbaarheid van natuur (het Roekenbos, Maas- en Geuldal), een middelbare school en vele sportvoorzieningen, wat Meerssen tot een heel aantrekkelijke plek maakt om te wonen, mede door de directe aanwezigheid van het Zuid-Limburgse heuvellandschap.
Begane grond:
Vanaf de Beekstraat loopt u het prachtige (autovrije) pleintje op, richting de entree van het kleinschalige appartementengebouw. Een andere route is het steegje vanaf de Markt, tussen nummer 2 en 4. Het pleintje straalt karakter, sfeer en rust uit, en dat midden in het historische centrum van Meerssen!
De entree is alleen bestemd voor huisnummer 1 en 3, waardoor u heel rustig woont. Op de begane grond zijn de brievenbus, meterkast en de trap naar de eerste verdieping. Bij het appartement hoort een ruime privéberging van circa 5 m2, die direct via de entreehal bereikbaar is.
Eerste verdieping:
Open de voordeur naar de hal van het appartement (circa 2,85 x 1,33), met de trap naar de tweede verdieping en de toiletruimte aan de rechterzijde. Op de trap ligt tapijt en in de hal ligt, net als op bijna de hele eerste verdieping, laminaat op de vloer. Door het raam in de woonkamerdeur valt veel licht naar binnen, waardoor de hal nog ruimer oogt.
De L-vormige woonkamer (circa 38 m2) is een zeer royale leefruimte met grote ramen aan twee zijden. Aan de voorzijde kijkt u naar het pleintje, richting de Beekstraat en een deur geeft toegang tot het terras (circa 3,20 x 2,55). Aan de achterzijde, naast de plek waar vroeger de eettafel stond, is een brede doorgang naar een half open keuken (circa 2,75 x 2,94). Hier staat een lichte hoekopstelling met een keramische kookplaat, afzuigkap, vaatwasser, koelkast met vriesvak en een combimagnetron. In de woonkamer bevindt zich nog een opbergruimte voor bijvoorbeeld het terrasmeubilair.
Tweede verdieping:
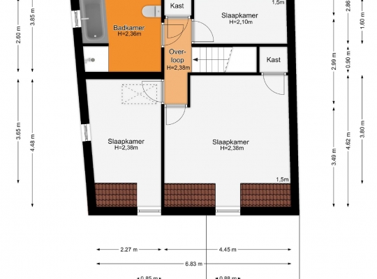
Een verdieping hoger zijn de slaapkamers, drie in totaal. Deze kamers zijn, net als de badkamer en een diepe bergkast, te bereiken vanaf de overloop. Slaapkamer I (circa 4,45 x 4,62) met inbouwkast is, net als slaapkamer II(circa 4,48 x 2,77) aan de voorzijde met uitzicht naar het pleintje. Aan de achterzijde is slaapkamer III (circa 3,20 x 2,86) die, net als de andere slaapkamers, een mooie dakkapel heeft.
De badkamer (circa 3,85 x 3,00), met speelse schuine daklijnen en een raam, is ingedeeld met een ligbad, aparte douche, wastafel en een tweede toilet. Witte wandtegels zijn gecombineerd met grijze vloertegels en keurig wit sanitair. Ook is in de badkamer, naast de radiator, de aansluitingen voor de wasmachine en droger.
Zolder:
In een van de slaapkamers is een vlizotrap naar de zolder (circa 7 x 3,90), die een nokhoogte van circa 1,60 meter heeft en waar de installaties zich bevinden.
Algemeen:
Bouwjaar: 2001 (restauratie)
Gebruiksoppervlakte wonen: circa 107 m2, inhoud circa 398 m3.
Verwarming en warm water via een HR-ketel (Nefit, 2025, eigendom)
Het appartement is een Rijksmonument
Houten kozijnen met isolatieglas
Dakisolatie en gevelisolatie (middels voorzetwanden)
Privéberging met vliering op de begane grond
Appartement (type maisonnette) is te bereiken via een trap (er is geen lift)
Drie slaapkamers
Er is momenteel een Vereniging van eigenaren (VvE) in oprichting
Aanvaarding: in onderling overleg
Ter bescherming van de belangen van zowel koper als verkoper, wordt uitdrukkelijk gesteld dat een koopovereenkomst met betrekking tot deze onroerende zaak eerst dan tot stand komt nadat koper en verkoper de koopovereenkomst hebben getekend (“schriftelijkheidsvereiste”).
Indien er in de woning huurtoestellen aanwezig zijn zoals CV-ketel, boiler, zonnepanelen, mechanische ventilatie etc. dan dienen deze door de koper te worden overgenomen.
De termijn die wordt opgenomen voor eventuele (overeengekomen) ontbindende voorwaarden (bv. Financiering) is in de regel 4 tot 6 weken na het sluiten van de mondelinge wilsovereenkomst.
De waarborgsom/bankgarantie is 10% van de koopsom. De koper dient deze 3 dagen ná het vervallen van de ontbindende voorwaarden bij de desbetreffende notaris te deponeren.
Koper is te allen tijde gerechtigd voor eigen rekening een bouwkundige keuring te (laten) verrichten dan wel andere adviseurs te raadplegen teneinde een goed inzicht te verkrijgen over de staat van onderhoud.
Deze informatie is door ons, Tijs & Cyril Makelaardij met de nodige zorgvuldigheid samengesteld. Onzerzijds wordt echter geen enkele aansprakelijkheid aanvaard voor enige onvolledigheid, onjuist of anderszins, dan wel de gevolgen daarvan. Alle opgegeven maten en oppervlakten zijn indicatief. Van toepassing zijn de NVM voorwaarden.