Geschakelde villa met souterrain, op een toplocatie in Meerssen. In een zijstraat van de Herkenberg, zonder doorgaand verkeer, met 3 slaapkamers, 2 badkamers en een ruim souterrain. Een van de ruimtes in het souterrain is een lange garage, voor de auto en de (kinder)fietsen. De tuingerichte woonkamer met open haard is bijna 10 meter breed en de keuken is, net als de badkamers en toiletruimte, in 2010 vernieuwd.
Geschakelde villa met souterrain, op een toplocatie in Meerssen. In een zijstraat van de Herkenberg, zonder doorgaand verkeer, met 3 slaapkamers, 2 badkamers en een ruim souterrain. Een van de ruimtes in het souterrain is een lange garage, voor de auto en de (kinder)fietsen. De tuingerichte woonkamer met open haard is bijna 10 meter breed en de keuken is, net als de badkamers en toiletruimte, in 2010 vernieuwd.
Typering:
Het centrum met winkels, speciaalzaken, restaurants en een supermarkt ligt letterlijk om de hoek. De Markt is nog geen 250 meter lopen en na 5 minuten staat u in het Proosdijpark, met prachtige wandelpaden en een grote vijver. Meerssen heeft een uitstekend voorzieningenniveau met basis- en middelbaar onderwijs, diverse sportfaciliteiten en een treinstation. Met de trein en auto (A2/A79) zijn Valkenburg, Maastricht en Heerlen goed bereikbaar.
Souterrain:
Onder een groot deel van het woonhuis is een souterrain gerealiseerd, met een hoogte variërend van circa 2,03 tot circa 2,08 meter. De grootste ruimte is de garage van circa 7,80 x 2,99), met een sectionaalpoort aan de voorzijde. Verder zijn er een wasruimte (circa 4,57 x 2,54) en een hobbyruimte (circa 4,88 x 2,45). Het souterrain is voorzien van elektra, verwarming, water en een cv-ruimte met de opstelling van de HR-ketel (Nefit Excellent, 2007, eigendom).
Begane grond:
Via een brede buitentrap loopt u naar de entree, die toegang geeft tot een ruime ontvangsthal (circa 4,02 x 2,77). De muren en plafonds zijn gestuct en de leisteen vloer zorgt, samen met de hardhouten trappen, voor een hal met een fraaie uitstraling. Aan de rechterzijde zijn de garderobe en het gastentoilet.
Links in de hal is een deur naar de keuken (circa 4,71 x 3,69). In 2010 is er een luxe, moderne keukenopstelling met een groot eiland geplaatst. Het eiland biedt niet alleen ruimte aan de spoelbak, maar ook zitgelegenheid voor vier personen. Alle benodigde apparatuur, verspreid over het eiland en de wandopstelling, is ingebouwd: een 5-pits gaskookplaat, afzuigkap, heteluchtoven, combi-oven, vaatwasser en een koelkast.
De keuken staat in open verbinding met de bijna 10 meter brede woonkamer, die een totale oppervlakte van circa 55 m2 heeft. Een brede schuifpui en aparte loopdeur geven toegang tot de tuin en aan de andere zijde is een deur naar de garderobe en hal. Het hart van de woonkamer wordt gevormd door de open haard en een hoge kastenwand, waar plek is voor een grote tv.
In de achtertuin, op het oosten, heeft u veel privacy en ruimte. Een groot deel van de dag kunt u in de zon zitten en als hier kinderen komen wonen, dan hebben ze genoeg speelplek. In de hoek van de tuin staat een houten berging van circa 3,36 x 1,36 meter, met dubbele deuren aan de voorzijde en elektra.
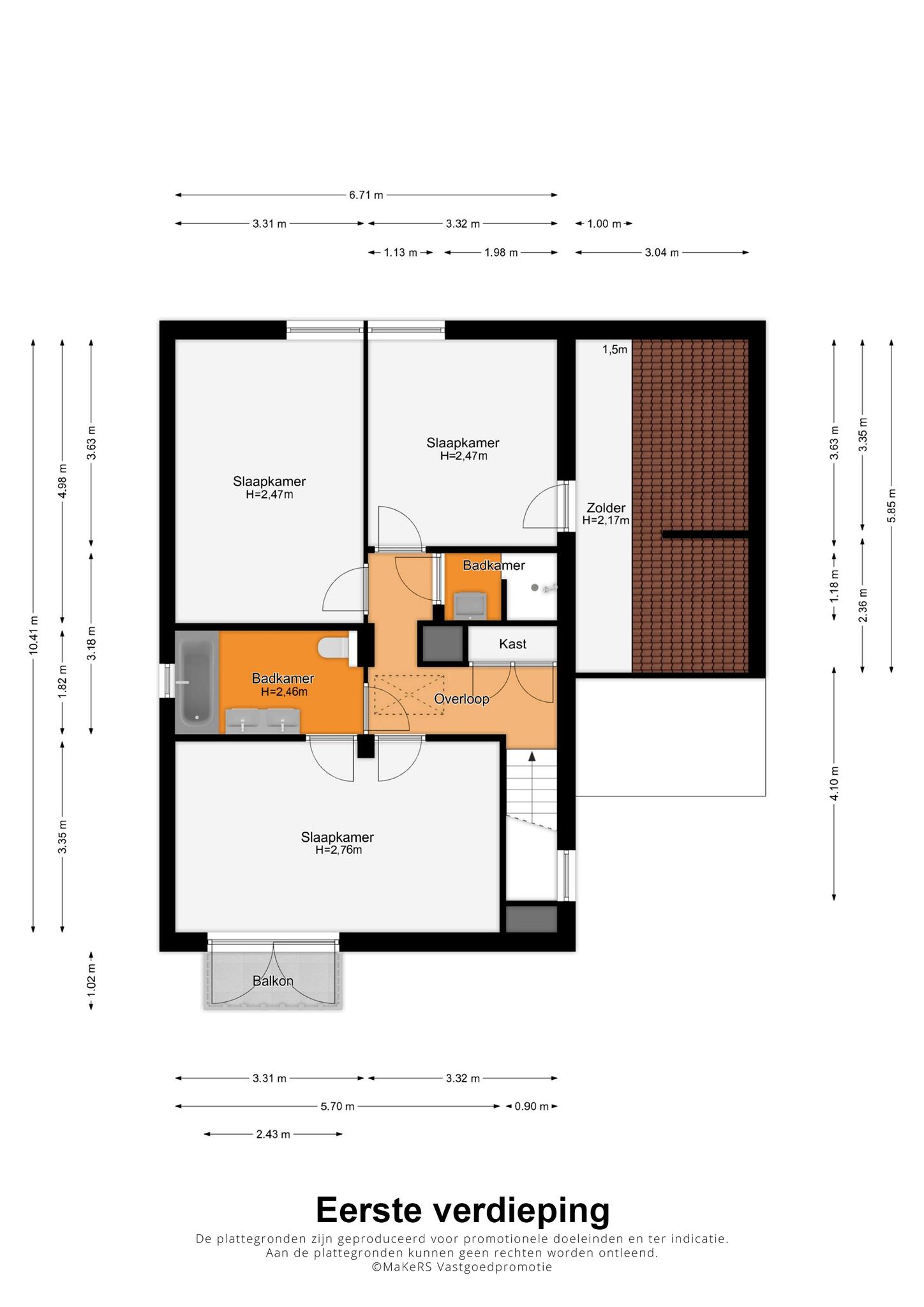
Eerste verdieping:
Vanaf de L-vormige overloop zijn drie slaapkamers en twee badkamers te bereiken. In alle slaapkamers ligt een parket in blokmotief, net als op de overloop. Wat verder opvalt zijn de grootte van de slaapkamers en de lichtinval, dankzij grote ramen met HR+ glas.
Aan de voorzijde is slaapkamer I (circa 5,70 x 3,35) met balkon en een directe toegang tot badkamer I (circa 3,28 x 1,82), vernieuwd in 2010. Hier heeft u de beschikking over een ligbad, toilet, een hoge kast, designradiator en een tweepersoons wastafel.
Aan de achterzijde zijn slaapkamer II (circa 4,98 x 3,31) en slaapkamer III (circa 3,63 x 3,32). Naast deze laatste kamer is een ruime bergzolder (circa 5,85 x 0,00) met een schuin dak, aflopend van circa 2,17 meter naar vloerniveau. Badkamer II (circa 1,98 x 1,18), eveneens in 2010 vernieuwd, biedt ruimte aan een ruime douche en een wastafel.
Algemeen:
Bouwjaar: 1973, op diverse punten gemoderniseerd in 2010. Ook is de woning recentelijk voorzien van nieuwe HR++ beglazing. In de schuifpui, de deur in de woonkamer en de openslaande deuren van de slaapkamer.
Gebruiksoppervlakte wonen: circa 169 (exclusief garage ad 23 m2 en souterrain ad 24 m2), inhoud circa 839 m3
14 zonnepanelen
Energielabel: C
Aanvaarding: per direct
Ter bescherming van de belangen van zowel koper als verkoper, wordt uitdrukkelijk gesteld dat een koopovereenkomst met betrekking tot deze onroerende zaak eerst dan tot stand komt nadat koper en verkoper de koopovereenkomst hebben getekend (“schriftelijkheidsvereiste”).
Indien er in de woning huurtoestellen aanwezig zijn zoals CV-ketel, boiler, zonnepanelen, mechanische ventilatie etc. dan dienen deze door de koper te worden overgenomen.
De termijn die wordt opgenomen voor eventuele (overeengekomen) ontbindende voorwaarden (bv. Financiering) is in de regel 4 tot 6 weken na het sluiten van de mondelinge wilsovereenkomst.
De waarborgsom/bankgarantie is 10% van de koopsom. De koper dient deze 3 dagen ná het vervallen van de ontbindende voorwaarden bij de desbetreffende notaris te deponeren.
Koper is te allen tijde gerechtigd voor eigen rekening een bouwkundige keuring te (laten) verrichten dan wel andere adviseurs te raadplegen teneinde een goed inzicht te verkrijgen over de staat van onderhoud.
Deze informatie is door ons, Tijs & Cyril Makelaardij met de nodige zorgvuldigheid samengesteld. Onzerzijds wordt echter geen enkele aansprakelijkheid aanvaard voor enige onvolledigheid, onjuist of anderszins, dan wel de gevolgen daarvan. Alle opgegeven maten en oppervlakten zijn indicatief. Van toepassing zijn de NVM voorwaarden.