Vraagprijs € 619.000,- k.k.
Gelijkvloerse, royale bungalow op een toplocatie in Meerssen. Tussen het centrum en de Raarberg, in een prachtige wijk met villa’s en bungalows, staat deze gelijkvloerse bungalow met inpandige garage op maar liefst 887 m2 eigen grond. Er zijn 3 slaapkamers, een badkamer en een aparte doucheruimte wat de bungalow een prettige indeling geeft. De woonkamer grenst aan een deels overdekt terras op het zuidwesten en aan de achterzijde zijn de keuken en separate eetkamer.
Gelijkvloerse, royale bungalow op een toplocatie in Meerssen. Tussen het centrum en de Raarberg, in een prachtige wijk met villa’s en bungalows, staat deze gelijkvloerse bungalow met inpandige garage op maar liefst 887 m2 eigen grond. Er zijn 3 slaapkamers, een badkamer en een aparte doucheruimte wat de bungalow een prettige indeling geeft. De woonkamer grenst aan een deels overdekt terras op het zuidwesten en aan de achterzijde zijn de keuken en separate eetkamer.
OPEN HUIS:
Vrijdag 10 oktober van 16:00 tot 17:00u
Dinsdag 14 oktober van 16:00 tot 17:00u
Donderdag 16 oktober van 09:00 tot 10:00u
Komt u een kijkje nemen? Laat het ons weten, mail uw gegevens naar info@tijsencyril.nl en dan ontvangt u van ons de aanvullende informatie.
Typering:
Het Gerbergaplantsoen wordt beschouwd als een toplocatie in Meerssen, met villa’s en bungalows op grote percelen. Het sfeervolle centrum met de Markt, diverse winkels, supermarkten en andere voorzieningen is op loopafstand. Verder woont u in de nabijheid van het treinstation, basis- en middelbaar onderwijs, het zwembad en diverse sportaccommodaties. Het centrum van Maastricht is maar 15 minuten met de auto en de snelwegen A2/A79 zijn binnen handbereik. Meerssen heeft goede treinverbindingen richting Valkenburg, Maastricht en Heerlen. Rondom Meerssen vindt u prachtige natuur zoals het Watervalderbos, het Maasdal en het Geuldal.
Indeling:
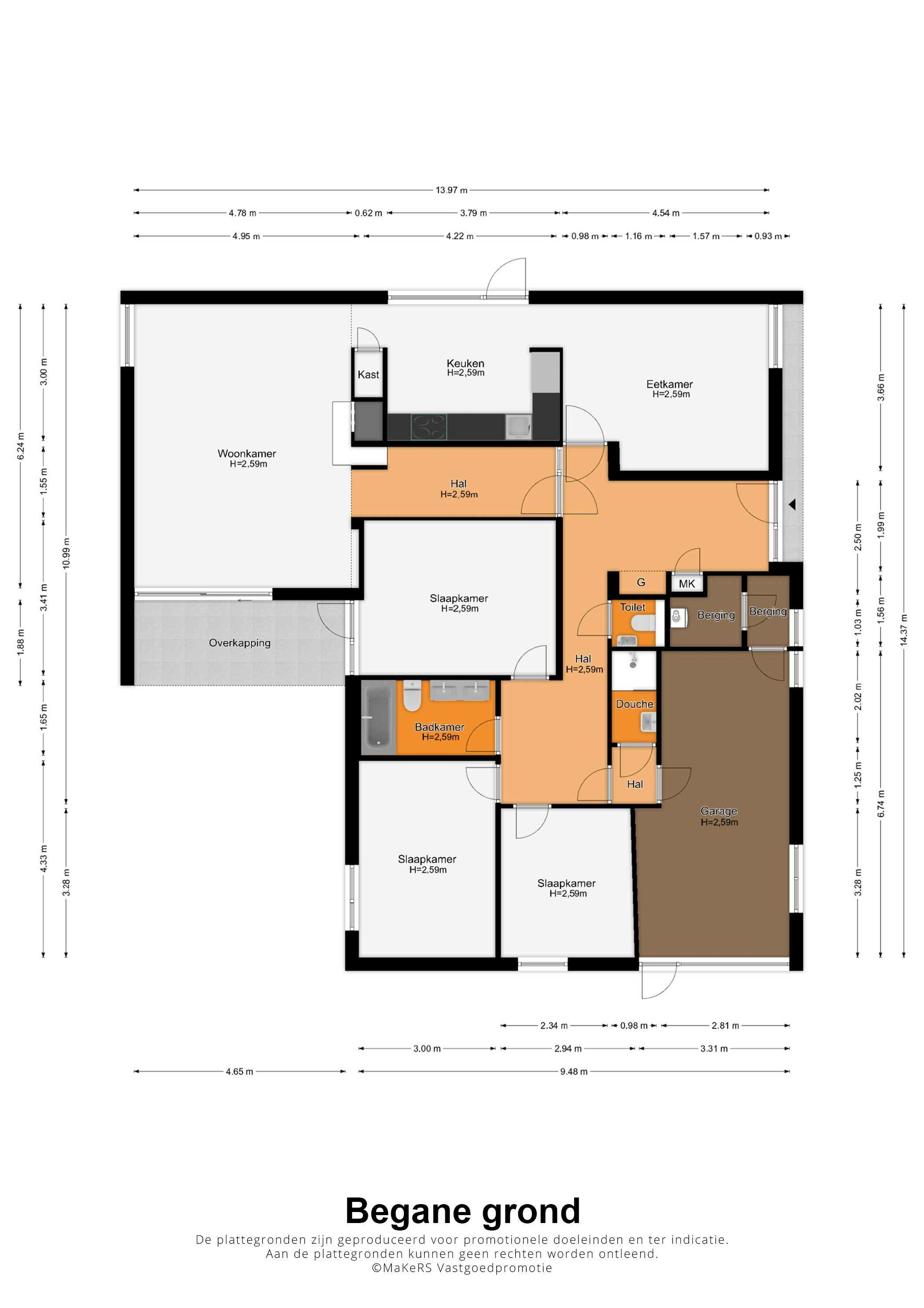
Begane grond:
Vanaf de oprit loopt u, via het pad in de tuin, naar de entree van deze gelijkvloerse bungalow. In de royale ontvangsthal ziet u direct de sfeer van de jaren ’70, onder andere bij de tegelvloer en het houten plafond. Een berging met de opstelling van de HR-ketel (Hesi, 2019, huur) is via een portaal bereikbaar vanuit de garage (circa 6,74 x 3,31/2,81).Vanuit de hal heeft u verder onder andere toegang tot het vernieuwde gastentoilet.
Een grote, glazen deur in de hal leidt naar een gang met twee lichtkoepels, die in verbinding met de woonkamer (circa 6,24 x 4,78) staat. Er ligt een mooie, houten vloer en de schouw met gashaard is behouden. Een grote schuifpui in de woonkamer geeft toegang tot een royaal, deels overdekt terras op het zuidwesten.
Aan de andere kant van de woonkamer is een doorgang naar de keuken (circa 4,22 x 3,00) en de eetkamer (circa 4,54 x 3,66). In beide ruimtes ligt, net als in de hal, een terracotta tegelvloer. De keuken is ingericht met een lichte hoekopstelling, voorzien van een aanrechtblad en achterwand van graniet. De keramische kookplaat, afzuigkap, vaatwasser, oven, magnetron en koelkast met vriesvak zijn ingebouwd. De eetkamer heeft, net als de woonkamer en keuken, mooi uitzicht naar de royale tuin.
De bungalow heeft een goede indeling, met drie slaapkamers. Slaapkamer I (circa 4,22 x 3,41) is een royale master bedroom met toegang tot het deels overdekte terras op het zuidwesten. Aan de voorzijde zijn slaapkamer II (circa 4,33 x 3,00) en slaapkamer III (circa 3,28 x 2,94).
Alle slaapkamers zijn in de nabijheid van de badkamer en een separate doucheruimte. De badkamer (circa 3,00 x 1,65) is ingedeeld met een ligbad, toilet en een dubbel wastafelmeubel. In de doucheruimte (circa 2,02 x 0,98) ziet u, naast een ruime douche, ook een wastafel.
De bungalow wordt aan vier kanten omringd door een royale tuin met een groot gazon en gevarieerde beplanting. Ook ziet u mooie bomen en hagen, waardoor er veel privacy is. Op de oprit is parkeergelegenheid op eigen terrein en er zijn twee terrassen, waardoor u de hele dag in de zon kunt zitten.
Algemeen:
Bouwjaar: 1973
Perceeloppervlakte: 887 m2
Gebruiksoppervlakte wonen: circa 140 m2, inhoud circa 603 m3
Merendeels kunststof kozijnen en enkele hardhouten kozijnen, voorzien van isolatieglas
17 zonnepanelen
Energielabel: C
Aanvaarding: in onderling overleg
Ter bescherming van de belangen van zowel koper als verkoper, wordt uitdrukkelijk gesteld dat een koopovereenkomst met betrekking tot deze onroerende zaak eerst dan tot stand komt nadat koper en verkoper de koopovereenkomst hebben getekend (“schriftelijkheidsvereiste”).
Indien er in de woning huurtoestellen aanwezig zijn zoals CV-ketel, boiler, zonnepanelen, mechanische ventilatie etc. dan dienen deze door de koper te worden overgenomen.
De termijn die wordt opgenomen voor eventuele (overeengekomen) ontbindende voorwaarden (bv. Financiering) is in de regel 4 tot 6 weken na het sluiten van de mondelinge wilsovereenkomst.
De waarborgsom/bankgarantie is 10% van de koopsom. De koper dient deze 3 dagen ná het vervallen van de ontbindende voorwaarden bij de desbetreffende notaris te deponeren.
Koper is te allen tijde gerechtigd voor eigen rekening een bouwkundige keuring te (laten) verrichten dan wel andere adviseurs te raadplegen teneinde een goed inzicht te verkrijgen over de staat van onderhoud.
Deze informatie is door ons, Tijs & Cyril Makelaardij met de nodige zorgvuldigheid samengesteld. Onzerzijds wordt echter geen enkele aansprakelijkheid aanvaard voor enige onvolledigheid, onjuist of anderszins, dan wel de gevolgen daarvan. Alle opgegeven maten en oppervlakten zijn indicatief. Van toepassing zijn de NVM voorwaarden.