Leuke hoekwoning in Rothem met 3 slaapkamers en een zonnige tuin. Den Olieberg is een geliefde straat aan de oostkant van Rothem, waar alleen bestemmingsverkeer komt. Hier staat, aan een pleintje met openbaar groen, deze hoekwoning met kunststof kozijnen en een overdekt terras in de achtertuin. De aanbouw aan de achterzijde biedt ruimte aan een tweede keukenopstelling, er zijn 3 slaapkamers en de zolder heeft een goede stahoogte. Nog een voordeel: het is mogelijk om parkeergelegenheid op eigen terrein te realiseren.
Leuke hoekwoning in Rothem met 3 slaapkamers en een zonnige tuin. Den Olieberg is een geliefde straat aan de oostkant van Rothem, waar alleen bestemmingsverkeer komt. Hier staat, aan een pleintje met openbaar groen, deze hoekwoning met kunststof kozijnen en een overdekt terras in de achtertuin. De aanbouw aan de achterzijde biedt ruimte aan een tweede keukenopstelling, er zijn 3 slaapkamers en de zolder heeft een goede stahoogte. Nog een voordeel: het is mogelijk om parkeergelegenheid op eigen terrein te realiseren.
Typering:
De supermarkt is op loopafstand en met de fiets, bus en auto zijn het centrum van Meerssen en Maastricht goed bereikbaar. Meerssen heeft een uitstekend voorzieningenniveau met basis- en middelbaar onderwijs, diverse sportfaciliteiten en een treinstation met goede verbindingen richting Valkenburg, Maastricht en Heerlen. De snelwegen A2 en A79 zijn binnen handbereik en de prachtige natuur zoals het Roekenbos, het Maasdal en het Geuldal maken het wonen in Rothem, tussen Maastricht en Amby, heel aantrekkelijk.
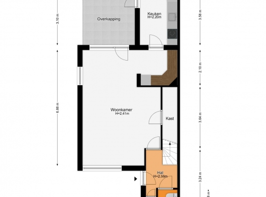
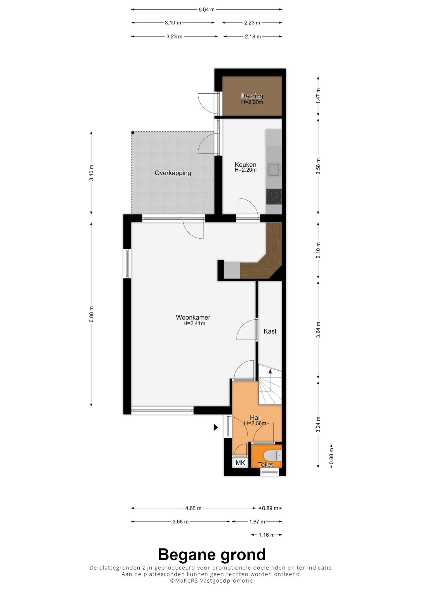
Begane grond:
In de aanbouw aan de voorzijde is de hal, met een garderobe en de trap naar de eerste verdieping. Sfeermakers zijn de kleurrijke ramen en de houten vloer, die ook in de woonkamer en een deel van de keuken ligt. De toiletruimte, met een raampje in de voorgevel, is uitgevoerd in lichte kleuren.
Ramen aan drie zijden zorgen voor veel lichtinval in de woon-/eetkamer, die in totaal circa 28 m2 groot zijn. Het zitgedeelte is aan de voorzijde, met uitzicht naar de rustige straat, en het eetgedeelte is bij het kleurrijke raam in de zijgevel.
De keuken bestaat uit twee delen, met een totale oppervlakte van circa 12 m2. In het eerste deel, naast het eetgedeelte, staat een eikenhouten hoekopstelling met een kookplaat, afzuigkap en een koelkast. Het tweede deel van de keuken biedt ruimte aan een moderne wandopstelling met een inductie kookplaat, afzuigkap, oven, vaatwasser en een koelkast.
Vanuit de woonkamer en keuken is de achtertuin te bereiken, gesitueerd op het zuidoosten. Het overdekte terras (circa 3,10 x 3,10) is een fijne plek om buiten te zitten en de rest van de tuin is bestraat. Rechts in de tuin is een (fietsen)berging (circa 2,23 x 1,47) en de deur recht voor u geeft toegang tot de steeg. De zij- en voortuin zijn grotendeels bestraat, en er is de mogelijkheid om parkeergelegenheid op eigen terrein te realiseren.
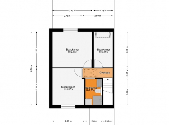
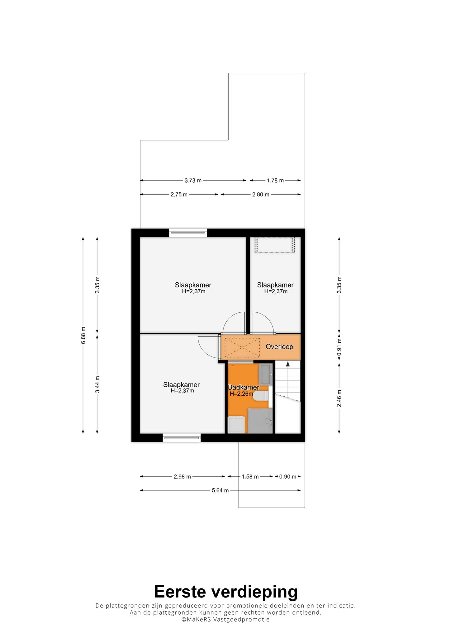
Eerste verdieping:
Vanaf de overloop heeft u toegang tot drie slaapkamers en de badkamer. Op bijna de hele verdieping ligt laminaat en de grote ramen, deels in dakkapellen, zorgen voor veel lichtinval. Aan de achterzijde zijn slaapkamer I (circa 3,73 x 3,35) en slaapkamer II (circa 3,35 x 1,78). Slaapkamer III (circa 3,48 x 2,98), aan de voorzijde, biedt uitzicht naar de rustige straat.
Naast slaapkamer III is de badkamer (circa 2,46 x 1,58) met een douche, toilet, wastafelmeubel en een grote handdoekenradiator. In een nis is de opstelling van de wasmachine en droger.
Zolder:
Een vlizotrap geeft toegang tot de bergzolder (circa 5,64 x 2,50) met een nokhoogte van circa 2,75 meter. Het Velux dakraam is in 2019 geplaatst en op deze verdieping is de opstelling van de HR-ketel (Nefit, 2017, huur).
Algemeen:
Bouwjaar: 1980
Perceeloppervlakte: 154 m2
Gebruiksoppervlakte wonen: circa 91 m2, inhoud circa 375 m3
Verwarming en warm water via een HR-ketel (Nefit, 2017, huur)
Kunststof kozijnen met dubbel glas
Mogelijkheid voor parkeergelegenheid op eigen terrein
Energielabel: C
Aanvaarding: in onderling overleg
Ter bescherming van de belangen van zowel koper als verkoper, wordt uitdrukkelijk gesteld dat een koopovereenkomst met betrekking tot deze onroerende zaak eerst dan tot stand komt nadat koper en verkoper de koopovereenkomst hebben getekend (“schriftelijkheidsvereiste”).
Indien er in de woning huurtoestellen aanwezig zijn zoals CV-ketel, boiler, zonnepanelen, mechanische ventilatie etc. dan dienen deze door de koper te worden overgenomen.
De termijn die wordt opgenomen voor eventuele (overeengekomen) ontbindende voorwaarden (bv. Financiering) is in de regel 4 tot 6 weken na het sluiten van de mondelinge wilsovereenkomst.
De waarborgsom/bankgarantie is 10% van de koopsom. De koper dient deze 3 dagen ná het vervallen van de ontbindende voorwaarden bij de desbetreffende notaris te deponeren.
Koper is te allen tijde gerechtigd voor eigen rekening een bouwkundige keuring te (laten) verrichten dan wel andere adviseurs te raadplegen teneinde een goed inzicht te verkrijgen over de staat van onderhoud.
Deze informatie is door ons, Tijs & Cyril Makelaardij met de nodige zorgvuldigheid samengesteld. Onzerzijds wordt echter geen enkele aansprakelijkheid aanvaard voor enige onvolledigheid, onjuist of anderszins, dan wel de gevolgen daarvan. Alle opgegeven maten en oppervlakten zijn indicatief. Van toepassing zijn de NVM voorwaarden.