Verrassend ruime, geschakelde woning in een rustige zijstraat van de Bunderstraat. De Bunderstraat is een bekende straat in Meerssen. Maar wat niet iedereen weet, is dat er ook een rustig zijstraatje met dezelfde naam is. Hier staat deze verrassend ruime, geschakelde woning met 4 slaapkamers en een zonnige tuin. Er is parkeergelegenheid voor meerdere auto’s op eigen terrein en aan de linkerzijde, bij de carport, is een multifunctionele ruimte met eigen entree. Nu is dit de sport- en wasruimte, maar een invulling als kantoor/praktijk is ook mogelijk. En wordt deze ruimte verbouwd tot slaapkamer en badkamer, dan kunt u gelijkvloers wonen!
Verrassend ruime, geschakelde woning in een rustige zijstraat van de Bunderstraat. De Bunderstraat is een bekende straat in Meerssen. Maar wat niet iedereen weet, is dat er ook een rustig zijstraatje met dezelfde naam is. Hier staat deze verrassend ruime, geschakelde woning met 4 slaapkamers en een zonnige tuin. Er is parkeergelegenheid voor meerdere auto’s op eigen terrein en aan de linkerzijde, bij de carport, is een multifunctionele ruimte met eigen entree. Nu is dit de sport- en wasruimte, maar een invulling als kantoor/praktijk is ook mogelijk. En wordt deze ruimte verbouwd tot slaapkamer en badkamer, dan kunt u gelijkvloers wonen!
Typering:
Het sfeervolle centrum met de Markt, verscheidene winkels, supermarkten en andere voorzieningen is op loopafstand. Verder woont u in de nabijheid van het treinstation, basis- en middelbaar onderwijs, het zwembad en diverse sportaccommodaties. Het centrum van Maastricht is maar 15 minuten met de auto en de snelwegen A2/A79 zijn binnen handbereik. Meerssen heeft goede treinverbindingen richting Valkenburg, Maastricht en Heerlen. Rondom Meerssen vindt u prachtige natuur zoals het Roekenbos, het Maasdal en het Geuldal.
Begane grond:
Op de brede oprit, en onder de carport, is parkeergelegenheid voor maar liefst drie auto’s. Aan de voorzijde van de woning is de overdekte entree, met de voordeur naar de hal en een deur naar de garage (circa 5,64 x 2,78). De garage is voorzien van elektra en heeft een sectionaalpoort naar de oprit.
In de hal, aan de rechterzijde, zijn de toiletruimte met fonteintje en de trap naar de eerste verdieping. Aan de andere zijde, naast de meterkast, is ruimte voor een kapstok. De tuingerichte woonkamer (circa 37 m2) staat in open verbinding met de fraaie keuken van circa 4,5 m2. Op de vloer ligt laminaat, en in de woonkamer wordt de sfeer bepaald door de inbouwhaard met houten achterwand. De keukenopstelling in L-vorm, met een halfhoge kastenwand, heeft een ingebouwde inductie kookplaat, afzuigkap, koelkast, vriezer, oven en een vaatwasser.
Vanuit de woonkamer heeft u toegang tot een multifunctionele ruimte (circa 5,82 x 4,11), ingericht als sport- en wasruimte. Deze ruimte is echter voor diverse doeleinden geschikt, van kantoor/praktijk en te verbouwen tot slaapkamer met badkamer.
De brede achtertuin, op het zonnige zuidwesten, is een fijne buitenruimte met een zonneterras en een circa 25 m2 groot overdekt terras. Aan drie kanten staan houten schuttingen en er is weinig inkijk van omliggende woningen. In deze tuin kunt u een groot deel van de dag van de Meerssense zon genieten!
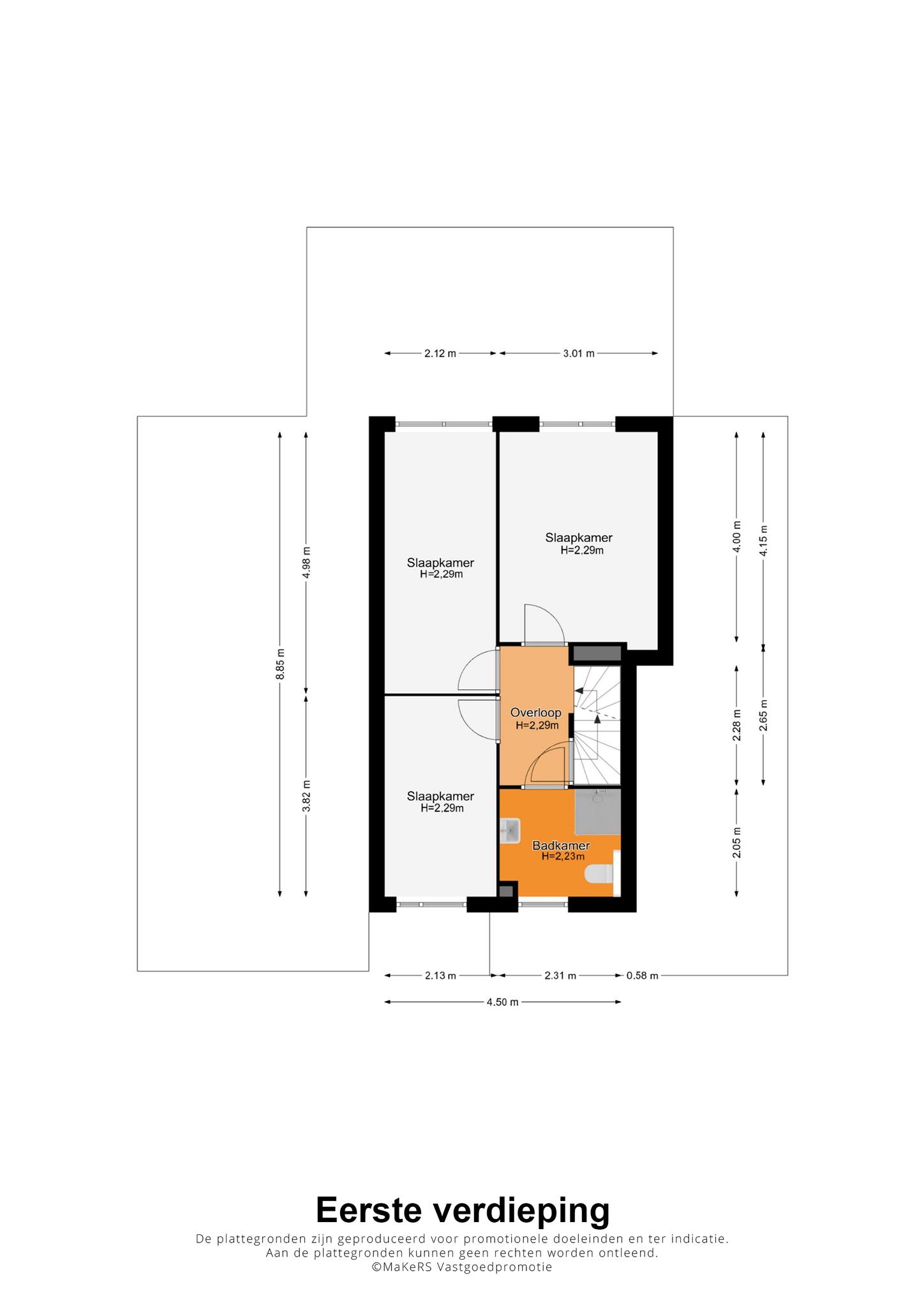
Eerste verdieping:
Aan de achterzijde zijn slaapkamer I (circa 4,98 x 2,12) en slaapkamer II (circa 4,00 x 3,01), waarbij de laatste is ingericht als master bedroom. Slaapkamer III (circa 3,82 x 2,13) is aan de voorzijde, met uitzicht naar de rustige straat.
Naast deze slaapkamer is de badkamer (circa 2,31 x 2,05) met een douche, toilet en een wastafelmeubel. Het raam zorgt voor veel lichtinval en de muren zijn, net als de vloer, geheel betegeld.
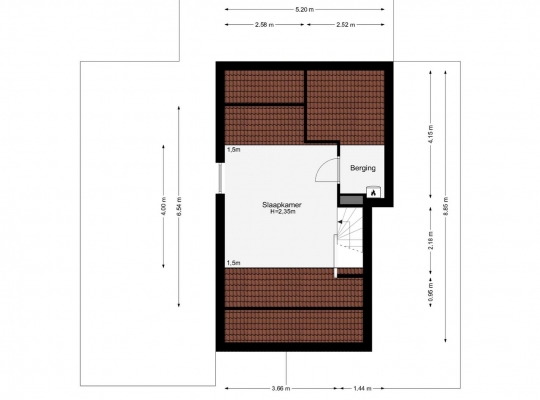
Tweede verdieping:
Een vaste trap geeft toegang tot slaapkamer IV (circa 4,00 x 3,66), met een groot raam in de zijgevel. Ook is er een berging op deze verdieping, met de opstelling van de HR-ketel (Volta, 2023, huur). Zo heeft deze woning een royale hoeveelheid ruimte, verspreid over drie verdiepingen.
Algemeen:
Bouwjaar: 1986
Gebruiksoppervlakte wonen: circa 142 m2, inhoud circa 536 m3
Verwarming en warm water via een HR-ketel (Volta, 2023, huur)
Kunststof kozijnen met isolatieglas
Hardhouten schuifpui (woonkamer) met isolatieglas
Schilderwerk uitgevoerd in 2023
6 zonnepanelen
Royale, multifunctionele ruimte met eigen entree op de begane grond
Parkeergelegenheid op eigen terrein voor 3 auto’s
Energielabel: C
Aanvaarding: in overleg
Ter bescherming van de belangen van zowel koper als verkoper, wordt uitdrukkelijk gesteld dat een koopovereenkomst met betrekking tot deze onroerende zaak eerst dan tot stand komt nadat koper en verkoper de koopovereenkomst hebben getekend (“schriftelijkheidsvereiste”).
Indien er in de woning huurtoestellen aanwezig zijn zoals CV-ketel, boiler, zonnepanelen, mechanische ventilatie etc. dan dienen deze door de koper te worden overgenomen.
De termijn die wordt opgenomen voor eventuele (overeengekomen) ontbindende voorwaarden (bv. Financiering) is in de regel 4 tot 6 weken na het sluiten van de mondelinge wilsovereenkomst.
De waarborgsom/bankgarantie is 10% van de koopsom. De koper dient deze 3 dagen ná het vervallen van de ontbindende voorwaarden bij de desbetreffende notaris te deponeren.
Koper is te allen tijde gerechtigd voor eigen rekening een bouwkundige keuring te (laten) verrichten dan wel andere adviseurs te raadplegen teneinde een goed inzicht te verkrijgen over de staat van onderhoud.
Deze informatie is door ons, Tijs & Cyril Makelaardij met de nodige zorgvuldigheid samengesteld. Onzerzijds wordt echter geen enkele aansprakelijkheid aanvaard voor enige onvolledigheid, onjuist of anderszins, dan wel de gevolgen daarvan. Alle opgegeven maten en oppervlakten zijn indicatief. Van toepassing zijn de NVM voorwaarden.