Vraagprijs € 898.000,- k.k.
Stijlvol, exclusief herenhuis met stadstuin in Wyck. Achter de klassieke, gerestaureerde gevel uit 1896 gaat een smaakvol verbouwd woonhuis verborgen met hoge plafonds, grote ramen en een maatwerk interieur. De samensmelting van originele en hedendaagse elementen resulteert in een huis met een fantastische uitstraling. In totaal zijn er 4 slaapkamers en 2 badkamers, waarbij de master bedroom met kleedruimte en eigen badkamer al uw verwachtingen overtreft. Het is mogelijk om, op de bovenste verdieping, een extra (slaap)kamer te realiseren. Aan de achterzijde kijkt u onder andere naar de toren van de Sint Martinuskerk.
Stijlvol, exclusief herenhuis met stadstuin in Wyck. Achter de klassieke, gerestaureerde gevel uit 1896 gaat een smaakvol verbouwd woonhuis verborgen met hoge plafonds, grote ramen en een maatwerk interieur. De samensmelting van originele en hedendaagse elementen resulteert in een huis met een fantastische uitstraling. In totaal zijn er 4 slaapkamers en 2 badkamers, waarbij de master bedroom met kleedruimte en eigen badkamer al uw verwachtingen overtreft. Het is mogelijk om, op de bovenste verdieping, een extra (slaap)kamer te realiseren. Aan de achterzijde kijkt u onder andere naar de toren van de Sint Martinuskerk.
Typering:
Voor een bezoek aan de supermarkt, de vele winkels, sportschool, de historische binnenstad en andere voorzieningen woont u op de perfecte plek. Steek de Maas over, richting de historische binnenstad met de Markt, het Vrijthof en het Onze Lieve Vrouweplein. Verder woont u in de nabijheid van het trein-/busstation, het MUMC+, diverse faculteiten van de universiteit Plein 1992 met de bibliotheek.
Souterrain:
Achter een van de deuren in de hal is een trap naar het souterrain, waar de plafondhoogte varieert van 1,78 tot 1,87 meter. Aan de achterzijde zijn kelder I (circa 4,33 x 1,68) en kelder II (circa 4,33 x 3,59) met de opstelling van de HR-ketel (Nefit, eigendom). Kelder III (circa 4,67 x 1,87) en kelder IV (circa 4,67 x 3,60) bevinden zich aan de voorzijde.
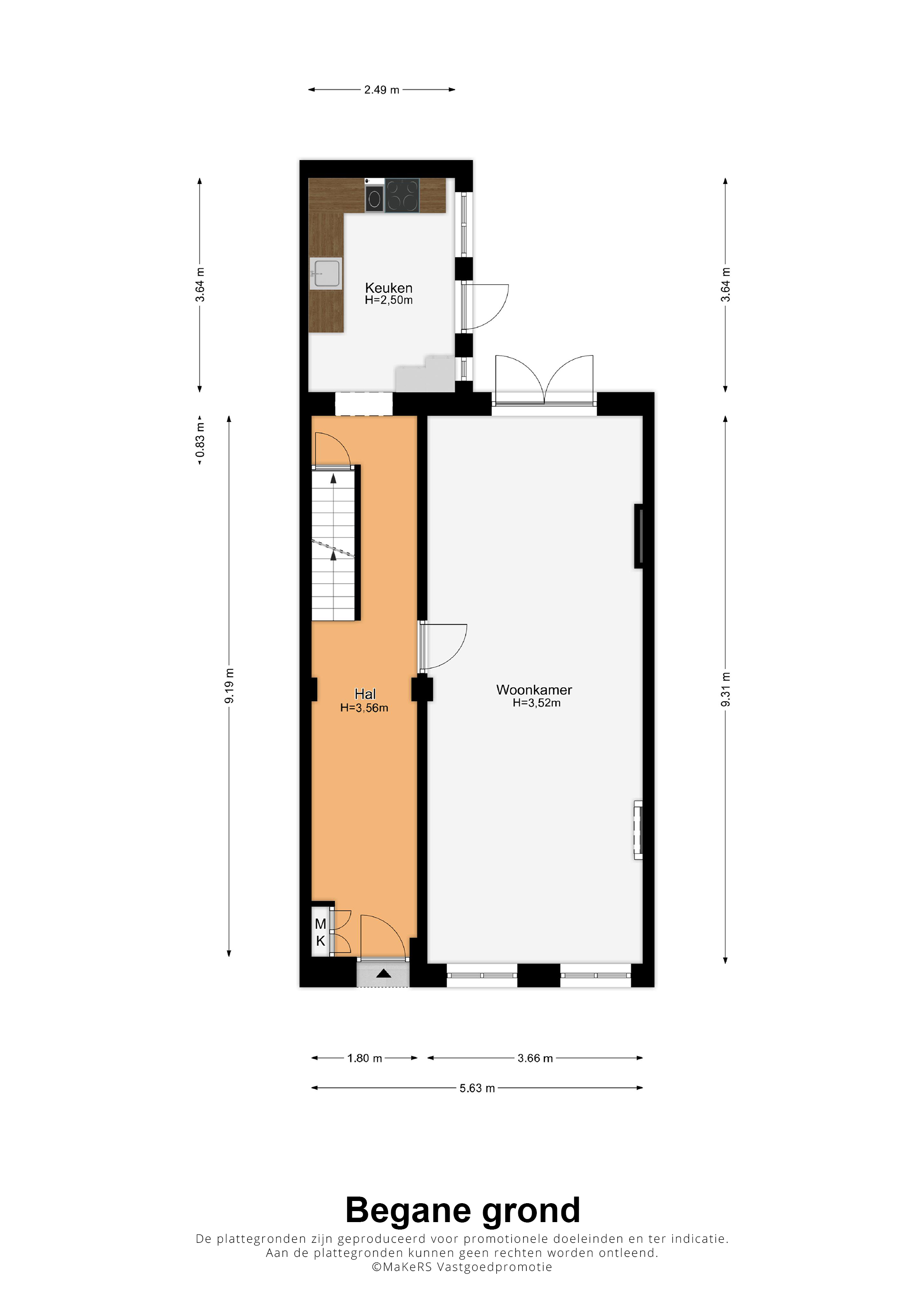
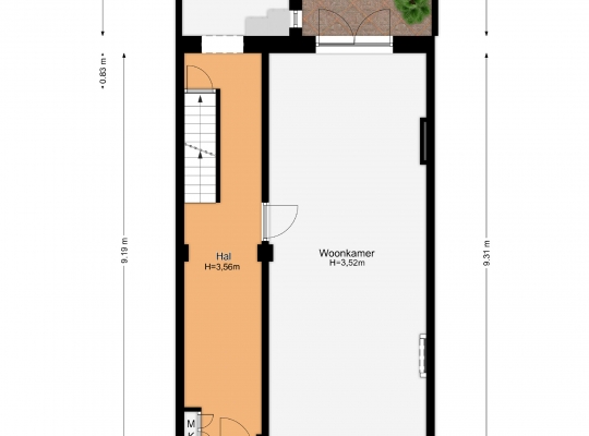
Begane grond:
De entree is fraai, met een donkerblauwe voordeur voorzien van een rijkelijk gedecoreerde omlijsting. Via deze deur is de royale ontvangsthal (circa 9,19 x 1,80) te bereiken, met een 3,85 meter hoog ornamentenplafond en een prachtige tegelvloer. Alles klopt, van de radiator op pootjes tot de paneeldeuren, trappartij en de boog met pilasters.
Rechts in de hal is een deur naar de woonkamer (circa 9,31 x 3,66) boordevol charme, karakter en sfeer. Het zitgedeelte is aan de voorzijde, met uitzicht naar de rustige straat, en het eetgedeelte nodigt uit voor een diner met vrienden of familie. Hoge, openslaande deuren geven toegang tot de tuin en de prachtige plafonds, visgraat parketvloer, klassieke schouw en moderne gashaard met maatwerk tv-meubel mogen niet onvermeld blijven.
Aan de achterzijde, met toegang tot de tuin, is de keuken (circa 3,64 x 2,49) met een donkere tegelvloer. De hoekopstelling met stijlvol aanrechtblad en de halfhoge kastenwand zijn voorzien van alle benodigde inbouwapparatuur van topkwaliteit: een inductie-/gaskookplaat, afzuigkap, vaatwasser, stoomoven, combimagnetron en een dubbele koelkast met vriesvak. De stadstuin is geheel bestraat en zal, als het blad weer gaat groeien, een groene oase zijn waar u heerlijk kunt zitten.
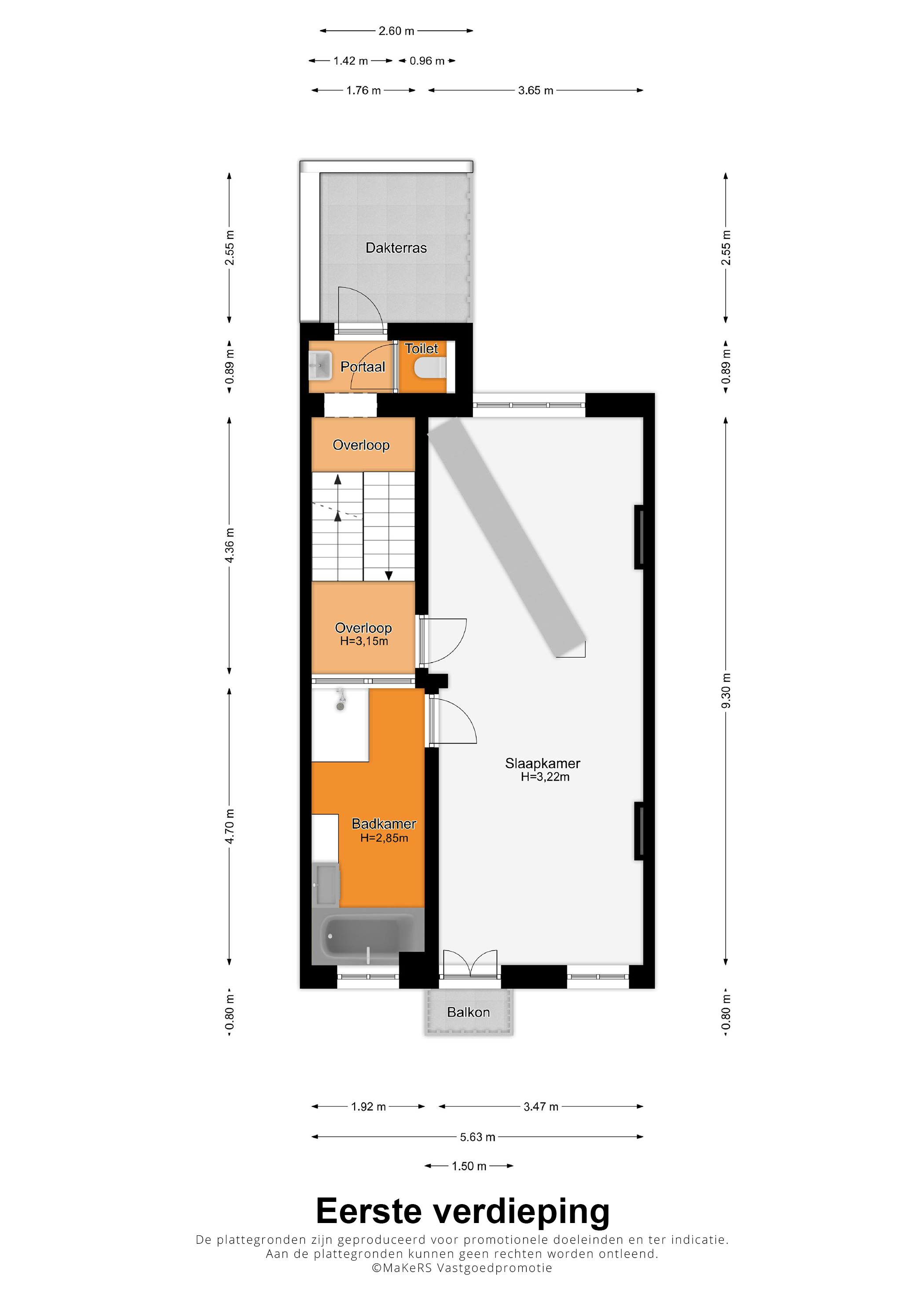
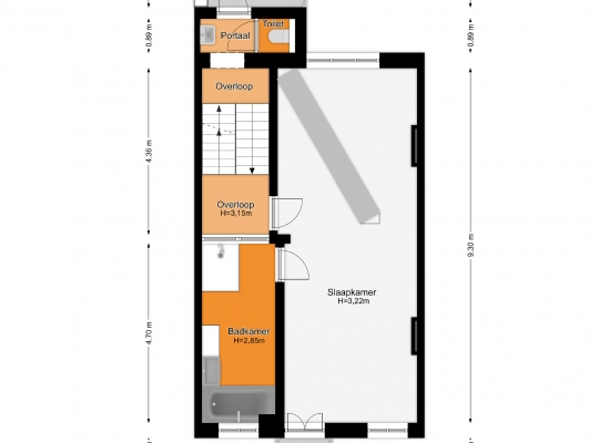
Eerste verdieping:
Volg de bordestrap naar de eerste verdieping en loop eerst naar de toiletruimte met portaal, dat tevens toegang biedt tot een dakterras van circa 2,60 x 2,55 meter. Vanaf dit dakterras krijgt u het eerste beeld van de Sint Martinuskerk, een icoon in Wyck.
Via het tweede stuk van de bordestrap bereikt u de overloop, waaraan de master bedroom met kleedruimte en de badkamer grenzen. Door het raam tot vloerhoogte kunt u al een glimp van de badkamer opvangen en het zorgt voor fijne lichtinval. Met een plafondhoogte van 3,40 meter wordt de ruimtelijkheid van deze verdieping geaccentueerd.
Twee slaapkamers zijn samengevoegd tot een zeer ruime master bedroom met kleedruimte, die in totaal circa 9,30 x 3,47 meter groot is. Ook hier ziet u hoge ornamentenplafonds met sierlijsten, die goed passen bij de paneeldeuren en de houten vloer. Opvallend element is het maatwerk interieur in de kleedruimte, die diagonaal in de ruimte is geplaatst.
Vanuit de master bedroom loopt u de badkamer (circa 4,70 x 1,92) in, die het toppunt van design en stijl is. Stucwerk is gecombineerd met visgraat wandtegels die, net als de vloertegels, zijn uitgevoerd in een marmerlook. De ruimte is ingedeeld met een zwart ligbad, een dubbel wastafelmeubel, grote spiegel, stijlvolle messing kranen en een inloopdouche.
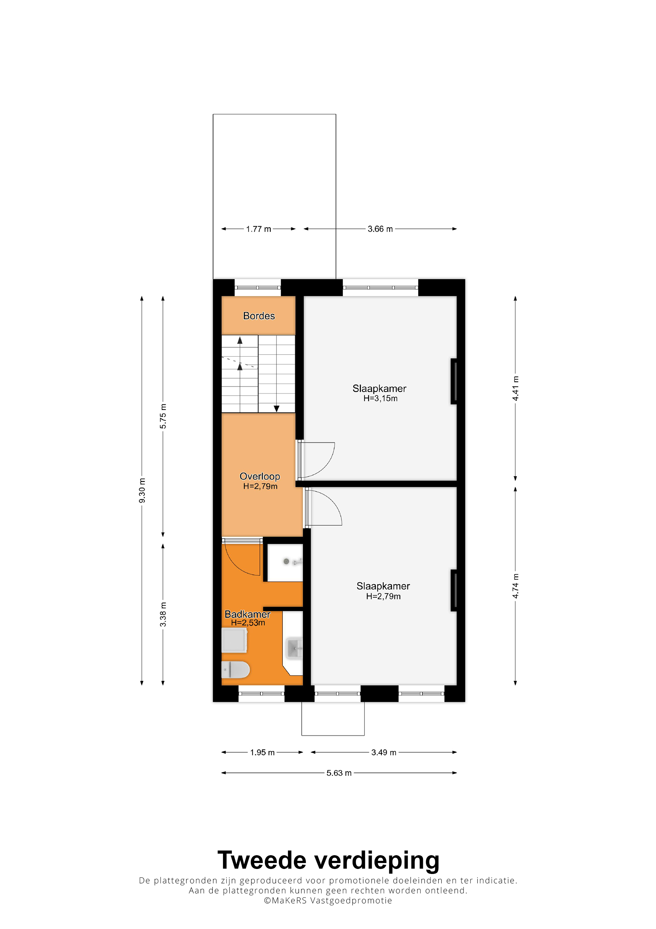
Tweede verdieping:
De bordestrap gaat verder naar de tweede verdieping, waar twee royale slaapkamers en een badkamer zijn. Slaapkamer II (circa 4,74 x 3,49) bevindt zich aan de voorzijde en slaapkamer III (circa 4,41 x 3,66) aan de achterzijde. In beide kamers en op de overloop ligt een houten vloer met karakter en ook hier zijn de paneeldeuren behouden.
De badkamer (circa 3,38 x 1,95) op deze verdieping is ingedeeld met een douche, wastafelmeubel, een toilet en de aansluitingen voor de wasapparatuur.
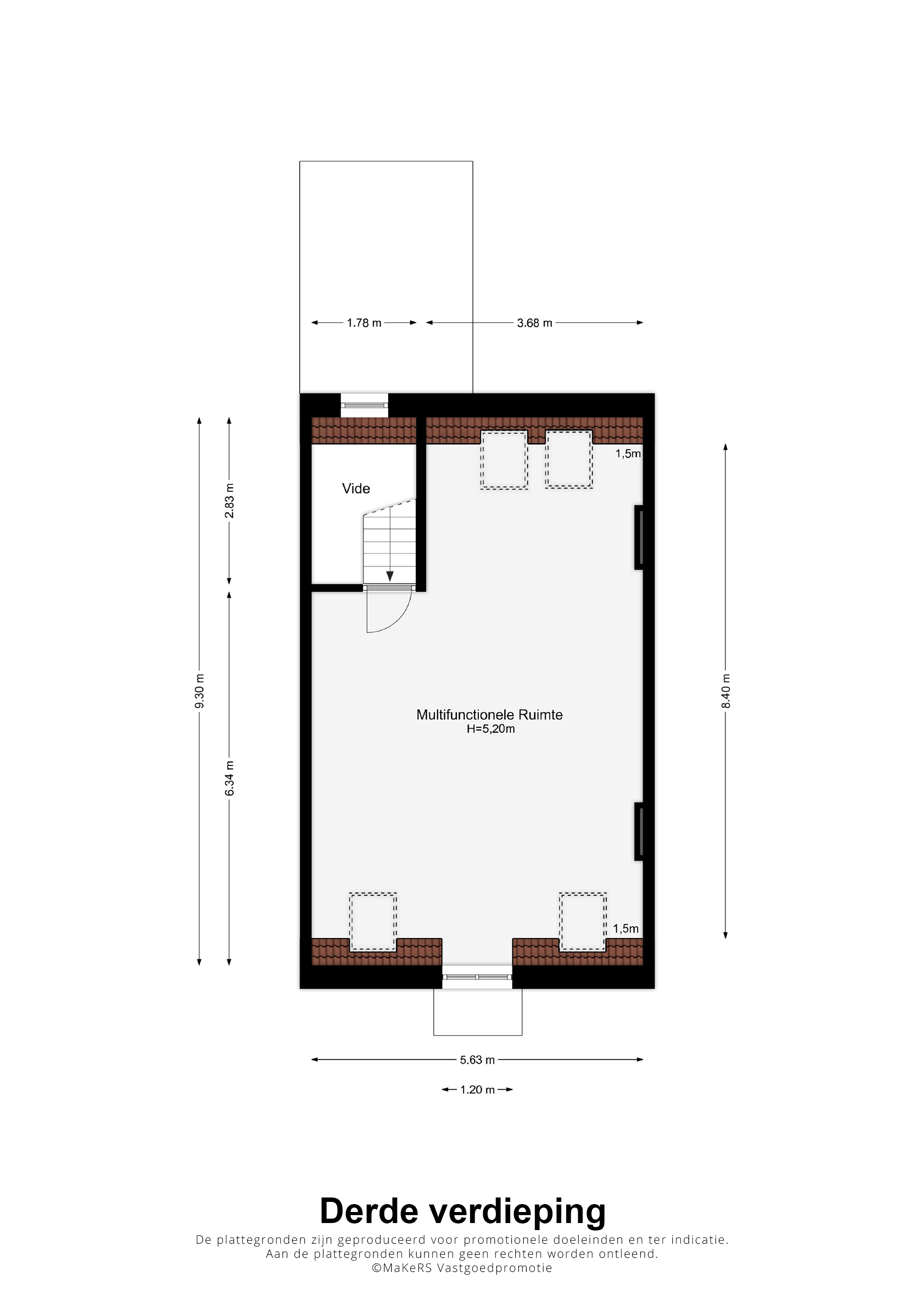
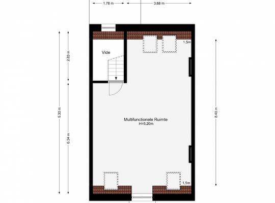
Derde verdieping:
De meest indrukwekkende ruimte bevindt zich op de bovenste verdieping. Met een nokhoogte van maar liefst 5,20 meter, een dakkapel en vier dakramen is deze kamer (circa 8,40/6,34 x 5,63) klaar voor een nieuwe invulling. Oude spanten zijn zichtbaar, net als de houten vloer en prachtig metselwerk uit het einde van de 19e eeuw. Wordt dit uw werkkamer, atelier, loungeruimte of kiest u voor een indeling met twee royale slaapkamers?
Algemeen:
Bouwjaar: 1896
Gebruiksoppervlakte wonen: circa 209 m2, inhoud circa 1039 m3
Exclusief herenhuis, boordevol luxe en sfeer
Verwarming en warm water via een HR-ketel (Nefit, eigendom)
Hardhouten kozijnen met isolatieglas
Hoge plafonds en grote ramen op alle verdiepingen
Vier (slaap)kamers en twee badkamers, met de mogelijkheid voor een vijfde (slaap)kamer
Stadstuin en een dakterras aan de achterzijde
Asbest: Niet bekend
Energielabel: Niet van toepassing (Gemeentelijk Monument)
Aanvaarding: in onderling overleg
Ter bescherming van de belangen van zowel koper als verkoper, wordt uitdrukkelijk gesteld dat een koopovereenkomst met betrekking tot deze onroerende zaak eerst dan tot stand komt nadat koper en verkoper de koopovereenkomst hebben getekend (“schriftelijkheidsvereiste”).
Indien er in de woning huurtoestellen aanwezig zijn zoals CV-ketel, boiler, zonnepanelen, mechanische ventilatie etc. dan dienen deze door de koper te worden overgenomen.
De termijn die wordt opgenomen voor eventuele (overeengekomen) ontbindende voorwaarden (bv. Financiering) is in de regel 4 tot 6 weken na het sluiten van de mondelinge wilsovereenkomst.
De waarborgsom/bankgarantie is 10% van de koopsom. De koper dient deze 3 dagen ná het vervallen van de ontbindende voorwaarden bij de desbetreffende notaris te deponeren.
Koper is te allen tijde gerechtigd voor eigen rekening een bouwkundige keuring te (laten) verrichten dan wel andere adviseurs te raadplegen teneinde een goed inzicht te verkrijgen over de staat van onderhoud.
Deze informatie is door ons, Tijs & Cyril Makelaardij met de nodige zorgvuldigheid samengesteld. Onzerzijds wordt echter geen enkele aansprakelijkheid aanvaard voor enige onvolledigheid, onjuist of anderszins, dan wel de gevolgen daarvan. Alle opgegeven maten en oppervlakten zijn indicatief. Van toepassing zijn de NVM voorwaarden.