Vraagprijs € 1.150.000,- k.k.
Wonen en werken in een stijlvol herenhuis aan de Wilhelminasingel. De Wilhelminasingel is in 1892 genoemd naar de destijds 11-jarige Wilhelmina der Nederlanden, die van 1890 tot 1948 koningin der Nederlanden was. Aanvankelijk werd de straat aangeduid als 'Boulevard' of 'Singelweg'. Aan deze prachtige singel, ten hoogte van de Akerstraat en het Hoogbrugplein, staat dit zeer royale herenhuis die qua bestemming diverse mogelijkheden biedt. Volop parkeermogelijkheden in de straat, aanvraag parkeervergunning is optie. In totaal zijn er 5 slaapkamers en de woonkamer bevindt zich, net als de keuken, op de eerste verdieping. De begane grond is klaar voor een nieuwe invulling, zakelijk of om te wonen.
Wonen en werken in een stijlvol herenhuis aan de Wilhelminasingel. De Wilhelminasingel is in 1892 genoemd naar de destijds 11-jarige Wilhelmina der Nederlanden, die van 1890 tot 1948 koningin der Nederlanden was. Aanvankelijk werd de straat aangeduid als 'Boulevard' of 'Singelweg'. Aan deze prachtige singel, ten hoogte van de Akerstraat en het Hoogbrugplein, staat dit zeer royale herenhuis die qua bestemming diverse mogelijkheden biedt. Volop parkeermogelijkheden in de straat, aanvraag parkeervergunning is optie. In totaal zijn er 5 slaapkamers en de woonkamer bevindt zich, net als de keuken, op de eerste verdieping. De begane grond is klaar voor een nieuwe invulling, zakelijk of om te wonen.
Typering:
De circa 650 meter lange Wilhelminasingel geniet onder andere bekendheid vanwege het Mariamonument op de kruising met de Stationsstraat. Voor een bezoek aan de supermarkt, de vele winkels, sportschool, de historische binnenstad en andere voorzieningen hoeft u maar een paar minuten te lopen. De Markt en het geliefde Vrijthof bevinden zich op iets meer dan 1 kilometer loopafstand van dit fantastische herenhuis. Verder woont u in de nabijheid van het trein-/busstation, het MUMC+, diverse faculteiten van de universiteit en de vele voorzieningen in Wyck.
Souterrain:
In de ontvangsthal, achter een van de fraaie paneeldeuren, is een trap die naar het souterrain leidt. Deze etage heeft een plafondhoogte van circa twee meter en is verdeeld in drie ruimtes. Kelder I (circa 8,41 x 1,84/1,21) staat in verbinding met kelder II (circa 4,13 x 4,44), gesitueerd aan de voorzijde, en kelder III (circa 4,34 x 4,06) aan de achterzijde. In deze laatstgenoemde ruimte is de opstelling van de wasapparatuur.
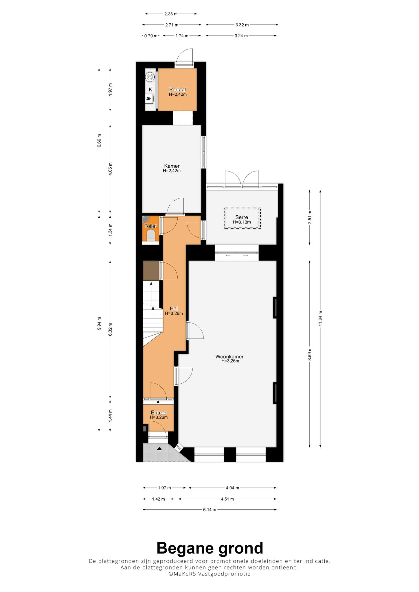
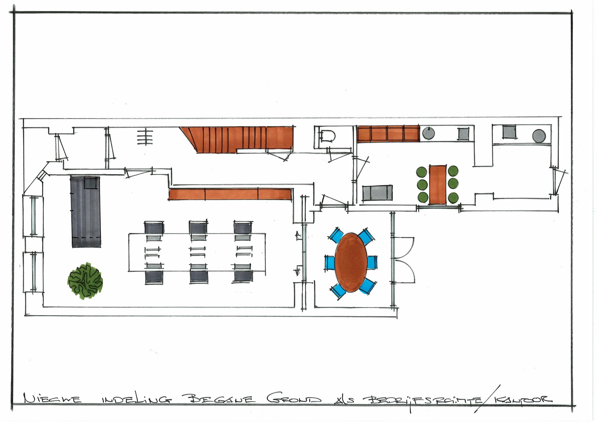
Begane grond:
De entree is fraai, met een buitentrap van hardsteen en glas in loodramen boven de voordeur. In de hal, die uit twee delen bestaat, ligt een prachtige terraso vloer die goed past bij de authentieke gietijzeren radiator op pootjes die overal in het gebouw weer terugkomen, de originele trappartij en het hoge plafond.
De trap is omsloten door een volledig af te sluiten glaswand, zodat de boven verdieping een aparte woonlocatie kan zijn.
Aan het einde van de hal, aan de linkerzijde, is de toiletruimte met fonteintje. Op de begane grond is een grote, multifunctionele ruimte voorzien van een baliemeubel met ingebouwde vaatwasser die de thuisbasis van uw bedrijf kan worden. Met een totale oppervlakte van circa 45 m2 is dit een fantastische werkruimte, met een 3.65 meter hoog plafond en veel lichtinval door de grote ramen aan de voor- en achterzijde. Fraaie elementen zijn de parketvloer, stijlplafonds en de schuifdeuren met glas in loodramen.
Achter de schuifdeuren is een tuinkamer (orangerie) (circa 8,3 m2) met een lichtkoepel en openslaande deuren naar de stadstuin. Aan het einde van de hal, bij de toiletruimte en tuinkamer, is een deur naar een ruimte (circa 4,05 x 2,38) die als kantoor, keuken of berging gebruikt kan worden. Aansluitend is een berging (circa 2,38 x 1,97) met een deur naar de tuin en een kastenwand, waarin de opstelling van de HR-ketel (Nefit Ecomline, eigendom) is.
De stadstuin op het oosten ademt sfeer en is aangelegd met gevarieerd groen. Bij de tuinkamer is het eerste terras, waar het bladerdek in de zomer voor fijne schaduw zorgt. Aan de andere zijde, waar nu een barbecue en een tuinbank staan, is het tweede terras van deze intieme tuin.
Eerste verdieping:
Het woongedeelte is op de eerste, tweede en derde verdieping. Op de eerste verdieping, aan de voorzijde, is de woonkamer ensuite, het raam aan de achtergevel is voorzien van een elektrisch Rolluik en aan de achterzijde vindt u de keuken en een toiletruimte met fonteintje. De woonkamer ensuite met stijlvolle parketvloer en maatwerk kasten heeft een totale oppervlakte van circa 44,8 m2. Het zitgedeelte met openslaande deuren naar een klein balkon bevindt zich aan de voorzijde en het eetgedeelte, aan de achterzijde, is de perfecte plek om in stijl te dineren. De 3,50 meter hoge plafonds met sierlijsten versterken de sfeer en ruimte in de woonkamer. In de keuken (circa 4,25 x 2,70) staat een dubbele wandopstelling met een zwart granieten aanrechtblad. Dit blad past niet alleen goed bij de keuken, maar ook bij de zwart granieten tegelvloer. Alle benodigde apparatuur is ingebouwd: een 5-pits gaskookplaat, afzuigkap, vaatwasser, koelkast en een Combi oven. Het aansluitende dakterras, gesitueerd op het oosten, is circa 2,70 x 2,10 meter.
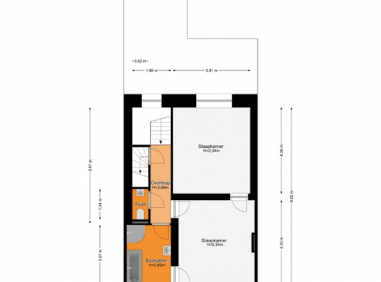
Tweede verdieping:
De prachtige trap gaat verder naar de tweede verdieping. Hier zijn twee slaapkamers, de badkamer en een separate toiletruimte. Slaapkamer I (circa 4,33 x 3,84) bevindt zich aan de voorzijde en aan de achterzijde is slaapkamer II (circa 4,36 x 3,91) het raam is voorzien van een elektrisch Rolluik. Niet alleen vanaf de overloop, maar ook vanuit slaapkamer II heeft u toegang tot de badkamer (circa 3,07 x 2,24). Deze ruimte, deels met marmer op de wanden, is ingedeeld met een ligbad, aparte douche en een stijlvol wastafelmeubel met koperkleurige waskom en bijpassende kraan.
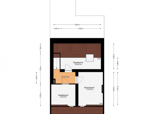
Derde verdieping:
De trappartij eindigt op de derde verdieping waar nog drie (slaap)kamers zijn. Slaapkamer III (circa 2,70 x 3,03) en slaapkamer IV (circa 4,25 x 3,08), beiden met een dakkapel, zijn aan de voorzijde en aan de achterzijde is slaapkamer V (circa 5,05 x 3,22) met een groot dakraam.
Algemeen:
Bouwjaar: 1919
Perceeloppervlakte: 152 m2
Gebruiksoppervlakte wonen: circa 252 m2, inhoud circa 1222 m3
Verwarming middels een HR-ketel (Nefit Ecomline, eigendom) het bouwjaar is 2001, de installatie is gereviseerd in 2016 met een compleet nieuw binnenwerk
Kunststof kozijnen (voorgevel) met HR glas
Houten kozijnen (achterzijde) met enkel glas
Monument
Bestemming Gemengd-2 (o.a. wonen, kantoren, aan huis verbonden beroepen, galerie/atelier)
Asbest: niet bekend
Aanvaarding: in onderling overleg
In de Gemeente Maastricht geldt vanaf 1 oktober 2022 een Huisvestingsverordening - opkoopbescherming voor woningen (dit kan bij deze woning van toepassing zijn).
Ter bescherming van de belangen van zowel koper als verkoper, wordt uitdrukkelijk gesteld dat een koopovereenkomst met betrekking tot deze onroerende zaak eerst dan tot stand komt nadat koper en verkoper de koopovereenkomst hebben getekend (“schriftelijkheidsvereiste”).
De termijn die wordt opgenomen voor eventuele (overeengekomen) ontbindende voorwaarden (bv. Financiering) is in de regel 4 tot 6 weken na het sluiten van de mondelinge wilsovereenkomst.
De waarborgsom/bankgarantie is 10% van de koopsom. De koper dient deze 3 dagen ná het vervallen van de ontbindende voorwaarden bij de desbetreffende notaris te deponeren.
Koper is te allen tijde gerechtigd voor eigen rekening een bouwkundige keuring te (laten) verrichten dan wel andere adviseurs te raadplegen teneinde een goed inzicht te verkrijgen over de staat van onderhoud.
Deze informatie is door ons, Tijs & Cyril Makelaardij met de nodige zorgvuldigheid samengesteld. Onzerzijds wordt echter geen enkele aansprakelijkheid aanvaard voor enige onvolledigheid, onjuist of anderszins, dan wel de gevolgen daarvan. Alle opgegeven maten en oppervlakten zijn indicatief. Van toepassing zijn de NVM voorwaarden.