Ruim wonen in Amby in deze halfvrijstaande woning met 4 slaapkamers, een garage met carport, zonnige tuin, zonnepanelen en energielabel A
Ruim wonen in Amby in deze halfvrijstaande woning met 4 slaapkamers, een garage met carport, zonnige tuin, zonnepanelen en energielabel A
Typering:
De Wagenlaan is een van de mooiste straten in Amby met halfvrijstaande en vrijstaande woningen. Via de Molenweg loopt u het prachtige buitengebied in richting de Rasberg, Berg en Terblijt, natuurgebied De Dellen en Geulhem. De basisschool, het United World College, supermarkt, winkels en vele sportverenigingen bevinden zich op fietsafstand. Via de Geusselt is het minder dan 3 kilometer naar de oprit van de A2 richting Eindhoven en de A79. Met de bus en fiets zijn het treinstation en het historische centrum van Maastricht goed bereikbaar.
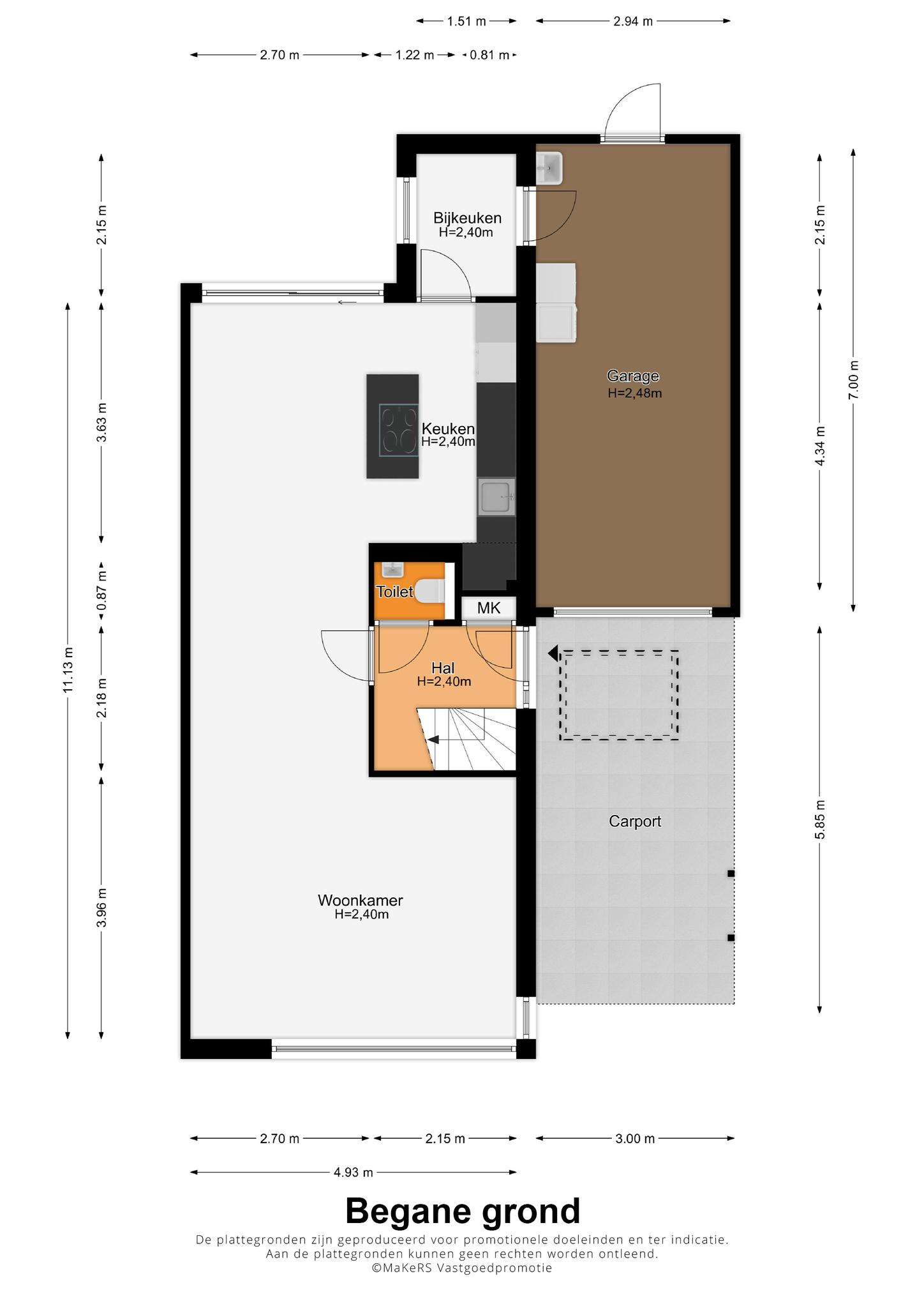
Begane grond:
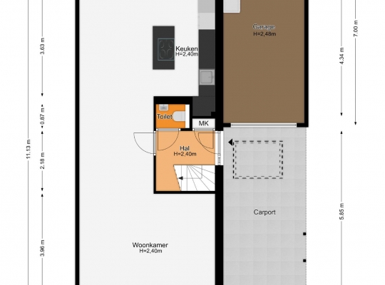
Onder de carport is de entree van deze ruime, moderne woning met energielabel A. Links in de hal is de hardhouten trapopgang en aan de rechterzijde, naast de meterkast, de toiletruimte met fonteintje. Mooie elementen zijn de donkere tegelvloer en de trendy woonkamerdeur met glas.
De L-vormige woonkamer (ca. 38,9 m2) heeft een mooie verdeling tussen het zit- en het eetgedeelte. Aan de voorzijde is de zitkamer met een lichte laminaatvloer en mooi uitzicht naar de rustige straat. Het eetgedeelte met tegelvloer en grote schuifpui staat in open verbinding met de keuken (3,63 x 2,15). In de keuken staat een stijlvolle hoekopstelling (2007) met een kookeiland en diverse inbouwapparatuur: een inductie kookplaat, afzuigkap, combi-oven, vaatwasser en een koelkast met vriesvak.
In de hoek van de bijkeuken is een deur naar de bijkeuken (2,15 x 1,81) met een inpandige toegang tot de ruime garage (7,00 x 2,94) met elektra, water, een deur naar de tuin en een poort naar de carport.
Vanuit de woonkamer en garage is de achtertuin op het zonnige zuiden te bereiken. Deze stijlvolle buitenruimte is ingedeeld met een groot terras, gazon, borders met beplanting en een veranda (3,30 x 3,00) met berging (2,31 x 1,81). Deze tuin biedt gedurende de hele dag ruimte om in de zon te zitten. De oprit, carport en betegelde voortuin bieden ruime parkeergelegenheid op eigen terrein.
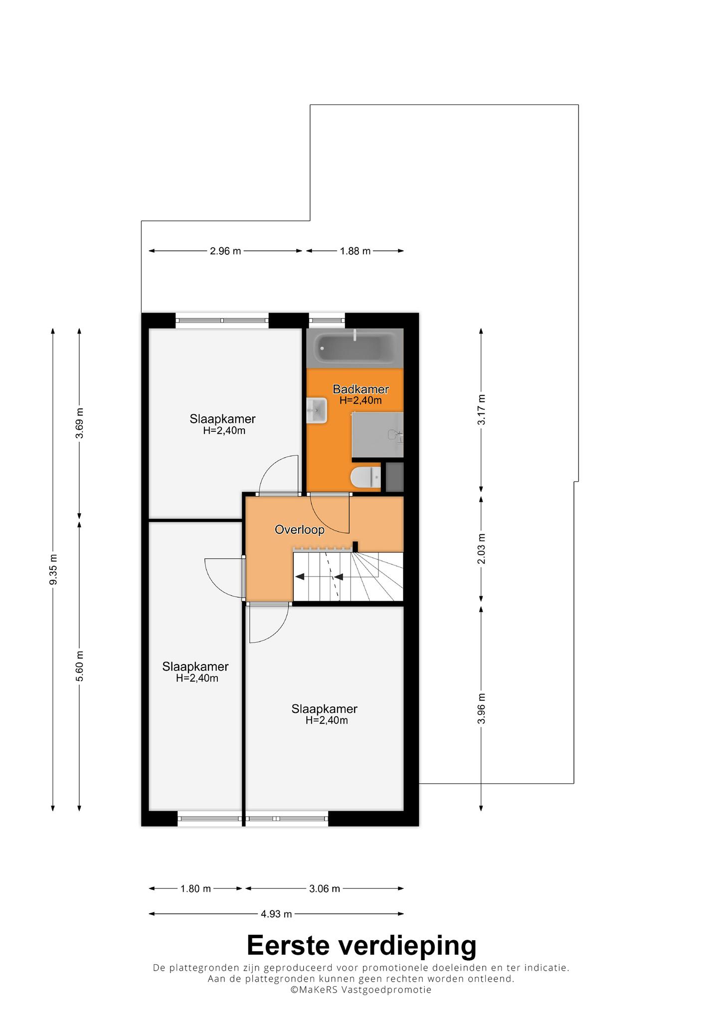
Eerste verdieping:
Op de eerste verdieping zijn de overloop, drie slaapkamers en de badkamer. Slaapkamer I (3,69 x 2,96/1,80) aan de achterzijde is ingericht als kinderkamer. Ook slaapkamer II (5,60 x 1,80) aan de voorzijde is in gebruik als kinderkamer. Slaapkamer III (3,96 x 3,06) is de hoofdslaapkamer met een rustige sfeer. Op de overloop hangt een airco-unit voor verkoeling en verwarming.
De badkamer (3,17 x 1,88) is ingedeeld met een ligbad, aparte douche, tweede toilet, wastafel en een hoge wandradiator. Het raam zorgt voor veel lichtinval en de wanden zijn, net als de vloer, geheel betegeld.
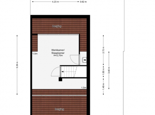
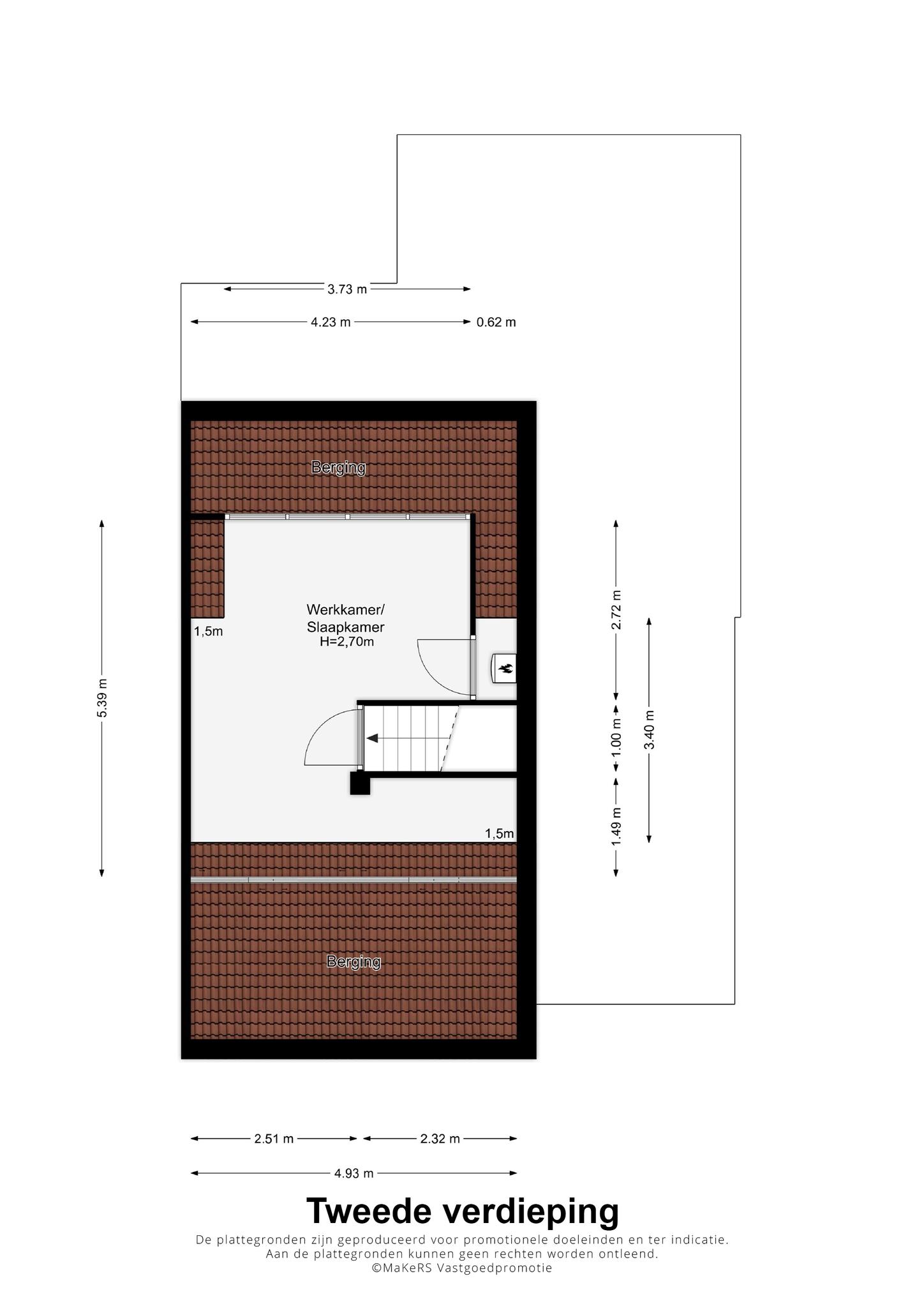
Tweede verdieping:
Een vaste trap geeft toegang tot de tweede verdieping. Aan het einde van de trap is een deur naar een grote werk-/slaapkamer (ca. 14,5 m2) met ruime bergingen in de schuinten van het dak en een cv-ruimte, waar de HR-ketel (2015, eigendom) hangt. Een grote dakkapel zorgt voor veel ruimte en lichtinval in deze kamer, die voor diverse doeleinden gebruikt kan worden.
Algemeen:
Bouwjaar: 1997
Gebruiksoppervlakte wonen: circa 129 m2, inhoud circa 513 m3
Verwarming en warm water via een HR-ketel (2015, eigendom)
Elektrische vloerverwarming in de keuken
Hardhouten kozijnen met isolatieglas en deels rolluiken
Vier slaapkamers, waarvan een met een dakkapel
Zonnige achtertuin (zuid) met terras en veranda
Ruime parkeergelegenheid op eigen terrein
10 zonnepanelen van 360 Wp, geplaatst in 2020
Energielabel: A
Aanvaarding: 1 oktober 2024
Ter bescherming van de belangen van zowel koper als verkoper, wordt uitdrukkelijk gesteld dat een koopovereenkomst met betrekking tot deze onroerende zaak eerst dan tot stand komt nadat koper en verkoper de koopovereenkomst hebben getekend (“schriftelijkheidsvereiste”).
Indien er in de woning huurtoestellen aanwezig zijn zoals CV-ketel, boiler, zonnepanelen, mechanische ventilatie etc. dan dienen deze door de koper te worden overgenomen.
De termijn die wordt opgenomen voor eventuele (overeengekomen) ontbindende voorwaarden (bv. Financiering) is in de regel 4 tot 6 weken na het sluiten van de mondelinge wilsovereenkomst.
De waarborgsom/bankgarantie is 10% van de koopsom. De koper dient deze 3 dagen ná het vervallen van de ontbindende voorwaarden bij de desbetreffende notaris te deponeren.
Koper is te allen tijde gerechtigd voor eigen rekening een bouwkundige keuring te (laten) verrichten dan wel andere adviseurs te raadplegen teneinde een goed inzicht te verkrijgen over de staat van onderhoud.
Deze informatie is door ons, Tijs & Cyril Makelaardij met de nodige zorgvuldigheid samengesteld. Onzerzijds wordt echter geen enkele aansprakelijkheid aanvaard voor enige onvolledigheid, onjuist of anderszins, dan wel de gevolgen daarvan. Alle opgegeven maten en oppervlakten zijn indicatief. Van toepassing zijn de NVM voorwaarden.