Vraagprijs € 489.000,- k.k.
Fraai wonen in Wolder met vrij uitzicht op de Louwberg en de Apostelhoeve. Op een van de mooiste locaties in Wolder, in een rustige straat, vindt u deze lichte woning met kunststof kozijnen, 12 zonnepanelen en een zonnige tuin op het zuiden. De carport biedt parkeergelegenheid op eigen terrein en er zijn 3 slaapkamers. Er zijn vergelijkbare woningen in de straat met maar liefst 5 slaapkamers en 2 badkamers, wat de potentie van dit huis goed weergeeft. Het uitzicht aan de achterzijde, in combinatie met de rustige ligging, maakt het wonen op deze plek heel geliefd.
Fraai wonen in Wolder met vrij uitzicht op de Louwberg en de Apostelhoeve. Op een van de mooiste locaties in Wolder, in een rustige straat, vindt u deze lichte woning met kunststof kozijnen, 12 zonnepanelen en een zonnige tuin op het zuiden. De carport biedt parkeergelegenheid op eigen terrein en er zijn 3 slaapkamers. Er zijn vergelijkbare woningen in de straat met maar liefst 5 slaapkamers en 2 badkamers, wat de potentie van dit huis goed weergeeft. Het uitzicht aan de achterzijde, in combinatie met de rustige ligging, maakt het wonen op deze plek heel geliefd.
Typering:
Wolder is een rustige, kindvriendelijke wijk aan de rand van Maastricht. Via de Tongerseweg heeft u een goede aansluiting op de snelwegen A2/A79 en er is een directe busverbinding met het centrum en treinstation. In de wijk zijn een basisschool, voetbalvereniging en de prachtige natuur als achtertuin is perfect om te wandelen, fietsen en een rondje te gaan hardlopen.
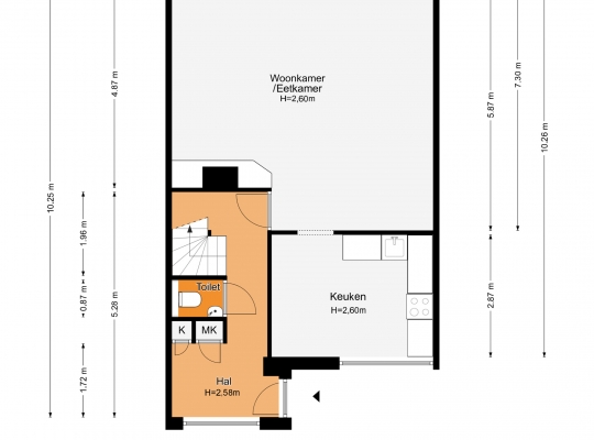
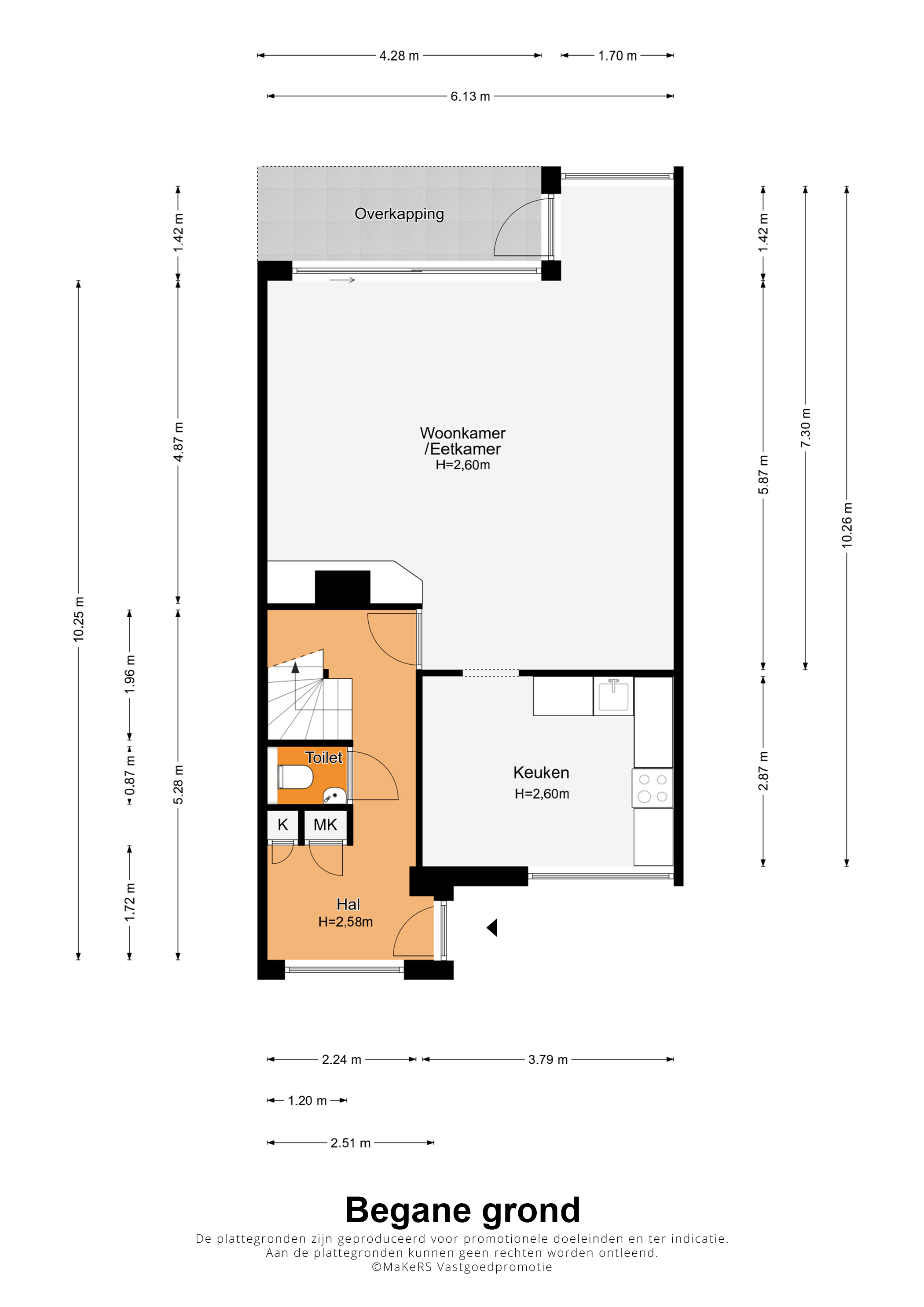
Begane grond:
Vanaf de carport is het een paar stappen naar de voordeur van deze lichte woning. In de ruime hal ziet u de trapopgang, toiletruimte en de meterkast. Via het brede raam aan de voorzijde valt veel licht naar binnen en de tegelvloer, in de hal en toiletruimte, is diagonaal gelegd.
Aan de zonnige zuidkant is de woonkamer van circa 36 m2, met een schuifpui naar het overdekte terras. De sfeer in de woonkamer wordt bepaald door de parketvloer en de schouw met inbouwhaard. Voor een grote zithoek, de eettafel en een wandmeubel of dressoir is genoeg plek.
De halfopen keuken (circa 3,79 x 2,87) met lichte tegelvloer bevindt zich aan de voorzijde. Er is een mooi doorkijkje naar de rustige straat en de lichte hoekopstelling is uitgevoerd met een inductie kookplaat, afzuigkap, oven en een vaatwasser.
In de voortuin ziet u mooie, merendeels groenblijvende beplanting en de zonnige achtertuin is ingedeeld met een groot terras, mooi aangelegde borders en een fietsenberging (circa 4,36 x 2,30). Naast de berging is een poort naar de Vroenhovenweg, van waaruit u zo het buitengebied inloopt.
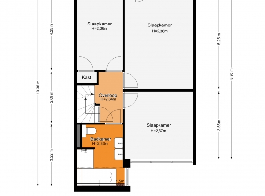
Eerste verdieping:
Vanaf de overloop heeft u toegang tot drie slaapkamers en de badkamer. Op bijna de hele verdieping ligt laminaat op de vloer en ook op deze verdieping zijn de kunststof kozijnen uitgevoerd met HR-glas. De badkamer (circa 3,22 x 2,42) met zijraam is ingedeeld met een ligbad, aparte douche, een toilet en twee wastafels.
Slaapkamer I (circa 3,55 x 3,61), qua grootte geschikt als tweepersoonskamer, biedt uitzicht op de rustige straat. Aan de achterzijde zijn slaapkamer II (circa 4,25 x 2,42) en slaapkamer III (circa 5,25 x 3,61). Het balkon (circa 6,23 x 1,22) biedt, net als de aangrenzende slaapkamers, magnifiek uitzicht op de Louwberg en de Apostelhoeve.
Tweede verdieping:
Een vaste trap geeft toegang tot een grote, multifunctionele kamer (circa 8,95 x 6,13 vloeroppervlakte) met een dakraam en een ruim 3,50 meter hoge nok. Het realiseren van twee slaapkamers, een wasruimte en/of een tweede badkamer is mogelijk.
Algemeen:
Bouwjaar: 1976
Perceeloppervlakte: 195 m2
Gebruiksoppervlakte wonen: circa 153 m2, inhoud circa 519 m3
Verwarming en warm water via een HR-ketel (Vaillant, 2018, huur)
Kunststof kozijnen met dubbele beglazing
12 zonnepanelen aan de achterzijde
Unieke locatie aan de rand van Wolder, met vrij uitzicht op de Louwberg
Parkeergelegenheid op eigen terrein
Energielabel: A
Aanvaarding: in onderling overleg
Ter bescherming van de belangen van zowel koper als verkoper, wordt uitdrukkelijk gesteld dat een koopovereenkomst met betrekking tot deze onroerende zaak eerst dan tot stand komt nadat koper en verkoper de koopovereenkomst hebben getekend (“schriftelijkheidsvereiste”).
Indien er in de woning huurtoestellen aanwezig zijn zoals CV-ketel, boiler, zonnepanelen, mechanische ventilatie etc. dan dienen deze door de koper te worden overgenomen.
De termijn die wordt opgenomen voor eventuele (overeengekomen) ontbindende voorwaarden (bv. Financiering) is in de regel 4 tot 6 weken na het sluiten van de mondelinge wilsovereenkomst.
De waarborgsom/bankgarantie is 10% van de koopsom. De koper dient deze 3 dagen ná het vervallen van de ontbindende voorwaarden bij de desbetreffende notaris te deponeren.
Koper is te allen tijde gerechtigd voor eigen rekening een bouwkundige keuring te (laten) verrichten dan wel andere adviseurs te raadplegen teneinde een goed inzicht te verkrijgen over de staat van onderhoud.
Deze informatie is door ons, Tijs & Cyril Makelaardij met de nodige zorgvuldigheid samengesteld. Onzerzijds wordt echter geen enkele aansprakelijkheid aanvaard voor enige onvolledigheid, onjuist of anderszins, dan wel de gevolgen daarvan. Alle opgegeven maten en oppervlakten zijn indicatief. Van toepassing zijn de NVM voorwaarden.