Vraagprijs € 489.000,- k.k.
Prachtige 2-kapper met garage op een prachtige plek in Daalhof. Op een van de mooiste plekjes van Daalhof, met uitzicht op een breed plantsoen, staat deze goed onderhouden 2-onder-1 kapwoning met een oprit, garage en 4 slaapkamers. De kunststof kozijnen zijn voorzien van HR++ glas, er ligt vloerverwarming op de begane grond en de spouwmuren zijn in 2021 geïsoleerd. Dit is het perfecte huis voor een gezin, om samen te wonen en om vanuit huis te werken!
Prachtige 2-kapper met garage op een prachtige plek in Daalhof. Op een van de mooiste plekjes van Daalhof, met uitzicht op een breed plantsoen, staat deze goed onderhouden 2-onder-1 kapwoning met een oprit, garage en 4 slaapkamers. De kunststof kozijnen zijn voorzien van HR++ glas, er ligt vloerverwarming op de begane grond en de spouwmuren zijn in 2021 geïsoleerd. Dit is het perfecte huis voor een gezin, om samen te wonen en om vanuit huis te werken!
Typering:
Aan de overzijde van de Planetenhof stopt de bus en verder woont u in de nabijheid van het winkelcentrum, met een supermarkt en een bakkerij. Ook het winkelcentrum aan de Keurmeestersdreef is in de nabijheid. Voor kinderen zijn er een basisschool en volop speelgelegenheid in deze kindvriendelijke buurt. En wilt u naar het centrum van Maastricht? Het Vrijthof is maar 3 kilometer fietsen!
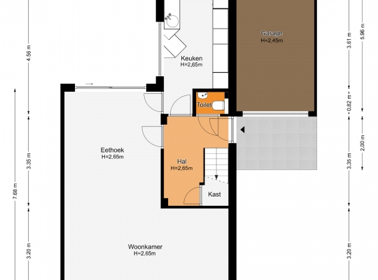
Begane grond:
Een goed begin is de oprit met overkapping, waardoor u altijd op eigen terrein kunt parkeren. Dit kan ook in de garage (circa 5,96 x 2,92), voorzien van een elektrisch bedienbare sectionaalpoort en een deur naar de achtertuin.
Bij de overkapping is de voordeur die, net als de kozijnen van het huis, is uitgevoerd in kunststof. In de hal (circa 3,35 x 2,42) zijn de trapopgang, een bergkast en de toiletruimte met fonteintje. Via de glazen binnendeuren valt veel licht naar binnen en onder de lichte tegelvloer ligt vloerverwarming.
De L-vormige woonkamer (circa 35 m2) is een fijne leefruimte, met een royaal zitgedeelte aan de voorzijde, Het uitzicht naar het plantsoen met hoge bomen is om in te lijsten. Bij het eetgedeelte, met ruimte voor een 6-persoonstafel, zorgt een grote schuifpui voor een optimale verbinding met de tuin. Wat opvalt in de woonkamer is de lichtinval, dankzij de gunstige oost-westligging.
Vanuit de hal en woonkamer is er toegang tot de keuken (circa 9,7 m2). Wat opvalt is de speelse indeling van deze ruimte, met een vaste ontbijttafel en een hoogwaardige keukenopstelling. De aanrechtbladen zijn van natuursteen en de inductie kookplaat, afzuigkap, oven, vaatwasser en koelkast met vriesvak zijn ingebouwd.
Strakke lijnen en mooie beplanting bepalen de sfeer in de voor- en achtertuin. De voortuin is gesitueerd op het westen en de achtertuin op het oosten. Een deel van de beplanting is groenblijvend en boven het grote terras hangt een zonnescherm.
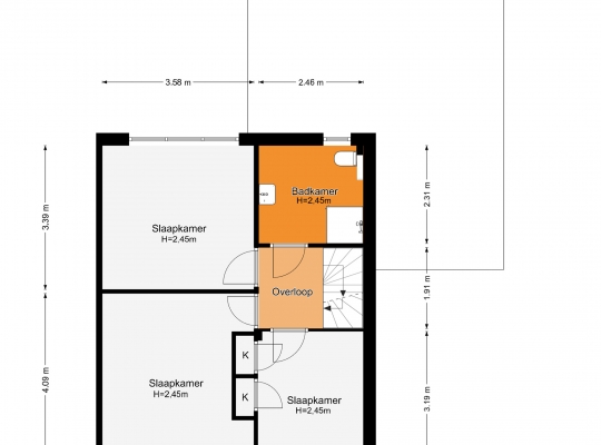
Eerste verdieping:
Niet alleen de begane grond, maar ook de eerste verdieping is zeer netjes onderhouden. Vanaf de overloop is er toegang tot drie slaapkamers en de badkamer. Slaapkamer I (circa 4,09 x 3,58) en slaapkamer II (circa 3,19 x 2,46), met een dubbele inbouwkast, zijn aan de voorzijde. Het uitzicht op het plantsoen is, ook hier, erg fraai. Slaapkamer III (circa 3,58 x 3,39) vindt u, net als de badkamer, aan de achterzijde. De ramen in de slaapkamers zijn voorzien van rolluiken.
De badkamer (circa 2,46 x 2,31) is ingedeeld met een douche, een wandcloset, designradiator, een wastafel en twee badkamerkasten. Zowel de wanden als de vloer zijn geheel betegeld en het plafond is voorzien van inbouwverlichting.
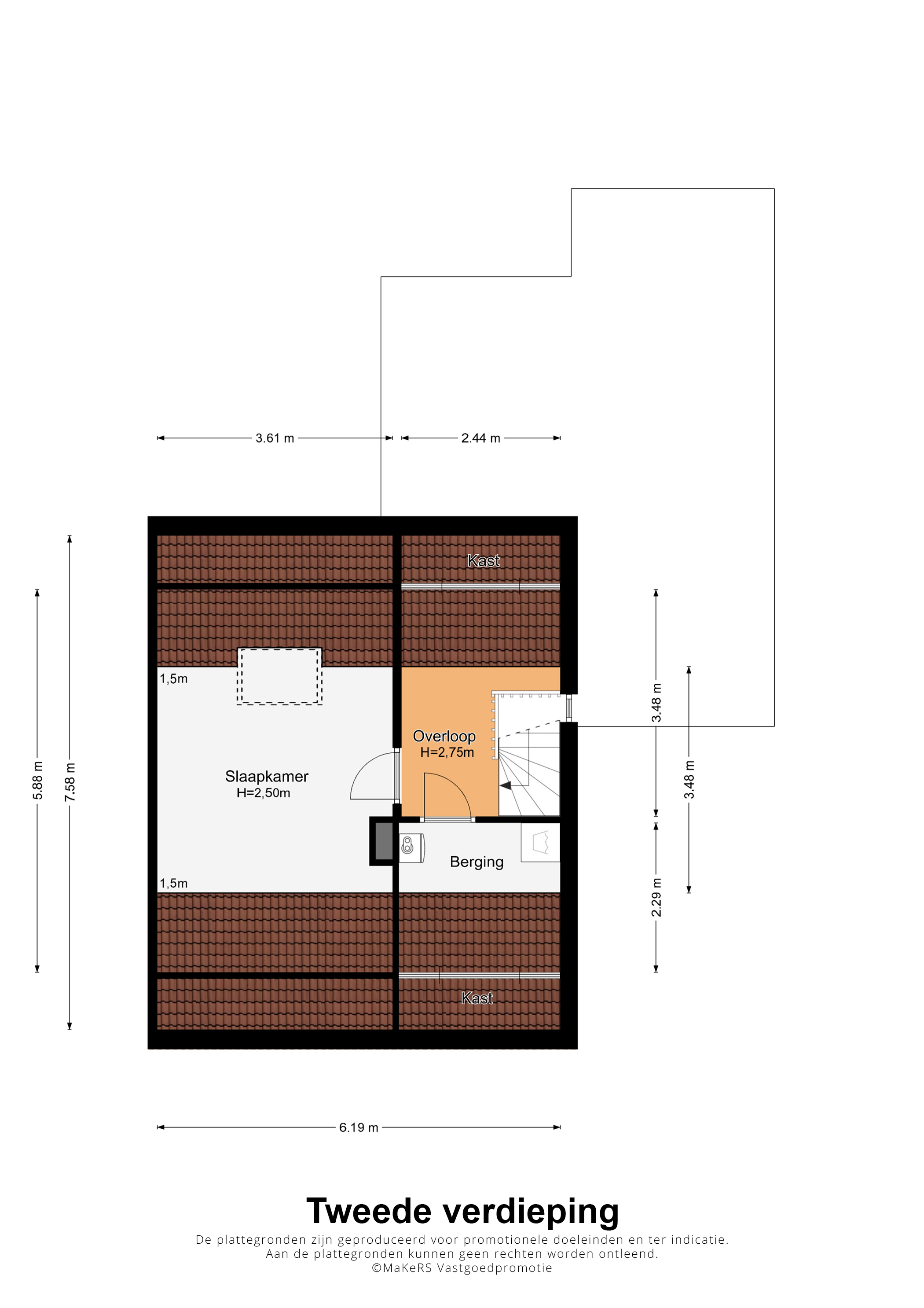
Tweede verdieping:
Er is een vaste trap naar de tweede verdieping, met een nokhoogte van circa 2,75 meter. De overloop heeft een raam in de zijgevel en aan de voorzijde is een berging, met plek voor de wasapparatuur. In deze ruimte hangt de HR-ketel (Remeha, 2019, eigendom).
Slaapkamer IV (circa 5,88 x 3,61) is een ruime kamer met een dakraam aan de achterzijde. Perfect als kinderkamer, hobbyruimte of werkkamer!
Algemeen:
Bouwjaar: 1973
Perceeloppervlakte: 248 m2
Gebruiksoppervlakte wonen: circa 125 m2, inhoud: circa 511 m3
Verwarming en warm water via een HR-ketel (Remeha, 2019, eigendom)
Vloerverwarming op de begane grond
Kunststof kozijnen met HR++ glas
Dakgoten en platte dakbedekking circa 5 jaar geleden vernieuwd
Spouwmuurisolatie (2021) en dakisolatie
Vier slaapkamers, waarvan een op de tweede verdieping
Mooi aangelegde voor- en achtertuin
Garage en oprit met overkapping
Energielabel: C
Aanvaarding: in onderling overleg
In de Gemeente Maastricht geldt vanaf 1 oktober 2022 een Huisvestingsverordening - opkoopbescherming voor woningen (dit kan bij deze woning van toepassing zijn).
Ter bescherming van de belangen van zowel koper als verkoper, wordt uitdrukkelijk gesteld dat een koopovereenkomst met betrekking tot deze onroerende zaak eerst dan tot stand komt nadat koper en verkoper de koopovereenkomst hebben getekend (“schriftelijkheidsvereiste”).
De termijn die wordt opgenomen voor eventuele (overeengekomen) ontbindende voorwaarden (bv. Financiering) is in de regel 4 tot 6 weken na het sluiten van de mondelinge wilsovereenkomst.
De waarborgsom/bankgarantie is 10% van de koopsom. De koper dient deze 3 dagen ná het vervallen van de ontbindende voorwaarden bij de desbetreffende notaris te deponeren. Koper is te allen tijde gerechtigd voor eigen rekening een bouwkundige keuring te (laten) verrichten dan wel andere adviseurs te raadplegen teneinde een goed inzicht te verkrijgen over de staat van onderhoud.
Deze informatie is door ons Tijs & Cyril Makelaardij met de nodige zorgvuldigheid samengesteld.
Onzerzijds wordt echter geen enkele aansprakelijkheid aanvaard voor enige onvolledigheid, onjuist of anderszins, dan wel de gevolgen daarvan. Alle opgegeven maten en oppervlakten zijn indicatief. Van toepassing zijn de NVM voorwaarden.