Vraagprijs € 469.000,- k.k.
Aan de Velijndonk staat deze verrassend ingedeelde woning met een zonnige tuin, een oprit met carport en een royale woonkamer. De keuken, badkamer en toiletruimte zijn vernieuwd en de garage is verbouwd tot een slaap-/werkkamer. De aangrenzende bijkeuken kan worden verbouwd tot doucheruimte of badkamer, waardoor gelijkvloers wonen binnen handbereik is.
Aan de Velijndonk staat deze verrassend ingedeelde woning met een zonnige tuin, een oprit met carport en een royale woonkamer. De keuken, badkamer en toiletruimte zijn vernieuwd en de garage is verbouwd tot een slaap-/werkkamer. De aangrenzende bijkeuken kan worden verbouwd tot doucheruimte of badkamer, waardoor gelijkvloers wonen binnen handbereik is.
Geschakelde woning met 4 slaapkamers in het groene Oud-Caberg. Aan de Velijndonk staat deze verrassend ingedeelde woning met een zonnige tuin, een oprit met carport en een royale woonkamer. De keuken, badkamer en toiletruimte zijn vernieuwd en de garage is verbouwd tot een slaap-/werkkamer. De aangrenzende bijkeuken kan worden verbouwd tot doucheruimte of badkamer, waardoor gelijkvloers wonen binnen handbereik is.
OPEN HUIS:
Donderdag 12 maart van 16:00u tot 17:00u
Dinsdag 17 maart van 16:00u tot 17:00u
Komt u een kijkje nemen? Laat het ons weten, mail uw gegevens naar info@tijsencyril.nl en dan ontvangt u van ons de aanvullende informatie.
Typering:
Oud-Caberg is een voormalig dorp en thans een deel van de woonwijk Caberg in Maastricht. De woning aan de Velijndonk staat in een rustige straat, tussen de Van Akenweg en een groene zone aan de overzijde van de Papyrussingel. Er is een winkelcentrum op loopafstand en verder woont u in de nabijheid van de bushalte, een basisschool en het wijkcentrum. Diverse uitvalswegen zorgen voor goede verbindingen met het centrum, de A2/A79, Lanaken en Bilzen.
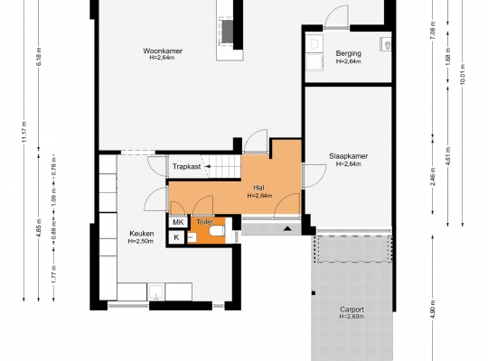
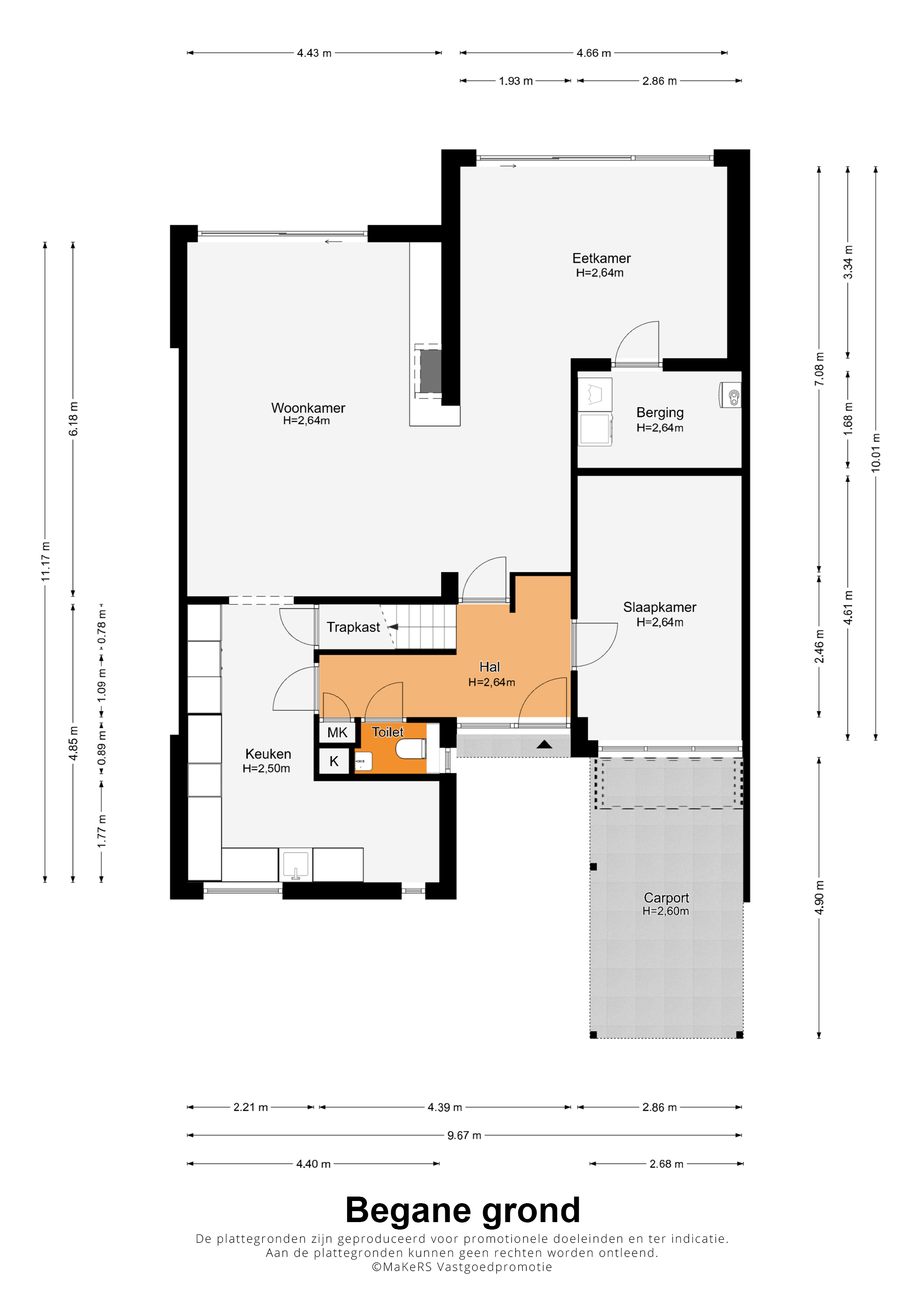
Begane grond:
Op een paar stappen van de carport is de entree van deze lichte en goed ingedeelde woning. In de hal valt uw oog op de natuursteen vloer en de trap naar de eerste verdieping. Vanuit de hal is er onder andere toegang tot de fraaie toiletruimte en slaapkamer I (circa 4,61 x 2,86), met een grote pui aan de voorzijde en een visgraatvloer.
Aan de achterzijde is de speels ingedeelde woon-/eetkamer van ruim 50 m2, met een gashaard bij het zitgedeelte en een dubbele schuifpui naar de tuin. De natuursteen vloer en de schouw bij de haard zorgen voor een woonkamer die heel stijlvol en luxe oogt. Vanuit de eetkamer is er toegang tot een berging/bijkeuken (circa 2,86 x 1,68) met de HR-ketel (Remeha, 2017, huur) en de opstelling van de wasapparatuur.
Vanuit de L-vormige keuken (circa 14,5 m2) is er mooi uitzicht op de voortuin en de rustige straat. De donkere tegelvloer vormt een mooie combinatie met de royale, L-vormige opstelling. Alle benodigde apparatuur is ingebouwd: een keramische kookplaat, afzuigkap, combi-oven, vaatwasser en een koelkast met vriesvak.
Er zijn twee grote schuifpuien naar de achtertuin, gesitueerd op het zuidoosten. U ziet gevarieerde beplanting, groene hagen en tegels van groot formaat. Omdat omliggende bebouwing laag is, ervaart u veel privacy in de tuin.
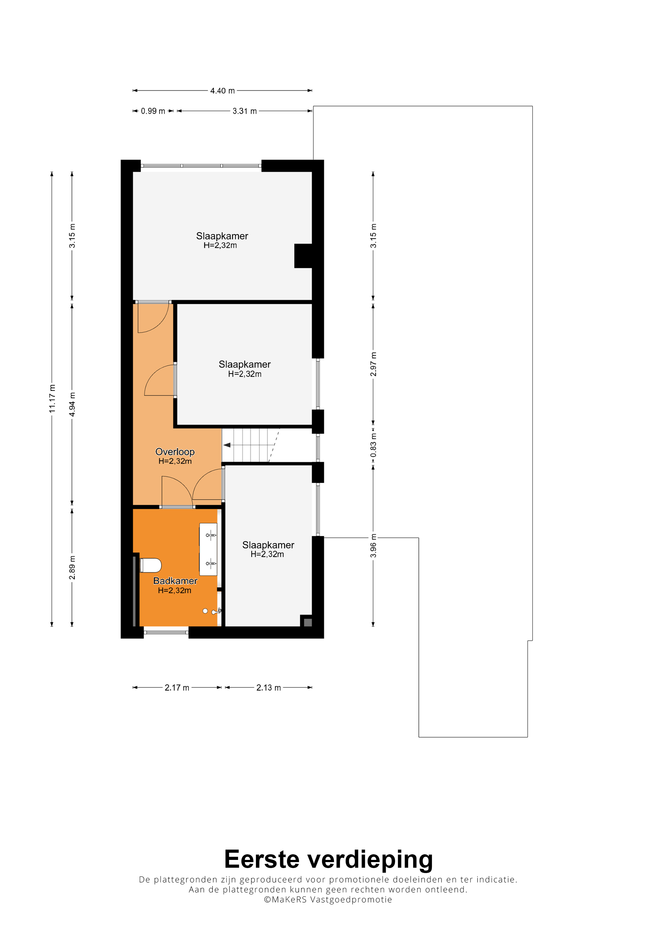
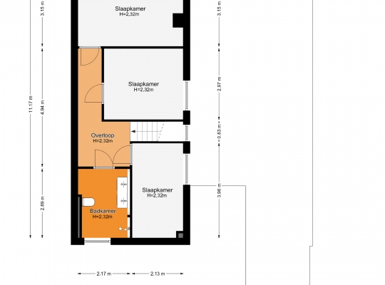
Eerste verdieping:
Met drie slaapkamers en een badkamer heeft de eerste verdieping een goede indeling, ook voor een gezin. Aan de achterzijde is slaapkamer II (circa 4,40 x 3,15), met veel groen als uitzicht. Naast deze kamer is slaapkamer III (circa 3,31 x 2,97) en aan de voorzijde vindt u slaapkamer IV (circa 3,96 x 2,13).
De badkamer (circa 2,89 x 2,17) is uitgevoerd in dezelfde stijl als de toiletruimte op de begane grond. U heeft de beschikking over een luxe douche met lage instap, een wandcloset en een badmeubel waarop twee wastafels staan. Een glazen wand met deur, geheel uitgevoerd in melkglas, zorgt voor privacy in de badkamer en voor fijne lichtinval op de overloop.
Algemeen:
Bouwjaar: 1970
Perceeloppervlakte: 293 m2
Gebruiksoppervlakte wonen: circa 149 m2, inhoud: circa 517 m3
Verwarming en warm water via een HR-ketel (Remeha, 2017, huur)
Houten en kunststof kozijnen met HR++ glas
Parkeergelegenheid op eigen terrein (oprit en carport)
Garage is verbouwd tot slaap-/werkkamer (mogelijkheid voor een douche/badkamer)
Drie slaapkamers en een badkamer op de eerste verdieping
Geen vragenlijst en lijst van zaken aanwezig.
Asbest: niet bekend
Energielabel: C
Aanvaarding: in onderling overleg
De NVM-vragenlijst Deel B en de Lijst van Zaken zijn niet van toepassing, aangezien de woning wordt verkocht met een niet-zelfbewoningsclausule. Verkoper heeft de woning zelf niet bewoond en kan derhalve koper niet informeren over eigenschappen en/of gebreken waarvan hij niet op de hoogte is.
Ter bescherming van de belangen van zowel koper als verkoper, wordt uitdrukkelijk gesteld dat een koopovereenkomst met betrekking tot deze onroerende zaak eerst dan tot stand komt nadat koper en verkoper de koopovereenkomst hebben getekend (“schriftelijkheidsvereiste”).
De termijn die wordt opgenomen voor eventuele (overeengekomen) ontbindende voorwaarden (bv. Financiering) is in de regel 4 tot 6 weken na het sluiten van de mondelinge wilsovereenkomst.
De waarborgsom/bankgarantie is 10% van de koopsom. De koper dient deze 3 dagen ná het vervallen van de ontbindende voorwaarden bij de desbetreffende notaris te deponeren. Koper is te allen tijde gerechtigd voor eigen rekening een bouwkundige keuring te (laten) verrichten dan wel andere adviseurs te raadplegen teneinde een goed inzicht te verkrijgen over de staat van onderhoud.
Deze informatie is door ons Tijs & Cyril Makelaardij met de nodige zorgvuldigheid samengesteld.
Onzerzijds wordt echter geen enkele aansprakelijkheid aanvaard voor enige onvolledigheid, onjuist of anderszins, dan wel de gevolgen daarvan. Alle opgegeven maten en oppervlakten zijn indicatief. Van toepassing zijn de NVM voorwaarden.