Lichte woning met 4 slaapkamers, op een prachtige plek in Belfort. Op het mooiste stukje van de Strodekkersdreef, met uitzicht naar een groot plantsoen en een prachtige bomenrij, staat deze goed onderhouden woning met 4 slaapkamers. Een van de slaapkamers is op de 2e verdieping en de onderhoudsvriendelijke achtertuin is op het oosten. In de woonkamer en keuken ligt een parketvloer, en de kunststof kozijnen zijn voorzien van dubbel glas.
Lichte woning met 4 slaapkamers, op een prachtige plek in Belfort. Op het mooiste stukje van de Strodekkersdreef, met uitzicht naar een groot plantsoen en een prachtige bomenrij, staat deze goed onderhouden woning met 4 slaapkamers. Een van de slaapkamers is op de 2e verdieping en de onderhoudsvriendelijke achtertuin is op het oosten. In de woonkamer en keuken ligt een parketvloer, en de kunststof kozijnen zijn voorzien van dubbel glas.
Typering:
Dit huis herken je direct, vanwege de mooie palmboom in de voortuin. Er is veel groen in de wijk, er is volop speelgelegenheid voor de kinderen en de bushalte is vlak om de hoek. Aan de overzijde van de Keurmeestersdreef zijn een basisschool en een buurtwinkelcentrum met een supermarkt. De Tongerseweg en de Via Regia zorgen voor goede verbindingen met uitvalswegen richting de A2/A79, richting Tongeren en Bilzen.
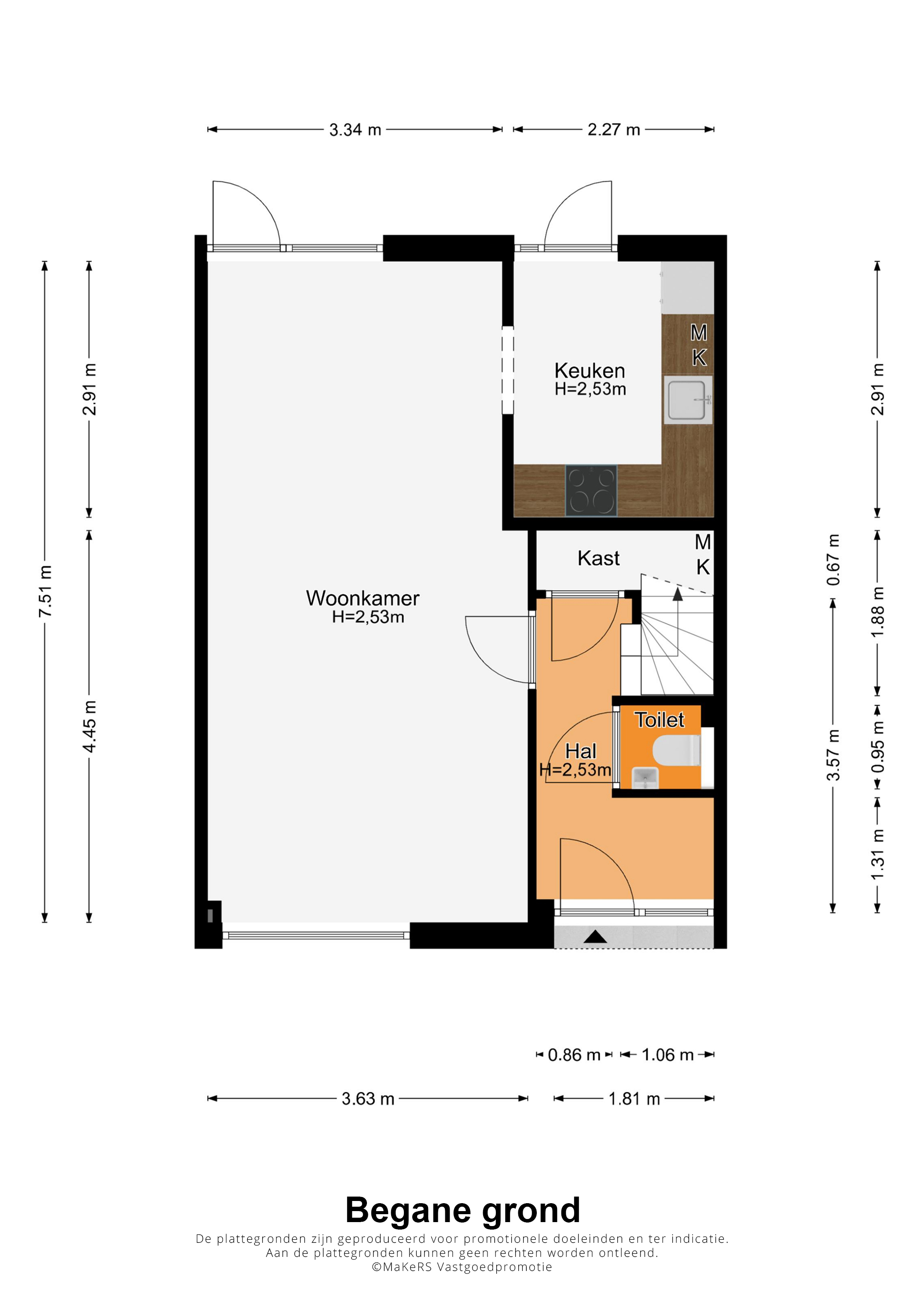
Begane grond:
Het paadje in de voortuin leidt naar de voordeur van deze lichte, gezellige woning. In de L-vormige hal zijn de trapopgang, een bergkast en de toiletruimte met fonteintje. De trap is fraai gerenoveerd, met overzettreden en verlichting.
Grote ramen aan de voor- en achterzijde zorgen voor veel lichtinval in de woonkamer (circa 7,51 x 3,63/3,34). Het zitgedeelte is aan de voorzijde, met uitzicht naar de voortuin en het plantsoen, en vanaf het eetgedeelte kijkt u naar de achtertuin. De mooie parketvloer past bij diverse interieurstijlen, van landelijk tot modern.
Bij het eetgedeelte is een doorgang naar de keuken (circa 2,91 x 2,27), waar een lichte hoekopstelling met hoge bovenkasten staat. De inductie kookplaat, afzuigkap, oven, vaatwasser en koelkast met vriesvak zijn ingebouwd.
Vanuit de keuken en woonkamer heeft u toegang tot de achtertuin, die op het oosten gesitueerd is. Aan twee kanten ziet u vaste beplanting en grote betontegels zorgen ervoor dat er genoeg plek is om buiten te zitten. In de berging (circa 2,90 x 2,30) is ruimte voor de fietsen en bij de overkapping (circa 2,90 x 2,40) is een poort naar de steeg.
1e verdieping:
Niet alleen op de begane grond, maar ook op de eerste verdieping is veel lichtinval. Aan de voorzijde is slaapkamer I (circa 3,46 x 3,60), met uitzicht naar de palmboom en het plantsoen aan de overzijde van de straat. Slaapkamer II (circa 3,95 x 3,35) en slaapkamer III (circa 2,93 x 2,26) zijn aan de achterzijde. In de laatstgenoemde slaapkamer is de opstelling van de wasapparatuur.
De badkamer (circa 2,43 x 2,02) heeft twee ramen in de voorgevel en grote, witte wandtegels maken de badkamer heel ruimtelijk. Alle voorzieningen zijn aanwezig: een ligbad, aparte douche, een wandcloset en een wastafelmeubel.
2e verdieping:
Een vaste, fraaie trap geeft toegang tot de tweede verdieping. Hier zijn een overloop, twee bergingen en slaapkamer IV (circa 3,32 x 3,60). De slaapkamer heeft twee dakramen, een goede stahoogte en handige bergruimte in de schuinten van het dak.
Algemeen:
Bouwjaar: 1965
Gebruiksoppervlakte wonen: circa 104 m2, inhoud circa 365 m3
Perceeloppervlakte: 139 m2
Kunststof kozijnen met isolatieglas
Verwarming en warm water via een HR-ketel (Nefit, 2015, eigendom)
Vier slaapkamers, waarvan een op de tweede verdieping
Asbest: niet bekend
Energielabel: C
Aanvaarding: in onderling overleg
In de Gemeente Maastricht geldt vanaf 1 oktober 2022 een Huisvestingsverordening - opkoopbescherming voor woningen (dit kan bij deze woning van toepassing zijn).
Ter bescherming van de belangen van zowel koper als verkoper, wordt uitdrukkelijk gesteld dat een koopovereenkomst met betrekking tot deze onroerende zaak eerst dan tot stand komt nadat koper en verkoper de koopovereenkomst hebben getekend (“schriftelijkheidsvereiste”).
Indien er in de woning huurtoestellen aanwezig zijn zoals CV-ketel, boiler, zonnepanelen, mechanische ventilatie etc. dan dienen deze door de koper te worden overgenomen.
De termijn die wordt opgenomen voor eventuele (overeengekomen) ontbindende voorwaarden (bv. Financiering) is in de regel 4 tot 6 weken na het sluiten van de mondelinge wilsovereenkomst.
De waarborgsom/bankgarantie is 10% van de koopsom. De koper dient deze 3 dagen ná het vervallen van de ontbindende voorwaarden bij de desbetreffende notaris te deponeren.
Koper is te allen tijde gerechtigd voor eigen rekening een bouwkundige keuring te (laten) verrichten dan wel andere adviseurs te raadplegen teneinde een goed inzicht te verkrijgen over de staat van onderhoud.
Deze informatie is door ons, Tijs & Cyril Makelaardij met de nodige zorgvuldigheid samengesteld. Onzerzijds wordt echter geen enkele aansprakelijkheid aanvaard voor enige onvolledigheid, onjuist of anderszins, dan wel de gevolgen daarvan. Alle opgegeven maten en oppervlakten zijn indicatief. Van toepassing zijn de NVM voorwaarden.