Vraagprijs € 1.345.000,- k.k.
In het historische centrum van Maastricht, direct achter het Vrijthof en de Sint-Servaasbasiliek, staat dit monumentale en karaktervolle herenhuis met een fraaie stadstuin. De woning combineert authentieke details met hedendaags wooncomfort en beschikt onder andere over een zitkamer, eetkamer, leefkeuken, meerdere slaapkamers, twee badkamers en een kelder. De afgelopen jaren is het pand met veel zorg gerenoveerd, waarbij de monumentale uitstraling behouden is gebleven. Hoge plafonds, ornamenten, haardpartijen en andere authentieke details geven de woning veel karakter. Aan de achterzijde ligt een sfeervolle stadstuin met meerdere niveaus en terrassen op het zuidwesten.
In het historische centrum van Maastricht, direct achter het Vrijthof en de Sint-Servaasbasiliek, staat dit monumentale en karaktervolle herenhuis met een fraaie stadstuin. De woning combineert authentieke details met hedendaags wooncomfort en beschikt onder andere over een zitkamer, eetkamer, leefkeuken, meerdere slaapkamers, twee badkamers en een kelder. De afgelopen jaren is het pand met veel zorg gerenoveerd, waarbij de monumentale uitstraling behouden is gebleven. Hoge plafonds, ornamenten, haardpartijen en andere authentieke details geven de woning veel karakter. Aan de achterzijde ligt een sfeervolle stadstuin met meerdere niveaus en terrassen op het zuidwesten.
Typering:
Sint Servaasklooster behoort tot de meest karakteristieke straten van het historische centrum van Maastricht. De straat ligt op enkele stappen van het Vrijthof met haar terrassen, restaurants en culturele voorzieningen. In de directe omgeving bevinden zich winkels, horeca, musea en de Universiteit Maastricht. Het trein- en busstation is goed bereikbaar en ook de uitvalswegen richting Aken, Luik en Hasselt zijn eenvoudig te bereiken. Ondanks de ligging midden in het centrum biedt deze straat een rustige woonomgeving met veel privacy.
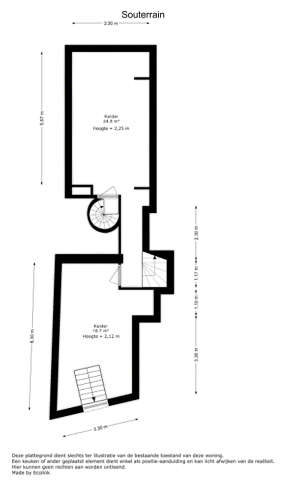
Kelder:
Vanuit de hal is via een houten wenteltrap de kelder te bereiken. Het eerste keldervertrek (circa 25 m²) heeft wanden en vloer van veldbrandsteen en een plafond met tongewelf. Het tweede keldervertrek (circa 19 m²) bevindt zich aan de voorzijde en heeft een gecementeerde vloer, wanden van veldbrandsteen en eveneens een tongewelf. Vanuit deze ruimte is er een deur naar het trottoir aan de voorzijde van de woning.
Begane grond:
Via de entree komt u in de hal met garderobe, meterkast en toegang tot de verschillende vertrekken. Aan de voorzijde van de woning ligt de zitkamer (circa 20 m²) met hoge plafonds, sierlijsten en een houtkachel. Aansluitend bevindt zich de eetkamer (circa 23 m²), eveneens met een houtkachel en fraaie ornamentenplafonds.
Aan de achterzijde ligt de leefkeuken (circa 21 m²). De keuken is uitgevoerd met een ambachtelijke keukenopstelling van het merk Neptune met eikenhouten kasten en diverse inbouwapparatuur. Via openslaande deuren is het terras en de tuin te bereiken.
De stadstuin ligt op het zuidwesten en is speels aangelegd met meerdere niveaus. Direct aan de keuken ligt een terras, waarna een trap naar een hoger gelegen gedeelte leidt. Achter in de tuin bevindt zich een terras met overkapping.
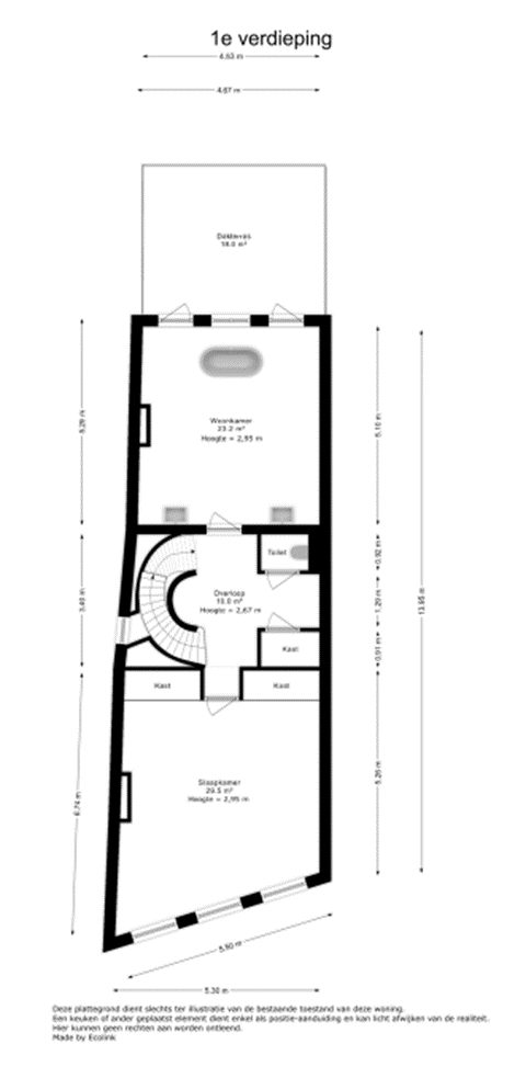
Eerste verdieping:
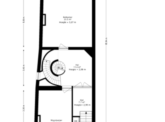
Via een eikenhouten wenteltrap is de eerste verdieping bereikbaar. De overloop geeft toegang tot de badkamer, een separaat toilet en de slaapkamer. De badkamer (circa 23 m²) is royaal en voorzien van een duo ligbad, twee wastafelmeubels en een monumentale haardmantel. Slaapkamer I (circa 30 m²) bevindt zich eveneens op deze verdieping en beschikt over een inbouwkast en een monumentale haard.
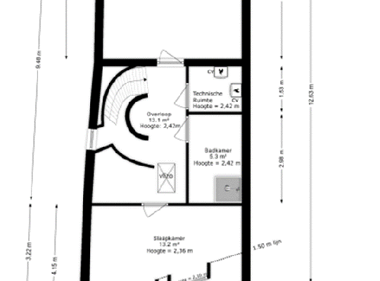
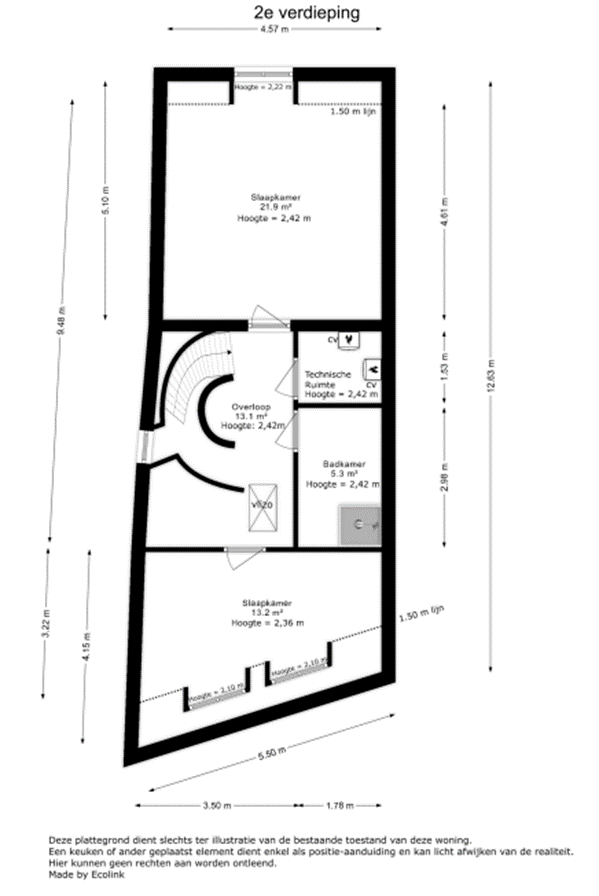
Tweede verdieping:
Via een eikenhouten trap is de tweede verdieping te bereiken. De overloop geeft toegang tot twee slaapkamers, een tweede badkamer en een technische ruimte. Slaapkamer II (circa 22 m²) bevindt zich aan de voorzijde en heeft een dakkapel. Slaapkamer III (circa 13 m²) ligt eveneens op deze verdieping en beschikt ook over een dakkapel. De tweede badkamer (circa 5 m²) is voorzien van een inloopdouche met rainshower, een toilet, een wastafelmeubel en een handdoekradiator. In de technische ruimte bevinden zich de aansluitingen voor witgoed, de cv-installatie en de mechanische ventilatie.
Zolder:
Via een vlizotrap is de zolder bereikbaar. Deze ruimte (circa 23 m²) heeft een houten vloer en een zichtbare kapconstructie en is geschikt als bergruimte.
Algemeen:
Collegiale verkoop met Marinus & Partners
Bouwjaar: 1880 (Rijksmonument)
Gebruiksoppervlakte wonen: circa 216 m² Inhoud: circa 868 m³
Perceeloppervlakte: circa 220 m²
Verwarming en warm water via twee cv-installaties (Nefit Topline Compact HRC uit 2011 en Atag uit 2020/2021)
De woning is geregistreerd als Rijksmonument (monumentnummer 26818)
Glas-in-loodraam boven voordeur
Stadstuin op het zuidwesten met meerdere terrassen
Ligging in het historische centrum van Maastricht, op korte afstand van het Vrijthof
Aanvaarding: in onderling overleg
In de Gemeente Maastricht geldt vanaf 1 oktober 2022 een Huisvestingsverordening - opkoopbescherming voor woningen (dit kan bij deze woning van toepassing zijn).
Ter bescherming van de belangen van zowel koper als verkoper, wordt uitdrukkelijk gesteld dat een koopovereenkomst met betrekking tot deze onroerende zaak eerst dan tot stand komt nadat koper en verkoper de koopovereenkomst hebben getekend (“schriftelijkheidsvereiste”).
Indien er in de woning huurtoestellen aanwezig zijn zoals CV-ketel, boiler, zonnepanelen, mechanische ventilatie etc. dan dienen deze door de koper te worden overgenomen.
De termijn die wordt opgenomen voor eventuele (overeengekomen) ontbindende voorwaarden (bv. Financiering) is in de regel 4 tot 6 weken na het sluiten van de mondelinge wilsovereenkomst.
De waarborgsom/bankgarantie is 10% van de koopsom. De koper dient deze 3 dagen ná het vervallen van de ontbindende voorwaarden bij de desbetreffende notaris te deponeren.
Koper is te allen tijde gerechtigd voor eigen rekening een bouwkundige keuring te (laten) verrichten dan wel andere adviseurs te raadplegen teneinde een goed inzicht te verkrijgen over de staat van onderhoud.
Deze informatie is door ons, Tijs & Cyril Makelaardij met de nodige zorgvuldigheid samengesteld. Onzerzijds wordt echter geen enkele aansprakelijkheid aanvaard voor enige onvolledigheid, onjuist of anderszins, dan wel de gevolgen daarvan. Alle opgegeven maten en oppervlakten zijn indicatief. Van toepassing zijn de NVM voorwaarden.