Vraagprijs € 925.000,- k.k.
Na 45 jaar komt deze monumentale villa weer te koop, een uitzonderlijke gelegenheid om onderscheidend te wonen in de geliefde wijk Sint Pieter. Door de royale raampartijen, de bijzondere details en de slimme indeling is dit een heerlijke gezinswoning op een van de mooiste plekken van de stad.
Na 45 jaar komt deze monumentale villa weer te koop, een uitzonderlijke gelegenheid om onderscheidend te wonen in de geliefde wijk Sint Pieter. Door de royale raampartijen, de bijzondere details en de slimme indeling is dit een heerlijke gezinswoning op een van de mooiste plekken van de stad.
Typering
Op een van de meest gewilde locaties van Maastricht ligt deze bijzondere vrijstaande villa in de stijl van het Nieuwe Bouwen. Hier woont u in de geliefde wijk Sint Pieter, een groene en rustige woonomgeving met de twee natuurgebieden Pietersberg en Jekerdal om de hoek. Sport en recreatievoorzieningen, een medisch centrum, een OBS en het historische stadscentrum liggen op loopafstand. Het gezellige winkelcentrum met dorps karakter aan de Glacisweg biedt bovendien alles wat u dagelijks nodig heeft. Het MECC, MUMC, het Provinciehuis liggen op fietsafstand en alle uitvalswegen zijn direct binnen uw bereik. Er is voldoende parkeergelegenheid: op de oprit van het huis en op de openbare weg, zowel betaald parkeren als parkeren voor vergunninghouders.
Deze ruimtelijke villa beschikt over een inpandige garage, vier slaapkamers en een zonnige onderhoudsvrije stadstuin met meerdere terrassen rondom. Laat u verrassen door de unieke sfeer van dit pand en door de extra ruimte in het multifunctionele souterrain. Door de royale raampartijen, de bijzondere details en de slimme indeling is dit een heerlijke gezinswoning op een van de mooiste plekken van de stad.
Het ontwerp
Deze villa is in 1955 gebouwd. De oorspronkelijke kenmerken van het ontwerp van architect Claessens, waaronder het kleurgebruik aan de binnen- en buitenzijde, zijn gelukkig behouden. Via de grote authentieke raampartijen wordt de villa overgoten met natuurlijk licht in het verrassend ruimtelijke interieur met die speelse indeling. De windrichtingen en het verloop van het zonlicht zijn als uitgangspunten genomen voor de indeling van de gevels.
Vanwege de historische waarde van de architectuur is de villa gewaardeerd als een dominant bouwwerk en is het in meerdere architectuurboeken gepubliceerd waaronder “De Stijl Gids Nederland”. Het hoogtepunt is echter een boekwerk van 92 pagina’s uit 2006 van de hand van William Graatsma met als titel 'Het huis van San Claessens' waarin de filosofie over het ontstaan en de realisatie van het ontwerp van het bouwwerk uitvoerig zijn gedocumenteerd.
Entree, woonkamer en keuken
Via de monumentale buitentrap bereikt u de fraaie overdekte entree. Achter de voordeur geeft de hal toegang tot de woonkamer, de keuken en een moderne toiletruimte met wandcloset en fonteintje. In de hal vindt u eveneens de meterkast.
De speels ingedeelde woonkamer van ca. 60m2 is voorzien van een houten parketvloer. Opvallend zijn de ruime monumentale stalen spiltrap, de grote ramen en de erker met een vrij zicht op het Fort Sint Pieter in de verte. De zichten vanuit de woonkamer op de tuin rondom het huis versterken het buitenleven in deze prachtige wijk. Vanuit de woonkamer heeft u via openslaande deuren toegang tot twee terrassen die zich op verschillende niveaus aan de zonzijde op het zuiden bevinden.
De keuken is voorzien van een grote raampartij en biedt een fijn zicht op de achtertuin en op de straat. De keukeninrichting is overwegend authentiek.
Aan de achterzijde van de woonkamer leidt een open trap naar het souterrain. Halverwege de trap zijn daar nog de openslaande deuren die toegang geven naar de lagergelegen tuinterrassen.
Slaapkamers en badkamer
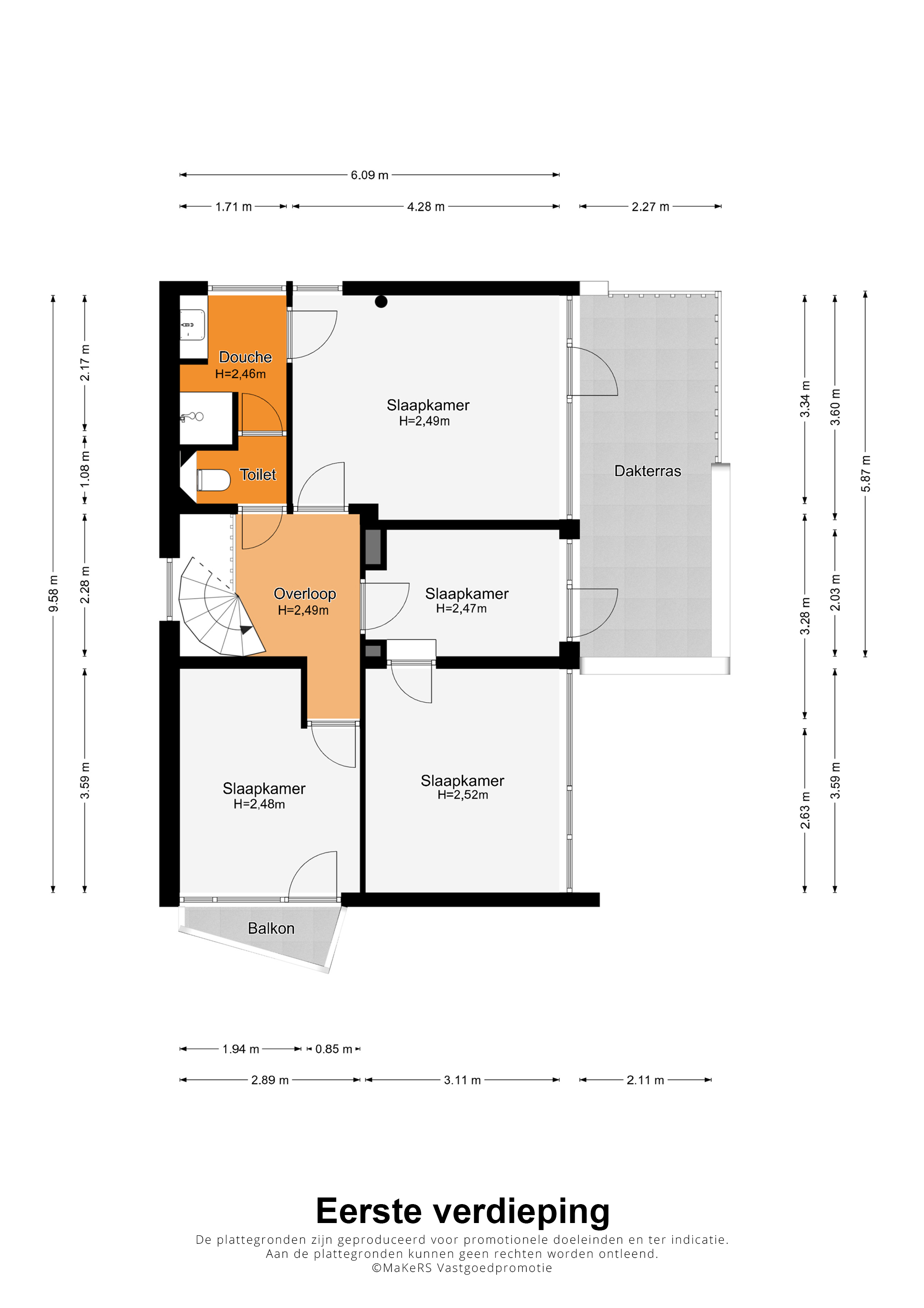
Via een ruime spiltrap bereikt u een ruime lichte overloop met toegang tot de 4 slaapkamers en een badkamer.
De ouderslaapkamer met aansluitende badkamer meet 428 x 360 cm en geeft uit op een royaal dakterras op het zuiden.
Ook slaapkamer 2, met afmeting 311 x 228 cm heeft toegang tot dat dakterras met een afmeting van 587 x 227 cm. Slaapkamer 3, met een afmeting 359 x 311 cm beschikt over een muurkast met ook daar die fraaie grote ramen. Slaapkamer 4, met afmeting van 359 x ca. 289 cm heeft een deur naar het markante balkon op het westen met magnifiek uitzicht op een van de flanken van de Sint-Pietersberg en op het Fort Sint Pieter.
Er is een eenvoudige badkamer van 360 x 171 cm met een douche, een wastafel met hardstenen blad en een aparte toiletruimte met wandcloset. Die toiletruimte is vanuit de ouderslaapkamer en vanuit de overloop apart toegankelijk.
Souterrain
De grootste ruimte in het souterrain is de garage van 785 x 285 cm waar eventueel een extra werkruimte/slaapkamer gerealiseerd zou kunnen worden. Verder is er een bijkeuken van 366 x 301 cm met de geiser (huur Volta), een grote stortbak met aanrecht, de aansluiting voor wasmachine en droger en uitzicht op de tuin. Ook is er een provisieruimte 235 x 102 cm, een wijnkelder 235 x 177 cm en een berging 293 x 194 cm met de opstelling van de installatie voor de luchtverwarming (huur Volta) en de toegang tot de ruime kruipruimte die voor opslag kan worden gebruikt. De garagepoort beschikt over een loopdeur waarmee een tweede toegang tot het woonhuis via het souterrain is verzekerd.
Verleden, heden en toekomst
Deze opmerkelijke villa is een absolute stijlicoon waarbij alle details van het oorspronkelijke ontwerp van in 1953 gelukkig nog zijn behouden. Er hebben geen rigoureuze verbouwingen plaatsgevonden die inbreuk zouden hebben kunnen plegen op dat ontwerp. Dat is best bijzonder na 71 jaar!
De villa heeft twee grote woonperiodes gekend. Eerst heeft de architect er met zijn gezin met 4 kinderen 25 jaar gewoond, van 1955 tot 1980. De tweede bewoners, een gezin met twee kinderen, hebben na hun aankoop in 1980 in de jaren 2004 – 2005 een kleurenrestauratie doorgevoerd die de villa weer het oorspronkelijke kleurenpalet heeft bezorgd. Nu, na 45 jaar, komt dat prachtige pand weer beschikbaar.
De villa is in deze oorspronkelijke setting nog volledig functioneel en is klaar voor de bewoning door de volgende eigenaren. In november 2025 is de tuin heringericht en zijn de vloeren op de slaapverdieping voorzien van een frisse lichtgrijze vloer van Forbo Marmoleum zoals dat in het oorspronkelijke ontwerp was voorzien. Tien jaar geleden is het dak voorzien van isolatie en van een nieuwe toplaag. De meterkast is gemoderniseerd.
Voor een ondernemende nieuwe eigenaar zijn er talloze mogelijkheden om het pand verder te verduurzamen. Een dakopstand van 46 cm is een prima basis voor het plaatsen van zonnepanelen op het dak en faciliteert de inzet van een warmtepomp en de plaatsing van een laadpaal aan de eigen oprit. Met de plaatsing van hoog-isolerend vacuümglas kunt u het wooncomfort nog verder verhogen zonder afbreuk te doen aan het monumentale karakter van de ramen. Dat de gemeente Maastricht recent haar beleid heeft aangepast in functie van het faciliteren van het verduurzamen van monumenten zal zeker een opsteker zijn bij de wensen van de nieuwe eigenaren voor een toekomstgericht behoud van deze prachtige villa aan de Sint Rochusweg 5.
Algemeen:
Bouwjaar: 1953
Gebruiksoppervlakte wonen: circa 151 m2, inhoud circa 604 m3
Perceeloppervlakte: 424 m2
Verwarming en warm water via Luchtverwarming (gehuurd) en geiser (gehuurd).
Stalen kozijnen met enkel glas
Dakisolatie aanwezig
Energielabel: G
Aanvaarding: in onderling overleg
In de Gemeente Maastricht geldt vanaf 1 oktober 2022 een Huisvestingsverordening - opkoopbescherming voor woningen (dit kan bij deze woning van toepassing zijn).
Ter bescherming van de belangen van zowel koper als verkoper, wordt uitdrukkelijk gesteld dat een koopovereenkomst met betrekking tot deze onroerende zaak eerst dan tot stand komt nadat koper en verkoper de koopovereenkomst hebben getekend (“schriftelijkheidsvereiste”).
Indien er in de woning huurtoestellen aanwezig zijn zoals CV-ketel, boiler, zonnepanelen, mechanische ventilatie etc. dan dienen deze door de koper te worden overgenomen.
De termijn die wordt opgenomen voor eventuele (overeengekomen) ontbindende voorwaarden (bv. Financiering) is in de regel 4 tot 6 weken na het sluiten van de mondelinge wilsovereenkomst.
De waarborgsom/bankgarantie is 10% van de koopsom. De koper dient deze 3 dagen ná het vervallen van de ontbindende voorwaarden bij de desbetreffende notaris te deponeren.
Koper is te allen tijde gerechtigd voor eigen rekening een bouwkundige keuring te (laten) verrichten dan wel andere adviseurs te raadplegen teneinde een goed inzicht te verkrijgen over de staat van onderhoud.
Deze informatie is door ons, Tijs & Cyril Makelaardij met de nodige zorgvuldigheid samengesteld. Onzerzijds wordt echter geen enkele aansprakelijkheid aanvaard voor enige onvolledigheid, onjuist of anderszins, dan wel de gevolgen daarvan. Alle opgegeven maten en oppervlakten zijn indicatief. Van toepassing zijn de NVM voorwaarden.