Stijlvol topappartement op de vierde (en bovenste) verdieping met parkeerplek en balkon in trendy Wyck. In de St. Maartensresidentie biedt dit lichte hoekappartement op de bovenste woonlaag met 2 slaapkamers alles wat u zoekt. De woon-/eetkamer met open keuken heeft veel sfeer, de badkamer en aparte toiletruimte zijn zeer modern uitgevoerd en de keuken met inbouwapparatuur is perfect voor de kookliefhebber. Het balkon heeft een goede zonligging en het uitzicht over Wyck is fraai, onder andere op de Sint Martinuskerk en de Ridderbrouwerij.
Stijlvol topappartement op de vierde (en bovenste) verdieping met parkeerplek en balkon in trendy Wyck. In de St. Maartensresidentie biedt dit lichte hoekappartement op de bovenste woonlaag met 2 slaapkamers alles wat u zoekt. De woon-/eetkamer met open keuken heeft veel sfeer, de badkamer en aparte toiletruimte zijn zeer modern uitgevoerd en de keuken met inbouwapparatuur is perfect voor de kookliefhebber. Het balkon heeft een goede zonligging en het uitzicht over Wyck is fraai, onder andere op de Sint Martinuskerk en de Ridderbrouwerij.
Typering:
Voor een bezoek aan de supermarkt, winkels, sportschool, de historische binnenstad en andere voorzieningen woont u op de perfecte plek. Steek de Wilhelminabrug of de Sint Servaasbrug over, richting de historische binnenstad met de Markt, het Vrijthof en het Onze Lieve Vrouweplein. Vlak om de hoek is een basisschool en verder woont u in de nabijheid van het trein-/busstation, het MUMC+, diverse faculteiten van de universiteit en Plein 1992 met de bibliotheek.
Souterrain:
Bij het appartement hoort een privéberging (circa 3,91 x 1,83) en een vaste parkeerplek.
Begane grond:
Het gebouw heeft een fraaie entree, met groen voor de deur. Eenmaal binnen loopt u verder, richting de trap en de lift. Vanaf hier kunt u naar het souterrain en het appartement, gesitueerd op de vierde verdieping.
Vierde verdieping:
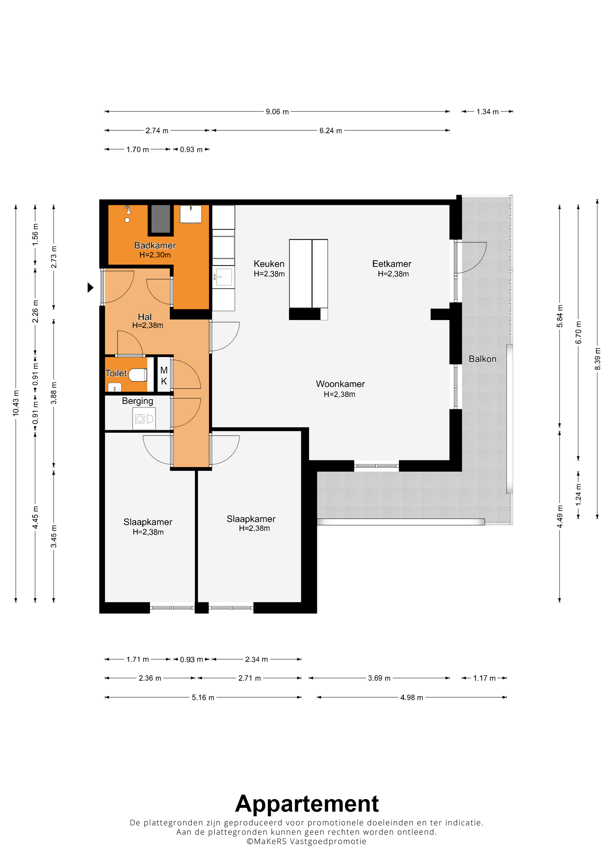
De woonkamer met open keuken (circa 39,6 m2) heeft een prettige indeling, met lichtinval vanaf twee kanten en een deur naar het balkon. Lichte en warme kleuren bepalen de sfeer, waar u al snel de meubels neer kan zetten. In de open keuken staan een wandopstelling en een eiland/eettafel, beiden in een mooie donkere kleur. Alle benodigde apparatuur van Bosch is ingebouwd: een inductie kookplaat, afzuigkap, combi-oven, koelkast en een vaatwasser.
Aan de koele noordzijde zijn de slaapkamers, beiden van goed formaat. Slaapkamer I (circa 4,49 x 2,71/2,34) is ingericht als werk-/kleedkamer en slaapkamer II (circa 4,49 x 2,36/1,71) als master bedroom.
Naast slaapkamer I is een berging (circa 1,71 x 0,91), waar de wasapparatuur kan staan. Iets verder in de hal zijn de meterkast, de moderne toiletruimte met fonteintje en de badkamer (circa 5,3 m2). Hier heeft u de beschikking over een inloopdouche, een stijlvolle wastafel met spiegel en een designradiator.
Het L-vormige balkon is een fijne plek om buiten te zitten. Niet alleen vanwege de gunstige zonligging (deels west), maar ook vanwege het uitzicht op Wyck. U ziet de prachtige Sint Martinuskerk, de Ridderbrouwerij en diverse monumenten.
Algemeen:
Bouwjaar: 1989
Gebruiksoppervlakte wonen: circa 79 m2, inhoud: circa 240 m3
Verwarming en warm water via een HR-ketel (Nefit, 2013, eigendom)
Hardhouten kozijnen met isolatieglas
Vaste parkeerplek
VvE bijdrage € 248,93 per maand (inclusief parkeerplaats)
Energielabel: B
Aanvaarding: in onderling overleg
In de Gemeente Maastricht geldt vanaf 1 oktober 2022 een Huisvestingsverordening - opkoopbescherming voor woningen (dit kan bij deze woning van toepassing zijn).
Ter bescherming van de belangen van zowel koper als verkoper, wordt uitdrukkelijk gesteld dat een koopovereenkomst met betrekking tot deze onroerende zaak eerst dan tot stand komt nadat koper en verkoper de koopovereenkomst hebben getekend (“schriftelijkheidsvereiste”).
De termijn die wordt opgenomen voor eventuele (overeengekomen) ontbindende voorwaarden (bv. Financiering) is in de regel 4 tot 6 weken na het sluiten van de mondelinge wilsovereenkomst.
De waarborgsom/bankgarantie is 10% van de koopsom. De koper dient deze 3 dagen ná het vervallen van de ontbindende voorwaarden bij de desbetreffende notaris te deponeren. Koper is te allen tijde gerechtigd voor eigen rekening een bouwkundige keuring te (laten) verrichten dan wel andere adviseurs te raadplegen teneinde een goed inzicht te verkrijgen over de staat van onderhoud.
Deze informatie is door ons Tijs & Cyril Makelaardij met de nodige zorgvuldigheid samengesteld.
Onzerzijds wordt echter geen enkele aansprakelijkheid aanvaard voor enige onvolledigheid, onjuist of anderszins, dan wel de gevolgen daarvan. Alle opgegeven maten en oppervlakten zijn indicatief. Van toepassing zijn de NVM voorwaarden.