Halfvrijstaande woning in Amby met prachtig uitzicht aan de voorzijde. Deze woning staat op een van de mooiste locaties van Amby, met prachtig uitzicht aan de voorzijde. In totaal zijn er 3 slaapkamers en verrassend is de indeling op de begane grond, met een woonkamer en woonkeuken die samen circa 55 m2 groot zijn. Op de oprit kunnen 2 auto’s staan en verder heeft deze woning een inpandig te bereiken garage.
Halfvrijstaande woning in Amby met prachtig uitzicht aan de voorzijde. Deze woning staat op een van de mooiste locaties van Amby, met prachtig uitzicht aan de voorzijde. In totaal zijn er 3 slaapkamers en verrassend is de indeling op de begane grond, met een woonkamer en woonkeuken die samen circa 55 m2 groot zijn. Op de oprit kunnen 2 auto’s staan en verder heeft deze woning een inpandig te bereiken garage.
Typering:
Alle voorzieningen voor jong en oud zijn in de nabijheid: kinderopvang, basisonderwijs, het United World College (UWC) en een winkelcentrum. Bus 6 zorgt voor een goede verbinding met het treinstation en het centrum. Bij het Geusseltpark zijn vele sportverenigingen en het Geusseltbad. Verder woont u op korte afstand van de uitvalswegen richting Eindhoven, Luik, Heerlen en het Heuvelland. Werkt u bij het MECC, de universiteit of het MUMC+? Dan kunt u met de fiets naar het werk!
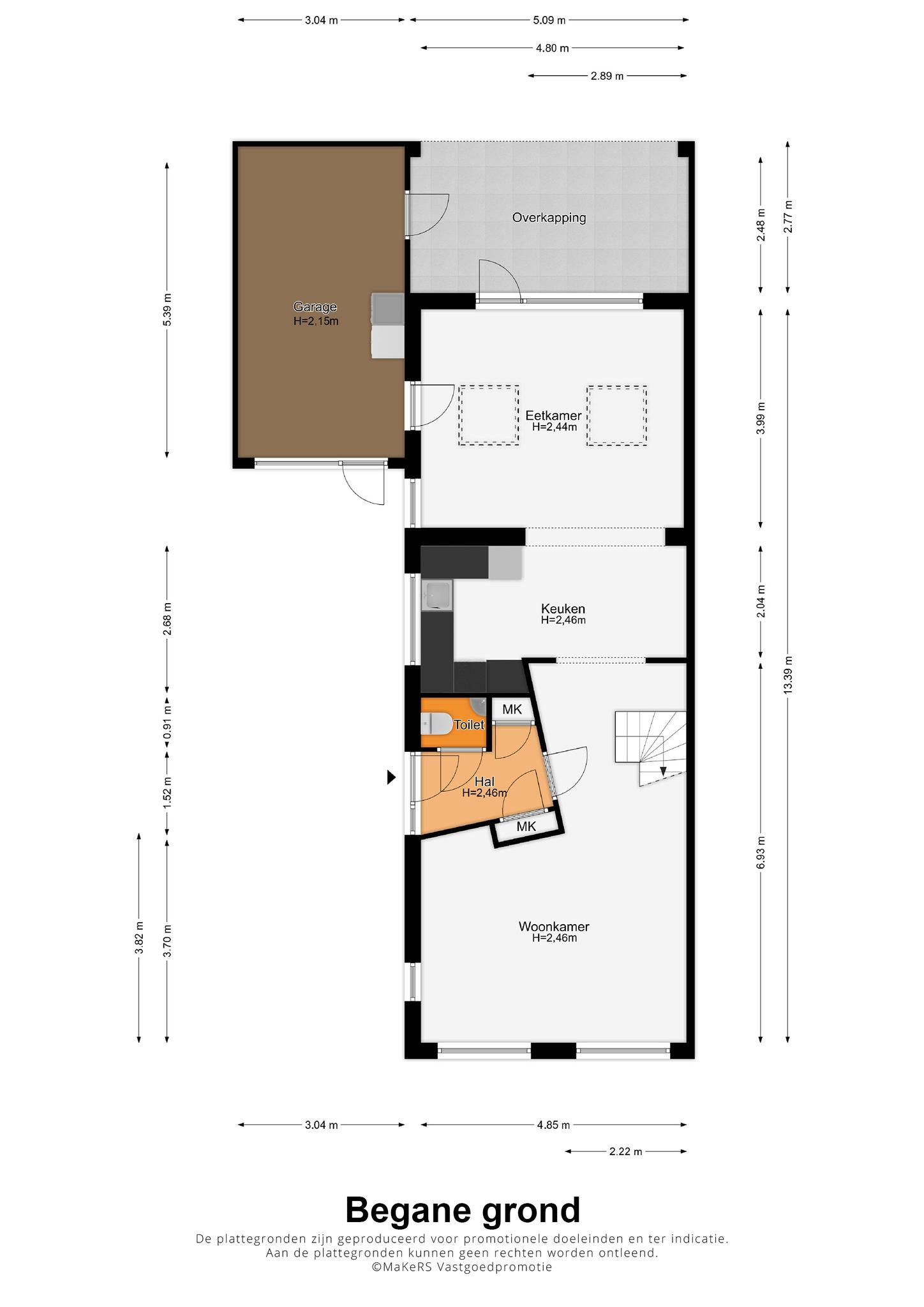
Begane grond:
Halverwege de oprit, waar meerdere auto’s kunnen staan, is de entree van deze ruime woning. De L-vormige hal biedt toegang tot de meterkast, toiletruimte en de woonkamer. Rechts van de toiletruimte is een nis, die als garderobe in gebruik is.
Niet alleen in de hal, maar ook in de woonkamer ligt een parketvloer. De L-vormige woonkamer (circa 26 m2) heeft een ruim zitgedeelte aan de voorzijde, met grote ramen aan de zuidkant en prachtig uitzicht naar het groen. In het andere stuk ziet u de open, hardhouten trapopgang en een brede doorgang naar de uitgebouwde keuken.
De keuken en aansluitende eetkamer vormen zijn in totaal circa 29 m2 groot, wat de benaming woonkeuken gerechtvaardigd maakt. Onder de antracietkleurige tegels ligt vloerwarming en twee lichtkoepels bij het eetgedeelte zorgen, samen met het raam tot vloerhoogte, voor veel lichtinval. In de keuken staat een U-opstelling met een gasfornuis, afzuigkap, vaatwasser, koelkast en een oven.
Bij het zitgedeelte ziet u een deur naar de garage (circa 5,68 x 3,09), voorzien van elektra. Komt u met de fiets thuis, dan zorgt de loopdeur ervoor dat niet de hele kantelpoort open hoeft. Ook is er een deur naar de achtertuin en op de vloer liggen plavuizen.
Blikvanger in de achtertuin is het overdekte terras van circa 5,09 x 2,77, voorzien van inbouwverlichting. De rest van de tuin is ingedeeld met een grasveld, een tweede terras met een goede zonligging en een houten berging (circa 2,72 x 1,75).
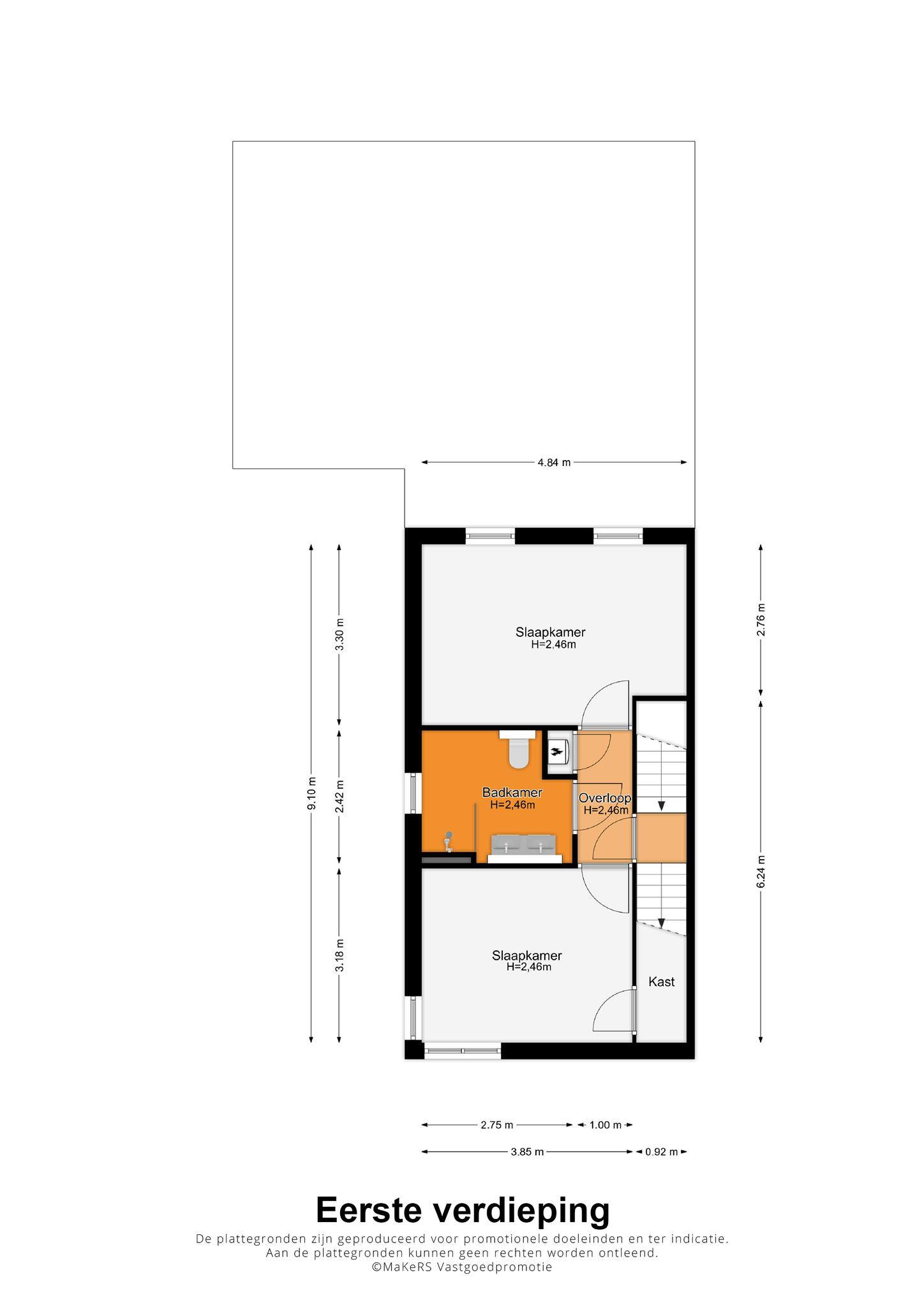
1e verdieping:
Op de eerste verdieping zijn twee slaapkamers en de badkamer. Slaapkamer I (circa 3,85 x 3,18) bevindt zich aan de voorzijde, met prachtig uitzicht naar het groen. Aan de achterzijde is slaapkamer II (circa 4,84 x 3,30/2,71) waar, net als op bijna de hele verdieping, een houten vloer ligt.
De moderne badkamer (circa 2,42 x 2,20) met zijraam is ingedeeld met een grote inloopdouche, dubbel wastafelmeubel, een brede spiegel met verlichting, een designradiator en een wandcloset.
2e verdieping:
Een vaste trap geeft toegang tot een portaal, met aansluitend slaapkamer III (circa 4,19 x 3,85). Ook in deze kamer ligt een houten vloer en het schuine plafond met hoge nok versterkt het gevoel van ruimte. Als dit een kinderkamer wordt, dan is de hoogte perfect voor een hoogslaper. In het schuine dakvlak is een praktische berging van ruim 1.40 meter diep.
Algemeen:
Bouwjaar: 1996
Woonoppervlakte: circa 131 m2, inhoud: circa 512 m3
Hardhouten kozijnen met isolatieglas
Verwarming en warm water via een HR-ketel (Nefit, ca. 2021, eigendom)
Drie ruime slaapkamers
Inpandige garage en een oprit voor twee auto’s
Prachtig uitzicht aan de voorzijde
Energielabel: C
Aanvaarding: In onderling overleg
Ter bescherming van de belangen van zowel koper als verkoper, wordt uitdrukkelijk gesteld dat een koopovereenkomst met betrekking tot deze onroerende zaak eerst dan tot stand komt nadat koper en verkoper de koopovereenkomst hebben getekend (“schriftelijkheidsvereiste”).
Indien er in de woning huurtoestellen aanwezig zijn zoals CV-ketel, boiler, zonnepanelen, mechanische ventilatie etc. dan dienen deze door de koper te worden overgenomen.
De termijn die wordt opgenomen voor eventuele (overeengekomen) ontbindende voorwaarden (bv. Financiering) is in de regel 4 tot 6 weken na het sluiten van de mondelinge wilsovereenkomst.
De waarborgsom/bankgarantie is 10% van de koopsom. De koper dient deze 3 dagen ná het vervallen van de ontbindende voorwaarden bij de desbetreffende notaris te deponeren.
Koper is te allen tijde gerechtigd voor eigen rekening een bouwkundige keuring te (laten) verrichten dan wel andere adviseurs te raadplegen teneinde een goed inzicht te verkrijgen over de staat van onderhoud.
Deze informatie is door ons, Tijs & Cyril Makelaardij met de nodige zorgvuldigheid samengesteld. Onzerzijds wordt echter geen enkele aansprakelijkheid aanvaard voor enige onvolledigheid, onjuist of anderszins, dan wel de gevolgen daarvan. Alle opgegeven maten en oppervlakten zijn indicatief. Van toepassing zijn de NVM voorwaarden.