Hoekwoning in Amby met 4 slaapkamers en een garage. Aan de Schovenlaan staat deze ruime hoekwoning met een garage en, heel belangrijk voor kinderen, 2 speelveldjes binnen handbereik. In totaal zijn er 4 slaapkamers en de badkamer met grote inloopdouche is in 2020 vernieuwd. De voortuin op het oosten en de achtertuin op het westen zijn aangelegd met veel groen, zonder dat u ‘groene vingers’ nodig heeft.
Hoekwoning in Amby met 4 slaapkamers en een garage. Aan de Schovenlaan staat deze ruime hoekwoning met een garage en, heel belangrijk voor kinderen, 2 speelveldjes binnen handbereik. In totaal zijn er 4 slaapkamers en de badkamer met grote inloopdouche is in 2020 vernieuwd. De voortuin op het oosten en de achtertuin op het westen zijn aangelegd met veel groen, zonder dat u ‘groene vingers’ nodig heeft.
Typering:
Alle voorzieningen voor jong en oud zijn in de nabijheid: kinderopvang, basisonderwijs, het United World College (UWC) en een winkelcentrum. Bus 6 zorgt voor een goede verbinding met het treinstation en het centrum. Bij het Geusseltpark zijn vele sportverenigingen en het Geusseltbad. Verder woont u op korte afstand van de uitvalswegen richting Eindhoven, Luik, Heerlen en het Heuvelland. Werkt u bij het MECC, de universiteit of het MUMC+? Dan kunt u met de fiets naar het werk!
Begane grond:
Via het brede pad in de voortuin loopt u naar de entree van deze hoekwoning. In de L-vormige hal zijn de meterkast, de hardhouten trapopgang en de toiletruimte met fonteintje. Er liggen plavuizen op de vloer en onder de trap is genoeg plek voor een kapstok.
In de aansluitende woonkamer (circa 36,9 m2) ligt een mooie laminaatvloer, die goed past bij de kleuren op de muren. Dankzij de oost-westligging valt er veel licht naar binnen, met name in de ochtend en aan het einde van de dag. Het zitgedeelte is aan de voorzijde, met uitzicht naar een groenstrook, en bij het eetgedeelte is een deur naar de tuin.
Een brede doorgang verbindt het eetgedeelte met de keuken (circa 3,45 x 2,17), waar een nette hoekopstelling staat. Deze keuken is in 2016 deels vernieuwd en is voorzien van een groot gasfornuis met oven, een afzuigkap, vaatwasser en een koel-/vriescombinatie. Erg handig is de bergkast, die als provisieruimte gebruikt kan worden.
Vanuit de woonkamer en keuken is de achtertuin te bereiken, die op het westen gesitueerd is. Hier ziet u bestrating, kunstgras, een hoge boom en lage beplanting. Het overdekte terras is een fijne plek om buiten te zitten en er staat een houten berging onder de boom.
Vanuit de tuin heeft u toegang tot de garage/berging (circa 6,06 x 3,16) voor de auto, (kinder)fietsen en/of andere spullen. Verder heeft de tuin een eigen achterom en een mooi aangelegde voortuin met veel groen.
Eerste verdieping:
De royale overloop geeft toegang tot twee slaapkamers en de badkamer. Slaapkamer I (circa 3,44 x 2,22) bevindt zich aan de voorzijde en slaapkamer II (circa 5,14 x 3,00) aan de achterzijde. In beide slaapkamers en op de overloop ligt laminaat op de vloer.
Naast slaapkamer II is de in 2020 vernieuwde badkamer (circa 2,98 x 1,77) met een grote inloopdouche, tweede toilet, handdoekenradiator en een houten meubel waarop een fraaie wastafel staat. Alles klopt aan de badkamer, van de douchewand tot de spiegel en de zwarte elementen.
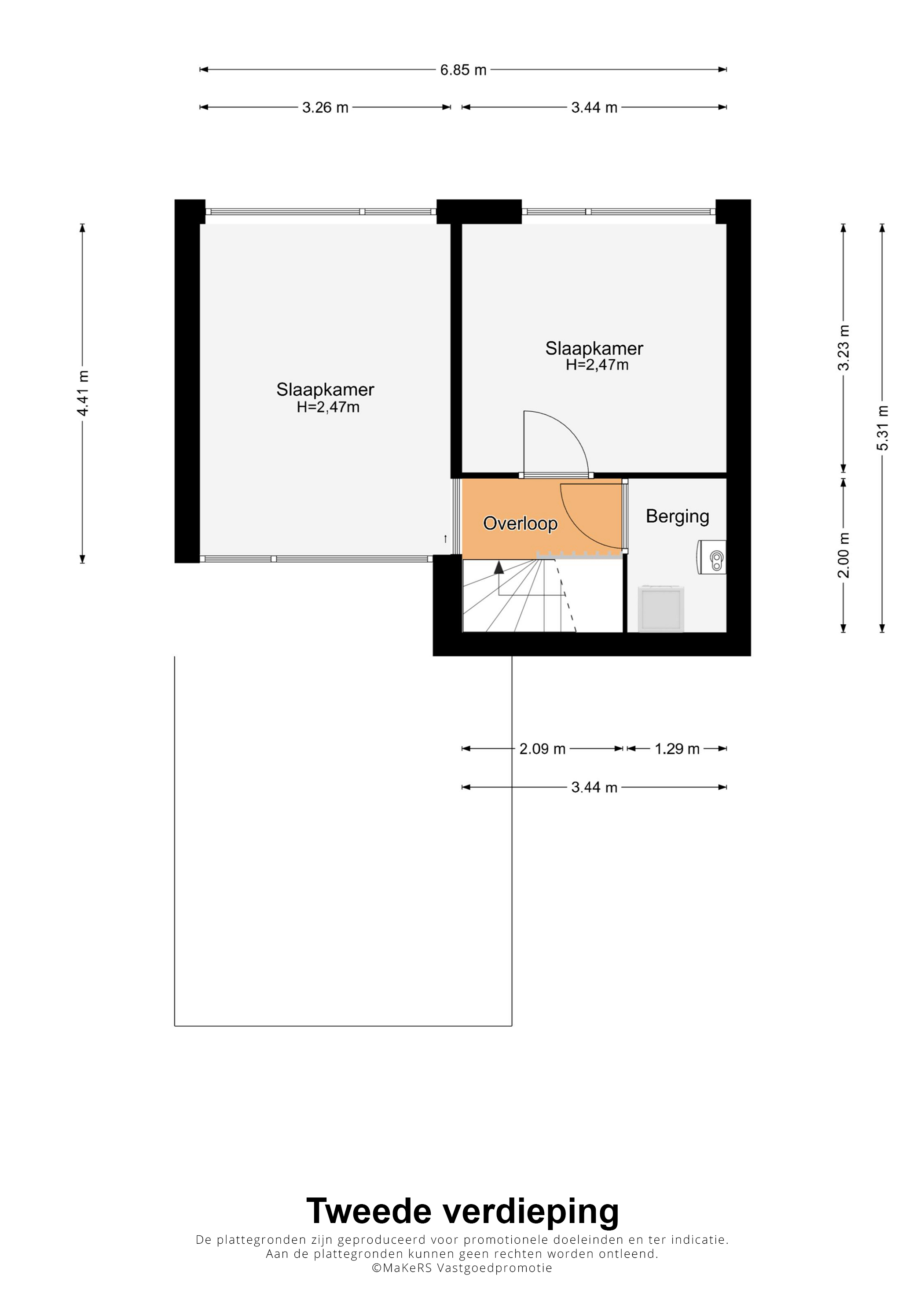
Tweede verdieping:
Op deze verdieping zijn nog twee slaapkamers, een overloop en een berging. In de berging (circa 2,00 x 1,29) is de opstelling van de HR-ketel (Vaillant, 2012, eigendom) en is genoeg plek om de wasmachine en droger neer te zetten. Slaapkamer III (circa 3,23 x 3,44) heeft lichtinval vanaf de westkant en slaapkamer IV (circa 4,30 x 3,26) is een fraaie kamer met grote ramen aan twee zijden. Met name het uitzicht aan de voorzijde is fraai!
Algemeen:
Bouwjaar: 1997, uitbouw in 2006
Gebruiksoppervlakte wonen: circa 126 m2, inhoud circa 438 m3
Perceeloppervlakte: 210 m2
Verwarming en warm water via een HR-ketel (AWB, 2012, eigendom)
Hardhouten kozijnen met isolatieglas
3 zonnepanelen op het platte dak
Energielabel: B
Aanvaarding: in onderling overleg
In de Gemeente Maastricht geldt vanaf 1 oktober 2022 een Huisvestingsverordening - opkoopbescherming voor woningen (dit kan bij deze woning van toepassing zijn).
Ter bescherming van de belangen van zowel koper als verkoper, wordt uitdrukkelijk gesteld dat een koopovereenkomst met betrekking tot deze onroerende zaak eerst dan tot stand komt nadat koper en verkoper de koopovereenkomst hebben getekend (“schriftelijkheidsvereiste”).
Indien er in de woning huurtoestellen aanwezig zijn zoals CV-ketel, boiler, zonnepanelen, mechanische ventilatie etc. dan dienen deze door de koper te worden overgenomen.
De termijn die wordt opgenomen voor eventuele (overeengekomen) ontbindende voorwaarden (bv. Financiering) is in de regel 4 tot 6 weken na het sluiten van de mondelinge wilsovereenkomst.
De waarborgsom/bankgarantie is 10% van de koopsom. De koper dient deze 3 dagen ná het vervallen van de ontbindende voorwaarden bij de desbetreffende notaris te deponeren.
Koper is te allen tijde gerechtigd voor eigen rekening een bouwkundige keuring te (laten) verrichten dan wel andere adviseurs te raadplegen teneinde een goed inzicht te verkrijgen over de staat van onderhoud.
Deze informatie is door ons, Tijs & Cyril Makelaardij met de nodige zorgvuldigheid samengesteld. Onzerzijds wordt echter geen enkele aansprakelijkheid aanvaard voor enige onvolledigheid, onjuist of anderszins, dan wel de gevolgen daarvan. Alle opgegeven maten en oppervlakten zijn indicatief. Van toepassing zijn de NVM voorwaarden.