Stijlvolle stadsvilla met 5 slaapkamers en 2 badkamers. Aan de oostkant van Maastricht, in de populaire woonwijk Vroendaal, staat deze instapklare geschakelde stadsvilla met een luxe keuken, ruime woonkamer en een zeer ruime tuin op het westen. Uw auto kan niet alleen op de oprit staan, maar ook in de ruime garage die tevens ruimte biedt aan de (kinder)fietsen. Op het platte dak zijn 18 zonnepanelen geplaatst wat, samen met de isolatie en HR++ glas, voor een duurzame woning met energielabel A zorgt.
Stijlvolle stadsvilla met 5 slaapkamers en 2 badkamers. Aan de oostkant van Maastricht, in de populaire woonwijk Vroendaal, staat deze instapklare geschakelde stadsvilla met een luxe keuken, ruime woonkamer en een zeer ruime tuin op het westen. Uw auto kan niet alleen op de oprit staan, maar ook in de ruime garage die tevens ruimte biedt aan de (kinder)fietsen. Op het platte dak zijn 18 zonnepanelen geplaatst wat, samen met de isolatie en HR++ glas, voor een duurzame woning met energielabel A zorgt.
Typering:
De wijk “Vroendaal” heeft een uitstekende ligging aan de stadsrand van Maastricht, op loopafstand van het Savelsbos. De supermarkt, een basisschool, het Porta Mosana College en de bushalte zijn in de nabijheid, net als Ruitersportcentrum ’t Vroendael. Diverse faculteiten van de universiteit, het academisch ziekenhuis, treinstation Randwyck en winkelcentrum De Leim zijn op fietsafstand. Met de auto heeft u een goede aansluiting op de N278 en de A2/A76 richting Luik, Eindhoven en Heerlen.
Begane grond:
Bij de carport met inbouwverlichting is de entree van deze fraaie stadsvilla. In de hal met vide ziet u de bordestrap en drie grote ramen in de voorgevel, die voor veel lichtinval zorgen. Naast de meterkast en de ruime toiletruimte, ingedeeld met een wandcloset en een fonteintje.
De houten vloer ligt niet alleen in de hal, maar ook in de woonkamer en keuken. In de ruim 10 meter lange woonkamer zorgen grote ramen aan de oost- en westkant voor veel lichtinval. De oppervlakte, inclusief keuken, is circa 57 m2. Het zitgedeelte is aan de voorzijde, met uitzicht naar de rustige straat. Aan de achterzijde, bij de schuifpui, is ruimte voor een grote eettafel.
Vanuit de woonkamer kunt u de moderne, luxe keuken uit 2021 al zien. De witte hoekopstelling en de donkerbruine kastenwand bieden een grote hoeveelheid bergruimte en alle benodigde apparatuur (merendeels Miele) is ingebouwd: een inductie kookplaat, afzuigkap, combi-oven, stoomoven, vaatwasser, koelkast en een koffiemachine.
Een inpandige berging (circa 2,00 x 1,96) verbindt de woonkamer met de garage (circa 7,66 x 3,68). Een brede, antracietkleurige sectionaalpoort verbindt de garage met de oprit en aan de achterzijde bieden dubbele deuren toegang tot de tuin.
Zowel de voor- als achtertuin zijn onderhoudsvriendelijk aangelegd, met grind en sierbestrating. De circa 9.50 meter brede achtertuin, gesitueerd op het zonnige westen, biedt ruimte aan een tafel met stoelen en een loungeset. En komen er kinderen wonen? Voor een speeltoestel is ook nog genoeg plek in deze tuin.
Eerste verdieping:
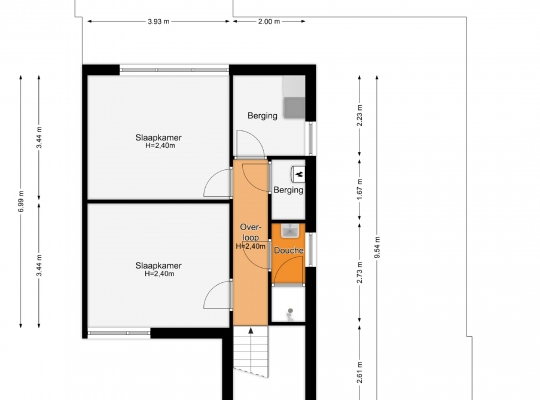
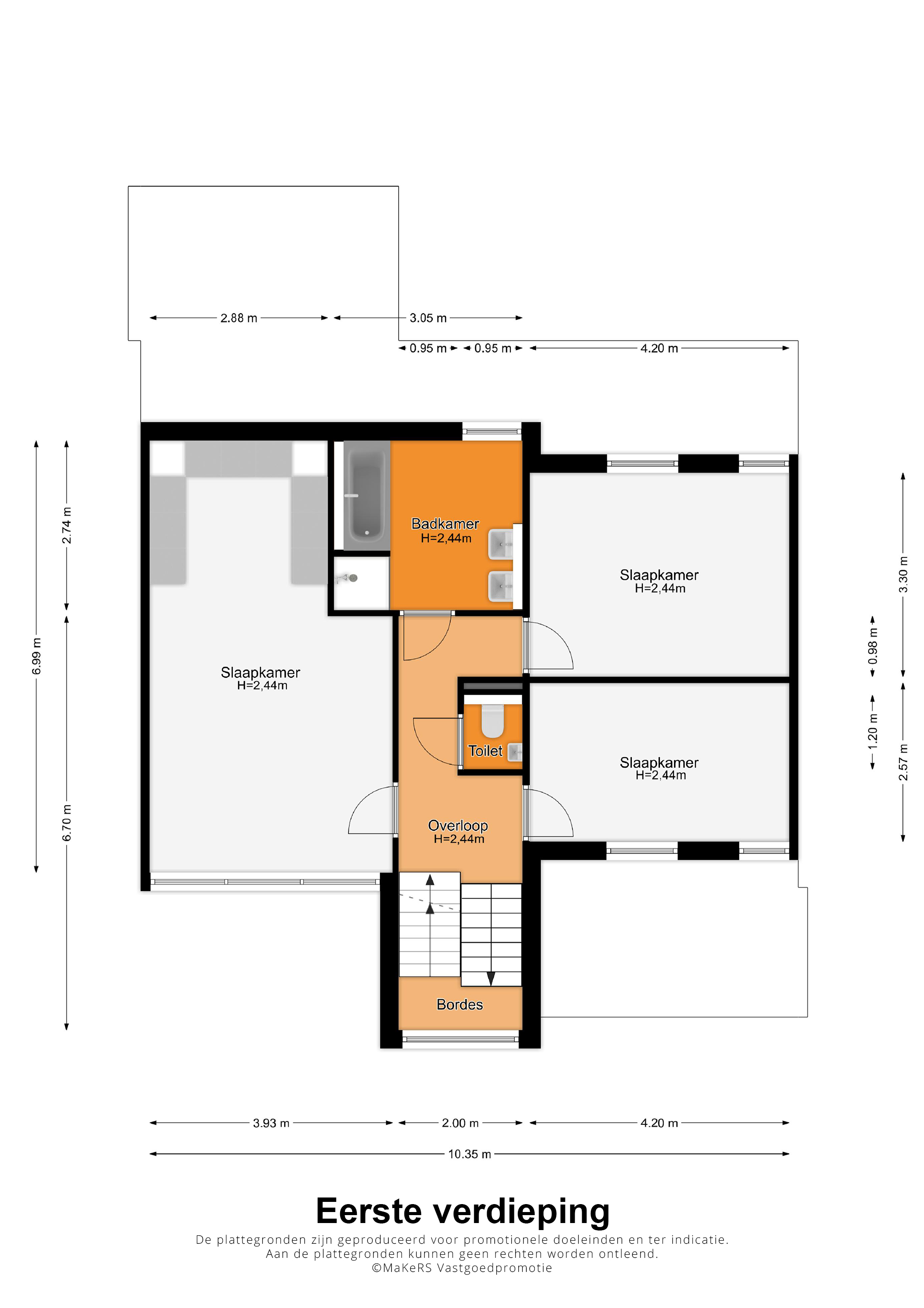
Volg de prachtige bordestrap naar de overloop waaraan drie slaapkamers, de badkamer en een separaat toilet grenzen. Op bijna de hele verdieping ligt laminaat en de overloop is, net als de trap, heel licht dankzij de grote ramen aan de voorzijde.
Slaapkamer I (circa 24.6 m2) met kleedruimte is een fantastische master bedroom van groot formaat, met een maatwerk kastenwand in een U-vorm. Aan de andere zijde van de overloop zijn slaapkamer II (circa 4,20 x 2,57) en slaapkamer III (circa 4,20 x 3,30).
De badkamer (circa 3,05 x 2,74) is ingedeeld met een ligbad, separate douche, grote designradiator en twee wastafels met ronde spiegels, ook is de badkamer geheel voorzien van vloerverwarming. Bij het raam hangt een handige badkamerkast en de muren zijn, net als de vloer, geheel betegeld.
Tweede verdieping:
De bordestrap gaat verder naar de tweede verdieping waar nog twee slaapkamers, een badkamer, cv-ruimte en een berging zijn. Ook op deze verdieping ligt laminaat op de vloer en het geheel maakt een zeer goede indruk. In de berging (circa 2,33 x 2,00) is de opstelling van de wasmachine en droger. De cv-ruimte (circa 1,67 x 0,93) biedt ruimte aan de HR-ketel (Bosch, huur). Achter een van de andere deuren is badkamer II (circa 2,73 x 0,93) met een douche en wastafel.
Slaapkamer IV (circa 3,93 x 3,44), ingericht als werk-/studeerkamer, bevindt zich aan de achterzijde. Vanuit slaapkamer V (circa 3,93 x 3,44), gesitueerd aan de voorzijde, kijkt u naar de rustige straat met mooie bomen.
Algemeen:
Bouwjaar: 2003
Woonoppervlakte: circa 178 m2, inhoud: circa 735 m3
Parkeergelegenheid op eigen terrein (oprit en garage)
Verwarming en warm water via een HR-ketel (Bosch, huur)
Hardhouten kozijnen met HR++ glas
Binnen- en buitenschilderwerk is uitgevoerd in 2019-2020
18 zonnepanelen van 300 Wp, geplaatst in 2018
Meterkast met 3-fase aansluiting
Vijf slaapkamers en twee badkamers
Ruime, onderhoudsvriendelijke tuin op het westen
Woning is volledig voorzien van rolluiken, waarvan het merendeel elektrisch
Energielabel: A
Aanvaarding: in onderling overleg
In de Gemeente Maastricht geldt vanaf 1 oktober 2022 een Huisvestingsverordening - opkoopbescherming voor woningen (https://www.gemeentemaastricht.nl/wonen-en-verhuizen/opkoopbescherming-voor-woningen). Dit kan bij deze woning van toepassing zijn!
Ter bescherming van de belangen van zowel koper als verkoper, wordt uitdrukkelijk gesteld dat een koopovereenkomst met betrekking tot deze onroerende zaak eerst dan tot stand komt nadat koper en verkoper de koopovereenkomst hebben getekend (“schriftelijkheidsvereiste”).
Indien er in de woning huurtoestellen aanwezig zijn zoals CV-ketel, boiler, zonnepanelen, mechanische ventilatie etc. dan dienen deze door de koper te worden overgenomen.
De termijn die wordt opgenomen voor eventuele (overeengekomen) ontbindende voorwaarden (bv. Financiering) is in de regel 4 tot 6 weken na het sluiten van de mondelinge wilsovereenkomst.
De waarborgsom/bankgarantie is 10% van de koopsom. De koper dient deze 3 dagen ná het vervallen van de ontbindende voorwaarden bij de desbetreffende notaris te deponeren.
Koper is te allen tijde gerechtigd voor eigen rekening een bouwkundige keuring te (laten) verrichten dan wel andere adviseurs te raadplegen teneinde een goed inzicht te verkrijgen over de staat van onderhoud.
Deze informatie is door ons, Tijs & Cyril Makelaardij met de nodige zorgvuldigheid samengesteld. Onzerzijds wordt echter geen enkele aansprakelijkheid aanvaard voor enige onvolledigheid, onjuist of anderszins, dan wel de gevolgen daarvan. Alle opgegeven maten en oppervlakten zijn indicatief. Van toepassing zijn de NVM voorwaarden.