Met een balkon op het zuiden, 2 slaapkamers en een ruime woonkamer met open keuken is dit appartement een heerlijke plek om te gaan wonen! De ligging op de 2e verdieping is fraai, zeker omdat u vanwege de lift in het gebouw geen trappen hoeft te lopen. Het appartement heeft niet alleen een inpandige berging, maar ook een berging in het souterrain. Nog een voordeel: als bewoner kunt u hier gratis en zonder vergunning parkeren!
Met een balkon op het zuiden, 2 slaapkamers en een ruime woonkamer met open keuken is dit appartement een heerlijke plek om te gaan wonen! De ligging op de 2e verdieping is fraai, zeker omdat u vanwege de lift in het gebouw geen trappen hoeft te lopen. Het appartement heeft niet alleen een inpandige berging, maar ook een berging in het souterrain. Nog een voordeel: als bewoner kunt u hier gratis en zonder vergunning parkeren!
Gelijkvloers appartement met een zonnig balkon aan de rand van Campagne. Met een balkon op het zuiden, 2 slaapkamers en een ruime woonkamer met open keuken is dit appartement een heerlijke plek om te gaan wonen! De ligging op de 2e verdieping is fraai, zeker omdat u vanwege de lift in het gebouw geen trappen hoeft te lopen. Het appartement heeft niet alleen een inpandige berging, maar ook een berging in het souterrain. Nog een voordeel: als bewoner kunt u hier gratis en zonder vergunning parkeren!
Typering:
De ligging aan de rand van Campagne, en op loopafstand van natuurgebied Jekerdal maakt het wonen aan de Sauterneslaan heel aantrekkelijk. Met de fiets is het nog geen 2,5 kilometer naar het Vrijthof en de bushalte, richting het centrum en treinstation, bevindt zich op loopafstand. Ook voorzieningen als een basisschool, supermarkten en een sportschool zijn binnen handbereik.
Souterrain:
In het souterrain bevinden zich de gemeenschappelijke fietsenstalling en de privébergingen. Bij dit appartement hoort eveneens een privé-berging.
Begane grond:
Vanaf het parkeerterrein loopt u naar de entree van huisnummer 1A t/m 7H. Hier zijn de brievenbussen, het bellentableau en de intercom. In de aansluitende hal zijn het trappenhuis, de lift en het kantoor van de huismeester. Naast de lift hangt een bord, waarop u kunt zien dat dit appartement op de tweede verdieping is. Gaat u met de trap of lift?
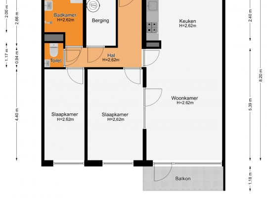
Appartement:
Via de brede, gezamenlijke gang loopt u naar de voordeur van huisnummer 5c. Eenmaal binnen staat u in een royale, L-vormige hal die toegang biedt tot alle ruimtes van het appartement. Een van deze ruimte is de inpandige berging (circa 2,66 x 1,43), met de boiler en de mogelijkheid om een (stelling)kast neer te zetten. Ook de stofzuiger, het wasrek en andere spullen kunnen hier staan.
De woonkamer met open keuken (circa 8,20 x 3,67) is een fijne en lichte leefruimte, die toegang biedt tot het balkon. Voor een hoekbank, tv-meubel, uw favoriete kast en de eettafel is genoeg plek. In de keuken staat een lichte wandopstelling met een gaskookplaat en een afzuigkap.
Naast de woonkamer is slaapkamer I (circa 4,40 x 2,67), die ook vanuit de hal te bereiken is. Naast deze kamer is slaapkamer II (circa 4,40 x 1,94) die als kinderkamer, werkkamer of kleedruimte gebruikt kan worden. Met een vloerafwerking en schilderwerk zijn beide kamers al snel klaar om in te richten.
De badkamer (circa 2,66/2,00 x 1,86) is ingedeeld met een douche, wastafelmeubel en de wasmachineaansluiting. Naast de badkamer is de toiletruimte met fonteintje, uitgevoerd in dezelfde stijl.
Het balkon (circa 3,67 x 1,18), te bereiken vanuit de woonkamer, heeft een gunstige ligging op het zuidwesten. Perfect om in de middag- en avondzon te zitten, met uitzicht naar het rustige parkeerterrein en de bomen langs de Tongerseweg.
Algemeen:
Bouwjaar: 1979
Gebruiksoppervlakte wonen: circa 70 m2, inhoud circa 225 m3
Hardhouten kozijnen met dubbel glas
Verwarming middels blokverwarming
Gelijkvloers wonen dankzij de lift in het gebouw
Twee slaapkamers
Balkon op het zuidwesten
VvE bijdrage € 216,09 per maand
Voorschot stookkosten € 172,42 per maand
Energielabel: A
Projectnotaris: Wyck Notarissen te Maastricht
Aanvaarding: in overleg
In de Gemeente Maastricht geldt vanaf 1 oktober 2022 een Huisvestingsverordening - opkoopbescherming voor woningen (dit kan bij deze woning van toepassing zijn).
Ter bescherming van de belangen van zowel koper als verkoper, wordt uitdrukkelijk gesteld dat een koopovereenkomst met betrekking tot deze onroerende zaak eerst dan tot stand komt nadat koper en verkoper de koopovereenkomst hebben getekend (“schriftelijkheidsvereiste”).
Indien er in de woning huurtoestellen aanwezig zijn zoals CV-ketel, boiler, zonnepanelen, mechanische ventilatie etc. dan dienen deze door de koper te worden overgenomen.
De termijn die wordt opgenomen voor eventuele (overeengekomen) ontbindende voorwaarden (bv. Financiering) is in de regel 4 tot 6 weken na het sluiten van de mondelinge wilsovereenkomst.
De waarborgsom/bankgarantie is 10% van de koopsom. De koper dient deze 3 dagen ná het vervallen van de ontbindende voorwaarden bij de desbetreffende notaris te deponeren.
Koper is te allen tijde gerechtigd voor eigen rekening een bouwkundige keuring te (laten) verrichten dan wel andere adviseurs te raadplegen teneinde een goed inzicht te verkrijgen over de staat van onderhoud.
Deze informatie is door ons, Tijs & Cyril Makelaardij met de nodige zorgvuldigheid samengesteld. Onzerzijds wordt echter geen enkele aansprakelijkheid aanvaard voor enige onvolledigheid, onjuist of anderszins, dan wel de gevolgen daarvan. Alle opgegeven maten en oppervlakten zijn indicatief. Van toepassing zijn de NVM voorwaarden.