Vraagprijs € 389.000,- k.k.
Uitgebouwde tweekapper met garage en 4 slaapkamers, waarvan 1 de zolder, in Heer. Misschien klinkt de straatnaam Rijproost niet bekend. Dat kan, want er staan maar een paar woningen in deze rustige straat in Heer. Op deze plek staat deze uitgebouwde 2-onder-1 kapwoning met een garage, oprit, 4 slaapkamers en een tuin op het zonnige zuiden. De woonkamer en tuinkamer zijn in totaal circa 40 m2.
Uitgebouwde tweekapper met garage en 4 slaapkamers, waarvan 1 de zolder, in Heer. Misschien klinkt de straatnaam Rijproost niet bekend. Dat kan, want er staan maar een paar woningen in deze rustige straat in Heer. Op deze plek staat deze uitgebouwde 2-onder-1 kapwoning met een garage, oprit, 4 slaapkamers en een tuin op het zonnige zuiden. De woonkamer en tuinkamer zijn in totaal circa 40 m2.
Typering:
Heer is al vele jaren een geliefde plek om te wonen, mede vanwege de ligging tussen de dynamische binnenstad en het prachtige Heuvelland. Verder woont u in de nabijheid van het MUMC+, het MECC en vele (internationale) bedrijven. Basis-, middelbaar- en internationaal onderwijs zijn binnen handbereik, net als supermarkten en andere voorzieningen. Er zijn goede verbindingen met uitvalswegen en de snelwegen A2/A79.
Indeling:
Souterrain:
Onder de hal is een souterrain annex kelder (circa 3,93 x 1,95) met een hoogte van circa 1,96 meter. Deze ruimte is onder andere geschikt als wijnkelder en provisieruimte.
Begane grond:
Bij de overdekte entree is een hardhouten voordeur, die toegang geeft tot de hal (circa 3,93 x 1,04). Links in de hal zijn de toiletruimte, de trap naar de eerste verdieping en de trap naar het souterrain. De lichte tegelvloer met donkere rand ligt ook in de keuken, serre en de bijkeuken.
Eerst gaan we naar de woonkamer (circa 7,03 x 3,78), met veel lichtinval en sfeer. Deze fraaie ruimte, met een parketvloer, kan geheel als zitkamer worden ingedeeld. De aangebouwde tuinkamer (circa 5,41 x 2,36) is ingedeeld met een leuke zithoek en het eetgedeelte, beiden met veel lichtinval en uitzicht op de tuin.
In de keuken staat een moderne, lichte wandopstelling met een granieten aanrechtblad en hoge bovenkasten. Deze fraaie keuken heeft een ingebouwde gaskookplaat, afzuigkap, oven, vaatwasser en een koelkast. Aan de andere kant van de tuinkamer is een bijkeuken (circa 2,26 x 2,36), met toegang tot de tuin en de garage.
Zoekt u een woning met een garage? Dan is dit het perfecte huis voor u! De garage van deze woning (circa 7,03 x 2,58) heeft een elektrisch bedienbare sectionaalpoort naar de oprit, is voorzien van verwarming en er is plek voor de wasapparatuur. Gezien de grootte van de garage is het mogelijk om een auto, motor en/of de fietsen binnen te zetten.
De voortuin met grind en beplanting heeft weinig onderhoud nodig. Het pad is zo aangelegd dat er geen treden naar de voordeur zijn. Op de oprit is genoeg plek om een grote auto neer te zetten. Rechts van de oprit is een pad met een eigen, afsluitbare achterom. De achtertuin, gesitueerd op het zuiden, heeft de vorm van een driehoek. In het achterste deel staat een ruime (fietsen)berging.
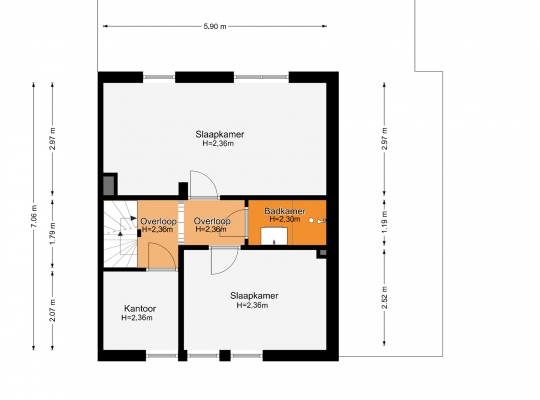
Eerste verdieping:
Vanaf de overloop is er toegang tot drie (voorheen vier) slaapkamers. Aan de achterzijde zijn twee kamers samengevoegd tot slaapkamer I (circa 5,90 x 2,97), in gebruik als master bedroom. Slaapkamer II (circa 3,76 x 2,52) is in gebruik als kinderkamer en slaapkamer III (circa 2,07 x 1,98) als werkkamer.
De badkamer (circa 2,06 x 1,19) is ingedeeld met een inloopdouche, een badmeubel met wastafel en een tweedeurs spiegelkast. Goede verlichting, de glazen douchedeur en de witte wandtegels maken de badkamer heel ruimtelijk.
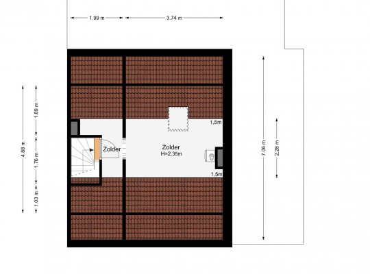
Tweede verdieping:
Er is een vaste trap naar de tweede verdieping, met een nokhoogte van circa 2,35 meter en zichtbare isolatieplaten op het schuine dak. Op deze verdieping zijn een overloop/bergzolder en slaapkamer IV (circa 4,88 x 3,74) met een groot dakraam.
Algemeen:
Bouwjaar: 1947
Perceeloppervlakte: 212 m2
Gebruiksoppervlakte wonen: circa 120 m2, inhoud: circa 528 m3
Verwarming en warm water via een HR-ketel (Remeha, 2011, eigendom)
Hardhouten kozijnen met isolatieglas en rolluiken
8 zonnepanelen van 395 Wp, geplaatst in 2022
Airco-unit in de serre en de master bedroom (koelen en verwarmen, eigendom)
Parkeergelegenheid op eigen terrein (verwarmde garage/berging en een oprit)
Energielabel: C
Asbest: niet bekend
Aanvaarding: 1 juni 2026
In de Gemeente Maastricht geldt vanaf 1 oktober 2022 een Huisvestingsverordening - opkoopbescherming voor woningen (https://www.gemeentemaastricht.nl/wonen-en-verhuizen/opkoopbescherming-voor-woningen).
Ter bescherming van de belangen van zowel koper als verkoper, wordt uitdrukkelijk gesteld dat een koopovereenkomst met betrekking tot deze onroerende zaak eerst dan tot stand komt nadat koper en verkoper de koopovereenkomst hebben getekend (“schriftelijkheidsvereiste”).
De termijn die wordt opgenomen voor eventuele (overeengekomen) ontbindende voorwaarden (bv. Financiering) is in de regel 4 tot 6 weken na het sluiten van de mondelinge wilsovereenkomst.
De waarborgsom/bankgarantie is 10% van de koopsom. De koper dient deze 3 dagen ná het vervallen van de ontbindende voorwaarden bij de desbetreffende notaris te deponeren. Koper is te allen tijde gerechtigd voor eigen rekening een bouwkundige keuring te (laten) verrichten dan wel andere adviseurs te raadplegen teneinde een goed inzicht te verkrijgen over de staat van onderhoud.
Deze informatie is door ons Tijs & Cyril Makelaardij met de nodige zorgvuldigheid samengesteld.
Onzerzijds wordt echter geen enkele aansprakelijkheid aanvaard voor enige onvolledigheid, onjuist of anderszins, dan wel de gevolgen daarvan. Alle opgegeven maten en oppervlakten zijn indicatief. Van toepassing zijn de NVM voorwaarden.