Vraagprijs € 249.000,- k.k.
Een fraai startersappartement of pied-à-terre Wyck. Omringd door monumenten, in het mooie Wyck, biedt dit speels ingedeelde appartement een heerlijke plek om in het bourgondische Maastricht te wonen. Het appartement, op de tweede en derde verdieping, heeft een oppervlakte van 34,3 m2. Geniet van de sfeer, lichtinval en de sfeer van Wyck die aan uw voeten ligt. Er zijn geen bovenburen, waardoor u heel rustig woont.
Een fraai startersappartement of pied-à-terre Wyck. Omringd door monumenten, in het mooie Wyck, biedt dit speels ingedeelde appartement een heerlijke plek om in het bourgondische Maastricht te wonen. Het appartement, op de tweede en derde verdieping, heeft een oppervlakte van 34,3 m2. Geniet van de sfeer, lichtinval en de sfeer van Wyck die aan uw voeten ligt. Er zijn geen bovenburen, waardoor u heel rustig woont.
Typering:
Wyck bestond in de middeleeuwen uit twee hoofdstraten, de Rechtstraat en de Hoogbrugstraat. De Rechtstraat werd destijds aangeduid als platea recta (Latijn voor "rechte" of "langgerekte straat"). U woont op een prachtige plek in Maastricht, boordevol historie en met alle benodigde voorzieningen op loopafstand. Er zijn vele restaurants, speciaalzaken en winkels in Wyck en via de Sint Servaasbrug loopt u zo de binnenstad in. Verder woont u in de nabijheid van het trein-/busstation, het MUMC+ en diverse faculteiten van de universiteit.
Begane grond:
Aan de Rechtstraat is de gezamenlijke entree van de bovengelegen appartementen. Hier ziet u de intercom, waardoor u vanuit het appartement kunt horen wie bij u aanbelt. Via het trappenhuis, bekleed met zacht tapijt, gaat u naar de tweede verdieping.
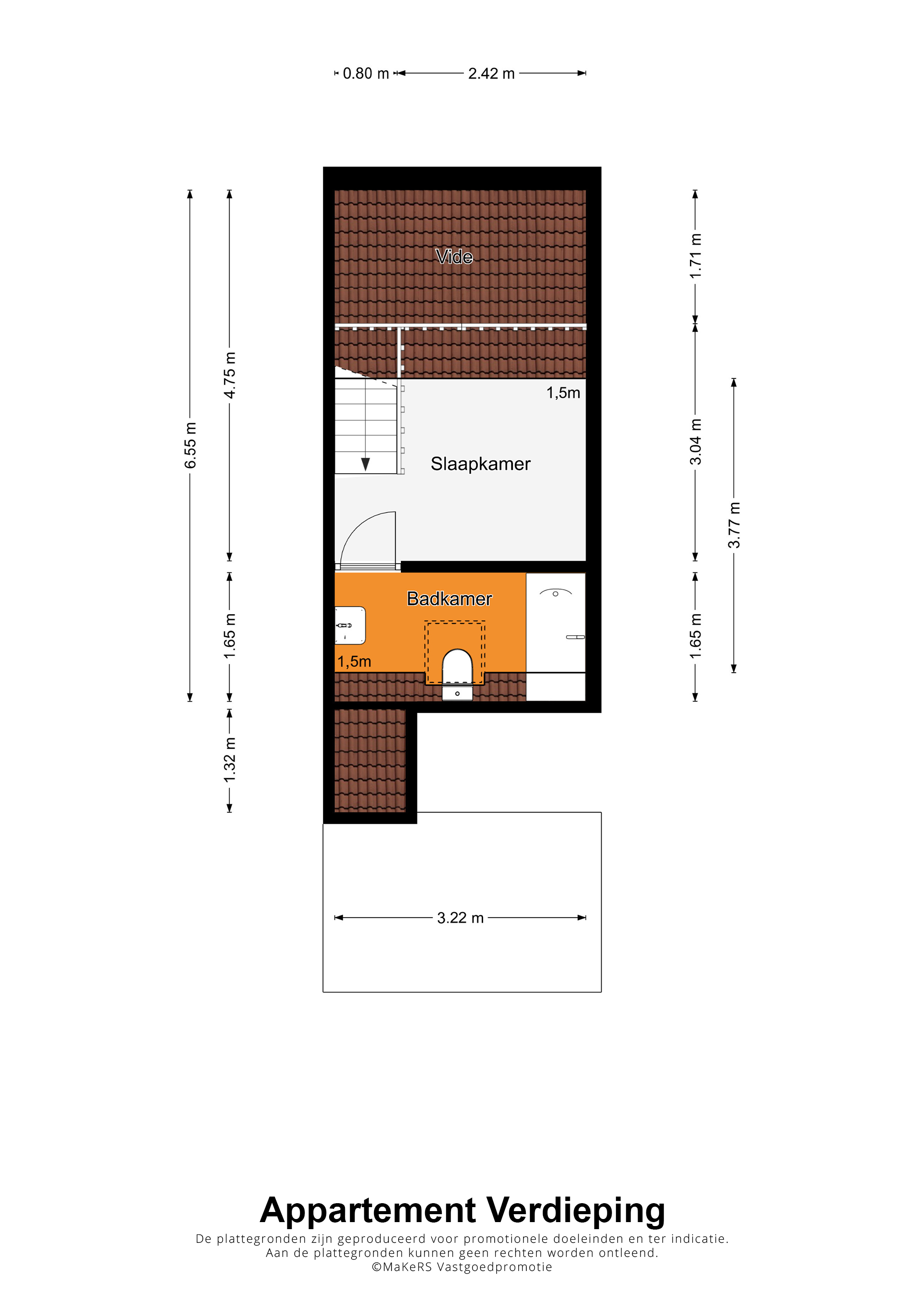
Appartement:
Links van de trap is de voordeur van het appartement. Achter deze deur is de lichte woonkamer van circa 18,5 m2, met twee grote ramen aan de kant van de Rechtstraat. De ligging op het oosten, met zon vanaf de ochtend, zorgt voor een goed begin van de dag. Voor een bank, tv-meubel en een eettafel is genoeg plek in deze sfeervolle ruimte.
In de keuken (circa 3,19 x 1,44), met een dakkapel aan de westkant, staat een zwarte hoekopstelling met een inductie kookplaat, afzuigkap, combimagnetron, koelkast en een vaatwasser.
Via de trap in de woonkamer zijn de slaapkamer en badkamer te bereiken. De slaapkamer (circa 3,22 x 3,04) is goed in te delen met een tweepersoonsbed en een garderobekast. In de badkamer (circa 3,22 x 1,65) is de ruimte ingedeeld met een ligbad/douche, toilet, designradiator en een wastafel. Witte wandtegels en het grote dakraam maken de badkamer optisch groter.
Algemeen:
Bouwjaar: 1770
Gebruiksoppervlakte wonen: circa 34 m2, inhoud circa 126 m3
Houten kozijnen met HR-glas
VvE bijdrage in oprichting
Energielabel: vrijstelling i.v.m. monumentale status
Aanvaarding: in onderling overleg
In de Gemeente Maastricht geldt vanaf 1 oktober 2022 een Huisvestingsverordening - opkoopbescherming voor woningen.
Ter bescherming van de belangen van zowel koper als verkoper, wordt uitdrukkelijk gesteld dat een koopovereenkomst met betrekking tot deze onroerende zaak eerst dan tot stand komt nadat koper en verkoper de koopovereenkomst hebben getekend (“schriftelijkheidsvereiste”).
Indien er in de woning huurtoestellen aanwezig zijn zoals CV-ketel, boiler, zonnepanelen, mechanische ventilatie etc. dan dienen deze door de koper te worden overgenomen.
De termijn die wordt opgenomen voor eventuele (overeengekomen) ontbindende voorwaarden (bv. Financiering) is in de regel 4 tot 6 weken na het sluiten van de mondelinge wilsovereenkomst.
De waarborgsom/bankgarantie is 10% van de koopsom. De koper dient deze 3 dagen ná het vervallen van de ontbindende voorwaarden bij de desbetreffende notaris te deponeren.
Koper is te allen tijde gerechtigd voor eigen rekening een bouwkundige keuring te (laten) verrichten dan wel andere adviseurs te raadplegen teneinde een goed inzicht te verkrijgen over de staat van onderhoud.
Deze informatie is door ons, Tijs & Cyril Makelaardij met de nodige zorgvuldigheid samengesteld. Onzerzijds wordt echter geen enkele aansprakelijkheid aanvaard voor enige onvolledigheid, onjuist of anderszins, dan wel de gevolgen daarvan. Alle opgegeven maten en oppervlakten zijn indicatief. Van toepassing zijn de NVM voorwaarden.