Vraagprijs € 429.000,- k.k.
In de Professorenbuurt, een buurt in Wyckerpoort, staat deze fraaie jaren ’30 woning met een patio, voortuin en drie royale slaapkamers. Dit goed onderhouden woonhuis is het toonbeeld van karakter en sfeer, zowel aan de binnen- als buitenzijde. De opvallende indeling zorgt voor een bijzondere beleving, merendeels gericht op de voorzijde van dit juweeltje.
In de Professorenbuurt, een buurt in Wyckerpoort, staat deze fraaie jaren ’30 woning met een patio, voortuin en drie royale slaapkamers. Dit goed onderhouden woonhuis is het toonbeeld van karakter en sfeer, zowel aan de binnen- als buitenzijde. De opvallende indeling zorgt voor een bijzondere beleving, merendeels gericht op de voorzijde van dit juweeltje.
Typering:
Welkom in deze populaire wijk, tussen het NS-station en De Groene Loper. Winkels, supermarkten, (afhaal)restaurants, Wyck en het bruisende stadscentrum liggen aan uw voeten. Werkt u buiten Maastricht, dan is de ligging ten opzichte van de bus en trein een pluspunt. Via de Meerssenerweg is er een goede autoverbinding met de Noorderbrug en De Geusselt, waar u zo de A2 en A79 bereikt.
Souterrain:
Achter een van de paneeldeuren in de hal is een trap naar het souterrain, Hier bevindt zich een kelderruimte (circa 3,65 x 1,93), onder andere geschikt als provisieruimte en wijnkelder. De hoogte van deze ruimte bedraagt circa 1,83 meter.
Begane grond:
In de hal valt uw oog niet alleen op de paneeldeuren, maar ook op de fraaie trap en het meer dan 2.70 meter hoge plafond. Vanaf hier heeft u toegang tot de woonkamer, eetkamer, keuken en de toiletruimte met wandcloset.
Aan de achterzijde is de woonkamer (circa 4,76 x 3,78 excl. erker), die geheel als zitkamer ingedeeld kan worden. Sfeermakers zijn de houten vloer, houten wandlijsten en de paneeldeuren. De aansluitende eetkamer, met dezelfde sfeer als de woonkamer, is ongeveer 3,16 x 3,07/2,44 meter groot.
De vernieuwde keuken (circa 2,39 x 2,53) grenst aan de patio, waar u heerlijk buiten kunt zitten. In de keuken staan een wandopstelling en een grote kastenwand, met ruim voldoende bergruimte en alle benodigde inbouwapparatuur: een gasfornuis, afzuigkap, koelkast, vriezer, oven en een vaatwasser.
Niet alleen de patio, maar ook de tuin aan de voorzijde biedt genoeg ruimte om buiten te zitten. Een deel van de tuin is gesitueerd op het noorden en het andere deel op het westen, waardoor er zowel zon als schaduw is. Leibomen zorgen voor privacy en een tuin met een aangename sfeer.
Eerste verdieping:
De overloop, met het trappenhuis en een houten vloer, heeft veel lichtinval via de grote ramen aan de voorzijde. Vanaf hier is er toegang tot twee slaapkamers en de badkamer. Slaapkamer I (circa 4,79 x 3,78), in gebruik als master bedroom, heeft net als de woonkamer een inbouwkast. Slaapkamer II is geschikt als kinderkamer, werkkamer of kleedruimte.
De badkamer (circa 2,37/1,83 x 2,27) biedt ruimte aan een inloopdouche, tweede toilet en een wastafel op een houten badkamermeubel. Fraaie elementen zijn de kranen, designradiator en de nis met donkerbruine planken.
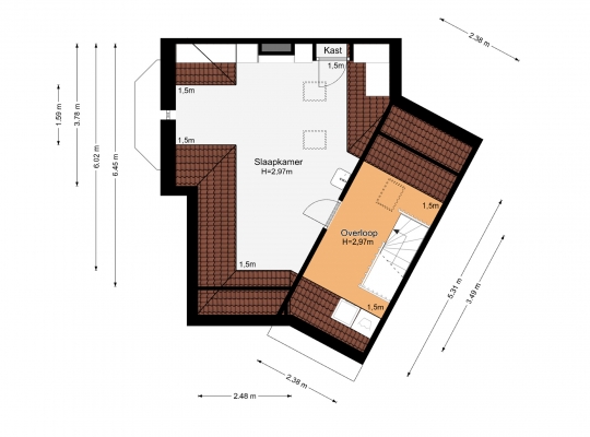
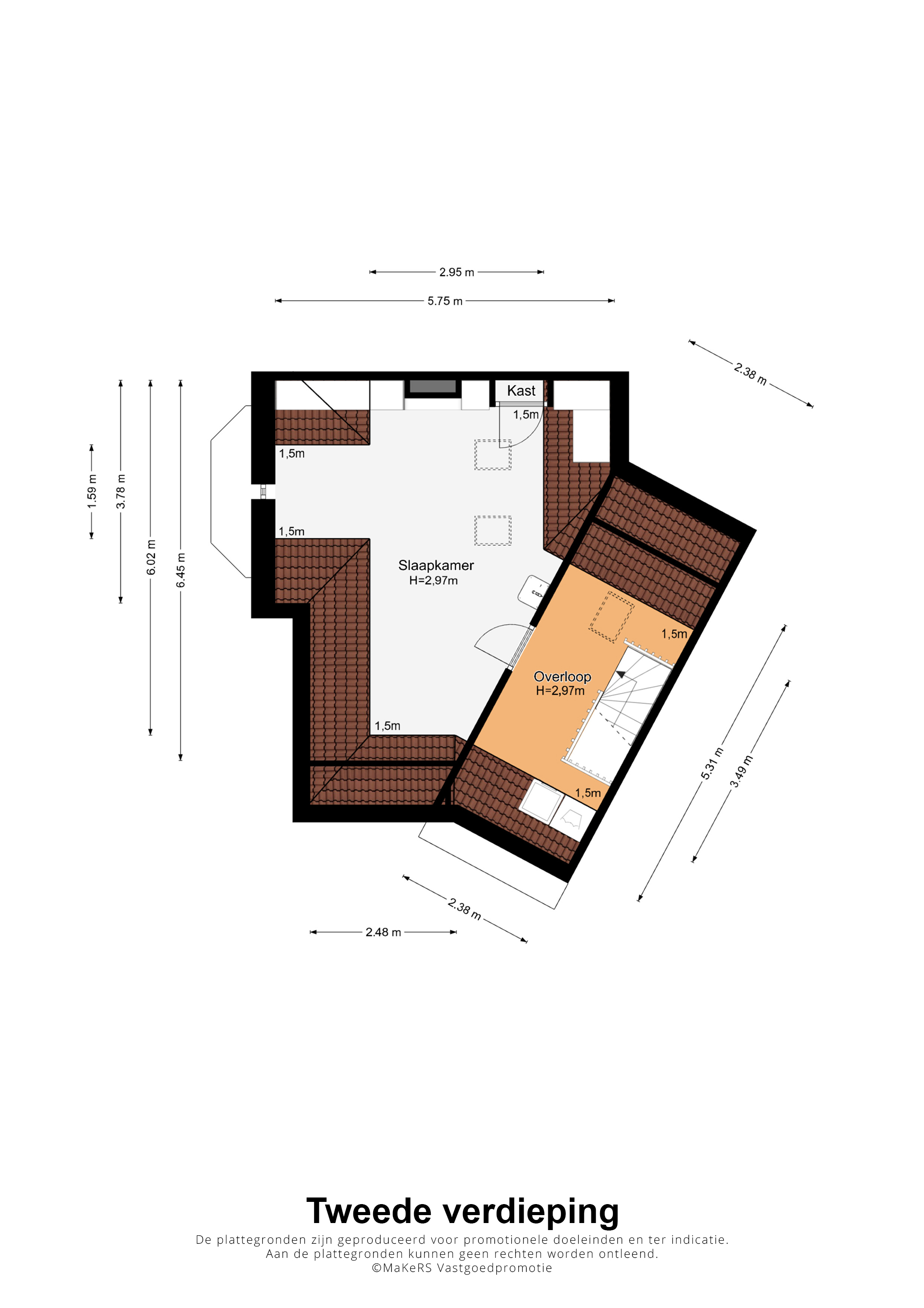
Tweede verdieping:
Een vaste trap met luik leidt naar een royale overloop, met een houten vloer en de prachtige dakconstructie in het zicht. In deze ruimte is de opstelling van de wasapparatuur en is er onder andere ruimte om de wasmanden neer te zetten.
Aansluitend is slaapkamer III met twee dakramen, een wastafel en een raampje bij het slaapgedeelte. Qua ruimte en sfeer is dit een kamer die zo uit een woonmagazine lijkt te komen!
Algemeen:
Bouwjaar: 1929
Perceeloppervlakte: 102 m2
Gebruiksoppervlakte wonen: circa 118 m2, inhoud: circa 467 m3
Verwarming en warm water via een HR-ketel (huur, Hesi, 2014)
Houten en kunststof kozijnen met isolatieglas
Dakisolatie, deels vloerisolatie
Drie slaapkamers, waarvan een op de tweede verdieping
Patio aan de achterzijde en een sfeervolle tuin aan de voorzijde
Fraaie elementen als houten vloeren, paneeldeuren en een sierlijke trappartij
Asbest: niet bekend
Energielabel: D
Aanvaarding: in onderling overleg
In de Gemeente Maastricht geldt vanaf 1 oktober 2022 een Huisvestingsverordening - opkoopbescherming voor woningen (https://www.gemeentemaastricht.nl/wonen-en-verhuizen/opkoopbescherming-voor-woningen).
Ter bescherming van de belangen van zowel koper als verkoper, wordt uitdrukkelijk gesteld dat een koopovereenkomst met betrekking tot deze onroerende zaak eerst dan tot stand komt nadat koper en verkoper de koopovereenkomst hebben getekend (“schriftelijkheidsvereiste”).
De termijn die wordt opgenomen voor eventuele (overeengekomen) ontbindende voorwaarden (bv. Financiering) is in de regel 4 tot 6 weken na het sluiten van de mondelinge wilsovereenkomst.
De waarborgsom/bankgarantie is 10% van de koopsom. De koper dient deze 3 dagen ná het vervallen van de ontbindende voorwaarden bij de desbetreffende notaris te deponeren. Koper is te allen tijde gerechtigd voor eigen rekening een bouwkundige keuring te (laten) verrichten dan wel andere adviseurs te raadplegen teneinde een goed inzicht te verkrijgen over de staat van onderhoud.
Deze informatie is door ons Tijs & Cyril Makelaardij met de nodige zorgvuldigheid samengesteld.
Onzerzijds wordt echter geen enkele aansprakelijkheid aanvaard voor enige onvolledigheid, onjuist of anderszins, dan wel de gevolgen daarvan. Alle opgegeven maten en oppervlakten zijn indicatief. Van toepassing zijn de NVM voorwaarden.