Vraagprijs € 449.000,- k.k.
Luxe, licht en ruim appartement op een van de mooiste locaties van de Groene Loper. Dit fraai vormgegeven appartement met 2 slaapkamers (mogelijkheid tot 3 slaapkamers) heeft een fantastische ligging op de 1e verdieping, in de ronding van het gebouw. Het panoramische uitzicht naar het groen en De Geusselt, te herkennen aan de lichtmasten van MVV, maakt het wonen in dit appartement met royaal balkon tot een geweldige beleving. De luxe keuken, ruime badkamer en de uitstekende afwerking zorgen ervoor dat u al snel de verhuisdatum in kan plannen. Het gebouw is voorzien van een lift en bij het appartement horen een vaste parkeerplek en een (fietsen)berging.
Luxe, licht en ruim appartement op een van de mooiste locaties van de Groene Loper. Dit fraai vormgegeven appartement met 2 slaapkamers (mogelijkheid tot 3 slaapkamers) heeft een fantastische ligging op de 1e verdieping, in de ronding van het gebouw. Het panoramische uitzicht naar het groen en De Geusselt, te herkennen aan de lichtmasten van MVV, maakt het wonen in dit appartement met royaal balkon tot een geweldige beleving. De luxe keuken, ruime badkamer en de uitstekende afwerking zorgen ervoor dat u al snel de verhuisdatum in kan plannen. Het gebouw is voorzien van een lift en bij het appartement horen een vaste parkeerplek en een (fietsen)berging.
Typering:
Het appartementengebouw van 9 verdiepingen staat op de hoek van de President Rooseveltlaan en Kolonel Millerstraat aan de Groene Loper. Door een selectie van verschillende architecten ontstaat aan de Groene Loper een indrukwekkend en gevarieerd straatbeeld. Het stadsdeel is een fantastische plek om te wonen waar u kunt wandelen, hardlopen en een van de horecazaken kunt bezoeken. Bij het Oranjeplein is een bushalte en er is een goede verbinding met de uitvalswegen naar Eindhoven, Luik en Heerlen/Kerkrade.
Duurzaamheid:
Het appartementengebouw heeft een EPC (EnergiePrestatieCoëfficiënt) van 0.26, is gasloos en helemaal klaar voor de toekomst. De opwekking van de verwarming en het warm water gaat via een lucht-waterwarmtepomp. Op het dak van het appartementengebouw liggen zonnepanelen en door de lage temperatuur vloerverwarming met thermostaat in iedere verblijfsruimte, inclusief de badkamer, is er een relatief lage warmtebehoefte.
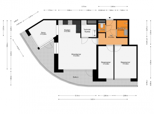
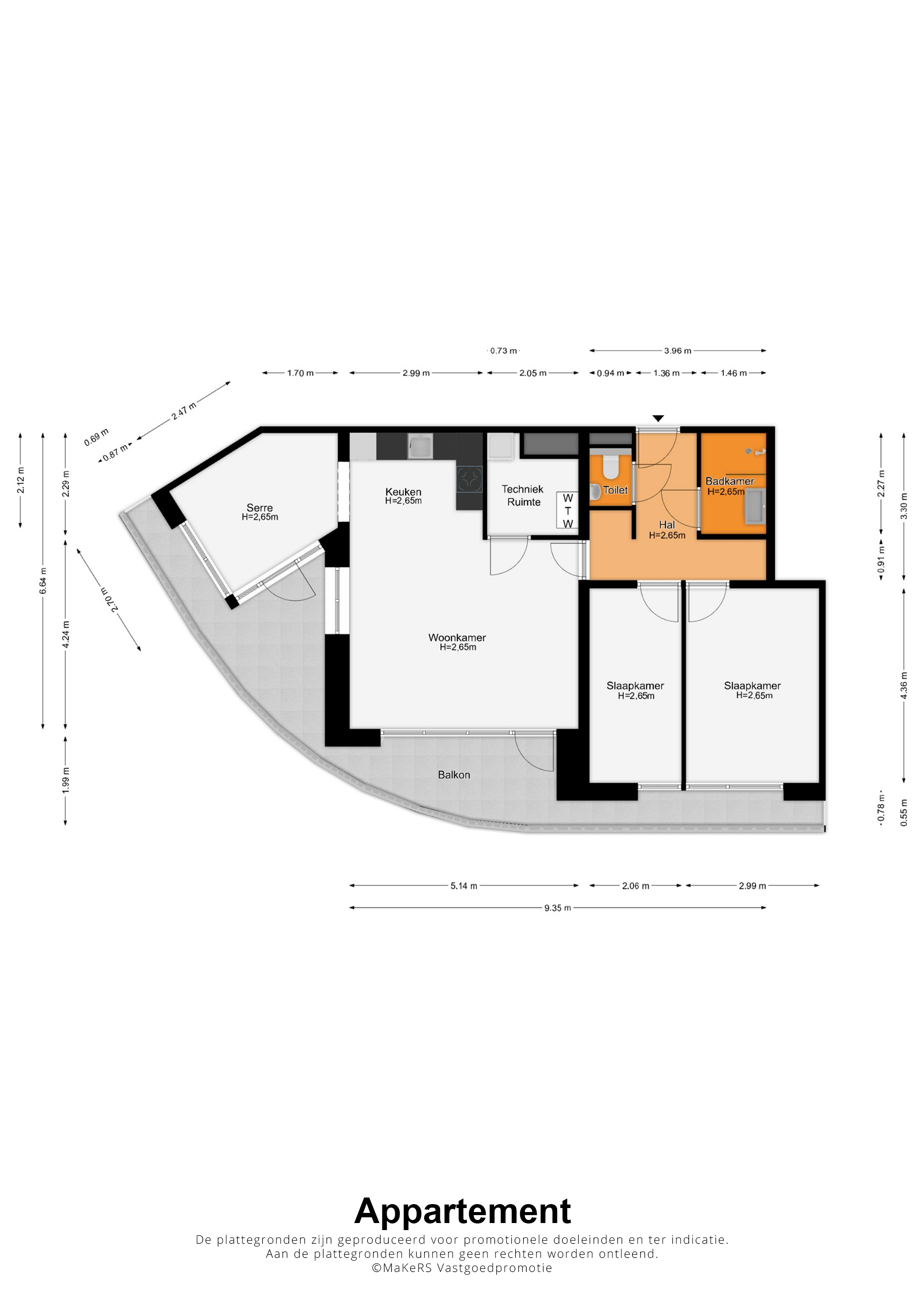
Indeling:
Appartementengebouw:
Aan de kant van de Groene Loper is de mooie, gezamenlijke entree van het stijlvolle appartementengebouw. Met de trap en lift is het appartement, gesitueerd op de eerste verdieping, te bereiken. Op het achtergelegen parkeerterrein heeft u de beschikking over een vaste plek (nummer 45) en bij het appartement hoort een privéberging (in de onderbouw) van circa 2,61 x 2,19 meter.
Appartement:
De T-vormige hal van circa 7 m2 is een fraaie ontvangstruimte, met een garderobenis en een mooie PVC vloer. Deze vloer, met vloerverwarming, ligt in bijna het hele appartement.
Rechts in de hal loopt u de woonkamer (circa 5,14 x 4,24) in, die geheel als zitkamer ingedeeld kan worden. Het uitzicht is fraai, want er zijn maar weinig appartementen bij de Groene Loper met zoveel groen in het beeld. In de open keuken (circa 2,99 x 2,29) staat een moderne hoekopstelling met een composiet aanrechtblad en alle benodigde inbouwapparatuur: een inductie kookplaat, afzuigkap, combi-oven, vaatwasser en een koelkast. Naast de keuken is een inpandige berging (circa 2,05 x 1,71) met de warmtepomp, WTW-systeem en de aansluitingen voor de wasapparatuur.
Verrassend is de ruimte aan de andere zijde van de keuken. Met een oppervlakte van circa 8,5 m2 en een deur naar het balkon is dit een fijne ruimte, die onder andere geschikt is als eetkamer of werkkamer.
Slaapkamer I (circa 4,36 x 2,99) is een ruime master bedroom en slaapkamer II (circa 4,36 x 2,06) is geschikt als kinderkamer, logeerkamer en/of werkkamer. Beide slaapkamers hebben, net als de woonkamer en eetkamer, een deur naar het balkon. Het uitzicht naar het plantsoen en de Geusselt maakt het wonen in dit appartement heel aantrekkelijk.
Aan de andere zijde van de hal is de badkamer (circa 2,27 x 1,46) met grote, lichte wandtegels en fraaie vloertegels in een bruine tint. De ruimte is ingedeeld met een inloopdouche, een breed wastafelmeubel, spiegelkast en een designradiator.
Wat dit appartement uniek maakt, is het balkon. Ter hoogte van de woonkamer en de eetkamer is er genoeg ruimte om een loungeset of een tafel met stoelen neer te zetten. Het uitzicht is om in te lijsten, met een grote hoeveelheid groen en de Geusselt als decor.
Algemeen:
Bouwjaar: 2023
Gebruiksoppervlakte wonen: circa 80 m2, inhoud circa 274 m3
Vaste parkeerplaats (nummer 45) op het achtergelegen parkeerterrein
Privéberging in de onderbouw
Verwarming via een lucht-waterwarmtepomp
Vloerverwarming in het hele appartement
Royaal balkon met prachtig uitzicht naar het groen en de Geusselt
VvE bijdrage € 217,00 per maand inclusief berging en parkeerplaats
Energielabel: A+++ (EPC 0,26)
Aanvaarding: in onderling overleg
In de Gemeente Maastricht geldt vanaf 1 oktober 2022 een Huisvestingsverordening - opkoopbescherming voor woningen (dit kan bij deze woning van toepassing zijn).
Ter bescherming van de belangen van zowel koper als verkoper, wordt uitdrukkelijk gesteld dat een koopovereenkomst met betrekking tot deze onroerende zaak eerst dan tot stand komt nadat koper en verkoper de koopovereenkomst hebben getekend (“schriftelijkheidsvereiste”).
Indien er in de woning huurtoestellen aanwezig zijn zoals CV-ketel, boiler, zonnepanelen, mechanische ventilatie etc. dan dienen deze door de koper te worden overgenomen.
De termijn die wordt opgenomen voor eventuele (overeengekomen) ontbindende voorwaarden (bv. Financiering) is in de regel 4 tot 6 weken na het sluiten van de mondelinge wilsovereenkomst.
De waarborgsom/bankgarantie is 10% van de koopsom. De koper dient deze 3 dagen ná het vervallen van de ontbindende voorwaarden bij de desbetreffende notaris te deponeren.
Koper is te allen tijde gerechtigd voor eigen rekening een bouwkundige keuring te (laten) verrichten dan wel andere adviseurs te raadplegen teneinde een goed inzicht te verkrijgen over de staat van onderhoud.
Deze informatie is door ons, Tijs & Cyril Makelaardij met de nodige zorgvuldigheid samengesteld. Onzerzijds wordt echter geen enkele aansprakelijkheid aanvaard voor enige onvolledigheid, onjuist of anderszins, dan wel de gevolgen daarvan. Alle opgegeven maten en oppervlakten zijn indicatief. Van toepassing zijn de NVM voorwaarden.