Vraagprijs € 389.000,- k.k.
Stijlvol appartement aan De Groene Loper, met een balkon en parkeerplek. Aan De Groene Loper ziet u niet alleen nieuwbouw, er zijn ook enkele gebouwen behouden en verduurzaamd om aan het huidige wooncomfort te voldoen. In een van deze gebouwen, bekend als ‘Blok 8’, vindt u dit lichte 3-kamerappartement met een warmtepomp, vloerverwarming, zonnepanelen, goede isolatie en een balkon op het oosten. U hoeft alleen te verhuizen! Erg handig: bij het appartement horen een ruime privéberging en een vaste parkeerplek aan de achterzijde van het gebouw.
Stijlvol appartement aan De Groene Loper, met een balkon en parkeerplek. Aan De Groene Loper ziet u niet alleen nieuwbouw, er zijn ook enkele gebouwen behouden en verduurzaamd om aan het huidige wooncomfort te voldoen. In een van deze gebouwen, bekend als ‘Blok 8’, vindt u dit lichte 3-kamerappartement met een warmtepomp, vloerverwarming, zonnepanelen, goede isolatie en een balkon op het oosten. U hoeft alleen te verhuizen! Erg handig: bij het appartement horen een ruime privéberging en een vaste parkeerplek aan de achterzijde van het gebouw.
Het appartementengebouw is een cultuurhistorisch element, ingepast in de nieuwe wijk De Groene Loper. Vroeger stonden er negen soortgelijke gebouwen langs de autoweg, waarvan alleen dit gebouw (blok 8) is behouden. Architect Michaël Spanjers van SeC Architecten in Beek maakte een ontwerp waarmee Blok 8 weer een nieuwe, frisse uitstraling kreeg, die helemaal past bij het voorname uiterlijk van de nieuwbouw aan de Groene Loper.
Door een selectie van verschillende architecten is er aan de Groene Loper een indrukwekkend en gevarieerd straatbeeld ontstaan. Het stadsdeel is een fantastische plek om te wonen waar u kunt wandelen, hardlopen en een van de horecazaken kunt bezoeken. Bij het Oranjeplein is een bushalte en er is een goede verbinding met de uitvalswegen naar Eindhoven, Luik en Heerlen/Kerkrade.
Typering:
Begane grond:
Aan de buitenzijde van de vernieuwde entree zijn de brievenbussen, het bellentableau en de intercom. In de aansluitende hal en het trappenhuis is de sfeer van de jaren ’60 tijdens de renovatie behouden.
Vanuit de centrale hal heeft u toegang tot de bergingen. Bij dit appartement hoort een ruime berging van circa 10,9 m2. De berging is toegankelijk vanaf het parkeerterrein, waar u een auto kunt neerzetten.
Appartement:
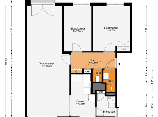
Als nieuwe bewoner van dit appartement hoeft u niets te doen, behalve te verhuizen. In de hal (circa 3,88 x 1,41) ziet u een mooie vloer-, wand- en plafondafwerking in lichte kleuren. Aan de linkerzijde zijn een bergkast en een garderobenis, waardoor de hal heel ruimtelijk oogt.
De woonkamer heeft een oppervlakte van circa 33 m2, met openslaande deuren naar het balkon en mooi uitzicht naar De Groene Loper. Lichte kleuren bepalen de sfeer en u kunt direct beginnen met inrichten. Het balkon is gesitueerd op het oosten, voor een perfecte start van de dag.
In de keuken (circa 3,71 x 2,12/1.72) staat een lichte hoekopstelling met een ingebouwde inductie kookplaat, afzuigkap, vaatwasser, koelkast en een combimagnetron. Het houtlook aanrechtblad past goed in het geheel, net als de grijze tegelvloer. Naast de keuken is een bijkeuken (circa 1,53 x 1,94/1,77). Hier staat de warmtepomp (Mitsubishi Ecodan, 2020, eigendom) en is plek voor de wasapparatuur.
Aan de achterzijde zijn slaapkamer I (circa 3,97 x 2,42) en slaapkamer II (circa 3,97 x 3,25) met een dubbele inbouwkast. Beide kamers zijn niet alleen ruim, maar ook heel licht dankzij ramen aan de oostkant. De grootste kamer is perfect om te gebruiken als master bedroom en de andere kamer als werkkamer, kleedruimte of kinderkamer.
De badkamer is ingedeeld met een inloopdouche en een wastafelmeubel. Boven de wastafel hangt een grote spiegel en de douche is voorzien van een thermostaatkraan. Naast de badkamer is de toiletruimte, uitgevoerd in dezelfde stijl.
Algemeen:
Bouwjaar: 1960, geheel gerenoveerd en verbouwd in 2019/2020
Gebruiksoppervlakte wonen: circa 79 m2 (exclusief circa 4 m2 buitenruimte), inhoud circa 246 m3
Duurzaam appartement met een warmtepomp (Mitsubishi Ecodan, 2020, eigendom) en vloerverwarming
Twee slaapkamers, waarvan een met een dubbele inbouwkast
Balkon op het oosten, te bereiken vanuit de woonkamer
Duurzaam appartementengebouw met warmtepompen, zonnepanelen en goede isolatie
Appartement: slapende VVE
Parkeerplaats: VVE-kosten: €20,57
Energielabel: A
Aanvaarding: per direct mogelijk
In de Gemeente Maastricht geldt vanaf 1 oktober 2022 een Huisvestingsverordening - opkoopbescherming voor woningen (dit kan bij deze woning van toepassing zijn).
Ter bescherming van de belangen van zowel koper als verkoper, wordt uitdrukkelijk gesteld dat een koopovereenkomst met betrekking tot deze onroerende zaak eerst dan tot stand komt nadat koper en verkoper de koopovereenkomst hebben getekend (“schriftelijkheidsvereiste”).
Indien er in de woning huurtoestellen aanwezig zijn zoals CV-ketel, boiler, zonnepanelen, mechanische ventilatie etc. dan dienen deze door de koper te worden overgenomen.
De termijn die wordt opgenomen voor eventuele (overeengekomen) ontbindende voorwaarden (bv. Financiering) is in de regel 4 tot 6 weken na het sluiten van de mondelinge wilsovereenkomst.
De waarborgsom/bankgarantie is 10% van de koopsom. De koper dient deze 3 dagen ná het vervallen van de ontbindende voorwaarden bij de desbetreffende notaris te deponeren.
Koper is te allen tijde gerechtigd voor eigen rekening een bouwkundige keuring te (laten) verrichten dan wel andere adviseurs te raadplegen teneinde een goed inzicht te verkrijgen over de staat van onderhoud.
Deze informatie is door ons, Tijs & Cyril Makelaardij met de nodige zorgvuldigheid samengesteld. Onzerzijds wordt echter geen enkele aansprakelijkheid aanvaard voor enige onvolledigheid, onjuist of anderszins, dan wel de gevolgen daarvan. Alle opgegeven maten en oppervlakten zijn indicatief. Van toepassing zijn de NVM voorwaarden.