Wonen aan de Maas – rust, karakter en ruimte in Itteren – Maastricht. Aan de rand van het prachtige GrensMaasgebied, waar u kunt wandelen, fietsen en genieten van de natuur en de rivier de Maas, ligt dit sfeervolle, monumentale woonhuis met een royaal bijgebouw. Een plek waar historie, comfort en landelijke charme samenkomen. Hier woont u in alle rust, omgeven door groen, en toch op korte afstand van het bruisende Maastricht.
Wonen aan de Maas – rust, karakter en ruimte in Itteren – Maastricht. Aan de rand van het prachtige GrensMaasgebied, waar u kunt wandelen, fietsen en genieten van de natuur en de rivier de Maas, ligt dit sfeervolle, monumentale woonhuis met een royaal bijgebouw. Een plek waar historie, comfort en landelijke charme samenkomen. Hier woont u in alle rust, omgeven door groen, en toch op korte afstand van het bruisende Maastricht.
Prachtig, monumentaal woonhuis met multifunctioneel bijgebouw in Itteren. Achter het woonhuis Pasestraat 43, grenzend aan het weggetje ‘Aan de Maas’, staat deze prachtige sfeervolle woning uit de 19e eeuw. Naast het woonhuis staat een multifunctioneel bijgebouw met een atelier, slaapkamer, keuken en een badkamer. Een huis om verliefd op te worden!
Typering:
Itteren is een charmant kerkdorp en een voormalig zelfstandige gemeente in de Nederlandse provincie Limburg. Sinds 1970 maakt het, met circa 900 inwoners, deel uit van de gemeente Maastricht en vormt het een van 44 officiële buurten van de stad.
Het dorp ligt in het prachtige GrensMaasgebied – een uniek natuurgebied waar de Maas vrij kan stromen en waar u volop kunt genieten van rust, ruimte en natuur. Hier kunt u heerlijk wandelen, fietsen of simpelweg ontspannen aan de rivier, terwijl u geniet van de schitterende vergezichten en het rijke planten- en dierenleven.
Kinderen kunnen terecht op basisscholen in Borgharen of Bunde. Via de Keersluis in Borgharen rijdt u zo Maastricht in, terwijl de brug over het Julianakanaal snelle verbinding biedt met Bunde. Een ideale locatie voor gezinnen met kinderen, dierenliefhebbers en iedereen die landelijk wil wonen, maar toch dichtbij de stad.
Woonhuis:
Begane grond:
Aan de voorzijde is de entree van dit fraaie, speelse ingedeelde woonhuis. De hal (circa 5,76 x 3,97) met toiletruimte is een stijlvolle ontvangstruimte met een gewelfd plafond, een oude plavuizen vloer en mergelblokken gecombineerd met veldbrandsteen. Deze elementen passen goed bij de paneeldeuren en de trap naar de eerste verdieping.
Rechts van de hal, naast de toiletruimte, is slaapkamer I (circa 3,95 x 3,97). Deze kamer heeft, net als de rest van de begane grond, een hoog plafond. Het uitzicht naar de voortuin maakt deze kamer tot een aangename plek.
Aan de andere zijde van de hal is de woonkamer (circa 11,65 x 4,57). De houten balken, gordingen, plavuizen vloer en open haard bepalen de sfeer in deze prachtige ruimte. Meerdere grote ramen, waarvan één tot op de vloer, zorgen voor een fraaie verbinding met de tuin. Privacy is volop aanwezig en vanuit de woonkamer geniet u volop van de natuur.
Naast de woonkamer is de woonkeuken (circa 6,30 x 4,16/4,03), boordevol karakter en stijl. Er is genoeg plek voor een grote eettafel en de royale hoekopstelling heeft niet alleen aanrechtblad, maar ook een dubbele spoelbak van hardsteen. Alle benodigde apparatuur is aanwezig: een Boretti gasfornuis met twee ovens, een vaatwasser en een koelkast met vriesvak.
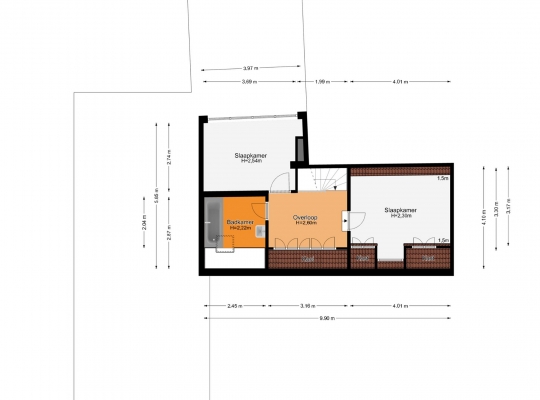
1e verdieping:
Vanaf de overloop heeft u toegang tot twee slaapkamers en de badkamer. Aan de achterzijde is slaapkamer II (circa 3,69 x 2,74) met een brede dakkapel. Het uitzicht naar de tuin met hoge bomen is fraai. Slaapkamer III (circa 3,30 x 4,01), ingericht als werk- en logeerkamer, heeft twee vaste kasten en een dakkapel aan de kant van de rustige straat.
Een dakraam zorgt voor veel lichtinval in de badkamer (circa 2,87 x 2,45), die is ingedeeld met een ligbad/douche en een wastafel met grote spiegel. Naast de deur hangt een hoge handdoekenradiator.
Bijgebouw:
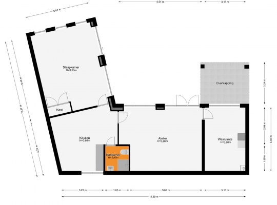
Links van het woonhuis staat een multifunctioneel bijgebouw dat als gastenverblijf en atelier is ingericht. De zit-/slaapkamer (circa 6,49 x 5,01) is een royale kamer met prachtig uitzicht naar de tuin. Naast de slaapkamer is een keuken en de badkamer is ingedeeld met een douche, toilet en een wastafel.
Verder zijn er een sfeervol atelier (circa 6,51/5,63 x 4,98) en een wasruimte/berging (circa 4,98 x 3,16) met de opstelling van de 2e HR-ketel (2021, eigendom). Openslaande deuren in het atelier geven toegang tot de tuin en de wasruimte/berging.
De tuin is een oase van groen met volwassen bomen, hoge beplanting en een groot gazon. Er zijn meerdere terrassen gemaakt om van de zon, maar ook van de schaduw te genieten. Vogels, vlinders en andere dieren zijn vaak te zien terwijl u in de tuin zit, loopt of aan het tuinieren bent. Voor tuingereedschap en andere spullen staat er een houten berging, omringd door groen. Ook aan de straatkant ziet u groen, bij het bijgebouw en bij het woonhuis.
Algemeen:
Bouwjaar: 1817
Gebruiksoppervlakte wonen: circa 268 m2, inhoud circa 1167 m3
Perceeloppervlakte: 1172 m2
Verwarming en warm water via een HR-ketel voorhuis (2024, huur) & bijgebouw (2019, eigendom)
Hardhouten kozijnen met isolatieglas (dakkapel voorzijde en grote ramen woonkamer voorzijde), overige kozijnen zijn voorzien van enkel glas
Woonhuis heeft drie slaapkamers, waarvan een op de begane grond
Multifunctioneel bijgebouw met een slaapkamer, keuken, badkamer, atelier en een wasruimte/berging
Prachtige, parkachtige tuin met veel privacy
Energielabel: D
Aanvaarding: in onderling overleg
In de Gemeente Maastricht geldt vanaf 1 oktober 2022 een Huisvestingsverordening - opkoopbescherming voor woningen (dit kan bij deze woning van toepassing zijn).
Ter bescherming van de belangen van zowel koper als verkoper, wordt uitdrukkelijk gesteld dat een koopovereenkomst met betrekking tot deze onroerende zaak eerst dan tot stand komt nadat koper en verkoper de koopovereenkomst hebben getekend (“schriftelijkheidsvereiste”).
Indien er in de woning huurtoestellen aanwezig zijn zoals CV-ketel, boiler, zonnepanelen, mechanische ventilatie etc. dan dienen deze door de koper te worden overgenomen.
De termijn die wordt opgenomen voor eventuele (overeengekomen) ontbindende voorwaarden (bv. Financiering) is in de regel 4 tot 6 weken na het sluiten van de mondelinge wilsovereenkomst.
De waarborgsom/bankgarantie is 10% van de koopsom. De koper dient deze 3 dagen ná het vervallen van de ontbindende voorwaarden bij de desbetreffende notaris te deponeren.
Koper is te allen tijde gerechtigd voor eigen rekening een bouwkundige keuring te (laten) verrichten dan wel andere adviseurs te raadplegen teneinde een goed inzicht te verkrijgen over de staat van onderhoud.
Deze informatie is door ons, Tijs & Cyril Makelaardij met de nodige zorgvuldigheid samengesteld. Onzerzijds wordt echter geen enkele aansprakelijkheid aanvaard voor enige onvolledigheid, onjuist of anderszins, dan wel de gevolgen daarvan. Alle opgegeven maten en oppervlakten zijn indicatief. Van toepassing zijn de NVM voorwaarden.