Luxe, geheel verbouwde woning met garage en prachtig, vrij uitzicht. Aan de rand van Heer staat deze instapklare hoekwoning, die van top tot teen is verbouwd tot een droomhuis. Op de eerste en tweede verdieping zijn in totaal 4 slaapkamers, en het souterrain biedt ruimte aan een extra slaapkamer en een xl-hobbyruimte. Er is niet alleen verbouwd, maar ook geïsoleerd en verduurzaamd waardoor u direct kunt verhuizen. Ook de tuin, aan drie zijden van de woning, is opnieuw aangelegd en in de achtertuin staat een stenen garage.
Luxe, geheel verbouwde woning met garage en prachtig, vrij uitzicht. Aan de rand van Heer staat deze instapklare hoekwoning, die van top tot teen is verbouwd tot een droomhuis. Op de eerste en tweede verdieping zijn in totaal 4 slaapkamers, en het souterrain biedt ruimte aan een extra slaapkamer en een xl-hobbyruimte. Er is niet alleen verbouwd, maar ook geïsoleerd en verduurzaamd waardoor u direct kunt verhuizen. Ook de tuin, aan drie zijden van de woning, is opnieuw aangelegd en in de achtertuin staat een stenen garage.
Wegens grote belangstelling voor deze woning is het helaas niet meer mogelijk om een bezichtiging te plannen. Indien u op de reservelijst genoteerd wilt worden, gelieve uw naam en telefoonnummer te mailen naar: info@tijsencyril.nl.Typering:
De Oude Molenweg is een van de meest geliefde straten, niet alleen in Heer maar in heel Maastricht-Oost. Aan de voorzijde kijkt u uit naar het buitengebied en een biologische zelfoogsttuin, genaamd Akkerwikke. De universiteit Maastricht, het academische ziekenhuis MUMC+ en het NS-station liggen op enkele minuten fietsafstand. Evenals de Einsteinstraat met speciaalzaken, en winkelcentrum de Leim, de kinderopvang, een basisschool en middelbaar onderwijs. Met de bus bent u zo bij in Wyck. Voor een wandeling loopt u vanuit de voordeur het Savelsbos en de Keerderberg op. Met de auto op pad? De snelwegen A2 en A79 zijn, net als diverse uitvalswegen, goed bereikbaar.
Souterrain:
Wat u aan de buitenzijde niet ziet, is het zeer ruime souterrain. Ook deze etage is geheel verbouwd, inclusief isolatie onder de laminaatvloer. Er is een plafond geplaatst en het geheel is geïsoleerd.
Vanuit de hal op de begane grond leidt een trap naar een wasruimte van circa 3,78 x 1,89 meter. Aan de achterzijde is een slaap-/logeerkamer (circa 3,28 x 2,63), die via een buitentrap in verbinding met de tuin staat. De derde en tevens grootste ruimte is een grote hobbyruimte (circa 7,13 x 3,54/3,00), met lichtinval aan de voor- en achterzijde. Welke invulling geeft u aan deze ruimte?
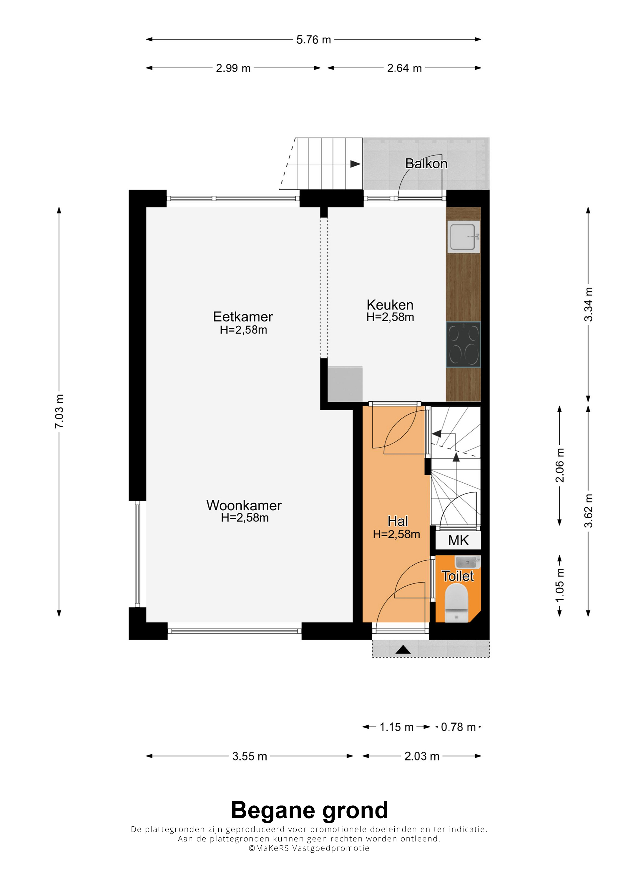
Begane grond:
Vanaf het moment dat u in de hal staat, bent u op slag verliefd. Deze ruimte is, net als de rest van de woning, op een fraaie wijze verbouwd. Zo is de trap gerenoveerd, de muren en plafonds zijn gestuct en er ligt een mooie laminaatvloer. Rechts in de hal is de vernieuwde toiletruimte, en aan het einde van de hal is de toegang tot de keuken.
De keuken (circa 3,34 x 2,64) staat in open verbinding met de woon-/eetkamer (circa 7,03 x 3,55/2,99). De totale oppervlakte is circa 32 m2, met veel lichtinval en uitzicht om in te lijsten. Het zitgedeelte is aan de voorzijde, en het eetgedeelte grenst aan de keuken. De witte keukenopstelling, met hoge bovenkasten en een houten aanrechtblad, heeft een ingebouwde inductie kookplaat met afzuiging, een vaatwasser, combimagnetron en een koel-/vriescombinatie.
Vanuit de keuken en het souterrain heeft u toegang tot de achtertuin die, net als de zij- en voortuin, in 2023 opnieuw is aangelegd. Aan de straatkant staat een beukenhaag, gecombineerd met houten schuttingen, en in de tuin ziet u een grote variatie aan beplanting. Niet zichtbaar, maar wel aanwezig is het Gardena bewateringssysteem. Het terras in de zijtuin is op het zuiden en het terras in de achtertuin op het westen. In de achtertuin staat een stenen garage van circa 4,70 x 2,80), voor de (kinder)fietsen en andere spullen.
Eerste verdieping:
Niet alleen het souterrain en de begane grond, maar ook de eerste en tweede verdieping zijn geheel verbouwd. Aan de voorzijde is slaapkamer I (circa 3,57 x 2,72), met uitzicht om in te lijsten. Slaapkamer II (circa 4,32 x 2,99) en slaapkamer III (circa 3,35 x 2,64) zijn aan de achterzijde. De laatstgenoemde slaapkamer is in gebruik als kleedruimte en werkkamer, met een maatwerk kastenwand over de hele lengte van de kamer. In alle kamers ziet u stucwerk, radiatoren met een ombouw, rustige kleuren en een mooie laminaatvloer.
De badkamer (circa 1,86 x 1,52), met een raam in de voorgevel, is optimaal ingedeeld met een inloopdouche, wandcloset en een wastafelmeubel met spiegelkast. Grote wand- en vloertegels maken de badkamer optisch groter, en vloerverwarming verhoogt het comfort.
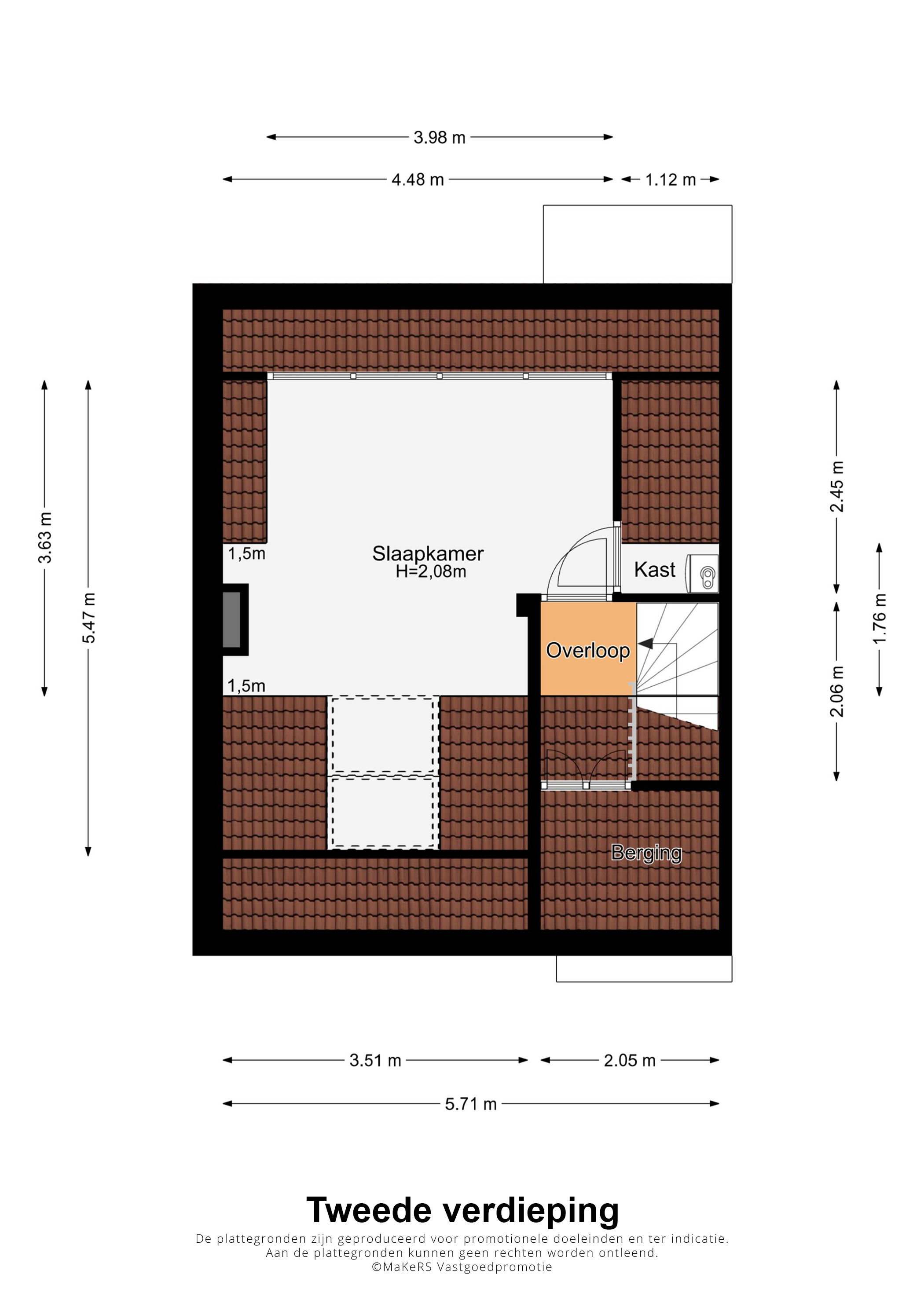
Tweede verdieping:
Wat vroeger een zolder was, is verbouwd tot een volwaardige verdieping met een extra slaapkamer. Niet alleen het dak is geïsoleerd, ook de verstevigde zoldervloer is voorzien van isolatie. Aan de voorzijde ziet u twee dakramen, en aan de achterzijde is een bijna 4 meter brede dakkapel geplaatst. In een kast hangt de HR-ketel (Intergas, 2021, eigendom), en de overloop grenst verder aan een berging in de schuinte van het dak.
Algemeen:
Bouwjaar: 1966, algehele renovatie in 2021
Perceeloppervlakte: 276 m2
Gebruiksoppervlakte wonen: circa 82 m2 + 58 m2 (zolder & souterrain), inhoud circa 465 m3
De buitenmuren zijn voor 2006 nageïsoleerd en in 2021 gestraald, gevoegd en geïmpregneerd
Kunststof kozijnen met houtstructuur en HR++ glas in 2021 (ook in het souterrain)
Screens op de begane grond (met afstandsbediening)
Rolluiken op de eerste verdieping (elektrisch bedienbaar)
Dakrenovatie (isolatie, een dakkapel, twee dakramen en nieuwe dakpannen)
11 xl zonnepanelen van 400 Wp, geplaatst in 2021 (inclusief nieuwe groepenkast)
Verwarming en warm water via een HR-ketel (Intergas, 2021, eigendom)
Garage met een vernieuwd dak en elektra (2023)
Energielabel: B
Aanvaarding: in overleg
In de Gemeente Maastricht geldt vanaf 1 oktober 2022 een Huisvestingsverordening - opkoopbescherming voor woningen (dit kan bij deze woning van toepassing zijn).
Ter bescherming van de belangen van zowel koper als verkoper, wordt uitdrukkelijk gesteld dat een koopovereenkomst met betrekking tot deze onroerende zaak eerst dan tot stand komt nadat koper en verkoper de koopovereenkomst hebben getekend (“schriftelijkheidsvereiste”).
Indien er in de woning huurtoestellen aanwezig zijn zoals CV-ketel, boiler, zonnepanelen, mechanische ventilatie etc. dan dienen deze door de koper te worden overgenomen.
De termijn die wordt opgenomen voor eventuele (overeengekomen) ontbindende voorwaarden (bv. Financiering) is in de regel 4 tot 6 weken na het sluiten van de mondelinge wilsovereenkomst.
De waarborgsom/bankgarantie is 10% van de koopsom. De koper dient deze 3 dagen ná het vervallen van de ontbindende voorwaarden bij de desbetreffende notaris te deponeren.
Koper is te allen tijde gerechtigd voor eigen rekening een bouwkundige keuring te (laten) verrichten dan wel andere adviseurs te raadplegen teneinde een goed inzicht te verkrijgen over de staat van onderhoud.
Deze informatie is door ons, Tijs & Cyril Makelaardij met de nodige zorgvuldigheid samengesteld. Onzerzijds wordt echter geen enkele aansprakelijkheid aanvaard voor enige onvolledigheid, onjuist of anderszins, dan wel de gevolgen daarvan. Alle opgegeven maten en oppervlakten zijn indicatief. Van toepassing zijn de NVM voorwaarden.